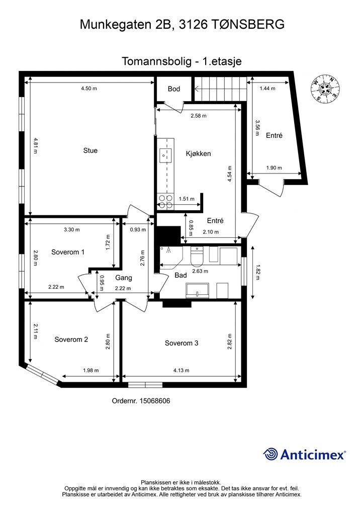
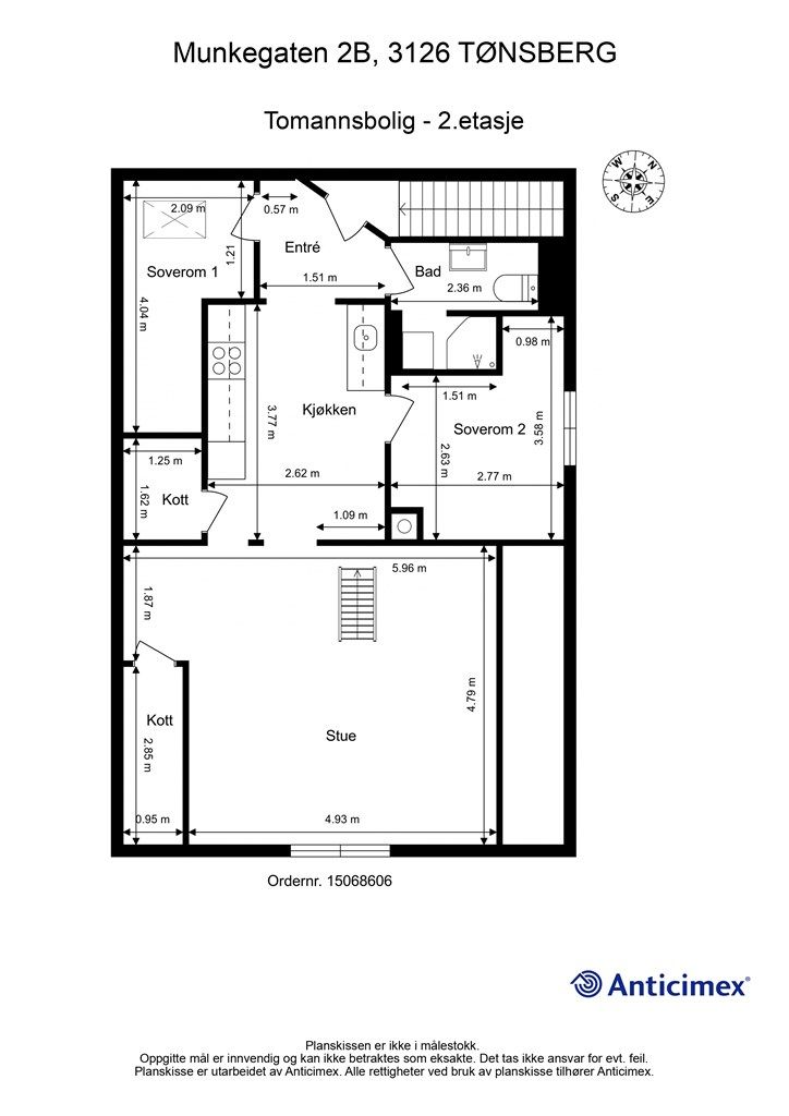
Munkegaten 2B
4 690 000 kr
136 m²
4 soverom
Solgt

Hel tomannsbolig med to enheter midt i sentrum | Parkering | Uteplass
Prisantydning
4 690 000 krOmkostninger
138 240 krTotalpris
4 828 240 kr
Pris
Bruksareal
136 m²BRA-I (internt bruksareal)
136 m²
Areal
Byggeår
1850Soverom
4 soveromBad
2 badType
Hel 2-mannsboligEierform
EierseksjonEnergimerke
Oransje G
Nøkkelinfo
Unngå doble boligrenter
Vi tilbyr gunstig forsikring.
Vurderer du utleie?
Få et tilbud fra Utleie KrogsveenHva koster lånet?
Sjekk estimert lånekostnadBeskrivelse
Kort om eiendommen
Velkommen til Munkegaten 2B, midt i Tønsberg sentrum!
Eiendommen dateres tilbake til ca. 1850 og fremstår med en sjarmerende fasade og et koselig preg. Beliggenheten er upåklagelig – her bor du i populære Sørbyen i Tønsberg med kort vei til alt byen har å by på, inkludert butikker, kafeer, restauranter, kollektivtransport og Tønsbergs livlige bryggeområde.
Høydepunkter:
* Varmepumpe i hver av etasjene
* Sentrumsnært
* Hyggelig uteplass i felles hage i sameiet
* To parkeringsplasser i sameiets gårdsplass
* Kjeller med lagermuligheter [ lav takhøyde ]
* Ypperlig til utleie, eller bo i en av enhetene og leie ut den etasjen du ikke bor i selv
Område:
* Gangavstand til alt byen har å by på
* Kort vei til kollektivtransport
* Gangavstand til skoler og barnehage
Velkommen!
Område
Legg til steder som er viktige for deg
På flyttefot? Tenk kjøp og salg samtidig.
Få din egen rådgiver gjennom hele kjøps- og salgsprosessen. Det starter med en verdivurdering.
Unngå doble boligrenter
Vi tilbyr gunstig forsikring.
Vurderer du utleie?
Få et tilbud fra Utleie KrogsveenHva koster lånet?
Sjekk estimert lånekostnadVil du varsles om lignende boliger?
Ved å lagre ditt boligsøk hos oss får du beskjed når vi har en bolig som ligner denne, før den legges ut på markedet!

