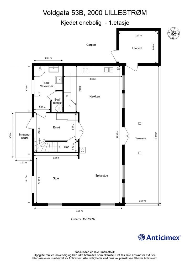
Voldgata 53B
9 700 000 kr
167 m²
3 soverom
Solgt

Volla / Lillestrøm
Enebolig på Volla | Sentrumsnær og innholdsrik familiebolig med fin uteplass | Carport | Skjermet hage
Prisantydning
9 700 000 krOmkostninger
263 490 krTotalpris
9 963 490 kr
Pris
Bruksareal
174 m²BRA-I (internt bruksareal)
167 m²BRA-E (eksternt bruksareal)
7 m²TBA (terrasse-balkongareal)
39 m²
Areal
Byggeår
2006Soverom
3 soveromBad
2 badTomteareal
233 m² (eiet)Type
Enebolig i kjedeEierform
EietFasiliteter
Garasje/P-plass og Balkong/TerrasseEnergimerke
Rød C
Nøkkelinfo
Unngå doble boligrenter
Vi tilbyr gunstig forsikring.
Vurderer du utleie?
Få et tilbud fra Utleie KrogsveenHva koster lånet?
Sjekk estimert lånekostnadBeskrivelse
Kort om eiendommen
Velkommen til Voldgata 53B!
Moderne bolig i et stille og barnevennlig nabolag med gangavstand til Lillestrøm sentrum. Her bor du nært skoler, barnehager, kollektivtransport og et bredt utvalg av servicetilbud. Området byr på flotte rekreasjonsmuligheter med lekeplass, krokketbane, fotballbane, skøytebane, idrettshall, ridesenter, treningssenter og kino i nærheten.
Kort fortalt:
* Lys og romslig stue/kjøkken med god plass til både spisebord og sofagruppe
* Skjermet, solrik hage
* Praktisk carport med lagring over
Kontakt megler og bli med på en hyggelig visning!
Område
Legg til steder som er viktige for deg
Megler

Eskil R. Tyskeberget
Eiendomsmegler
På flyttefot? Tenk kjøp og salg samtidig.
Få din egen rådgiver gjennom hele kjøps- og salgsprosessen. Det starter med en verdivurdering.
Unngå doble boligrenter
Vi tilbyr gunstig forsikring.
Vurderer du utleie?
Få et tilbud fra Utleie KrogsveenHva koster lånet?
Sjekk estimert lånekostnadVil du varsles om lignende boliger?
Ved å lagre ditt boligsøk hos oss får du beskjed når vi har en bolig som ligner denne, før den legges ut på markedet!
