Komplett salgsoppgave

Ares vei 20

7 690 000 kr
174 m²
3 soverom
Velkommen til Ares vei 20 - presentert av Sebastian Håbesland v/ Krogsveen - enebolig på solrik og høytliggende eiendom - foto: Oddphoto
Velkommen til Ares vei 20 - presentert av Sebastian Håbesland v/ Krogsveen - enebolig på solrik og høytliggende eiendom - foto: Oddphoto
Kart
Redesign på Hjem.no
Del
TÅRNÅSEN
Frittliggende enebolig i et populært boområde - mulighet for hybel - solrike uteplasser og hage - dobbelgarasje

Unngå doble boligrenter

Vi tilbyr gunstig forsikring.
Sjekk estimert lånekostnad

    Pris

  • Prisantydning
    7 690 000 kr
  • Omkostninger
    213 240 kr
  • Totalpris
    7 903 240 kr

    Areal

  • BRUKSAREAL
    207 m²
  • BRA-I (internt bruksareal)
    174 m²
  • BRA-E (eksternt bruksareal)
    33 m²
  • TBA (terrasse-balkongareal)
    37 m²

    Nøkkelinfo

  • Byggeår
    1988
  • Soverom
    3 soverom
  • Bad
    3 bad
  • Tomteareal
    792 m² (eiet)
  • Type
    Enebolig - Frittliggende
  • Eierform
    Eiet
  • Fasiliteter
    Garasje/P-plass og Balkong/Terrasse
  • Energimerke
    Rød E

Visning

For å delta på visning, ber vi om at du melder deg på. Da sikrer vi at du får nødvendig informasjon og at det er satt av tilstrekkelig med tid. Kontakt megler dersom annet tidspunkt ønskes. Husk å lese salgsoppgaven før visningen, så du stiller forberedt. NB. Visning utgår dersom det ikke er noen påmeldte.
Ønsker du kun å bli holdt orientert, kan du fra eiendommens hjemmeside få varsel om solgtpris, eller kontakte megler.
Lurer du på noe?

Beskrivelse

Kort om eiendommen

Enebolig over to plan på solrik tomt like ved marka
    Mulighet for hybel (mangler kjøkken i u.etg. for å kunne defineres som hybel)
  • Boligen ligger høyt, luftig, usjenert, og med fantastiske solforhold
  • Rolig og attraktivt boområde
  • Dobbeltgarasje og god plass til parkering på gårdsplass
  • Kort avstand til buss (Oslo-takst) med hyppige avganger til Oslo
  • Marka rett i nærheten med store turområder sommer som vinter

Innhold og byggemåte

Eiendommen

Ares vei 20, 1413 TÅRNÅSEN
Kommunenummer 3207, gårdsnummer 238, bruksnummer 512

Innhold

Totalt bruksareal BRA: 207 kvm
BRA-i:
Enebolig:
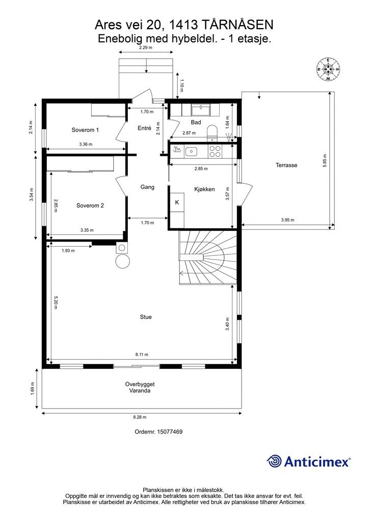
Underetasje, 84 kvm: Entré, gang, stue, innredet rom, vaskerom og to bad.
1. etasje, 90 kvm: Entré, gang, bad, stue, kjøkken og to soverom.
Åpent areal:
Enebolig:
1. etasje, 37 kvm: Veranda og terrasse.
BRA-e:
Garasje:
1. etasje, 33 kvm: Garasje
Vedlagte plantegninger er ikke målbare. De oppgitte arealer er hentet fra rapport med befaringsdato 26.11.2025 utført av Anticimex AS. Arealene er beregnet og rom er definert etter dagens faktiske bruk, uavhengig av hva som er godkjent av bygningsmyndighetene. Rom i underetasje benevnt som "Innredet rom" er i opprinnelige byggetegninger definert som "Disponibelt rom". Detter rommet er ikke godkjent for varig opphold. Se for øvrig supplerende informasjon under punktet "Ferdigattest".

Byggemåte

Selger har fått utarbeidet en tilstandsrapport, dvs. en teknisk gjennomgang av boligen hvor eventuelle avvik, risiko for kjøper og prisoverslag for hva som bør gjøres av oppgradering, er skissert. Se særskilt TGIU (tilstandsgrad ikke undersøkt), samt TG2 og TG3 som viser hva som er boligens normale slitasje, alder og type, hva som er avvik fra dette og hva som bør/må utbedres. Rapporten og selgers egenerklæring er en del av salgsoppgaven og må leses nøye før bud inngis. Kjøper overtar ansvaret for de opplysninger som fremkommer av salgsdokumentasjonen, og kan ikke gjøre gjeldende som mangel noe som burde vært kjent eller som ikke kan anses å ha betydning for avtalen.  
Bygningen er iht. tilstandsrapporten oppført på følgende måte:
Enebolig over to etasjer. Støpt plate på mark. Grunnmur av pussede lettklinkerblokker. Etasjeskiller av treverk. Yttervegger av trekonstruksjoner utvendig kledd med liggende trekledning. Takkonstruksjon av saltaksform utvendig tekket med takstein (taket er besiktiget fra bakkeplan). Boligen har profilerte entrédører med glassfelt. Terrassedør/skyvedør og verandadør med to-lags glass fra byggeår. Vinduer med to-lags glass fra byggeår
og 2003. Oppvarming med elektrisitet/gulvvarme og vedfyring.
Det gjøres oppmerksom på at det er gitt tilstandsgrad 3 (TG3) på følgende kontrollpunkter:
- Våtrom -Baderom 1 etasje: Overflater vegger (sjablongmessig prisantydning i hht. bygningssakkyndig: kr. 10 000,- - 50 000,-)
- Våtrom -Vaskerom i underetasje med adkomst fra gang: Overflater gulv. Membran, tettesjikt og overgang til sluk. (sjablongmessig prisantydning i hht. bygningssakkyndig: kr. 10 000,- - 50 000,-)
- Frittstående byggverk -Dobbelgarasje: Frittstående byggverk
Det er gitt tilstandsgrad 2 (TG2) på følgende kontrollpunkter:
- Våtrom - Baderom 1 etasje: Vannrør. Sanitærutstyr / innredning. Overflater gulv. Membran, tettesjikt og overgang til sluk.
- Våtrom - Vaskerom i underetasje med adkomst fra gang: Vannrør. Sanitærutstyr / innredning. Overflater vegger.
- Våtrom - Baderom i underetasje i hybeldel med adkomst fra stue: Vannrør. Sanitærutstyr / innredning.
- Våtrom - Baderom i underetasje med adkomst fra gang: Vannrør. Membran, tettesjikt og overgang til sluk. Fallforhold (gulv).
- Kjøkken - 1 etasje med adkomst fra gang: Vannrør. Overflater gulv. Innredning.
- Øvrige rom - 1 etasje: Overflater gulv.
- Innvendige trapper: Innvendige trapper
- Tekniske anlegg, VVS anlegg (Sjekkpunkter utover det som er inkludert i andre rom): Varmtvannsbereder. Vannrør. Hovedstoppekran.
- Elektrisk anlegg: Forenklet vurdering av det elektriske anlegget.
- Yttervegger inkl. fasader og konstruksjon: Fasader ink. kledning.
- Dører og vinduer: Vinduer. Dører .
- Yttertak: Inspeksjonsmulighet.
- Balkonger, terrasser, veranda etc - Veranda: Utkragede eller understøttede konstruksjoner (balkonger, verandaer).
- Balkonger, terrasser, veranda etc - Terrasse: Terrasser/inntrukket balkong over innvendige rom
- Drenering: Fuktsikring av grunnmur. Alder.
- Stikkledninger og tanker: Vann- og avløpsledninger (ink. stikkledninger).
I tilstandsrapporten er det gitt 64% på TG1, 27 % på TG2 og 4% på TG3. Det er 5 % på TGIU (tilstandsgrad ikke undersøkt).
Se supplerende tekst i tilstandsrapporten om forholdene beskrevet over. Kjøper overtar ansvar og risiko for dette. 
Det er i tillegg observert at det drypper fra kran i utslagsvask ved bad i underetasje.
Selger har tidligere søkt om til- og påbygg på eneboligen. Dette inkluderte en ekstra etasje med takterrasse og noen innvendige endringer på planløsningen. Det ble gitt rammetillatelse på søknaden 24.01.2018. En slik tillatelse faller bort etter 3 år dersom tiltaket ikke er igangsatt, og denne er derfor ikke gyldig lenger. Siden reguleringsplanen er den samme som da tiltaket ble omsøkt er det en mulighet for at en slik søknad kan få tillatelse i dag. Det tas spesifikt forbehold om at dette ikke vil la seg gjøre. Dersom det er spørsmål knyttet til dette, eller ønske om å se byggetegningene som ble innsendt med søknaden, kontakt megler.

Sammendrag av selgers egenerklæring

Har det vært feil på bad, vaskerom eller toalettrom?
Ja
Beskriv feilen og omfanget: Det er 2 varmtvannsberedere. Det drypper litt fra varmtvannsbereder på vaskerom og "hybelbad".
Er det utført arbeid på det elektriske anlegget?
Ja
Navn på arbeid: Nytt arbeid Årstall: 2010
Hvordan ble arbeidet utført? Faglært
Fortell kort hva som ble gjort av faglærte: Satt inn spottere i taket i stue i kjeller. Ble gjort ca i 2009-2010. Husker ikke hvilket firma som utførte jobben eller eksakt
tidspunkt.
Hvilket firma utførte jobben?: Husker ikke
Har du dokumentasjon på arbeidet? Nei
Har det vært mugg, sopp eller råte i boligen eller andre bygninger på eiendommen?
Ja
Beskriv omfanget: Det er råte i et vindskie bord på garasje.

Standard

Enebolig over 2 plan i et populært boområde.
1. etasje:
Entré: Flislagt gulv med gulvvarme. Luke til kryploft med lagringsplass.
Stue: Stor stue med store vindusflater. Downlights i himling. Peisovn. Utgang til uteplass via skyvedør. Overbygget uteplass, høyt og fritt beliggende med pent utsyn.
Kjøkken: Skap- og benkeplass. Integrert komfyr og platetopp, samt delvis integrert oppvaskmaskin følger. Utgang til uteplass.
Soverom 1: Inngang fra entré. Vindu orientert mot nord.
Soverom 2: Vindu orientert mot nord.
Bad: Gulvvarme. Baderomsinnredning (servant med underskap, speil, overskap og sideskap). Toalett. Plass til badekar (badekaret er fjernet). Sluk i gulv.
Underetasje:
Gang: Gulvvarme. Peisovn.
Rom tidligere benyttet som soverom: Rommet er definert som disponibelt rom i godkjente byggetegninger- se punkt om ferdigattest for mer informasjon. Vindu orientert nord samt lite vindu orientert mot øst.
Vaskerom: Skap- og benkeplass. Utslagsvask. Varmtvannsbereder. Gulvvarme.
Bad: Baderomsinnredning (servant med underskap og speil). Dusjkabinett. Toalett. Gulvvarme.
"Hybel-del" i underetasje:
Entré: Egen inngang. Gulvvarme (uklart om denne gulvvarmen fungerer). Garderobeskap. Sikringsskap (med to målere, hvor den ene gjelder kun for entré, stue og bad i underetasje).
Stue: Romslig rom. Vindu orientert mot nord og vest. Downlights i himling. Gulvvarme.
Bad: Flislagt gulv og vegger. Gulvvarme. Toalett. Dusjkabinett. Baderomsinnredning (servant med underskap og speil). Utslagsvask. Varmtvannsbereder.

Løsøre og tilbehør

Vi viser til liste fra Norges Eiendomsmeglerforbund som gjelder fra 01.01.2020 angående løsøre og tilbehør.

Oppvarming

Varmekabler på gulv i gang og bad i overetasje. I underetasje er det varmekabler i trappegang, vaskerom, bad og rom benyttet som stue. Ellers elektrisk oppvarming.

Ferdigattest/brukstillatelse

Det foreligger ikke ferdigattest på eiendommen, men midlertidig brukstillatelse for boligen ble gitt 10.08.1987. Tillatelsen er gitt på følgende vilkår: Mangler trapp til terreng fra inngangdør, terrasse med adkomst fra kjøkken ikke ferdig på befaringstidspunktet i 1988, manglet røykvarsel, dør mellom "hybel" og øvrig bolig må tilfredsstille B15, beslag i spalteventiler over vinduer og husnummerskilt mangler.
Det er uklart om dette er utført. Kjøper overtar ansvaret for dette.
Det gjøres oppmerksom på at innredet rom i kjeller er innredet etter at midlertidig brukstillatelse er gitt. Rommet er i byggetegninger definert som "Disponibelt rom", men har vært innredet som rom for varig opphold. Det ble gitt unntak for søknadsplikt for å sette inn større vindu i dette rommet i 2005. Dette innebærer at rommet muligens oppfyller krav for rom for varig opphold, men dette må omsøkes til kommunen og tas spesifikt forbehold om at det ikke oppfyller krav til varig opphold
Garasje ble godkjent bygget av kommunen den 24.02.1988. Det foreligger ikke midlertidig brukstillatelse eller ferdigattest på garasjen.
Kjøper overtar alt ansvar, kostnad og risiko for dette videre. 
Det gjøres oppmerksom på at det ikke lenger utstedes ferdigattest på tiltak det er søkt om før 1998 jf. plan- og bygningsloven § 21-10. Kommunen vil ikke kreve ferdigattest for disse tiltakene og vil avvise eventuelle søknader. Bestemmelsen innebærer ikke at tiltak med manglende søknad blir lovlige, men at man ikke trenger å avslutte gamle byggesaker. Normalt sett kreves ferdigattest for alle søknadspliktige tiltak som gjøres etter plan- og bygningsloven. 

Tinglyste heftelser og rettigheter

Eiendommen overdras fri for pengeheftelser.
Det er tinglyst følgende servitutt på eiendommen:
Dagboknr 11905, tinglyst 13.12.1983, type heftelse: Bestemmelse om bebyggelse. Servitutten omhandler bestemmelse om gjerde, bestemmelse. vedr. fellesantenneanlegg, stikkledninger og kabler. Gjelder denne registerenheten med flere.
Servitutten vil følge eiendommen, og kan sees ved henvendelse til megler. Kjøpers bank vil få prioritet etter ovennevnte heftelser og servitutter.

Eventuell adgang til utleie

Del av boligens underetasje er godkjent som en hybel er lovlig for beboelse (det mangler dog kjøkken for å kunne defineres som en hybel), men er ikke godkjent som separat boenhet av kommunen. Hovedboligen kan leies ut etter gjeldende regler.
Det gjøres oppmerksom på at det er krav til forsvarlige radonnivåer ved utleie. Det er ikke gjennomført radonmåling på denne boligen.

Diverse

Eiendommen er vasket til visning, og vil ikke bli ytterligere utvasket til overtagelse.

Beliggenhet og tomteforhold

Beliggenhet

Flott beliggende bolig i et barnevennlig boområde på Tårnåsen.
Offentlig kommunikasjon:
Nær bussholdeplass (i Oslo kommune med "Oslo-takst") med hyppige avganger til Oslo sentrum (avgang hvert 10. minutt store deler av dagen, samt hvert 5. minutt i rush-tiden), samt nattbuss i helgene. Gangavstand til Kolbotn togstasjon. Forøvrig ca. 20 minutter med bil til Oslo S.
Marka/fritidstilbud:
Rett ved marka med flotte turmuligheter sommer som vinter. Lysløype og turstier til blant annet Grønliåsen, Åsland, Stallerud og Sterkerud. Det tar ca. 5 minutter å gå til foten av marka fra boligen.
Kort avstand til Hellerasten kunstgress, Sofiemyr svømme- og idrettshall, samt til Sofiemyr kunstgress med sine utallige gressbaner omkranset rundt. Kjøre-/sykkelavstand til Oslofjorden med badeplasser på blant annet Hvervenbukta og Ingierstrand.
Ellers i kommunen er Ingierkollen slalåmbakke svært populært. Padel-tennis og tennisbaner er tilgjengelig på henholdsvis Sofiemyr og Kolbotn. Svært populær 18-hulls golfbane på Oppegård og flere ulike treningsstudioer en kort joggetur fra boligen.
Diverse:
Nær Rema 1000 ved Skiveien (åpent 07-23 alle dager utenom søndager og helligdager) og Europris.
På Kolbotn finner man alt av servicetilbud, butikker, Kolbotn togstasjon og Kolbotn Torg med ca. 60 forretninger, cafeer og restauranter.
I Kolben kulturhus finnes kino, bibliotek, kulturskole for barn og konserthus.
Se forøvrig nyttige linker for informasjon om hva som skjer i kommunen.
www.nordrefollo.kommune.no | www.kolben.no | www.kolbotntorg.no | www.kolbotnil.no

Adkomst

Ares vei har adkomst fra Valhallaveien, som igjen har adkomst fra Skiveien.
Det vil bli skiltet med Krogsveen visningsskilt ved fellesvisninger.

Barnehager, skoler og fritid

Flere barnehager i området. Gangavstand til Tårnåsen barneskole og Hellerasten ungdomsskole. Roald Amundsen videregående skole ligger sentralt plassert på Sofiemyr.
Informasjon om tilhørende skolekretser er hentet fra Prognosesenteret som dataleverandør og tilhørigheten kan årlig endres av kommunen. Dersom skole- og barnehagetilbud er av betydning for kjøpet, ber vi om at det rettes en særskilt henvendelse til kommunen for oppdatert informasjon.

Beskrivelse av tomt

Tomt på 792 kvm opparbeidet med gruslagt innkjørsel, biloppstillingsplasser, dobbelgarasje, terrasse, gressplen, trær, hekker og diverse beplantning.

Parkering

Dobbel garasje med automatisk portåpner (portåpner er «knapp» inne i husets entré samt én portåpner til å ha i bilen). Forøvrig parkering på egen gårdsplass, samt gateparkering etter områdets bestemmelser.

Vei, vann og avløp

Eiendommen har adkomst fra offentlig vei via privat vei med felles vedlikeholdsansvar.
Eiendommen er tilknyttet kommunalt ledningsnett via private stikkledninger. Eier er selv ansvarlig for private stikkledninger til boligen.

Regulerings-og arealplaner

Eiendommen er regulert til frittliggende småhusbebyggelse i henhold til reguleringsplan med planid 2014002 med tilhørende reguleringsbestemmelser datert 12.09.2016. I tillegg er 1 kvm av kjøreveien regulert av eldre reguleringsplan.
Utsnitt av plan med tilhørende bestemmelser kan fås ved henvendelse til megler.

Økonomi

Kommunale utgifter

Kommunale avgifter er stipulert til kr 13 665,- for inneværende år. I dette inngår gebyr for vann, avløp, renovasjon og feiing/tilsyn.
Det er installert vannmåler på eiendommen og kostnadene betales etter forbruk. Forbruk avleses etter henvendelse fra kommunen. Forbruk betales à konto basert på siste avlesning.
For denne eiendommen utgjør vannforbruket kr. 1 0404,- av de kommunale avgiftene. I tillegg kommer abonnement for vann. Oppgitt kostnad baserer seg på selgers forbruk og vil variere utfra bruk/personer i husstanden.
Eiendommen har vært lite brukt siste året, og det må påregne at kommunale avgifter vil være høyere enn det som er oppgitt.
Nåværende eier har et strømforbruk som tilsvarer ca. kr 21.000 kwh. pr. år. 
Boligen har en årlig forsikringspremie på kr 9 715,-.
Boligen er ikke tilknyttet internett og kabel-tv. Det er i følge selger fiber tilknyttet fra privat vei og inn, men abonnementet er sagt opp.
Boligen er tilknyttet offentlig vei via privat vei. Den private veien har privat brøyting og strøing i samarbeid med de andre naboene tilknyttet denne veien. I 2024/2025 var denne boligens andel av dette kr. 1 461,- for brøyting og 985,- for strøing. Felles vedlikehold må påregnes for den private veien.
Utgiftene er basert på nåværende eiers forbruk og avtaler.

Formuesverdi

Formuesverdi for 2023 var kr 1 935 658,- ifølge skatteetaten. Beløpet forutsetter at eier bor fast i boligen (primærbolig).
Ved eventuell øvrig bruk av eiendommen (f.eks. fritidsbolig, pendlerbolig, utleieobjekt) var formuesverdien for 2023 kr 7 742 630,-.
Formuesverdien justeres normalt årlig. Se skatteetaten.no for mer informasjon om fastsettelse av formuesverdien.

Omkostninger

7 690 000,00 Prisantydning
Omkostninger
192 250,00  Dokumentavgift til staten (2,5% av kjøpesum)
19 900,00  Gjensidige Boligkjøperpakke (valgfri)
545,00  Tinglysing panterettsdokument
545,00  Tinglysing skjøte
--------------------------------------------------------
213 240,00 Omkostninger totalt
--------------------------------------------------------
7 903 240,00 Totalpris inkl. omkostninger
--------------------------------------------------------
Totalpris inkl. omkostninger forutsetter kjøp til prisantydning.
Det tas forbehold om endringer i avgifter og gebyrer.

Tilbud om lånefinansiering

Megler formidler gjerne kontakt med rådgiver hos vår samarbeidspartner BN Bank. De har konkurransedyktige betingelser samt rask og løsningsorientert behandling av din lånesøknad. Krogsveen mottar et honorar dersom lån opprettes. 

Betalingsbetingelser

Kjøpesum inkludert omkostninger, samt pantedokument tilknyttet eventuelt lån, skal være disponibelt hos megler 2 virkedager før overtagelsen.

Annen viktig informasjon

Eier

Marius Lindqvist Gruer

Overtakelse

Etter nærmere avtale.

Boligselgerforsikring

Selger har i forbindelse med salget tegnet boligselgerforsikring levert av Gjensidige.  
Boligselgerforsikringen dekker selgers ansvar etter avhendingsloven begrenset oppad til kr 14 millioner. Dersom kjøper oppdager forhold ved eiendommen som hen mener utgjør en mangel ved eiendommen, vil Gjensidige behandle reklamasjonen på vegne av selger. Forsikringsvilkår kan fås ved henvendelse til megler.  
Vedlagt salgsoppgaven følger selgers egenerklæringsskjema og tilstandsrapport. Interessenter må sette seg inn i dokumentene før bud inngis. 

Boligkjøperforsikring

Innen kontraktsmøtet må kjøper ta stilling til om det ønskes å bestille Boligkjøperpakken gjennom Gjensidige. I denne gunstige pakken er boligen ferdig forsikret og inkluderer rettshjelpsforsikring, også kalt Boligkjøperforsikring. Rettshjelpsforsikring gir trygghet og tilgang på profesjonell juridisk hjelp dersom det oppdages uventede feil eller mangler det første året etter overtagelse. Forsikringsselskapet behandler i så fall ethvert mangelskrav kjøper måtte ha overfor selger. 
Boligkjøperpakken inkluderer bygningsforsikring for hus og hytte, innboforsikring, flytteforsikring og dobbel rentedekning - i situasjoner hvor kjøper ikke får solgt nåværende primærbolig.   
Kjøper mottar ingen særskilt faktura for Boligkjøperpakken da kostnaden det første året legges til kjøpesummen for boligen. Det gjøres oppmerksom på Krogsveen mottar et honorar for denne formidlingen.
Produktark for Boligkjøperpakken ligger vedlagt i salgsoppgaven.  
Dersom ikke boligkjøperpakke ønskes kan kun rettshjelpsforsikring, også kalt boligkjøperforsikring, tegnes særskilt via megler. Rettshjelpsforsikringen varer i 5 år fra overtagelse og leveres gjennom Gjensidige. Ta kontakt med megler for ytterligere informasjon. 
Selskap og privatpersoner som driver med kjøp/salg/utvikling som ledd i egen næringsvirksomhet kan ikke tegne boligkjøperpakke eller rettshjelpsforsikring. 

Budgivning

Forbrukerinformasjon om budgivning er vedlagt denne salgsoppgaven og er også på vår hjemmeside Krogsveen.no. Alle bud og budforhøyelser må inngis skriftlig. I tillegg må legitimasjon være fremlagt sammen med signatur fra budgiver.
Vi oppfordrer til å gi bud elektronisk via GI BUD-knappen på eiendommens hjemmeside på Krogsveen.no. Da vil samtlige vilkår bli oppfylt.  
Eventuelle forhøyelser eller endringer av budet kan bekreftes pr SMS eller på e-post. Vi oppfordrer alltid til å kontakte megler pr. telefon i tillegg da forsinkelser i SMS og e-post kan forekomme.
For at budene skal kunne bli behandlet og videreformidlet skriftlig til alle involverte parter, må alle bud ha en tilstrekkelig lang akseptfrist, jf. eiendomsmeglingsforskriften § 6-3.
Selger må også skriftlig akseptere budet før aksept kan formidles til budgiver. Akseptfrist bør derfor være på minimum 30 minutter, og budforhøyelser må derfor skje i god tid før fristens utløp.
Bud i forbrukerforhold kan uansett ikke settes med kortere frist enn kl. 12.00 første virkedag etter siste annonserte visning. I tillegg kan ikke budet ha forbehold om at det skal holdes hemmelig ovenfor øvrige interessenter. Megler har iht lov om eiendomsmegling ikke anledning til å videreformidle disse budene, og de vil dermed heller ikke bli journalført.
Etter at eiendommen er solgt vil kjøper og selger få tilsendt budjournal. Øvrige budgivere kan få utlevert kopi av budjournalen i anonymisert form.

Hvitvaskingsreglene

I henhold til lov om hvitvasking og terrorfinansiering har megler plikt til å gjennomføre kontrolltiltak overfor kunder, herunder fullmektiger. Dette innebærer bl.a. å bekrefte kunders og reelle rettighetshaveres identitet på bakgrunn av fremvist gyldig legitimasjon eller på annen godkjent måte, samt å innhente opplysninger om kundeforholdets formål og tilsiktede art.
Dersom slike kundetiltak ikke kan gjennomføres, kan megler ikke etablere kundeforholdet eller utføre transaksjonen.
Hvis kjøper ikke bidrar til gjennomføring av kundekontrollen og dette fører til at transaksjonen blir forsinket eller ikke kan gjennomføres, vil dette ansees som mislighold av avtalen og gi selger rettigheter etter avhendingslova kapittel 5. I tilfeller der selger ikke bidrar til gjennomføring av løpende kundekontroll underveis i oppdraget, er det selger som misligholder sine forpliktelser etter avtalen og gi kjøper rettigheter etter avhendingslovens kapittel 4. Partene er selv ansvarlige for eventuelle kostnader og ansvar dette kan medføre. Eiendomsmegleren eller eiendomsmeglingsforetaket kan ikke holdes ansvarlig for de konsekvenser dette vil kunne få for partene eller andre som har interesser i eiendomshandelen.
Kjøper oppfordres til å innbetale kjøpesummen som ikke kommer fra låneinstitusjon i én samlet innbetaling fra egen konto i norsk bank. Megler har plikt til å melde fra til Økokrim om eiendomshandler som fremstår som mistenkelige. Melding sendes Økokrim uten at partene varsles. 

Personopplysningsloven

I henhold til personopplysningsloven gjør vi oppmerksom på at interessenter kan bli registrert for videre oppfølging.

Lovanvendelse

Generelle bestemmelser
Salgsoppgaven er basert på de opplysningene selger har gitt til megler, den bygningssakyndiges tilstandsrapport, samt opplysninger innhentet fra kommunen, Kartverket og andre tilgjengelige kilder. Det er viktig at kjøper setter seg grundig inn i alle salgsdokumentene, herunder salgsoppgave, tilstandsrapport og selgers egenerklæring. Kjøper anses kjent med forhold som er tydelig beskrevet i salgsdokumentene, og slike forhold kan ikke påberopes som mangler. Dette gjelder uavhengig av om kjøper har lest dokumentene. Alle interessenter oppfordres til å undersøke eiendommen nøye, gjerne sammen med fagkyndig før bud inngis. Kjøper som velger å kjøpe usett kan ikke gjøre gjeldende som mangel noe han burde blitt kjent med ved undersøkelsen. 
Dersom det er behov for avklaringer, anbefaler vi at interessenter rådfører seg med eiendomsmegler eller egne rådgivere før det legges inn bud.
En bolig som har blitt brukt i en viss tid, har vanligvis blitt utsatt for slitasje og skader kan ha oppstått. Slik bruksslitasje må kjøper regne med, og det kan avdekkes enkelte forhold etter overtakelse som nødvendiggjør utbedringer. Normal slitasje og skader som nødvendiggjør utbedring, er innenfor hva kjøper må forvente og vil ikke utgjøre en mangel.
Kjøper og selgers rettigheter og plikter reguleres av avtalen mellom partene, samt informasjonen som har vært tilgjengelig for kjøperen i forbindelse med handelen. Avtalen utfylles av avhendingsloven, og det gjelder ulike avtalevilkår avhengig av om kjøper er forbrukerkjøper eller ikke.  Dette er nærmere beskrevet nedenfor. 
På grunn av ulike avtalevilkår kan selger vurdere bud fra en som ikke er forbruker, ulikt fra en forbrukers bud. Dersom kjøper ikke er forbruker, er selger sitt mulige mangelsansvar begrenset fordi eiendommen selges "som den er".  Selger kan ikke ta «som den er»- forbehold overfor en forbrukerkjøper. Selv et lavere bud fra en som ikke er forbruker kan foretrekkes fordi begrensningen i mulig mangelsansvar kan ha egenverdi for selger. Selger står fritt til å forkaste eller akseptere ethvert bud, og er for eksempel ikke forpliktet til å akseptere høyeste bud.
Budgiver skal i budskjema avgi egenerklæring om budgiver er forbruker eller næringsdrivende/ person som hovedsakelig handler som ledd i næringsvirksomhet. Budgivere får informasjon dersom andre bud er inngitt av en som ikke er forbruker. 
Forbrukerkjøp - definisjon
Med forbrukerkjøp menes kjøp av eiendom når kjøperen er en fysisk person som ikke hovedsakelig handler som ledd i næringsvirksomhet.
Forbruker – avtalevilkår
Eiendommen har en mangel dersom den ikke er i samsvar med kravene som følger av avtalen, eller det foreligger brudd på bestemmelsene i avhendingsloven §§ 3-2 til 3-8. Hvis eiendommen ikke er i samsvar med det kjøperen må kunne forvente ut ifra alder, type og synlig tilstand, kan det være grunnlag for mangelskrav. Det samme gjelder hvis det er holdt tilbake eller gitt uriktige opplysninger om eiendommen. Dette gjelder likevel bare dersom man kan gå ut ifra at det virket inn på avtalen at opplysningen ikke ble gitt eller at mangelskravet ikke blir rettet i tide på en tydelig måte.
Boligen kan ha en mangel etter avhendingsloven § 3-3 andre ledd, dersom det er avvik mellom opplyst og faktisk innvendig areal, forutsatt at avviket er på 2% eller mer og minimum 1 kvm.
Ved beregning av et eventuelt prisavslag eller erstatning må kjøper selv dekke tap/kostnader opptil et beløp på kr 10 000 (egenandel).
Ikke-forbruker (næringsdrivende) – definisjon 
Hvis kjøper er en juridisk person, eller en fysisk person som hovedsakelig handler som ledd i næringsvirksomhet, vil kjøpet ikke anses som et forbrukerkjøp. 
Ikke-forbruker – avtalevilkår
Eiendommen har en mangel dersom den ikke er i samsvar med kravene som følger av avtalen.
Eiendommen selges «som den er», og selgers ansvar utover det konkret avtalte er da begrenset etter avhendingsloven § 3-9, første ledd andre setning. 
Avhendingsloven § 3-3 andre ledd fravikes, og hvorvidt boligens arealsvikt utgjør en mangel vurderes etter avhendingsloven § 3-8. 
Informasjon om kjøpers undersøkelsesplikt, herunder oppfordringen om å undersøke eiendommen nøye, gjelder også for kjøpere som ikke anses som forbrukere.
Det forutsettes at hjemmel overføres til kjøper. Hvis kjøper ikke ønsker hjemmelsoverføring av eiendommen, må det tas forbehold om dette i budet.

Meglers vederlag

Meglers vederlag betales av selger og er avtalt til:
Vederlag: 1,00 % av salgssummen
Vederlag:
Kontroll av hjemmel og heftelser  kr 2 900,00
Markedsføringspakke  kr 27 400,00
Oppgjør  kr 7 500,00
Tilrettelegging  kr 24 900,00
Visninger pr stk  kr 4 000,00
Utlegg:
Innhenting av offentlig opplysninger Nordre Follo - legalpant  kr 563,00
Innhenting av offentlig opplysninger Nordre Follo kommune  kr 3 300,00
Tinglysing sikring  kr 545,00
Andre utgifter:
Boligselgerforsikring Gjensidige (5,71 promille av prisantydning- v/pris 7,7 mill. utgjør dette)  kr 43 967,00
Fotograf - 25 bilder  kr 3 125,00
Tilstandsrapport (rapport fra "takstmann")  kr 20 625,00
Vi er opptatt av verdiskapning, og har knyttet til oss samarbeidspartnere som skal sikre våre kunder de beste produkter og tjenester;
• I forbindelse med forberedelse av salget, innhenter vi informasjon om eiendommen hovedsakelig fra vår samarbeidspartner Amibita.
• Gjensidige leverer boligselgerforsikring og tilbyr bygningsforsikring
• Boligkjøperforsikring leveres av Hiscox og med Sedgwick som skadebehandler, og er formidlet gjennom Gjensidige.
• BN bank tilbyr finansieringsløsninger
• Vår avdeling Krogsveen Pluss tilbyr flyttetjenester som utvask, visningsvask, lager, tømming og transport av flyttelass, i tillegg til å formidle kontakt med Flip for overflateoppussing.
• I forbindelse med overtagelse av eiendommen tilbyr Overo avtale om strøm, alarm og bredbånd.
• Krogsveen er, sammen med øvrige bransjeaktører, medeier i Bomega AS som tilbyr den digitale annonseringsplattformen Hjem.

Opplysninger om oppdraget

Oppdragsnummer 49-0099/25
Eiendomsmegler Krogsveen AS, avd. Kolbotn
Jan Baalsruds plass 1, 1410, KOLBOTN
950 007 613
Oppdragets KR-kode KR49.2599

Dato

Sist oppdatert: 11. januar 2026 kl. 14:31

Dokumenter

Utskriftsvennlig salgsoppgave

Område

Legg til steder som er viktige for deg

Prisutvikling for området

Kvadratmeterpris
0 kr/m²
Endring
↘︎ % ()

Visning

For å delta på visning, ber vi om at du melder deg på. Da sikrer vi at du får nødvendig informasjon og at det er satt av tilstrekkelig med tid. Kontakt megler dersom annet tidspunkt ønskes. Husk å lese salgsoppgaven før visningen, så du stiller forberedt. NB. Visning utgår dersom det ikke er noen påmeldte.
Ønsker du kun å bli holdt orientert, kan du fra eiendommens hjemmeside få varsel om solgtpris, eller kontakte megler.
Lurer du på noe?

Vil du varsles om lignende boliger?

Ved å lagre ditt boligsøk hos oss får du beskjed når vi har en bolig som ligner denne, før den legges ut på markedet!

På flyttefot? Slik gjør vi det enklere for deg

Skreddersydd flyttepakke

Vi fikser håndverkere, vask, pakking, lagring og transport, og legger ut for utgiftene underveis.

Hjelp med både kjøp og salg

Hos oss har du din egen rådgiver gjennom hele kjøps- og salgsprosessen.

Hjelp til finansiering

Vårt samarbeid med BN Bank sikrer deg rask og løsningsorientert hjelp, til konkurransedyktige betingelser.