Hjalmar Brantings vei 63
4 790 000 kr
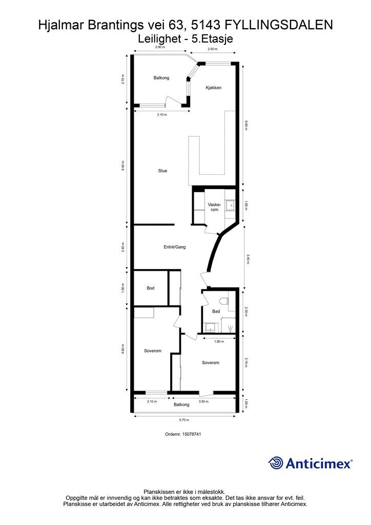
92 m²
2 soverom
Solgt

Presenteres av
Henriette MuriLekker 3-roms toppleilighet like ved bybanen/Oasen| Bad/vaskerom 2025| Fantastisk utsikt & gode solforhold| 2 balkonger
Prisantydning
4 790 000 krAndel fellesgjeld
28 461 krOmkostninger
19 252 krTotalpris
4 837 713 kr
Pris
Bruksareal
96 m²BRA-I (internt bruksareal)
92 m²BRA-E (eksternt bruksareal)
4 m²TBA (terrasse-balkongareal)
14 m²
Areal
Etasje
5Byggeår
1972Soverom
2 soveromBad
1 badType
AndelsleilighetEierform
AndelFasiliteter
Balkong/TerrasseFellesutgifter
5 903 krEnergimerke
Oransje F
Nøkkelinfo
Unngå doble boligrenter
Vi tilbyr gunstig forsikring.
Vurderer du utleie?
Få et tilbud fra Utleie KrogsveenHva koster lånet?
Sjekk estimert lånekostnadBeskrivelse
Kort om eiendommen
Velkommen til Hjalmar Brantings vei 63! En lekker leilighet i hjertet av Fyllingsdalen med gangavstand til bybanen og Oasen kjøpesenter, samt til skole og barnehager.
Høydepunkter:
Bad og vaskerom pusset opp i 2025 av fagfolk
Varmtvann inkl. i fellesutgiftene
2 balkonger! En solrik, sørvendt med langstrakt utsikt og en nordvendt hvor kveldssolen kan nytes
Kjøkken fra 2019
God oppbevaringsplass i leiligheten med stor innvendig bod
Hele elektriske anlegget oppgradert i 2019
Rør-i-rør
Romslig leilighet
Fin plassering i borettslaget
Like ved bybanen, samt sykkel- og gangtunnel som tar deg raskt til Minde/Haukeland/sentrum
Svært gode turmuligheter i området
Under 10 minutter kjøretid til Bergen Sentrum
Område
Legg til steder som er viktige for deg
På flyttefot? Tenk kjøp og salg samtidig.
Få din egen rådgiver gjennom hele kjøps- og salgsprosessen. Det starter med en verdivurdering.
Unngå doble boligrenter
Vi tilbyr gunstig forsikring.
Vurderer du utleie?
Få et tilbud fra Utleie KrogsveenHva koster lånet?
Sjekk estimert lånekostnadVil du varsles om lignende boliger?
Ved å lagre ditt boligsøk hos oss får du beskjed når vi har en bolig som ligner denne, før den legges ut på markedet!
På flyttefot? Slik gjør vi det enklere for deg
Skreddersydd flyttepakke
Vi fikser håndverkere, vask, pakking, lagring og transport, og legger ut for utgiftene underveis.
Hjelp med både kjøp og salg
Hos oss har du din egen rådgiver gjennom hele kjøps- og salgsprosessen.
Hjelp til finansiering
Vårt samarbeid med BN Bank sikrer deg rask og løsningsorientert hjelp, til konkurransedyktige betingelser.



































