Heggedalskogen 27B
3 490 000 kr
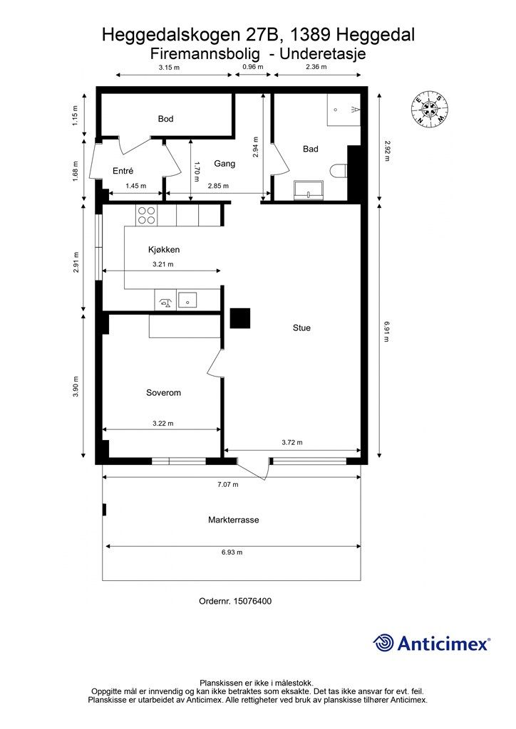
70 m²
1 soverom
Solgt

Presenteres av
Terje TveitHEGGEDAL
Fin leilighet med hyggelig hage. Nytt kjøkken i 2025 og bad fra 2012. Gode solforhold. Garasje. Lave felleskostnader!
Prisantydning
3 490 000 krOmkostninger
98 290 krTotalpris
3 588 290 kr
Pris
Bruksareal
83 m²BRA-I (internt bruksareal)
70 m²BRA-E (eksternt bruksareal)
13 m²TBA (terrasse-balkongareal)
21 m²
Areal
Etasje
-1Byggeår
1979Soverom
1 soveromBad
1 badType
EierleilighetEierform
EierseksjonFasiliteter
Garasje/P-plass og Balkong/TerrasseFellesutgifter
1 537 krEnergimerke
Rød G
Nøkkelinfo
Unngå doble boligrenter
Vi tilbyr gunstig forsikring.
Vurderer du utleie?
Få et tilbud fra Utleie KrogsveenHva koster lånet?
Sjekk estimert lånekostnadBeskrivelse
Kort om eiendommen
Velkommen til Heggedalskogen 27B, presentert av Terje Tveit i Krogsveen.
Her får du en flott 2-roms leilighet i en firemannsbolig med trappefri adkomst. Boligen inneholder soverom, stue/spisestue, kjøkken, bad/vaskerom, entré og bod. Leiligheten har en markterrasse med ettermiddags-/kveldssol. Boligen disponerer en garasjeplass med mulighet for elbil-lader. Dette er et rolig og svært barnevennlig boligområde i Heggedal, en kort kjøretur fra Asker. Nærhet til natur, skoler, barnehager og butikker. Kort vei til nærmeste bussholdeplass som tar deg ned til Heggedal sentrum.
Kort fortalt:
Nytt kjøkken
Nærhet til Heggedal sentrum
Togforbindelse til Oslo fra Heggedal
Garasjeplass
Kort vei til barnehage og skoler
Ingen TG3
Velkommen til visning!
Område
Legg til steder som er viktige for deg
På flyttefot? Tenk kjøp og salg samtidig.
Få din egen rådgiver gjennom hele kjøps- og salgsprosessen. Det starter med en verdivurdering.
Unngå doble boligrenter
Vi tilbyr gunstig forsikring.
Vurderer du utleie?
Få et tilbud fra Utleie KrogsveenHva koster lånet?
Sjekk estimert lånekostnadVil du varsles om lignende boliger?
Ved å lagre ditt boligsøk hos oss får du beskjed når vi har en bolig som ligner denne, før den legges ut på markedet!
På flyttefot? Slik gjør vi det enklere for deg
Skreddersydd flyttepakke
Vi fikser håndverkere, vask, pakking, lagring og transport, og legger ut for utgiftene underveis.
Hjelp med både kjøp og salg
Hos oss har du din egen rådgiver gjennom hele kjøps- og salgsprosessen.
Hjelp til finansiering
Vårt samarbeid med BN Bank sikrer deg rask og løsningsorientert hjelp, til konkurransedyktige betingelser.

