Maridalsveien 50A
5 890 000 kr
57 m²
2 soverom
Komplett salgsoppgave

Ila/Kiellands plass
Klassisk 3-roms i rolig sidegate med gjennomgående planløsning - Peis - Frodig bakgård - Sentralt men tilbaketrukket
Prisantydning
5 890 000 krAndel fellesgjeld
64 634 krOmkostninger
19 446 krTotalpris
5 974 080 kr
Pris
Bruksareal
78 m²BRA-I (internt bruksareal)
57 m²BRA-E (eksternt bruksareal)
21 m²
Areal
Etasje
1Byggeår
1889Soverom
2 soveromBad
1 badType
AndelsleilighetEierform
AndelFellesutgifter
4 707 krEnergimerke
Rød G
Nøkkelinfo
Unngå doble boligrenter
Vi tilbyr gunstig forsikring.
Vurderer du utleie?
Få et tilbud fra Utleie KrogsveenHva koster lånet?
Sjekk estimert lånekostnadBeskrivelse
Kort om eiendommen
Velkommen til Maridalsveien 50A!
En lekker og stilsikker leilighet i ettertraktet nabolag. Lys og gjennomgående 3-roms med god planløsning og klassisk særpreg. Her bor du tilbaketrukket til, men likevel med nærhet til alt den spennende bydelen har å tilby, og ikke minst meget gode kollektivforbindelser til alle retninger av byen.
Høydepunkter:
- Lun peisovn i stue
- God takhøyde på 2.98m
- Tv inkl. i fellesutg.
- Delikat baderom oppgradert med nye fliser og innredning i 2023
- Godt med oppbevaringsplass i fire boder
- Veldrevet borettslag med god vedlikeholdshistorikk
- Hyggelig opparbeidet bakgård
- To romslige soverom - ypperlig for kjøp sammen eller leie ut et rom
- Mulighet for p-leie i Kiellands hus
- Bredt servicetilbud i nabolaget
- Gode kollektivforbindelser like utenfor døren
Innhold og byggemåte
Innhold og byggemåte
Eiendommen
Maridalsveien 50A, 0174 OSLO
Kommunenummer 301, gårdsnummer 219, bruksnummer 152, ideell andel 1/1
Andelsnummer 1, Maridalsveien 50 BRL, organisasjonsnummer 952936948
Innhold
Totalt bruksareal BRA: 78 kvm
BRA-i:
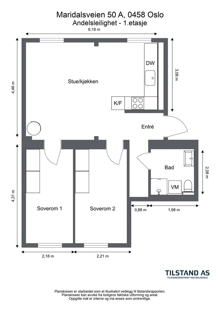
1. etasje 57 kvm: Entré, gang, bad, to soverom og stue med åpen kjøkkenløsning.
BRA-e:
Kjeller: 15 kvm: To kjellerboder
1. etasje 1 kvm: Bod i trappeløpet
4. etasje 5 kvm: Loftsbod
Boligen disponerer 4 boder, to separate boder i kjelleren på henholdsvis 6 m2 og 9 m2, trappebod og en loftsbod. Loftsboden har et gulvareal på 7 m2 (GUA), men på grunn av skråtak/lav himlingshøyde (ALH) i deler av boden er kun 5 m2 måleverdig som bruksareal (BRA-e). Det gjøres oppmerksom på at boligens eksterne boder tilhører borettslagets fellesareal, og at boden således ikke eies av den enkelte andelseier.
Vedlagte plantegninger er ikke målbare. De oppgitte arealer er hentet fra rapport med befaringsdato 11.02.2026 utført av Tilstand AS. Arealene er beregnet og rom er definert etter dagens faktiske bruk, uavhengig av hva som er godkjent av bygningsmyndighetene.
Byggemåte
Selger har fått utarbeidet en tilstandsrapport, dvs. en teknisk gjennomgang av boligen hvor eventuelle avvik, risiko for kjøper og prisoverslag for hva som bør gjøres av oppgradering, er skissert. Se særskilt TG2 som viser hva som er boligens normale slitasje, alder og type, hva som er avvik fra dette og hva som bør/må utbedres. Rapporten og selgers egenerklæring er en del av salgsoppgaven og må leses nøye før bud inngis. Kjøper overtar ansvaret for de opplysninger som fremkommer av salgsdokumentasjonen, og kan ikke gjøre gjeldende som mangel noe som burde vært kjent eller som ikke kan anses å ha betydning for avtalen.
Andelsleilighet tilhørende Borettslaget Maridalsveien 50, beliggende i bydel Sagene i Oslo kommune. Boligbygg fra 1889 over tre etasjer samt loft og kjeller. Bygningen har støpt gulv av betong. Etasjeskiller og bærende konstruksjoner av mur og treverk. Yttervegger utvendig forblendet med mur og pussede flater. Yttertak av trekonstruksjoner i saltaksform, utvendig tekket med plater (taket er ikke besiktiget). Leiligheten har profilert entrédør med sikkerhetslås, brannklasse B30 og lydklasse 35db. Vinduer med karmer av tre og 2-lags glass fra 1983. Les for øvrig mer om byggemåte og den tekniske tilstanden i rapporten.
Det gjøres spesielt oppmerksom på:
Tilstandsgrad 2 (TG2):
- Våtrom/bad: Membran/tettesjikt: Det foreligger ingen dokumentasjon vedrørende alderen på våtrommets membran/tettesjikt eller hvordan dette er utført. Basert på hva som er synlig og tilgjengelig for inspeksjon, herunder utførelse i sluk, vurderes tettesjiktet å ha en alder som sannsynligvis overstiger 20 år med god margin.
- Våtrom/bad: Sanitærutstyr, armaturer og innredning: Det er ikke synlig dreneringsmulighet fra den innebygde sisternekassen.
- Våtrom/bad: Dør/vindu i våtsone: Døren inn til badet er av treverk og er plassert i det som regnes som våtsonen. Bruk av fuktømfintlige materialer i våtsone innebærer alltid en økt risiko for utvikling av fuktskade.
- Kjøkken: Avtrekk: Kjøkkenet er utstyrt med vegghengt ventilator med kullfilter. Kullfilter har evne til å redusere matos og lukt, men har ikke evne til å føre fuktig vanndamp ut av rommet.
- Kjøkken: Annet: Det er ikke registrert automatisk lekkasjevarsler på kjøkkenet.
- Øvrige rom: Overflate gulv: Det er registrert stedvis slitasje i gulvoverflatene, med hakk, merker og riper.
- Øvrige rom: Ventilasjon i rom for varig opphold: Det er ikke registrert etablerte tillufts- eller avtrekksløsninger i rom for varig opphold, herunder stue/kjøkken, soverom 1 og soverom 2. Det er kun naturlig ventilasjon og er i hovedsak avhengig av aktiv lufting gjennom vinduer.
- Etasjeskiller og gulv på grunn: Det er registrert skjevheter i etasjeskillet ved måling med nivålaser. Bes merke at bygget er oppført mot slutten av 1800-tallet med etasjeskille av trekonstruksjoner. Skjevheter i etasjeskiller er ikke uvanlig i eldre bygninger av denne typen.
- Tekniske anlegg: Vannledninger: Det er registrert synlige vannledninger av kobber på bad og kjøkken. Vannledningene er eldre.
- Tekniske anlegg: Varmtvannsbereder: Leiligheten har to varmtvannsberedere. Det er installert en mindre benkbereder under oppvaskkum på kjøkkenet. Denne er datostemplet 1996 og har dermed overskredet forventet brukstid (på ca. 20 år). Det er installert en varmtvannsbereder over nedsenket himling i gangen utenfor badet, med tilkomst via inspeksjonsluke. På grunn av begrenset inspeksjonsmulighet var det ikke mulig å verifisere alder eller størrelse (antall liter). Plasseringen over nedsenket himling er uheldig med hensyn til lekkasjesikkerhet, da berederen ikke er plassert i rom med sluk.
- Vinduene er fra 1983 og har dermed en høy alder, som tilsier at forventet teknisk levetid er overskredet eller nær utløp. Det er registrert langt fremskreden slitasje på utvendige vinduskarmer, herunder oppsprekking i treverk og avflassing av maling. Enkelte vinduer fremstår også som tunge å åpne.
Tilstandsrapporten er inntatt i salgsoppgaven. Rapporten inneholder informasjon om avvikene og konsekvensen av disse. Ettersom kjøper regnes å være kjent med forhold som tydelig fremgår av tilstandsrapporten, oppfordres du til å sette deg grundig inn i rapporten i sin helhet.
Sammendrag av selgers egenerklæring:
Er det utført arbeid på bad, vaskerom eller toalettrom? - "Ja."
Fortell kort hva som ble gjort av faglærte. - "Nye fliser på baderomsgulvet + nytt inventar i 2023. Utført av Grundt Entreprenør AS."
Har du dokumentasjon på arbeidet? - "Ja."
Fortell kort hva som ble gjort av faglærte. - "Vennetjeneste av en elektriker i 2023, så det foreligger ingen dokumentasjon."
Har du dokumentasjon på arbeidet? - "Nei."
Har sameiet eller borettslaget hatt problemer med fukt, vann eller oversvømmelse i kjeller eller underetasje? - "Ja. Lekkasje på hovedvannrøret i Maridalsveien februar 2021, kjelleren ble fylt med vann. Brannvesenet var raskt på plass å fikk pumpet ut. Ny ventilasjonsanlegg installert i 2025."
Er det observert vann eller fukt i kjeller, krypkjeller eller underetasje? - "Ja."
Beskriv omfanget. - "I etterkant av vannlekkasje har det vært antydninger til fukt. Nytt ventilasjonssystem skal ha blitt montert via styret i 2025."
Har det vært skadedyr i boligen eller andre bygninger på eiendommen? - "Ja."
Hva slags skadedyr og hva var omfanget? - "Skjeggkre oppdaget i en leilighet i 3 etg. i 2021. Feller ble satt ut i alle etasjer, men ingen oppdaget utover leiligheten som varslet."
Er sameiet eller borettslaget er involvert i konflikter av noe slag? - "Ja."
Fortell om konflikten og partene slik du har forstått det. - "Det er et ønske om likere fordeling av bodareal blant noen eiere i borettslaget. I forrige generalforsamling hadde styret et forslag som ble nedstemt, men det ble en enighet om at man skal se videre på saken. Det er en enighet om at ingen andelseiere skal få mindre total bodplass, men eventuelt ta i bruk fellesareal for å jevne ut forskjeller og omfordele/bygge om nåværende. Vår andel er 1 av 3 enheter med større andel bodplass."
Standard
Entré:
Innbydende entré med god plass til klesoppheng og oppbevaring av sko i praktisk nisje. Det er adkomst via felles trappeoppgang, og gjester slippes inn via dørcalling. Sikringsskap er plassert i oppgangen, og er utstyrt med automatsikringer.
Stue:
Et romslig oppholdsrom med god plass til sofagruppe og tilhørende møblement. God takhøyde på ca.2.98m er med på å gi en særdeles god romfølelse, og sammen med store vindusflater får man et flott lysinnslipp. Lekkert 1-stavs parkettgulv i stuen som også går igjen i entréen. Stuen er videre utstyrt med en peis som kommer godt med på kalde høst/vinter dager. Nymalt kontrastvegg gir stuen et stilig særpreg.
Kjøkken:
Åpen kjøkkenløsning med innredning med hvite fronter, håndtak i stål og laminat benkeplate. Kjøkkenet er videre utstyrt med integrert platetopp tilknyttet komfyrvakt, stekeovn, samt frittstående oppvaskmaskin og kjøl/frys. Rikelig med skap og benkeplass er med på å gjøre matlagingen til en glede. Kullfiltervifte over platetoppen og stålkum og ett-greps blandebatteri. Varmtvannsbereder til kjøkkenet på ca. 30 liter er plassert i benkeskap på kjøkkenet. Egen varmtvannsbereder for bad.
Soverom:
Leiligheten kan skilte med to romslige soverom. Soverommene er like store, med originalt furugulv. Her er det god plass til full dobbeltseng og godt med garderobeplass på begge rom. Ypperlig bolig for to som kjøper sammen, eller som ønsker å leie ut et rom for lavere bokostnader. Begge soverommene har store vindusflater som gir rikelig med naturlig lys, god takhøyde og ligger tilbaketrukket til med beliggenhet mot rolig sidegate
Bad:
Lyst baderom, overflateoppusset med nye fliser på gulv (flis på flis) og ny innredning i 2023. Det er våtromspanel på veggene fra 2014. Badet er innredet med veggmontert toalett tilkoblet innebygd sisterne, servant innredning med to skuffer med ovenpåliggende vask og speilskap. Videre er det egen dusjnisje med innfellbare dusjdører og armatur som er tilkoblet både hånd- og regndusj. Det er opplegg for vaskemaskin. Varmtvannsbereder til badet er plassert over himlingen i gangen utenfor badet.
Øvrig:
Gulv: Gulvflater belagt med parkett og gulvbord av heltre. Gulvfliser på bad.
Vegger: Vegger av malte, slette flater, malt strietapet og malt panel. Våtromspanel (flisimitasjon) på baderomsvegger.
Himling: Himlinger av malte slette flater og malte himlingsplater.
Takhøyde: Entré: 2,98 meter, Bad: 2,29 meter, Soverom 1: 3,00 meter, Soverom 2: 3,01 meter, Stue/kjøkken: 2,96 meter
Løsøre og tilbehør
Vi viser til liste fra Norges Eiendomsmeglerforbund som gjelder fra 01.01.2020 angående løsøre og tilbehør.
Følger med: Kjøleskap, oppvaskmaskin, stekeovn.
Oppvarming
Leiligheten er oppvarmet med elektriske varmekabler i gulv på bad, vegghengte panelovner og en peisovn i stue.
Dersom beboelsesrom ikke har vegg- eller fastmonterte varmekilder ved visning, følger dette heller ikke med.
Selger har avtalt Norgespris på strøm på eiendommen for perioden 01.01.2026-31.12.2026, og denne er pt på 50 øre inkl mva. Nettleie, avgifter og påslag fra kraftleverandøren kommer i tillegg. Er det fjernvarme vil det også komme kostnader i tillegg.
Denne avtalen vil følge eiendommen i den avtalte perioden.
Les mer om Norgespris her: https://www.regjeringen.no/no/aktuelt/legg-fram-lov-om-norgespris-pa-straum-og-fjernvarme/id3102642/
Ferdigattest/brukstillatelse
Eiendommen har vært brukt til boligformål siden 1889.
Kommunen opplyser at det ikke foreligger ferdigattest eller midlertidig brukstillatelse for eiendommen. Det finnes av den grunn ikke dokumentasjon over eiendommens lovlighet. Det foreligger en attestert bygningsanmeldelse for våningshus datert 27.10.1890. Videre foreligger det et attestert ekspedisjonsdokument vedrørende tilbygg for klosetter datert 24.08.1949.
Det gjøres oppmerksom på at det ikke lenger utstedes ferdigattest på tiltak det er søkt om før 1998 jf. plan- og bygningsloven § 21-10. Kommunen vil ikke kreve ferdigattest for disse tiltakene og vil avvise eventuelle søknader. Bestemmelsen innebærer ikke at tiltak med manglende søknad blir lovlige, men at man ikke trenger å avslutte gamle byggesaker. Normalt sett kreves ferdigattest for alle søknadspliktige tiltak som gjøres etter plan- og bygningsloven.
Det foreligger ferdigattest for brannalarmanlegg, datert 20.09.2018.
I henhold til de originale byggetegningene datert 1889 er leilighetens utforming annerledes enn slik den fremstår i dag. Bygården hadde opprinnelig ikke bad/WC, men dette er etablert i ettertid ved å legge til areal til leiligheten. Det foreligger ferdigattest for innredning av bad og WC, samt utskifting av vinduer, datert 24.09.1984 med tilhørende byggetegninger datert 07.02.1982.
Sammenlignet med byggetegninger datert 07.02.1982, er det observert følgende endringer:
- Veggen mellom soverommet, kjøkkenet og entréen er åpnet opp for å skape en åpen stue- og kjøkkenløsning.
- Soverommene er flyttet til der hvor stuen opprinnelig var.
- Badets utforming er endret og blitt mindre enn det opprinnelig var. Veggen mellom badet og stuen er revet og ny vegg er satt opp. Det er etablert ny inngang til badet.
Kjøper overtar eiendommen slik den fremstår på visning.
Tinglyste heftelser og rettigheter
Utover andel fellesgjeld overdras leiligheten fri for pengeheftelser.
Borettslaget har legalpant for forfalte felleskostnader og andre krav som følger av borettslagsforholdet iht. burettslagsloven § 5-20. Pantet er begrenset oppad til 2G (G = folketrygdens grunnbeløp).
Det er tinglyst 1 servitutt på borettslagets eiendom. Denne omhandler blant annet bestemmelse om bebyggelse.
Servituttene vil følge eiendommen. Kjøpers bank vil få prioritet etter ovennevnte heftelser og servitutter.
Eventuell adgang til utleie
Andelseier kan ikke uten samtykke fra styret i borettslaget overlate bruken av boligen til andre. Med samtykke kan andelseier overlate boligen til andre i inntil tre år hvis andelseier har bodd i boligen i minst ett av de to siste år. Utleie i andre tilfeller kan godtas ved særlige grunner, jf. burettslagslova § 5-6. Utleie forutsetter at leiligheten har forsvarlige radonverdier. Se også borettslagets vedtekter og konferer megler ved spørsmål. Det er ikke tiltatt å leie ut sin bolig via korttidsutleie for mer enn 30 dager pr år.
Beliggenhet og tomteforhold
Beliggenhet og tomteforhold
Beliggenhet
Leiligheten har en sentral og attraktiv beliggenhet på Alexander Kiellands plass rett ved Akerselva.
Kun få meter fra leiligheten finnes det mange hyggelige kaféer og restauranter med uteservering, nærbutikker og treningssentre. Her bor du i et matmekka med alt fra Åpent bakeri Tranen, Lofthus Samvirkelag med byens beste Pizza og Mathallen i kort gåavstand. I tillegg er du omringet av byens beste kaffebarer med både Java, Supreme Roastworks og Tim Wendelboe like i nærheten. Rett ved leiligheten finner du Kiellands Hus Senter hvor du finner blant annet Coop, apotek og vinmonopol. Videre ligger det døgnåpen Matkroken ca. 100m fra boligen.
I tillegg til de servicetilbud man finner i umiddelbar nærhet, kan man velge å bevege seg vestover mot St. Hanshaugen som byr på flere spennende forretninger og hyggelig parkliv. Vender man heller nesa østover kommer man til Grünerløkka som byr på et pulserende liv med utallige kaféer, restauranter og butikker. Gangavstand også til Sagene, Torshov og sentrum med alle byens fasiliteter. Kort vei til Majorstuen med eksklusive butikker, utesteder med mer.
Av treningssentre kan man velge mellom blant annet Athletica (Vulkan), SATS (Ringnes Park og Ila), Fresh Fitness (St. Hanshaugen) og Indah Yoga. Leiligheten ligger rett ved idylliske Akerselva. Herfra har man adkomst til flott turvei langs elven som strekker seg fra Maridalen i nord og helt til Bjørvika og Sentrum i sør. For trening innendørs er det også et godt utvalg av ulike treningssentre i nabolaget.
Det er også gangavstand til utdanningsinstitusjoner som AHO, KhiO, Westerdals og kun en kort busstur unna Handelshøyskolen BI, Universitetet i Oslo, Tannlegehøyskolen, Oslo MET med flere.
Svært godt kollektivtilbud i umiddelbar nærhet (21-, 33-, 54- og 34-bussen). Disse tar deg effektivt til Aker Brygge/ Tjuvholmen, sentrum eller marka. I tillegg er det få minutters gange til trikkeholdeplass (linje 11, 12 og 18)
Adkomst
Adkomst fra Maridalsveien. Det vil bli skiltet med Krogsveen visningsskilt ved fellesvisninger.
Barnehager, skoler og fritid
Informasjon om tilhørende skolekretser er hentet fra Prognosesenteret som dataleverandør, og tilhørigheten kan årlig endres av kommunen. Dersom skole- og barnehagetilbud er av betydning for kjøpet, ber vi om at det rettes en særskilt henvendelse til kommunen/bydelsadministrasjonen for oppdatert informasjon.
Beskrivelse av tomt
Eiertomt på 436 kvm som tilhører borettslaget. Hyggelig liten opparbeidet felles bakgård med blant annet internstier, sittegrupper, plenarealer og beplantning.
Parkering
Mulighet for leie av parkeringsplass like ved i Kiellands hus. Det er pr. 14.03 ledige plasser for leie. Månedlig leie kr. 2.235,-.
Se Aimo park sine sider for mer informasjon: https://aimopark-permit.giantleap.no/user/embedded/shop/shop/select-product?facilityId=8043
Det er innført beboerparkering i dette området (indre by). Dette betyr at du kan parkere fritt døgnet rundt på parkeringsplassene regulert til beboerparkering i området rundt din bolig for kun kr. 3.850- pr. år for fossile biler, dieselbil, hybridbil, ladbar hybrid.
Har du el-bil så betaler du kr. 1.300,- pr år, hydrogenbil og el-varebil er gratis.
Motorsykkel og moped kr 1.925,- pr år.
El-motorsykkel og el-moped kr 650,- pr år.
Se Oslo kommune sine nettsider for mer informasjon og priser for ytre by.
Vei, vann og avløp
Eiendommen har adkomst via kommunal vei.
Eiendommen er tilknyttet kommunalt ledningsnett via private stikkledninger. Borettslaget er ansvarlig for private stikkledninger til bygningen.
Regulerings-og arealplaner
Eiendommen er regulert til spesialområde bevaring bolig i henhold til reguleringsplan S-2521 datert 19.02.1981 med tilhørende reguleringsbestemmelser. Området blir berørt av kommuneplanens arealdel fra 2015: «Oslo mot 2030 - Smart, trygg og grønn». Ny kommuneplan «Oslo fram mot 2040: Variert boligbygging og styrking av det grønne» er under revidering, men er ikke endelig vedtatt. Denne planen får betydning for en rekke vedtatte reguleringsplaner i Oslo. Inntil ny arealdel er vedtatt, gjelder arealdelen fra 2015. Henviser til kommunens nettsider for ytterligere informasjon: https://www.oslo.kommune.no/politikk-og-administrasjon/politikk/kommuneplan/. Utsnitt av plan med tilhørende bestemmelser kan fås ved henvendelse til megler.
Eiendommen er verneverdig da den står oppført på Byantikvarens Gule Liste. Dette kan medføre at større endringer av bygningen må godkjennes av kommunen eller fylket før igangsetting.
Pågående byggesaker:
Maridalsveien 50 A - Oppføring av balkong. Saksnummer 202507526. - Gjelder balkong i 2.etg i andre enden av oppgangen.
Maridalsveien 52 - Oppføring av fire balkonger. Saksnummer 202522115.
Maridalsveien 47 A - Bruksendring av butikkareal i 1. etasje til en boenhet. Saksnummer 202508923.
Kingos gate 4 - Forhåndskonferanse - Gjenoppbygging av bygg etter brann. Saksnummer 202510672
Det kan påregnes støy, ulemper og/eller endringer i omgivelsene ved ovennevnte plan- og byggesaker.
Opplistingen er ikke uttømmende og interessenter oppfordres til å sette seg inn i reguleringsplaner for området. For flere byggesaker og informasjon i området, gå inn på Oslo kommune, plan og bygg sine nettsider: https://od2.pbe.oslo.kommune.no/kart/.
Økonomi
Økonomi
Boligens kostnader
Felleskostnadene er kr 4 707,- pr. mnd. og inkluderer: Kabel-tv, felles bygningsforsikring, trappevask, kommunale avgifter, betjening av fellesgjeld, forretningsførsel og revisjon, m.m.
Felleskostnadene justeres normalt en til to ganger årlig i forhold til borettslagets faktiske utgifter og ble sist justert 01.01.2026.
Felleskostnadene fordeles slik:
Renter og avdrag kr 610,-
Felleskostnader kr 4 097,-
Boligen er tilknyttet Get (Telia) som leverandør av kabel-tv og er inkludert i felleskostnadene. Tv-tuner/dekoder medfølger ikke.
Tidligere eier har opplyst et strømforbruk som tilsvarer ca. kr 10.000,- pr. år. / 9.000 kwh. pr. år.
Utgiftene er basert på nåværende eiers forbruk. Kjøper må selv tegne innboforsikring.
Formuesverdi
Formuesverdi for 2024 var kr 1 443 271,- ifølge Skatteetaten. Beløpet forutsetter at eier bor fast i boligen (primærbolig).
Ved eventuell øvrig bruk av eiendommen (f.eks. fritidsbolig, pendlerbolig, utleieobjekt) var formuesverdien for 2024 kr 5 773 083,-.
Fra 2026 har Stortinget vedtatt en oppdatert modell for beregning av formuesverdi for primærbolig, så avvik kan forekomme.
For mer informasjon se skatteetaten.no
Opplysninger om fellesgjeld
Andel formue er kr 21 437,- pr. 31.12.2025
Andel fellesgjeld er kr 64 634,- pr. 09.02.2026
Total fellesgjeld for boligselskapet er kr 514 117,- pr. 09.02.2026 og lånevilkårene er:
Rentebetingelser: 5,25% pa.
Innfrielsesdato: 31.12.2037
Avdragsfrihet: Nei
Omkostninger
5 890 000,00 Prisantydning
64 634,00 Andel av fellesgjeld
--------------------------------------------------------
5 954 634,00 Pris inkl. fellesgjeld
Omkostninger
8 406,00 Forkjøpsrett - OBF (kjøper)
9 950,00 Gjensidige Boligkjøperpakke (valgfri)
545,00 Tinglysing hjemmel
545,00 Tinglysing panterettsdokument
--------------------------------------------------------
19 446,00 Omkostninger totalt
--------------------------------------------------------
5 974 080,00 Totalpris inkl. omkostninger
--------------------------------------------------------
Dersom kjøper ikke er medlem av boligbyggelaget, må det påregnes en innmeldingsavgift og årlig medlemsgebyr pr. ny andelseier. Dette faktureres direkte fra boligbyggelaget.
Dersom borettslaget har fellesgjeld, vil leilighetens andel av fellesgjelden komme i tillegg til kjøpesummen. Denne gjelden skal ikke innbetales i oppgjøret, men følger leiligheten.
Det tas forbehold om endringer i avgifter og gebyrer.
Tilbud om lånefinansiering
Megler formidler gjerne kontakt med rådgiver hos vår samarbeidspartner BN Bank. De har konkurransedyktige betingelser samt rask og løsningsorientert behandling av din lånesøknad. Krogsveen mottar et honorar dersom lån opprettes.
Betalingsbetingelser
Kjøpesum inkludert omkostninger, samt pantedokument tilknyttet eventuelt lån, skal være disponibelt hos megler 2 virkedager før overtagelsen.
Annen viktig informasjon
Annen viktig informasjon
Eier
Sigrid Oline Valstad Mathisen
Informasjon om borettslaget
Leiligheten er tilknyttet Maridalsveien 50 BRL.
Borettslaget består av 7 leiligheter.
Forretningsfører er Oslo og Omegn Boligforvaltning AS.
Dugnad må påregnes.
Borettslaget har renholdsavtale med Trappevask Service AS.
Dyrehold er tillatt såfremt det ikke er til sjenanse for øvrige beboere.
Foretatt påkostninger de senere år:
2023: Malt og utbedret murvegg.
2023: Generelt vedlikehold av bakgård.
2022: Utbedring murvegg mot nabo bakgård.
2022: Utbedring murvegg utvendig sykkelbod.
2022: Maling skillevegger av tre og murvegger bakgård.
2022: Ny elektrisk kabel til nymontert taklampe, vaskeri kjeller.
2022: Utbedret «løse ledninger « vegg hovedbygg og skillevegg montert inn til sykkelbod.
2022: Ny stikk kontakt med fuktsperre i sykkelbod.
2022: Reperasjon taklampe sykkelbod.
2021: Beskjæring av kirsebærtre i bakgården.
2021: Kontroll brannvarslingsanlegg Boligbrann AS.
2021:Reperasjon dørpumpe gatedør portrom.
2021: Det ble gjennomført tørking, sanering og rehabilitering av kjellerlokalet i borettslaget etter skader som følge av brudd på hovedvannledningen i Maridalsveien. Arbeidet ble finansiert og gjennomført av forsikringsselskap.
2020: Service/reparasjon ytterport. Utemøbler med nytt bord, samt vedlikehold av terasser.
2019: Murpuss overflatebehandling inngangsparti inne. Resten av vedlikeholdsbudsjett spart til 2020 for varmekabler i takrenner is-sikring.
2018: Vedlikehold vann og avløp, ny porttelefon, brannsikring i hht. gjeldende forskrifter (nytt brannvarsleranlegg + lås i portrom).
2016: Rehabilitering piper, rehabilitering mur mot Mariadalsveien 48.
2015: Utbedring uthus og mur mot nabo med nytt bjelkelag og takpapp.
2013: Utbedring av pipeløp og portrom.
2012: Oppussing oppgang, mur i bakgård, trådløse røykvarsler installert.
Planlagte påkostninger:
Iht. samtale med styret 10.03.2026 er det pt. ikke planlagt noe større vedlikehold i borettslaget som vil kreve låneopptak. Per dags dato gjøres det noen små utbedringer i loft og kjeller for å forbedre brannsikkerheten i bygget. Styreleder informerer at det er usikkert når tiltaket er ferdig. Det vil på et tidspunkt bli nødvendig å utbedre boddørene i trappeoppgangen. Tiltaket vil gjennomføres i løpet av 2026. Dette er iht. styret planlagt finansiert over vanlig drift.
Videre ble det fremmet et forslag på årsmøte i 2025 vedrørende fordeling av boder og bodareal. Dette ble ikke vedtatt på årsmøte i 2025, men det ble bred enighet om å diskutere saken videre om å utforme nye boder eller å endre på felleskostnadene for å utjevne forskjellene. Saken vil tas opp igjen på generalforsamling juli 2026.
I henhold til borettslagets vedtekter må kjøper godkjennes av styret som ny andelseier. Det er kjøpers ansvar at styregodkjenning blir gitt, men styret kan ikke nekte godkjenning uten saklig grunn.
Iht. burettslagslova kan man bare eie én andel i borettslaget. Kun fysiske personer kan være andelseiere.
Øvrige andelseiere i borettslaget og eventuelt medlemmer av boligbyggelaget har forkjøpsrett. Dersom boligen tas på forkjøpsrett løses kjøper fra avtalen.
Borettslag har anledning til å være tilknyttet et sikringsfond som dekker eventuelt manglende innbetaling av felleskostnader. Dette borettslaget er ikke tilknyttet et slikt fond, noe som vil kunne medføre en risiko for økte felleskostnader dersom andre andelseiere ikke betaler sine felleskostnader. Borettslaget har imidlertid legalpant i andelen, og manglende betaling av felleskostnader kan dermed tvangsinndrives av borettslaget.
Dokumenter for borettslaget kan fås ved henvendelse til megler.
Overtakelse
Etter nærmere avtale. Overtakelse kan tidligst skje etter at forkjøpsretten for øvrige andelseiere i borettslaget og eventuelt medlemmer av boligbyggelaget er avklart, samt at styrets godkjennelse er avklart.
Boligselgerforsikring
Selger har i forbindelse med salget tegnet boligselgerforsikring levert av Gjensidige.
Boligselgerforsikringen dekker selgers ansvar etter avhendingsloven begrenset oppad til kr 14 millioner. Dersom kjøper oppdager forhold ved eiendommen som hen mener utgjør en mangel ved eiendommen, vil Gjensidige behandle reklamasjonen på vegne av selger. Forsikringsvilkår kan fås ved henvendelse til megler.
Vedlagt salgsoppgaven følger selgers egenerklæringsskjema og tilstandsrapport. Interessenter må sette seg inn i dokumentene før bud inngis.
Boligkjøperforsikring
Innen kontraktsmøtet må kjøper ta stilling til om det ønskes å bestille Boligkjøperpakken gjennom Gjensidige. I denne gunstige pakken er boligen ferdig forsikret og inkluderer rettshjelpsforsikring, også kalt Boligkjøperforsikring. Rettshjelpsforsikring gir trygghet og tilgang på profesjonell juridisk hjelp dersom det oppdages uventede feil eller mangler det første året etter overtagelse. Forsikringsselskapet behandler i så fall ethvert mangelskrav kjøper måtte ha overfor selger.
Boligkjøperpakken inkluderer bygningsforsikring for hus og hytte, innboforsikring, flytteforsikring og dobbel rentedekning - i situasjoner hvor kjøper ikke får solgt nåværende primærbolig.
Kjøper mottar ingen særskilt faktura for Boligkjøperpakken da kostnaden det første året legges til kjøpesummen for boligen. Det gjøres oppmerksom på Krogsveen mottar et honorar for denne formidlingen.
Produktark for Boligkjøperpakken ligger vedlagt i salgsoppgaven.
Dersom ikke boligkjøperpakke ønskes kan kun rettshjelpsforsikring, også kalt boligkjøperforsikring, tegnes særskilt via megler. Rettshjelpsforsikringen varer i 5 år fra overtagelse og leveres gjennom Gjensidige. Ta kontakt med megler for ytterligere informasjon.
Selskap og privatpersoner som driver med kjøp/salg/utvikling som ledd i egen næringsvirksomhet kan ikke tegne boligkjøperpakke eller rettshjelpsforsikring.
Budgivning
Forbrukerinformasjon om budgivning er vedlagt denne salgsoppgaven og er også på vår hjemmeside Krogsveen.no. Alle bud og budforhøyelser må inngis skriftlig. I tillegg må legitimasjon være fremlagt sammen med signatur fra budgiver.
Vi oppfordrer til å gi bud elektronisk via GI BUD-knappen på eiendommens hjemmeside på Krogsveen.no. Da vil samtlige vilkår bli oppfylt.
Eventuelle forhøyelser eller endringer av budet kan bekreftes pr SMS eller på e-post. Vi oppfordrer alltid til å kontakte megler pr. telefon i tillegg da forsinkelser i SMS og e-post kan forekomme.
For at budene skal kunne bli behandlet og videreformidlet skriftlig til alle involverte parter, må alle bud ha en tilstrekkelig lang akseptfrist, jf. eiendomsmeglingsforskriften § 6-3.
Selger må også skriftlig akseptere budet før aksept kan formidles til budgiver. Akseptfrist bør derfor være på minimum 30 minutter, og budforhøyelser må derfor skje i god tid før fristens utløp.
Bud i forbrukerforhold kan uansett ikke settes med kortere frist enn kl. 12.00 første virkedag etter siste annonserte visning. I tillegg kan ikke budet ha forbehold om at det skal holdes hemmelig ovenfor øvrige interessenter. Megler har iht lov om eiendomsmegling ikke anledning til å videreformidle disse budene, og de vil dermed heller ikke bli journalført.
Etter at eiendommen er solgt vil kjøper og selger få tilsendt budjournal. Øvrige budgivere kan få utlevert kopi av budjournalen i anonymisert form.
Hvitvaskingsreglene
I henhold til lov om hvitvasking og terrorfinansiering har megler plikt til å gjennomføre kontrolltiltak overfor kunder, herunder fullmektiger. Dette innebærer bl.a. å bekrefte kunders og reelle rettighetshaveres identitet på bakgrunn av fremvist gyldig legitimasjon eller på annen godkjent måte, samt å innhente opplysninger om kundeforholdets formål og tilsiktede art.
Dersom slike kundetiltak ikke kan gjennomføres, kan megler ikke etablere kundeforholdet eller utføre transaksjonen.
Hvis kjøper ikke bidrar til gjennomføring av kundekontrollen og dette fører til at transaksjonen blir forsinket eller ikke kan gjennomføres, vil dette ansees som mislighold av avtalen og gi selger rettigheter etter avhendingslova kapittel 5. I tilfeller der selger ikke bidrar til gjennomføring av løpende kundekontroll underveis i oppdraget, er det selger som misligholder sine forpliktelser etter avtalen og gi kjøper rettigheter etter avhendingslovens kapittel 4. Partene er selv ansvarlige for eventuelle kostnader og ansvar dette kan medføre. Eiendomsmegleren eller eiendomsmeglingsforetaket kan ikke holdes ansvarlig for de konsekvenser dette vil kunne få for partene eller andre som har interesser i eiendomshandelen.
Kjøper oppfordres til å innbetale kjøpesummen som ikke kommer fra låneinstitusjon i én samlet innbetaling fra egen konto i norsk bank. Megler har plikt til å melde fra til Økokrim om eiendomshandler som fremstår som mistenkelige. Melding sendes Økokrim uten at partene varsles.
Personopplysningsloven
I henhold til personopplysningsloven gjør vi oppmerksom på at interessenter kan bli registrert for videre oppfølging.
Lovanvendelse
Generelle bestemmelser
Salgsoppgaven er basert på de opplysningene selger har gitt til megler, den bygningssakyndiges tilstandsrapport, samt opplysninger innhentet fra kommunen, Kartverket og andre tilgjengelige kilder. Det er viktig at kjøper setter seg grundig inn i alle salgsdokumentene, herunder salgsoppgave, tilstandsrapport og selgers egenerklæring. Kjøper anses kjent med forhold som er tydelig beskrevet i salgsdokumentene, og slike forhold kan ikke påberopes som mangler. Dette gjelder uavhengig av om kjøper har lest dokumentene. Alle interessenter oppfordres til å undersøke eiendommen nøye, gjerne sammen med fagkyndig før bud inngis. Kjøper som velger å kjøpe usett kan ikke gjøre gjeldende som mangel noe han burde blitt kjent med ved undersøkelsen.
Dersom det er behov for avklaringer, anbefaler vi at interessenter rådfører seg med eiendomsmegler eller egne rådgivere før det legges inn bud.
En bolig som har blitt brukt i en viss tid, har vanligvis blitt utsatt for slitasje og skader kan ha oppstått. Slik bruksslitasje må kjøper regne med, og det kan avdekkes enkelte forhold etter overtakelse som nødvendiggjør utbedringer. Normal slitasje og skader som nødvendiggjør utbedring, er innenfor hva kjøper må forvente og vil ikke utgjøre en mangel.
Kjøper og selgers rettigheter og plikter reguleres av avtalen mellom partene, samt informasjonen som har vært tilgjengelig for kjøperen i forbindelse med handelen. Avtalen utfylles av avhendingsloven, og det gjelder ulike avtalevilkår avhengig av om kjøper er forbrukerkjøper eller ikke. Dette er nærmere beskrevet nedenfor.
På grunn av ulike avtalevilkår kan selger vurdere bud fra en som ikke er forbruker, ulikt fra en forbrukers bud. Dersom kjøper ikke er forbruker, er selger sitt mulige mangelsansvar begrenset fordi eiendommen selges "som den er". Selger kan ikke ta «som den er»- forbehold overfor en forbrukerkjøper. Selv et lavere bud fra en som ikke er forbruker kan foretrekkes fordi begrensningen i mulig mangelsansvar kan ha egenverdi for selger. Selger står fritt til å forkaste eller akseptere ethvert bud, og er for eksempel ikke forpliktet til å akseptere høyeste bud.
Budgiver skal i budskjema avgi egenerklæring om budgiver er forbruker eller næringsdrivende/ person som hovedsakelig handler som ledd i næringsvirksomhet. Budgivere får informasjon dersom andre bud er inngitt av en som ikke er forbruker.
Forbrukerkjøp - definisjon
Med forbrukerkjøp menes kjøp av eiendom når kjøperen er en fysisk person som ikke hovedsakelig handler som ledd i næringsvirksomhet.
Forbruker – avtalevilkår
Eiendommen har en mangel dersom den ikke er i samsvar med kravene som følger av avtalen, eller det foreligger brudd på bestemmelsene i avhendingsloven §§ 3-2 til 3-8. Hvis eiendommen ikke er i samsvar med det kjøperen må kunne forvente ut ifra alder, type og synlig tilstand, kan det være grunnlag for mangelskrav. Det samme gjelder hvis det er holdt tilbake eller gitt uriktige opplysninger om eiendommen. Dette gjelder likevel bare dersom man kan gå ut ifra at det virket inn på avtalen at opplysningen ikke ble gitt eller at mangelskravet ikke blir rettet i tide på en tydelig måte.
Boligen kan ha en mangel etter avhendingsloven § 3-3 andre ledd, dersom det er avvik mellom opplyst og faktisk innvendig areal, forutsatt at avviket er på 2% eller mer og minimum 1 kvm.
Ved beregning av et eventuelt prisavslag eller erstatning må kjøper selv dekke tap/kostnader opptil et beløp på kr 10 000 (egenandel).
Ikke-forbruker (næringsdrivende) – definisjon
Hvis kjøper er en juridisk person, eller en fysisk person som hovedsakelig handler som ledd i næringsvirksomhet, vil kjøpet ikke anses som et forbrukerkjøp.
Ikke-forbruker – avtalevilkår
Eiendommen har en mangel dersom den ikke er i samsvar med kravene som følger av avtalen.
Eiendommen selges «som den er», og selgers ansvar utover det konkret avtalte er da begrenset etter avhendingsloven § 3-9, første ledd andre setning.
Avhendingsloven § 3-3 andre ledd fravikes, og hvorvidt boligens arealsvikt utgjør en mangel vurderes etter avhendingsloven § 3-8.
Informasjon om kjøpers undersøkelsesplikt, herunder oppfordringen om å undersøke eiendommen nøye, gjelder også for kjøpere som ikke anses som forbrukere.
Det forutsettes at hjemmel overføres til kjøper. Hvis kjøper ikke ønsker hjemmelsoverføring av eiendommen, må det tas forbehold om dette i budet.
Meglers vederlag
Meglers vederlag betales av selger og er avtalt til:
Vederlag: 0,90 % av salgssummen inkl. eventuell fellesgjeld.
Vederlag:
Kontroll av hjemmel og heftelser kr 2 900,-
Markedsføringspakke kr 30 900,-
Oppgjør kr 8 900,-
Tilrettelegging kr 17 000,-
Visninger pr stk / Overtagelse kr 3 900,-
Utlegg:
Eierskiftegebyr forretningsfører - OBF kr 6 725,-
Innhenting av informasjon forretningsfører - OBF kr 4 382,-
Tinglysing sikring kr 545,-
Andre utgifter:
Foto kr 3 900,-
Tilstandsrapport kr 8 990,-
Vi er opptatt av verdiskapning, og har knyttet til oss samarbeidspartnere som skal sikre våre kunder de beste produkter og tjenester;
• I forbindelse med forberedelse av salget, innhenter vi informasjon om eiendommen hovedsakelig fra vår samarbeidspartner Amibita.
• Gjensidige leverer boligselgerforsikring og tilbyr bygningsforsikring
• Boligkjøperforsikring leveres av Hiscox og med Sedgwick som skadebehandler, og er formidlet gjennom Gjensidige.
• BN bank tilbyr finansieringsløsninger
• Vår avdeling Krogsveen Pluss tilbyr flyttetjenester som utvask, visningsvask, lager, tømming og transport av flyttelass, i tillegg til å formidle kontakt med Flip for overflateoppussing.
• I forbindelse med overtagelse av eiendommen tilbyr Overo avtale om strøm, alarm og bredbånd.
• Krogsveen er, sammen med øvrige bransjeaktører, medeier i Bomega AS som tilbyr den digitale annonseringsplattformen Hjem.
Opplysninger om oppdraget
Oppdragsnummer 40-0024/26
Eiendomsmegler Krogsveen AS, avd. Majorstuen og Oslo Vest
Hegdehaugsveien 31, 0352, OSLO
950 007 613
Oppdragets KR-kode KR40.2624
Dato
Sist oppdatert: 15. mars 2026 kl. 13:17
Dokumenter
Dokumenter
PDF – 941 KB
PDF – 575 KB
PDF – 117 KB
PDF – 168 KB
PDF – 312 KB
PDF – 29 KB
PDF – 127 KB
PDF – 392 KB
Område
Legg til steder som er viktige for deg
Visning
Unngå doble boligrenter
Vi tilbyr gunstig forsikring.
Vurderer du utleie?
Få et tilbud fra Utleie KrogsveenHva koster lånet?
Sjekk estimert lånekostnadVil du varsles om lignende boliger?
Ved å lagre ditt boligsøk hos oss får du beskjed når vi har en bolig som ligner denne, før den legges ut på markedet!

