Sandmyrvegen 41
3 490 000 kr
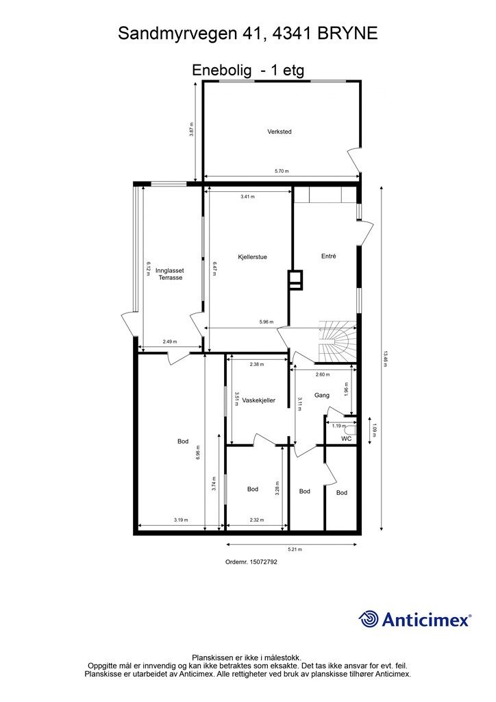
191 m²
3 soverom
Solgt

Presenteres av
Daniel S. MossigeTu/Bryne
Enebolig med stor tomt på over 1,2 mål – pent opparbeidet hage, carport og attraktiv beliggenhet
Prisantydning
3 490 000 krOmkostninger
108 240 krTotalpris
3 598 240 kr
Pris
Bruksareal
230 m²BRA-I (internt bruksareal)
191 m²BRA-E (eksternt bruksareal)
22 m²
Areal
Etasje
2Byggeår
1965Soverom
3 soveromBad
1 badTomteareal
1 288 m² (eiet)Type
Enebolig - FrittliggendeEierform
EietEnergimerke
Rød G
Nøkkelinfo
Unngå doble boligrenter
Vi tilbyr gunstig forsikring.
Vurderer du utleie?
Få et tilbud fra Utleie KrogsveenHva koster lånet?
Sjekk estimert lånekostnadBeskrivelse
Kort om eiendommen
Velkommen til Sandmyrvegen 41!
Her får du en innholdsrik og klassisk enebolig med stor tomt, vakre uteområder og en fredelig beliggenhet i et barnevennlig og etablert boligområde på Tu. Boligen byr på hele 230 m² fordelt over to etasjer – perfekt for deg som ønsker plass, potensial og muligheten til å forme et hjem etter egne ønsker.
Med to stuer, flere uteplasser, rikelig med bodplass og egen hagestue, ligger alt til rette for både familieliv og hobbyprosjekter. Store vindusflater slipper inn godt med dagslys. Ute kan du nyte solrike dager i den grønne hagen, eller hente inspirasjon i drivhuset.
Beliggenheten kombinerer ro og natur med kort vei til både skole, idrettsanlegg og Bryne sentrum. Her bor du i et nabolag hvor barna kan vokse trygt opp.
Velkommen til visning!
Område
Legg til steder som er viktige for deg
Megler

Daniel S. Mossige
Daglig Leder / Eiendomsmegler / Partner
På flyttefot? Tenk kjøp og salg samtidig.
Få din egen rådgiver gjennom hele kjøps- og salgsprosessen. Det starter med en verdivurdering.
Unngå doble boligrenter
Vi tilbyr gunstig forsikring.
Vurderer du utleie?
Få et tilbud fra Utleie KrogsveenHva koster lånet?
Sjekk estimert lånekostnadVil du varsles om lignende boliger?
Ved å lagre ditt boligsøk hos oss får du beskjed når vi har en bolig som ligner denne, før den legges ut på markedet!
På flyttefot? Slik gjør vi det enklere for deg
Skreddersydd flyttepakke
Vi fikser håndverkere, vask, pakking, lagring og transport, og legger ut for utgiftene underveis.
Hjelp med både kjøp og salg
Hos oss har du din egen rådgiver gjennom hele kjøps- og salgsprosessen.
Hjelp til finansiering
Vårt samarbeid med BN Bank sikrer deg rask og løsningsorientert hjelp, til konkurransedyktige betingelser.
