Moseveien 7
9 500 000 kr
162 m²
4 soverom
Solgt

Presenteres av
Vegard Gran-AndersenGarderåsen
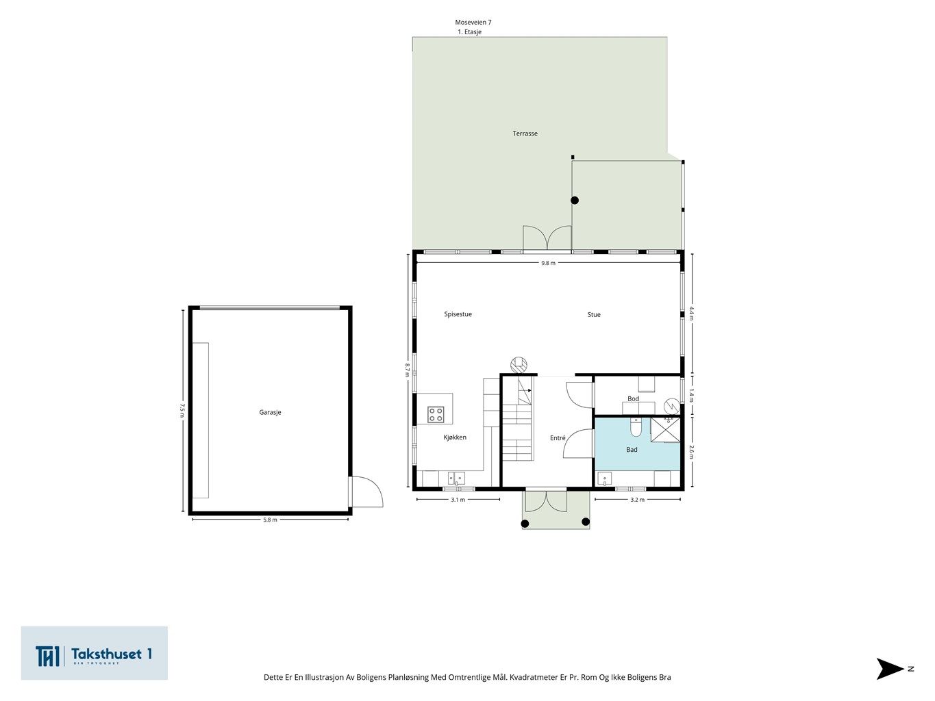
Flott enebolig fra 2012 med 4 soverom, 3 bad og 2 stuer. Vestvendt terrasse på 70 kvm – Stor isolert dobbelgarasje!
Prisantydning
9 500 000 krOmkostninger
258 490 krTotalpris
9 758 490 kr
Pris
Bruksareal
207 m²BRA-I (internt bruksareal)
162 m²BRA-E (eksternt bruksareal)
45 m²TBA (terrasse-balkongareal)
76 m²
Areal
Etasje
2Byggeår
2012Soverom
4 soveromBad
3 badTomteareal
754 m² (eiet)Type
Enebolig - FrittliggendeEierform
EietFasiliteter
Garasje/P-plass og Balkong/TerrasseEnergimerke
Gul B
Nøkkelinfo
Unngå doble boligrenter
Vi tilbyr gunstig forsikring.
Vurderer du utleie?
Få et tilbud fra Utleie KrogsveenHva koster lånet?
Sjekk estimert lånekostnadBeskrivelse
Kort om eiendommen
Moseveien 7 er en flott og innholdsrik enebolig med familievennlig planløsning over to etasjer. Boligen har en meget god intern beliggenhet og fantastiske solforhold fra morgen til kveld. Stor og skjermet terrasse på 70 kvm. Det er parkering på stor gårdsplass og i en isolert dobbelgarasje med elbillader.
Verdt å merke seg:
- Herskapelig villa med nydelig tomt.
- Dobbelgarasje med elbillader.
- Vestvendt terrasse på ca 70 kvm.
- Stort og skjermet hageparti
- Tomten har meget gode solforhold.
- Romslig gårdsplass med plass for hele 7-8 biler
- Gulvvarme i de fleste rom
- 3 varmepumper
- Fire soverom, ett i suite med bad
- Tre bad, ett med hjørnebadekar
- Meget barnevennlig beliggenhet
- Enkel gangavstand til barneskole og barnehager
- Turområder i umiddelbar nærhet
Område
Legg til steder som er viktige for deg
På flyttefot? Tenk kjøp og salg samtidig.
Få din egen rådgiver gjennom hele kjøps- og salgsprosessen. Det starter med en verdivurdering.
Unngå doble boligrenter
Vi tilbyr gunstig forsikring.
Vurderer du utleie?
Få et tilbud fra Utleie KrogsveenHva koster lånet?
Sjekk estimert lånekostnadVil du varsles om lignende boliger?
Ved å lagre ditt boligsøk hos oss får du beskjed når vi har en bolig som ligner denne, før den legges ut på markedet!
På flyttefot? Slik gjør vi det enklere for deg
Skreddersydd flyttepakke
Vi fikser håndverkere, vask, pakking, lagring og transport, og legger ut for utgiftene underveis.
Hjelp med både kjøp og salg
Hos oss har du din egen rådgiver gjennom hele kjøps- og salgsprosessen.
Hjelp til finansiering
Vårt samarbeid med BN Bank sikrer deg rask og løsningsorientert hjelp, til konkurransedyktige betingelser.

