Smedsvingen 47
12 500 000 kr
223 m²
4 soverom
Solgt

Presenteres av
Terje TveitASKER / HVALSTAD
Flott enebolig innerst i blindvei med nydelig solrik tomt! Dobbel garasje. 4 soverom. 2 bad. Landlig og stille.
Prisantydning
12 500 000 krOmkostninger
333 490 krTotalpris
12 833 490 kr
Pris
Bruksareal
270 m²BRA-I (internt bruksareal)
223 m²BRA-E (eksternt bruksareal)
47 m²
Areal
Etasje
3Byggeår
1955Soverom
4 soveromBad
3 badTomteareal
1 485 m² (eiet)Type
Enebolig - FrittliggendeEierform
EietFasiliteter
Garasje/P-plass og Balkong/TerrasseEnergimerke
Rød G
Nøkkelinfo
Unngå doble boligrenter
Vi tilbyr gunstig forsikring.
Vurderer du utleie?
Få et tilbud fra Utleie KrogsveenHva koster lånet?
Sjekk estimert lånekostnadBeskrivelse
Kort om eiendommen
Velkommen til Smedsvingen 47, presentert av Terje Tveit i Krogsveen.
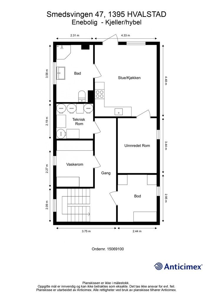
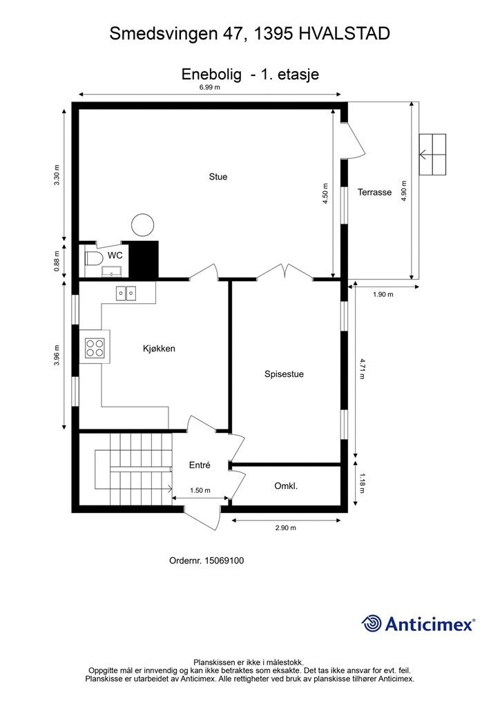
Her får du en unik og innholdsrik hel tomannsbolig men som benyttes som en enebolig, flott opparbeidet tomt. Boligen inneholder 4 soverom, 2 bad, kjøkken, kontor, WC-rom, spisestue, stue og omkledningsrom. Godt med oppbevaringsplass i kjelleretasjen. Boligen ligger i et populært område med nærhet til marka, sjøen, barnehage, skoler, togstasjon og busstopp.
Kort fortalt:
Stor dobbel garasje
4 soverom, 3 bad
Beliggende innerst i blindvei
Flott, solrik og pent opparbeidet tomt.
Hyggelig terrasse med utgang fra stuen
Stor stue og egen spisestue
Barnevennlig
Nærhet til skoler, barnehage, marka og sjøen
Kort vei til kollektivtransport
Velkommen til visning!
Område
Legg til steder som er viktige for deg
På flyttefot? Tenk kjøp og salg samtidig.
Få din egen rådgiver gjennom hele kjøps- og salgsprosessen. Det starter med en verdivurdering.
Unngå doble boligrenter
Vi tilbyr gunstig forsikring.
Vurderer du utleie?
Få et tilbud fra Utleie KrogsveenHva koster lånet?
Sjekk estimert lånekostnadVil du varsles om lignende boliger?
Ved å lagre ditt boligsøk hos oss får du beskjed når vi har en bolig som ligner denne, før den legges ut på markedet!
På flyttefot? Slik gjør vi det enklere for deg
Skreddersydd flyttepakke
Vi fikser håndverkere, vask, pakking, lagring og transport, og legger ut for utgiftene underveis.
Hjelp med både kjøp og salg
Hos oss har du din egen rådgiver gjennom hele kjøps- og salgsprosessen.
Hjelp til finansiering
Vårt samarbeid med BN Bank sikrer deg rask og løsningsorientert hjelp, til konkurransedyktige betingelser.

