Flintveien 53
4 750 000 kr
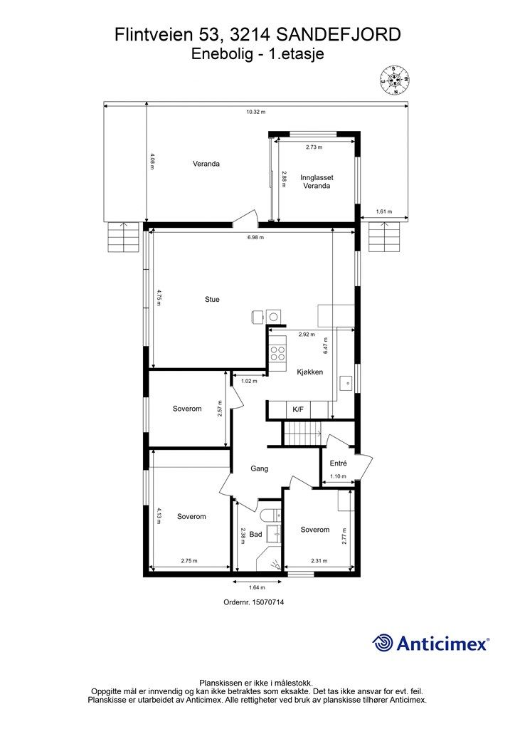
190 m²
5 soverom
Solgt

Nygård
Enebolig med alt på et plan og full kjeller - Barnevennlig område - Solrikt - Sommerstue - 5 soverom - 2 Bad
Prisantydning
4 750 000 krOmkostninger
139 740 krTotalpris
4 889 740 kr
Pris
Bruksareal
233 m²BRA-I (internt bruksareal)
190 m²BRA-E (eksternt bruksareal)
35 m²TBA (terrasse-balkongareal)
34 m²
Areal
Etasje
2Byggeår
1963Soverom
5 soveromBad
2 badTomteareal
837 m² (eiet)Type
Enebolig - FrittliggendeEierform
EietFasiliteter
Garasje/P-plass og Balkong/TerrasseEnergimerke
Rød G
Nøkkelinfo
Unngå doble boligrenter
Vi tilbyr gunstig forsikring.
Vurderer du utleie?
Få et tilbud fra Utleie KrogsveenHva koster lånet?
Sjekk estimert lånekostnadBeskrivelse
Kort om eiendommen
Perfekt familiebolig i stille og rolige omgivelser på Nygård.
Eiendommen har en pen og opparbeidet hage med sol fra morgen til kveld. Flotte uteplasser med mye sol og godt skjermet for innsyn.
Boligen inneholder blant annet i 1.etg. stue med utgang til flott terrasse, nyere kjøkken, bad, 3 soverom, i kjeller har man et bad, vaskerom, 2 soverom, kjellerstue og godt med lagringsplass. Boligen holder en gjennomgående normal standard, noe modernisering må påregnes.
Her kan familien boltre seg i et stille, fredelig og særdeles barnevennlig område. Kort vei til skoler, barnehager, turområder og stor felles lekeplass i området.
Velkommen til en hyggelig visning!
Område
Legg til steder som er viktige for deg
På flyttefot? Tenk kjøp og salg samtidig.
Få din egen rådgiver gjennom hele kjøps- og salgsprosessen. Det starter med en verdivurdering.
Unngå doble boligrenter
Vi tilbyr gunstig forsikring.
Vurderer du utleie?
Få et tilbud fra Utleie KrogsveenHva koster lånet?
Sjekk estimert lånekostnadVil du varsles om lignende boliger?
Ved å lagre ditt boligsøk hos oss får du beskjed når vi har en bolig som ligner denne, før den legges ut på markedet!

