Turheisvegen 8
7 500 000 kr
256 m²
6 soverom
Solgt

Spjelkavik
Tiltalende enebolig med utleiedel i populært boligområde | Barnevennlig beliggenhet | Dobbelgarasje
Prisantydning
7 500 000 krOmkostninger
208 490 krTotalpris
7 708 490 kr
Pris
Bruksareal
308 m²BRA-I (internt bruksareal)
256 m²BRA-E (eksternt bruksareal)
52 m²TBA (terrasse-balkongareal)
82 m²
Areal
Etasje
3Byggeår
2000Soverom
6 soveromBad
3 badTomteareal
951 m² (eiet)Type
Enebolig med utleiedelEierform
EietFasiliteter
Garasje/P-plass og Balkong/TerrasseÅrlig velavgift
6 000 krEnergimerke
Oransje D
Nøkkelinfo
Unngå doble boligrenter
Vi tilbyr gunstig forsikring.
Vurderer du utleie?
Få et tilbud fra Utleie KrogsveenHva koster lånet?
Sjekk estimert lånekostnadBeskrivelse
Kort om eiendommen
Velkommen til Turheisvegen 8 – en innbydende eiendom, med idyllisk og barnevennlig beliggenhet i Spjelkavika. Her får familien en fredelig og trygg hverdag i et etablert boområde med kort vei til natur, skole, fritidstilbud og rikholdig servicetilbud både i Spjelkavik og Moa.
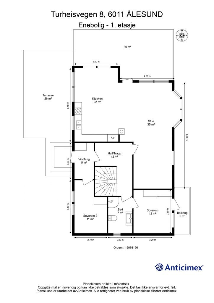
Boligen holder en innbydende standard og går over 3 etasjer med utleiedel i underetasjen. Hoveddelen består av bla 4 soverom, stue-kjøkken, loftstue, to bad og vaskerom. Utleiedelen består av bla to soverom, stue, kjøkken, bad og bod.
I tillegg er det oppført en frittstående dobbeltgarasje. Eiendommen for øvrig er pent opparbeidet med tilnærmet flat tomt på to nivåer. Det er asfaltert innkjørsel, flere uteområder tilknyttet boligen og plenarealer som innbyr til lek og moro for hele familien!
Område
Legg til steder som er viktige for deg
På flyttefot? Tenk kjøp og salg samtidig.
Få din egen rådgiver gjennom hele kjøps- og salgsprosessen. Det starter med en verdivurdering.
Unngå doble boligrenter
Vi tilbyr gunstig forsikring.
Vurderer du utleie?
Få et tilbud fra Utleie KrogsveenHva koster lånet?
Sjekk estimert lånekostnadVil du varsles om lignende boliger?
Ved å lagre ditt boligsøk hos oss får du beskjed når vi har en bolig som ligner denne, før den legges ut på markedet!

