Svensenga 110
12 950 000 kr
125 m²
4 soverom
Solgt

Presenteres av
Jan Egil RøttingsnesSvensenga v/marka
Flott, familievennlig enderekkehus i meget populært område. Svært god intern beliggenhet. Kort avstand til "alt", Garasje
Prisantydning
12 950 000 krAndel fellesgjeld
45 177 krOmkostninger
345 860 krTotalpris
13 341 037 kr
Pris
Bruksareal
133 m²BRA-I (internt bruksareal)
125 m²BRA-E (eksternt bruksareal)
8 m²TBA (terrasse-balkongareal)
55 m²
Areal
Etasje
3Byggeår
1984Soverom
4 soveromBad
2 badTomteareal
223 m² (eiet)Type
RekkehusEierform
EietFasiliteter
Garasje/P-plass og Balkong/TerrasseFellesutgifter
2 260 krEnergimerke
Oransje F
Nøkkelinfo
Unngå doble boligrenter
Vi tilbyr gunstig forsikring.
Vurderer du utleie?
Få et tilbud fra Utleie KrogsveenHva koster lånet?
Sjekk estimert lånekostnadBeskrivelse
Kort om eiendommen
Velkommen til Svensenga 110!
Herlig beliggende enderekkehus i barnevennlig område. Svensenga byr på flere fine lekeplasser internt på feltet og barna kan ferdes trygt i nabolaget. Fra eiendommen er det gangavstand til matbutikker, offentlig kommunikasjon, servicetilbudet på Frysjaparken og du har kun få minutters gange til marka.
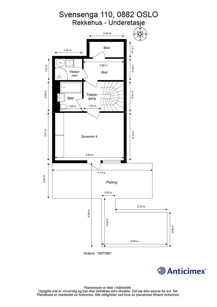
Huset har en meget god planløsning med entré/gang, toalettrom og 3 soverom i 1. etasje. I 2. etasje er det en romslig stue med peisovn, godt og lyst kjøkken med HTH innredning fra 2012 og utgang til flott balkong. Underetasjen består av bad, vaskerom, bod og kjellerstue/soverom med utgang til en herlig hage. Godt med lagringsplass i bodene, på loft samt i utvendig bod. Yttertaket ble skiftet i 2014. Garasje med elbillader medfølger.
Velkommen til visning!
Område
Legg til steder som er viktige for deg
På flyttefot? Tenk kjøp og salg samtidig.
Få din egen rådgiver gjennom hele kjøps- og salgsprosessen. Det starter med en verdivurdering.
Unngå doble boligrenter
Vi tilbyr gunstig forsikring.
Vurderer du utleie?
Få et tilbud fra Utleie KrogsveenHva koster lånet?
Sjekk estimert lånekostnadVil du varsles om lignende boliger?
Ved å lagre ditt boligsøk hos oss får du beskjed når vi har en bolig som ligner denne, før den legges ut på markedet!
På flyttefot? Slik gjør vi det enklere for deg
Skreddersydd flyttepakke
Vi fikser håndverkere, vask, pakking, lagring og transport, og legger ut for utgiftene underveis.
Hjelp med både kjøp og salg
Hos oss har du din egen rådgiver gjennom hele kjøps- og salgsprosessen.
Hjelp til finansiering
Vårt samarbeid med BN Bank sikrer deg rask og løsningsorientert hjelp, til konkurransedyktige betingelser.

