Louises gate 2
9 000 000 kr
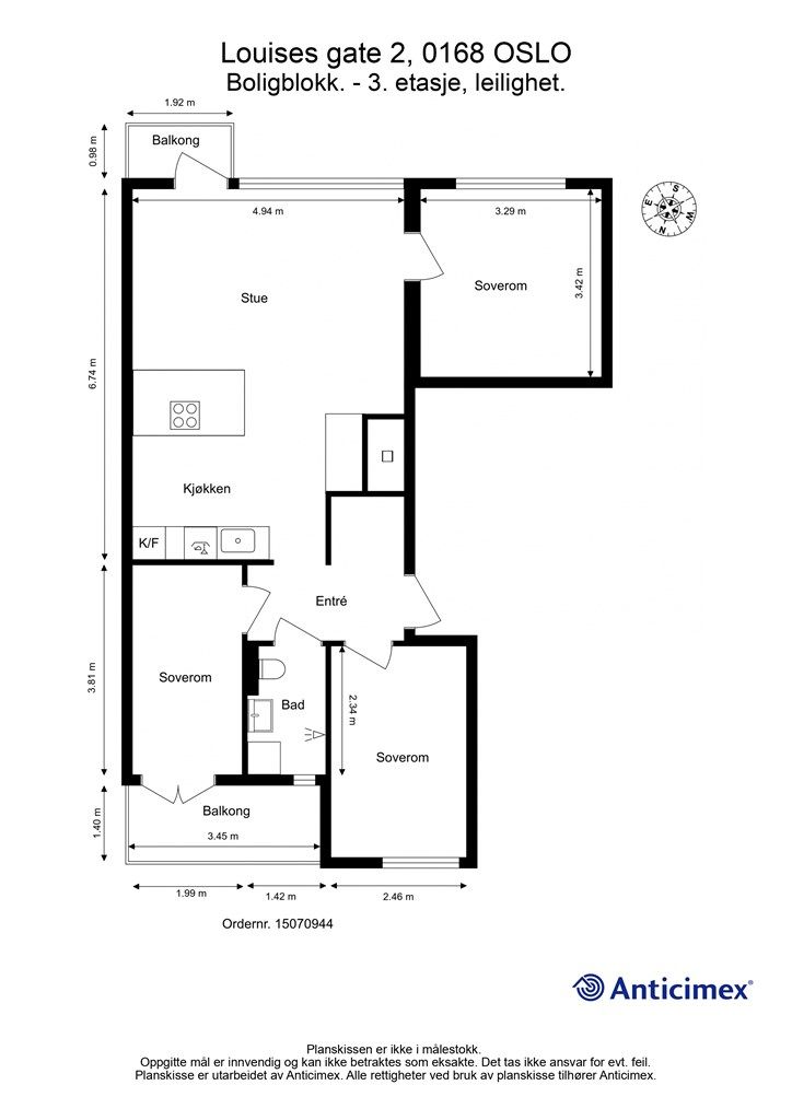
79 m²
3 soverom
Solgt

BISLETT
Rålekker 4-roms selveierleilighet ved Bislett Stadion med gode kvaliteter | Høy standard | Peis, to balkonger, tre boder
Prisantydning
9 000 000 krAndel fellesgjeld
240 180 krOmkostninger
242 040 krTotalpris
9 482 220 kr
Pris
Bruksareal
90 m²BRA-I (internt bruksareal)
79 m²BRA-E (eksternt bruksareal)
11 m²TBA (terrasse-balkongareal)
7 m²
Areal
Etasje
3Byggeår
1936Soverom
3 soveromBad
1 badType
EierleilighetEierform
EierseksjonFasiliteter
Balkong/TerrasseFellesutgifter
6 250 krEnergimerke
Grønn F
Nøkkelinfo
Unngå doble boligrenter
Vi tilbyr gunstig forsikring.
Vurderer du utleie?
Få et tilbud fra Utleie KrogsveenHva koster lånet?
Sjekk estimert lånekostnadBeskrivelse
Kort om eiendommen
Velkommen til en rålekker 4-roms på populære Bislett - uten tvil et av byens mest attraktive og urbane steder å bosette seg. Leiligheten i Louises gate 2 har en helt ideell plassering med utsyn mot Bislett Stadion og alt av hovedstadens fasiliteter og myldrende byliv i gangavstand. Frodige parker, kaféer, butikker og sosiale møteplasser ligger rundt hvert hjørne. I tillegg er det umiddelbar nærhet til både buss og trikk.
Hele leiligheten, inkl. det elektriske anlegget, ble totaloppusset i 2020. (Overflater i 2025). Kombinasjonen av eik, trendy farger og rene linjer understreker det skandinaviske designet og leiligheten byr på attraktive fasiliteter som 2 balkonger, 3 boder og fjernvarme. Optimal planløsning med entré, delikat bad/vaskerom, tre romslige soverom og et lyst og åpent allrom.
Område
Legg til steder som er viktige for deg
På flyttefot? Tenk kjøp og salg samtidig.
Få din egen rådgiver gjennom hele kjøps- og salgsprosessen. Det starter med en verdivurdering.
Unngå doble boligrenter
Vi tilbyr gunstig forsikring.
Vurderer du utleie?
Få et tilbud fra Utleie KrogsveenHva koster lånet?
Sjekk estimert lånekostnadVil du varsles om lignende boliger?
Ved å lagre ditt boligsøk hos oss får du beskjed når vi har en bolig som ligner denne, før den legges ut på markedet!

