Vardeveien 70A
2 690 000 kr
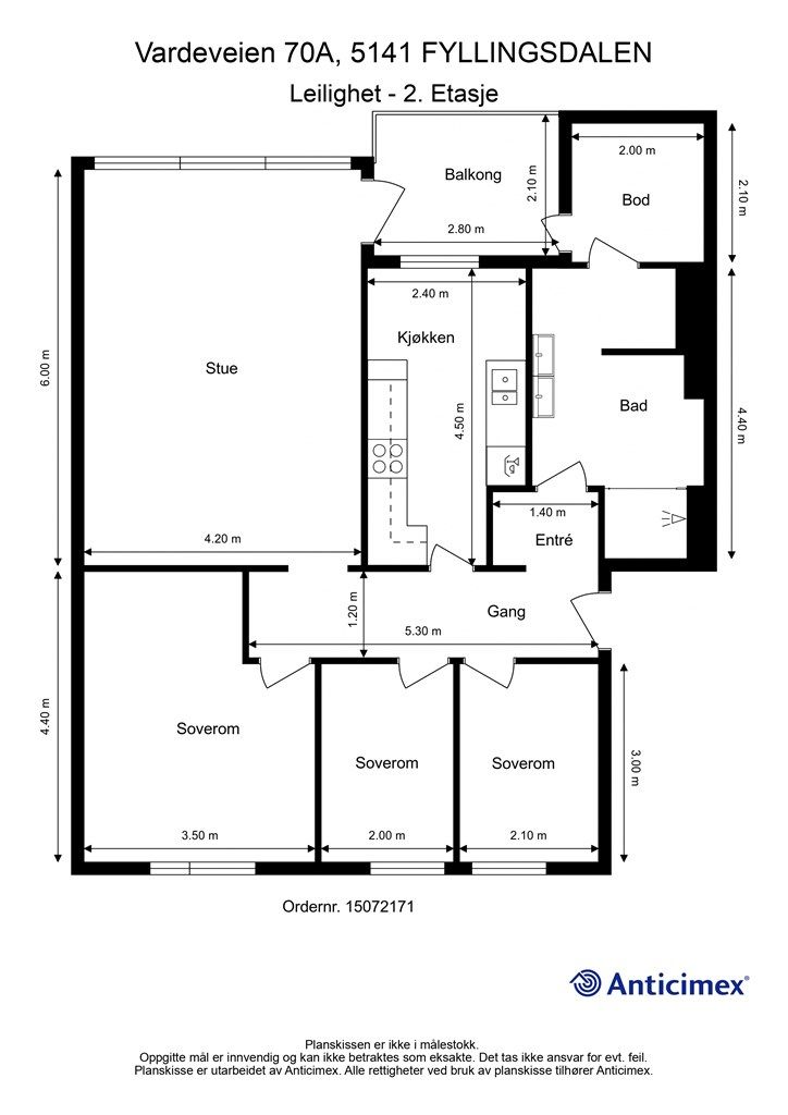
87 m²
3 soverom
Solgt

Presenteres av
Henriette MuriMeget romslig leilighet med 3 gode soverom. Nytt bad i 2016. Varme og varmtv. inkl i felleskost. Sentral beliggenhet!
Prisantydning
2 690 000 krAndel fellesgjeld
517 104 krOmkostninger
19 252 krTotalpris
3 226 356 kr
Pris
Bruksareal
92 m²BRA-I (internt bruksareal)
87 m²BRA-E (eksternt bruksareal)
5 m²TBA (terrasse-balkongareal)
6 m²
Areal
Etasje
2Byggeår
1966Soverom
3 soveromBad
1 badType
AndelsleilighetEierform
AndelFasiliteter
Balkong/TerrasseFellesutgifter
9 151 krEnergimerke
Grønn G
Nøkkelinfo
Unngå doble boligrenter
Vi tilbyr gunstig forsikring.
Vurderer du utleie?
Få et tilbud fra Utleie KrogsveenHva koster lånet?
Sjekk estimert lånekostnadDette liker selger best ved boligen
Rolig og barnevennlig område. Nært skole og barnehage. Sentralt. Veldig godt busstilbud. Supert bad, varmtvann og sentralvarme inkludert (trenger ikke annen varme i boligen om vinteren) Godt borettslag som har orden på alt til alle årstider. Fine turområder og nært idrettsanlegg.
Beskrivelse
Kort om eiendommen
Velkommen til Vardeveien 70A! En fin 4-roms leilighet med populær beliggenhet i Fyllingsdalen - nært alt man trenger i hverdagen!
Høydepunkter:
Stort og lekkert bad oppusset i regi av brl i 2016
Utgang fra stue til solrik, sørvestvendt balkong på ca. 8 m²¨
Delvis nymalte overflater og nye gulv
God oppbevaringsplass i kjellerbod
Meget gode bussforbindelser med gangavstand til 3 forskjellige busstopp - hvor bl.a. linje 4 går
Rolig og barnevennlig nabolag
Gangavstand til buss som tar deg til Bergen Sentrum på vel 10 minutter
Flotte turområder like ved
Barneskole og barnehage like over veien
Varden Amfi like ved som tilbyr mange aktiviteter
Område
Legg til steder som er viktige for deg
På flyttefot? Tenk kjøp og salg samtidig.
Få din egen rådgiver gjennom hele kjøps- og salgsprosessen. Det starter med en verdivurdering.
Unngå doble boligrenter
Vi tilbyr gunstig forsikring.
Vurderer du utleie?
Få et tilbud fra Utleie KrogsveenHva koster lånet?
Sjekk estimert lånekostnadVil du varsles om lignende boliger?
Ved å lagre ditt boligsøk hos oss får du beskjed når vi har en bolig som ligner denne, før den legges ut på markedet!
På flyttefot? Slik gjør vi det enklere for deg
Skreddersydd flyttepakke
Vi fikser håndverkere, vask, pakking, lagring og transport, og legger ut for utgiftene underveis.
Hjelp med både kjøp og salg
Hos oss har du din egen rådgiver gjennom hele kjøps- og salgsprosessen.
Hjelp til finansiering
Vårt samarbeid med BN Bank sikrer deg rask og løsningsorientert hjelp, til konkurransedyktige betingelser.

