Prinsens gate 6D
1 350 000 kr
63 m²
1 soverom
Komplett salgsoppgave

Sentrum
Usjenert to-roms andelsleilighet i 3. etg. med fransk balkong. Stor og solrik, felles takaltan. V.v./fyring inkl. i f/u.
Prisantydning
1 350 000 krAndel fellesgjeld
760 442 krOmkostninger
11 040 krTotalpris
2 121 482 kr
Pris
Bruksareal
66 m²BRA-I (internt bruksareal)
63 m²BRA-E (eksternt bruksareal)
3 m²
Areal
Etasje
3Byggeår
1936Soverom
1 soveromBad
1 badType
AndelsleilighetEierform
AndelFellesutgifter
8 663 kr
Nøkkelinfo
Unngå doble boligrenter
Vi tilbyr gunstig forsikring.
Vurderer du utleie?
Få et tilbud fra Utleie KrogsveenHva koster lånet?
Sjekk estimert lånekostnadBeskrivelse
Kort om eiendommen
- Luftig og usjenert plassering i høyden av tredje etasje
- Tilgang til felles takterrasse med flott utsikt og sol hele dagen
- Etablert i 2006, siden noe ombygget og oppgradert
- Bad og toalettrom flislagt i senere år
- Alkove skilt ut fra soverom, ikke omsøkt/godkjent
- Varmtvann + oppvarming med radiatorer = lavt strømforbruk
- Tilgang til felles vaskerom i kjelleren
- Kjøpesenter og bussterminal like om hjørnet
- Kort gangavstand til togstasjon - 30 min. videre til Oslo
Innhold og byggemåte
Innhold og byggemåte
Eiendommen
Prinsens gate 6D, 1530 MOSS
Kommunenummer 3103, gårdsnummer 2, bruksnummer 1613, seksjonsnummer 3, ideell andel 1/1
Andelsnummer 22, Moss Sentrum Panorama Borettslag, organisasjonsnummer 989924745
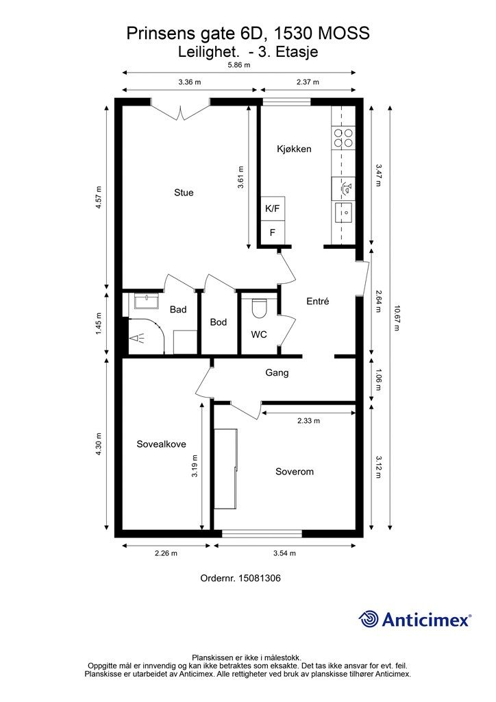
Innhold
BRA (totalt bruksareal): 66 kvm.
BRA-i (internt bruksareal)
3. etasje:
63 kvm: Entré, gang, stue, kjøkken, bad, toalettrom, soverom, sovealkove og bod.
BRA-e (eksternt bruksareal)
Kjelleretasje:
3 kvm: Bod i felles kjeller (nr. 27, inngang fra 6F).
Rom som avviker ifbm. rom for varig opphold: Sovealkove. Se mer informasjon under punktet ferdigattest.
Det gjøres oppmerksom på at dagens boder er etablert i borettslagets fellesareal, og at bodene således ikke eies av den enkelte andelseier. Dette medfører at borettslaget i fellesskap beslutter bruken, og at man ikke selv har eierrett og rettsvern for boden. Borettslaget kan ved vedtak beslutte annet bruk av fellesarealet.
De oppgitte arealer er hentet fra rapport med befaringsdato 20.04.2026 utført av Tommy Sverre. Arealene er beregnet og rom er definert etter dagens faktiske bruk, uavhengig av hva som er godkjent av bygningsmyndighetene.
Byggemåte
Selger har innhentet en tilstandsrapport av boligen/eiendommen. Av rapporten fremgår det at flere bygningsdeler har fått tilstandsgrad ikke undersøkt/ikke tilgjengelig for undersøkelse (TGIU), 2 (TG2) og/eller 3 (TG3). Rapporten beskriver også avvik på undersøkte bygningsdeler uten tilstandsgrad. Kjøper overtar ansvaret for de opplysninger som fremkommer av salgsdokumentasjonen, og kan ikke gjøre gjeldende som mangel noe som burde vært kjent eller som ikke kan anses å ha betydning for avtalen.
Bygningen er iht. tilstandsrapport, oppført med bærende konstruksjoner i mur/ betongkonstruksjoner. Grunnmur av betong. Bygget er oppført med kjeller. Utvendige fasader av murpuss/ fasadeplater. Etasjeskillere av betong. Flatt tak. Boligen har entrédør med lås og kikkehull. Fransk balkongdør med karm/ramme av tre (fra år 2005). Vinduer med karmer/ramme av tre (fra år 1993). Les forøvrig mer om byggemåte og den tekniske tilstanden i rapporten.
I rapporten fremkommer det som takstmannen mener kjøper må være særskilt oppmerksom på, dette gjelder blant annet (se utfyllende tekst i rapporten):
Følgende kontrollpunkter/forhold har blitt tildelt TG3:
Det er ingen punkter som har blitt tildelt TG3.
Følgende kontrollpunkter/forhold har blitt tildelt TG2:
Våtrom - Bad
- Helhetsvurdering: Det er valgt å vurdere våtrommet (og tilhørende bygningsdeler) med en samlet helhetsvurdering. Følgende hovedmomenter er lagt til grunn for vurderingen: Det er registrert kabelføring i vegg som ikke er tettet tilstrekkelig som tilfører fuktighet i konstruksjonen. Det er registrert fordelerskap/ inspeksjonsluke på vegg i dusjsonen som ikke er tilgjengelig ved befaringsdato. Det er misfarging av elastiske fuger og flisfuger. Det observeres stedvis tegn til riss i enkelte veggfliser. Det er registrert bom (hulrom med påfølgende riss/sprekker i flisfuger) i enkelte gulvfliser. Gulvet i sluksonen er tilnærmet flatt. Det registreres motfall på deler av gulvflater utenfor sluksonen. Vanntett sjikt har en alder som tilsier at fremtidig funksjon er usikker. Bygningsdelen er skjult, så den faktiske tilstanden og dagens tettefunksjon er ukjent. Overgang mellom sluk og vanntett sjikt er uoversiktlig. Vannrør av kobber (og tilhørende komponenter) har en alder som tilsier at fremtidig funksjon er usikker. Bygningsdelen er skjult, så den faktiske tilstanden er ukjent. Tilluftsspalte eller lignende er ikke etablert. Våtrommet har kun naturlig ventilasjon. Innredningen bærer samlet sett preg av slitasje og enkelte mindre skader (svelleskader og lignende). Med bakgrunn i at våtrommets vegger er av mur/betong er det ikke praktisk mulig å gjennomføre fuktmåling/hulltaking i et område der det erfaringsmessig forekommer skader. Hulltaking og fuktmåling i lukkede konstruksjoner er derfor ikke utført. Tilstanden inne i konstruksjonen er ikke kjent. Det foreligger lite informasjon om arbeidet som er gjort i våtrommet. De deler av utførelsen som lar seg undersøke, bærer ikke preg av faglig god utførelse.
Kjøkken
- Overflate vegg: Veggflater bærer preg av aldersrelatert slitasje og har enkelte mindre skader.
- Overflate gulv: Synlige deler av gulvets overflatemateriale bæ rer preg av slitasje og enkelte skader.
- Vannrør: Det vurderes at vannrørene er skiftet eller delvis skiftet etter byggeåret, men det er ikke kjent når dette ble gjort, eller omfanget av arbeidet. Vannrør av kobber (og tilhørende komponenter) er vurdert til å ha en alder som tilsier at fremtidig funksjon er usikker.
Toalettrom
- Overflate vegg: Veggflater bærer ikke preg av faglig god utførelse.
- Vannrør: Vannrør av kobber (og tilhørende komponenter) har en alder som tilsier at fremtidig funksjon er usikker. Bygningsdelen er skjult, så den faktiske tilstanden er ukjent.
- Ventilasjon: Det vurderes at det ikke er tilstrekkelige åpninger/luftespalter mellom rom for å sikre tilfredsstillende luftgjennomstrømning, noe som er et viktig prinsipp for ventilasjon av boliger.
- Sanitærutstyr og innredning: Det er ikke registrert dreneringsspalte eller lignende åpninger fra den innebygde toalettsisternen. Det kan derfor ikke verifiseres om vanninstallasjonen er utført slik at eventuelt lekkasjevann raskt blir synliggjort.
Tekniske anlegg
- Innvendig stoppekran: Innvendige stoppekran er ikke tilgjengelig/ikke påvist ved befaring.
Andre rom
- Innerdører: Enkelte innerdører kommer i kontakt med karmen slik at døren ikke kan åpnes og lukkes som normalt.
- Ventilasjon: Ventilasjonen vurderes som utilstrekkelig grunnet manglende tilluftsventiler og avtrekk.
Vinduer og ytterdører
- Vinduer og omramming: Enkelte vinduer viser begynnende tegn til slitasje på overflatebehandling, og har en alder der fremtidig funksjon vurderes som usikker.
Følgende kontrollpunkter/forhold har blitt tildelt TGIU (tilstandsgrad ikke undersøkt):
Tekniske anlegg
- Innvendig stakeluke: Innvendig stakeluke er ikke påvist inne i boenheten. Det er ikke kjent om stakeluker eller tilsvarende stakepunkter er prosjektert og etablert i bygningens fellesarealer. Det vurderes at boenheten likevel har tilgjengelige stakepunkter gjennom sluk og øvrige komponenter tilknyttet avløpssystemet, men hvordan disse vil fungere i en faktisk brukssituasjon er ikke kjent. TGIU er valgt fordi fullverdig kontroll av stakemuligheter forutsetter spesialkompetanse på rørsystemer.
Det anbefales ytterligere undersøkelser av disse punktene.
I tillegg opplyses det om følgende:
- Branntekniske forhold: Boligen mangler godkjent slukkeutstyr.
- Geologiske forhold: Eiendommen ligger i et aktsomhetsområde for kvikkleire. Eiendommen ligger i et aktsomhetsområde for overvann.
Se vedlagt tilstandsrapport for supplerende informasjon vedrørende boligens tilstand.
Tilstandsrapporten er inntatt i salgsoppgaven. Rapporten inneholder informasjon om avvikene og konsekvensen av disse. For avvik som er gitt TG3 har den bygningssakkyndige i tillegg gitt et anslag på hva det vil koste å utbedre disse avvikene. Ettersom kjøper regnes å være kjent med forhold som tydelig fremgår av tilstandsrapporten, oppfordres du til å sette deg grundig inn i rapporten i sin helhet.
Standard
De fleste overflater og faste innredninger i leiligheten er fra den ble etablert i 2006. Enkelte oppgraderinger er imidlertid utført i senere år, blant annet i form av nye gulv i både entreen, soverommet og stuen.
Kjøkkenets innredning er fra 2006, i god stand og tilrettelagt for frittstående hvitevarer. Fliser er i senere år montert mellom benken og overskapene.
På badet er det i senere år montert dusjhjørne og lagt fliser på gulv og vegger. Arbeidet bærer imidlertid preg av ufagmessig utførelse, utbedringer må påregnes. Klosett finnes i et separat toalettrom ved entreen som også er pusset opp med blant annet fliser.
Soverommet og stuen og soverommet benyttes i dag omvendt i forhold til hva leiligheten ble byggemeldt med. En mindre alkove er i tillegg fradelt dagens soverom, men ikke omsøkt eller godkjent for varig opphold. Deleveggen er det fullt mulig å ta ned igjen, til fordel for et vesentlig større soverom.
Overflater og innredninger:
Gulv: Parkett, laminat og fliser.
Innervegger: Fliser og glatte, malte flater.
Himlinger: Glatte, malte flater.
Kjøkken: Skapinnredning med glatte hvite fronter. Laminert grå benkeplate. Nedfelt stålvask med ett-greps blandebatteri. Tilkoblingsmulighet for oppvaskmaskin. Ventilator.
Bad: Servantskap med glatte hvite fronter og nedfelt keramisk servant med ett-greps blandebatteri. Veggspeil. Veggmonterte hyller. Dusjhjørne med sidehengslede glassdører og to-greps blandebatteri med hånd- og regndusj. Rør-opplegg til vaskemaskin.
Toalettrom: Toalett montert på innbygget sisterne.
Løsøre og tilbehør
Integrerte hvitevarer på kjøkkenet medfølger i handelen, dette gjelder platetopp, stekeovn og oppvaskmaskin.
Videre vises det til liste fra Norges Eiendomsmeglerforbund angående løsøre og tilbehør. Produkter og installasjoner som medfølger overdras uten noen form for garantier, utover eventuell gjenværende leverandørgaranti.
Oppvarming
Oppvarming av boligen skjer i hovedsak ved bruk av radiatorer/vannbåren varme (tilkoblet varmesentral).
Dersom det ikke er vegg- eller fastmonterte varmekilder i rom ved visning, følger dette heller ikke med.
Ferdigattest/brukstillatelse
Moss kommune opplyser om at det ikke foreligger ferdigattest eller midlertidig brukstillatelse for oppføring av bygningen i deres arkiv. I henhold til tilstandsrapporten er bygningen fra 1936. Det er utstedt godkjente byggetegninger i tilknytning til oppføringen fra 1935.
Det er gitt ferdigattest for kombinert forretnings- og boligbygg, herunder fire leiligheter i 3. etasje datert 20.07.1995.
Det gjøres oppmerksom at det ikke lenger utstedes ferdigattest på tiltak det er søkt om før 1998 jf. plan- og bygningsloven §21-10. Kommunen vil ikke kreve ferdigattest for disse tiltakene og vil avvise eventuelle søknader. Bestemmelsen innebærer ikke at tiltak med manglende søknad blir lovlige, men at man ikke trenger å avslutte gamle byggesaker. Normalt sett kreves ferdigattest for alle søknadspliktige tiltak som gjøres etter plan - og bygningsloven.
Det er gitt ferdigattest for trappeheis (trappestolheis fra første repos i inngangspartiet og opp til 3. etasje) datert 06.03.2025.
Dagens planløsning avviker noe fra godkjente byggetegninger som ligger i kommunens byggesaksarkiv. Det er i utgangspunktet ikke gjort søknadspliktige bruksendringer, men oppholdsrommene er internt omdisponert. Stue er opprinnelig soverom og soverom er opprinnelig stue.
Sovealkove er opprinnelig byggemeldt som del av stue, dog oppfyller ikke rommet krav til rom for varig opphold (rømningsvindu, dagslysinnslipp m.m.). Kjøper overtar alt ansvar og risiko for dette videre.
Kjøper overtar eiendommen slik den framstår på visning.
Tinglyste heftelser og rettigheter
Utover andel fellesgjeld overdras leiligheten fri for pengeheftelser, med unntak av:
Borettslaget har legalpant for forfalte felleskostnader og andre krav som følger av borettslagsforholdet iht. burettslagsloven § 5-20. Pantet er begrenset oppad til 2G (G = folketrygdens grunnbeløp).
Det er tinglyst 4 servitutter og en seksjonering på borettslagets eiendom. Disse omhandler blant annet bestemmelser om adkomstrett, gjerde, kloakkledning, parkering m.m. Ingen av disse har direkte betydning for bruken av denne boligen.
Eventuell adgang til utleie
Andelseier kan ikke uten samtykke fra styret i borettslaget overlate bruken av boligen til andre. Med samtykke kan andelseier overlate boligen til andre i inntil tre år hvis andelseier har bodd i boligen i minst ett av de to siste år. Utleie i andre tilfeller kan godtas ved særlige grunner, jf. burettslagslova § 5-6. Utleie forutsetter at leiligheten har forsvarlige radonverdier. Se også borettslagets vedtekter og konferer megler ved spørsmål.
Det anføres at godkjenning gis for maks to år av gangen. Forlengelse krever ny søknad. Gjentatt korttidsutleie gjennom Airbnb e.l. regnes som næringsvirksomhet og er ikke tillatt. Styret kan nekte eller trekke tilbake godkjenning dersom korttidsutleie anses å være til skade eller ulempe for borettslaget.
Energimerking
Selger er ansvarlig for at boligen har energiattest. Det foreligger imidlertid ikke energiattest for denne boligen, men hvis kjøper krever det kan energiattest innhentes for selgers regning.
Beliggenhet og tomteforhold
Beliggenhet og tomteforhold
Beliggenhet
I Prinsens gate bor du svært sentralt, praktisk talt midt i sentrumskjernen, og kan glede deg over gangavstand til alle byens tilbud.
Like om hjørnet finner du byens store kjøpesenter med tilknyttet bussterminal, noe som gjør det enkelt å ta seg videre i de fleste himmelretninger. Enkel tilgang til et velutviklet kollektivtilbud utgjør en vesentlig kvalitet ved å bo sentralt.
Skal du med toget, er det praktisk at stasjonen er gode fem minutters gange unna. Fra Moss er det hyppig avganger mot hovedstaden dagen gjennom og reisetiden med tog til Oslo S er fra kun 30 minutter.
I tillegg til alle byens fasiliteter er også vakre turområder lett tilgjengelig. I Kanal-området på nærliggende Jeløy finnes et idyllisk parkmiljø og ikke minst bystranden Sjøbadet, én av flere fine sandstrender på øya. Verdt gjentatte besøk er naturligvis også den nye og spennende bydelen Verket med blant annet stor strandpark.
Adkomst
Det vil bli skiltet med Krogsveen visningsskilt ved fellesvisninger. Se kart i nettannonse eller Google Maps for nærmere veibeskrivelse. Velkommen til visning!
Barnehager, skoler og fritid
Barnehager: Kråka Fus kulturbarnehage (0,5 km), Skarmyra barnehage (0,7 km), Glassverket barnehage (1,1 km).
Skoler: Bytårnet barne- og ungdomsskole (0,7 km).
Videre er det Kirkeparken videregående skole (0,3 km) og Malakoff videregående skole (1,4 km) i Moss kommune.
Dersom skole- og barnehagetilbud er av betydning for kjøpet, ber vi om at det rettes en særskilt henvendelse til kommunen for oppdatert informasjon.
Beskrivelse av tomt
Eiertomt på 1 671 kvm som tilhører borettslaget.
Parkering
Det medfølger ingen parkeringsplass til leiligheten.
Det opplyses om at borettslaget har noen parkeringsplasser som leies ut, styreleder må kontaktes for mer informasjon.
Forøvrig er det parkerings i gate etter områdets bestemmelser.
Vei, vann og avløp
Eiendommen har adkomst via kommunal vei.
Eiendommen er tilknyttet kommunalt ledningsnett via private stikkledninger. Borettslaget er ansvarlig for private stikkledninger til bygningen.
Regulerings-og arealplaner
Eiendommen ligger i et uregulert område men er avsatt til sentrumsformål med avvikssone støy ved kommuneplanens arealdel 2021-2032 vedtatt 24.03.2021. Eiendommen omfattes i tillegg av "Sentrumsplan Moss" vedtatt 15.06.2014 med arealer hovesakelig avsatt til sentrumsformål samt liten del vei. Utsnitt av planer med tilhørende bestemmelser kan fås ved henvendelse til megler.
I henhold til kommuneplanen er eiendommen innenfor et område med ras- og skredfare. Dette kan legge begrensninger for evt. utbygging, påbygg/tilbygg og andre terrenginngrep som på et generelt grunnlag er tillatt ifølge kommuneplanen.
Eiendommen er innenfor et område hvor det foreligger et planforslag, dette gjelder "Kommunedelplan for sentrum". Formålet med sentrumsplanen er å legge rammer for en bærekraftig byutvikling som gjør bystrukturen sterkere, skaper byliv og opplevelser, og ivaretar miljø, klima og gode bo- og oppvekstmiljøer for alle i Moss sentrum. Det ble kunngjort oppstart av planarbeidet den 06.07.2022 med revidert forslag den 29.01.2025, se kommunens hjemmeside for mer info.
På naboeiendommen er det en reguleringsplan som er under arbeid, dette gjelder "Detaljregulering for kvartalet Gudes gate - Prinsens gate og Bryggeriparken. Initiativtaker og forslagsstiller ønsker å utvikle en ny næringsbebyggelse i Gudes gate 12. Eksisterende dagligvareforretning ønskes revet, og det ønskes oppført et nytt bygg som inneholder ny dagligvareforretning samt lokaler for kontor/tjenesteyting. Foreløpig status for planen er "planlegging igangsatt" og oppstartsmøte ble avholdt 10.02.2020, se kommunens hjemmeside for mer info. Tidshorisont og endelig utforming av prosjektet er pt. ikke klart, det må påregnes støy o.l. fra byggeprosjektet under utbyggingen (med forbehold om at planen blir vedtatt).
Det er etter info fra Moss kommune registrert en vedtatt områderegulering/oppbygging av boligprosjekt (nær eiendommen), "Reguleringsplan for kvartalet Dronningens gate, Torggata, Th. Petersons gate" vedtatt 06.10.2020. Formålet er å utvikle området til en bymessig kvartalsstruktur med bolig og næring. Dagens kjøpesenter på felt S6 rives og en ny kvartalsstruktur i 4-7 etasjer med næring og bolig bygges opp på denne tomta, samt på tomta i Th. Petersons gate 7. Det vil være rom for næringsarealer på ca. 5 000 m2, hovedsakelig butikker, kontor og servering, med direkte inngang fra gaten og på plan 2 og U1, samt ca. 190-240 leiligheter av varierende størrelse. I det sentrale gårdsrommet på S6 vil det bli regulert en offentlig tilgjengelig park (/torg) som også dekker behovet for en kvartalslekeplass. Se mer informasjon på Moss kommune sin hjemmeside.
Økonomi
Økonomi
Boligens kostnader
Felleskostnadene inkluderer bl.a. varmtvann, fjernvarme, kommunale avgifter (vann og avløp), renovasjon, eiendomsskatt, renter og avdrag på andel fellesgjeld, tv/internett grunnpakke, felles vedlikehold, felles driftskostnader, strøm i fellesarealer, renholdstjenester, forretningsførsel, revisjon- og administrasjonskostnader, styrehonorar, felles bygningsforsikring m.m.. Felleskostnadene justeres normalt en til to ganger årlig i forhold til borettslagets faktiske utgifter. Det tas forbehold om at felleskostnadene kan justeres fortløpende pga. renteendringer.
Felleskostnadene pr. mnd fordeles slik:
Felleskostnader kr 3.446,80,-
Lån 1 - Á-konto renter kr 3.108,64,-
Lån 1 - Á-konto avdrag kr 1.818,-
Eiendomsskatt kr 290,-
Det må påregnes kostnader til strøm og nettleie, dette vil variere avhengig av strøm-/nettselskap. Nåværende eier har et strømforbruk på ca. kr 6.000,- pr. år.
Boligen er tilknyttet kabel-tv/internett, grunnpakke er inkludert i felleskostnadene.
Nåværende eier har installert alarm. Selger opplyser om at abonnement medfølger.
Det må påregnes kostnader til innboforsikring.
Ovenstående er basert på nåværende eier/husstands senere års forbruk/utgifter. Dette vil variere avhengig av antall beboere, ønsket innetemperatur, egne fordelsavtaler, kanalvalg, hastighet på bredbånd osv.
Formuesverdi
Formuesverdi for 2024 var kr 751 612,- ifølge Skatteetaten. Beløpet forutsetter at eier bor fast i boligen (primærbolig).
Ved eventuell øvrig bruk av eiendommen (f.eks. fritidsbolig, pendlerbolig, utleieobjekt) var formuesverdien for 2024 kr 3 006 449,-.
Fra 2026 har Stortinget vedtatt en oppdatert modell for beregning av formuesverdi for primærbolig, så avvik kan forekomme.
For mer informasjon se skatteetaten.no.
Opplysninger om fellesgjeld
Andel formue er kr 1 060,- pr. 31.12.2025.
Andel fellesgjeld er kr 760 442,- pr. 10.04.2026.
Total fellesgjeld for boligselskapet er kr 25.303.179,- pr. 10.04.2026 og lånevilkårene er:
Bank: OBOS-banken AS
Lånenr.: 98207587516
Lånetype: Annuitetslån
Rentesats: 5,08%
Restsaldo: 23 797 111,00
Restsaldo andel pr. 10.04.2026: 716 774,56
Innfrielsesdato: 30.06.2045
Type rente: Flytende rente
Terminer i året: 12
IN-avtale: Ja
Bank: OBOS-banken AS
Lånenr.: 98207899143
Lånetype: Annuitetslån
Rentesats: 5,08%
Restsaldo: 1 506 068,00
Restsaldo andel pr. 10.04.2026: 43 667,83
Innfrielsesdato: 30.09.2050
Type rente: Flytende rente
Terminer i året: 12
IN-avtale: Nei
Dette borettslaget har tilrettelagt for individuell nedbetaling av andel fellesgjeld (IN-ordning) - kun ett av to lån. Det vil si at hver enkelt andelseier helt eller delvis kan velge å nedbetale sin andel av borettslagets fellesgjeld til boligbyggelaget. Dette vil i så fall medføre en reduksjon av de månedlige felleskostnadene (andel av renter og avdrag på fellesgjelden). Nedbetalt andel av fellesgjeld knyttes til andelen og følger andelen ved et eventuelt salg.
kr 716.774,56,- av fellesgjelden kan innløses. Dette vil medføre en reduksjon i felleskostnadene med kr 4.926,64,-.
Omkostninger
1 350 000,00 Prisantydning
760 442,00 Andel av fellesgjeld
--------------------------------------------------------
2 110 442,00 Pris inkl. fellesgjeld
Omkostninger
9 950,00 Gjensidige Boligkjøperpakke* (valgfritt)
545,00 Tinglysing hjemmel
545,00 Tinglysing panterettsdokument
--------------------------------------------------------
1 090,00 Omkostninger totalt (uten Gjensidige Boligkjøperpakke)
11 040,00 Omkostninger totalt (med Gjensidige Boligkjøperpakke)
--------------------------------------------------------
2 111 532,00 Totalpris inkl. omkostninger
2 121 482,00 Totalpris inkl. omkostninger (med Gjensidige Boligkjøperpakke)
--------------------------------------------------------
Dersom kjøper ikke er medlem av boligbyggelaget, må det påregnes en innmeldingsavgift og årlig medlemsgebyr pr. ny andelseier. Dette faktureres direkte fra boligbyggelaget.
Dersom borettslaget har fellesgjeld, vil leilighetens andel av fellesgjelden komme i tillegg til kjøpesummen. Denne gjelden skal ikke innbetales i oppgjøret, men følger leiligheten.
Det tas forbehold om endringer i avgifter og gebyrer.
Tilbud om lånefinansiering
Megler formidler gjerne kontakt med rådgiver hos vår samarbeidspartner BN Bank. De har konkurransedyktige betingelser samt rask og løsningsorientert behandling av din lånesøknad. Krogsveen mottar et honorar dersom lån opprettes.
Betalingsbetingelser
Kjøpesum inkludert omkostninger, samt pantedokument tilknyttet eventuelt lån, skal være disponibelt hos megler 2 virkedager før overtagelsen.
Annen viktig informasjon
Annen viktig informasjon
Eier
Cong Si Ngo
Informasjon om borettslaget
Leiligheten er tilknyttet Moss Sentrum Panorama Borettslag.
Borettslaget består av 33 leiligheter.
Borettslaget er en del av et sameiet på 3 seksjoner. Seksjon 3 er en samleseksjon for boliger.
Forretningsfører er OBOS Eiendomsforvaltning AS.
Borettslagets årsregnskap for 2024 viser et overskudd på kr 834.162,-.
Disponible midler i borettslaget pr. 31.12.2024 kr 128.258,-.
Dugnader tilknyttet borettslaget må påregnes. Styret kan kreve dugnadsgebyr dersom andelseier eller dennes husstand ikke møter.
Det er forbudt å holde dyr uten spesiell skriftlig tillatelse fra styret. Inn?ytting med dyr må ikke skje før styrets avgjørelse av søknaden foreligger. Eventuelt tillatelse kan tilbakekalles dersom dyret er til sjenanse for øvrige seiere eller medfører ulempe for laget.
Alt arbeid på vann- og avløpsinstallasjoner i boligen skal forhåndsgodkjennes av styret før oppstart.
Styret er av den oppfatning at det utførte løpende og periodiske vedlikeholdet er tilstrekkelig for å opprettholde den bokførte verdien på bygningsmassen.
Foretatte arbeid/påkostninger i de senere år: Montering av kameraovervåkning i borettslaget. Installasjon av nye felles porttelefoner med ferdig opplegg for videosamtale og evt. wifi-styrt mobilapp samt skifte av adgangskontrollsystem. Montering av videocalling i alle leiligheter. Utskifting av brannanlegget. Mindre vedlikeholdstiltak, som maling og utbedring av uteområdene. En ny branndør er installert i oppgang E, og et nytt brannalarmanlegg er satt opp. Betydelige ressurser er også brukt på å løse utfordringer knyttet til ulovlig parkering, samt håndtering av søppel og avfall. Det ble også gjennomført en rekke tiltak mot ulovlig utleie for å sikre at borettslagets regler overholdes.
Planlagte arbeid/påkostninger: Heisprosjektet er vedtatt lagt på på is, da det blir for dyrt. Borettslaget har ordnet økonomi og gjennomgår oppgraderinger av alle fellesområder i perioden 2025-2027. Det er ikke ventet noen husleieøkning i denne perioden, eller som følge av disse oppgraderingene.
I henhold til borettslagets vedtekter må kjøper godkjennes av styret som ny andelseier. Det er kjøpers ansvar at styregodkjenning blir gitt, men styret kan ikke nekte godkjenning uten saklig grunn. Iht. burettslagslova kan man bare eie en andel i borettslaget. Kun fysiske personer kan være andelseiere.
Borettslaget har en avtale med OBOS Factoring om garantert betaling av felleskostnader. OBOS Factoring garanterer for overførsel til borettslaget hver måned og overtar deretter alt ansvar og risiko for eventuell manglende innbetaling av felleskostnader. Avtale om sikring av felleskostnader varer til den blir sagt opp av en av partene. Oppsigelsestiden er seks - 6 - måneder regnet fra oppsigelsesdato.
Borettslagets bygningsmasse er fullverdiforsikret i Gjensidige Forsikring ASA, polisenr.: 91476088.
Dokumenter vedrørende borettslaget kan fås ved henvendelse til megler.
Informasjon om forkjøpsrett
Borettslaget praktiserer ikke forkjøpsrett.
Overtakelse
Etter nærmere avtale. Overtakelse kan tidligst skje etter at styrets godkjennelse er avklart.
Boligselgerforsikring
Selger har i forbindelse med salget tegnet boligselgerforsikring levert av Gjensidige.
Boligselgerforsikringen dekker selgers ansvar etter avhendingsloven begrenset oppad til kr 14 millioner. Dersom kjøper oppdager forhold ved eiendommen som hen mener utgjør en mangel ved eiendommen, vil Gjensidige behandle reklamasjonen på vegne av selger. Forsikringsvilkår kan fås ved henvendelse til megler.
Vedlagt salgsoppgaven følger selgers egenerklæringsskjema og tilstandsrapport. Interessenter må sette seg inn i dokumentene før bud inngis.
Boligkjøperforsikring
Innen kontraktsmøtet må kjøper ta stilling til om det ønskes å bestille Boligkjøperpakken gjennom Gjensidige. I denne gunstige pakken er boligen ferdig forsikret og inkluderer rettshjelpsforsikring, også kalt Boligkjøperforsikring. Rettshjelpsforsikring gir trygghet og tilgang på profesjonell juridisk hjelp dersom det oppdages uventede feil eller mangler det første året etter overtagelse. Forsikringsselskapet behandler i så fall ethvert mangelskrav kjøper måtte ha overfor selger.
Boligkjøperpakken inkluderer bygningsforsikring for hus og hytte, innboforsikring, flytteforsikring og dobbel rentedekning - i situasjoner hvor kjøper ikke får solgt nåværende primærbolig.
Kjøper mottar ingen særskilt faktura for Boligkjøperpakken da kostnaden det første året legges til kjøpesummen for boligen. Det gjøres oppmerksom på Krogsveen mottar et honorar for denne formidlingen.
Produktark for Boligkjøperpakken ligger vedlagt i salgsoppgaven.
Dersom ikke boligkjøperpakke ønskes kan kun rettshjelpsforsikring, også kalt boligkjøperforsikring, tegnes særskilt via megler. Rettshjelpsforsikringen varer i 5 år fra overtagelse og leveres gjennom Gjensidige. Ta kontakt med megler for ytterligere informasjon.
Selskap og privatpersoner som driver med kjøp/salg/utvikling som ledd i egen næringsvirksomhet kan ikke tegne boligkjøperpakke eller rettshjelpsforsikring.
Budgivning
Forbrukerinformasjon om budgivning er vedlagt denne salgsoppgaven og er også på vår hjemmeside Krogsveen.no. Alle bud og budforhøyelser må inngis skriftlig. I tillegg må legitimasjon være fremlagt sammen med signatur fra budgiver.
Vi oppfordrer til å gi bud elektronisk via GI BUD-knappen på eiendommens hjemmeside på Krogsveen.no. Da vil samtlige vilkår bli oppfylt.
Eventuelle forhøyelser eller endringer av budet kan bekreftes pr SMS eller på e-post. Vi oppfordrer alltid til å kontakte megler pr. telefon i tillegg da forsinkelser i SMS og e-post kan forekomme.
For at budene skal kunne bli behandlet og videreformidlet skriftlig til alle involverte parter, må alle bud ha en tilstrekkelig lang akseptfrist, jf. eiendomsmeglingsforskriften § 6-3.
Selger må også skriftlig akseptere budet før aksept kan formidles til budgiver. Akseptfrist bør derfor være på minimum 30 minutter, og budforhøyelser må derfor skje i god tid før fristens utløp.
Bud i forbrukerforhold kan uansett ikke settes med kortere frist enn kl. 12.00 første virkedag etter siste annonserte visning. I tillegg kan ikke budet ha forbehold om at det skal holdes hemmelig ovenfor øvrige interessenter. Megler har iht lov om eiendomsmegling ikke anledning til å videreformidle disse budene, og de vil dermed heller ikke bli journalført.
Etter at eiendommen er solgt vil kjøper og selger få tilsendt budjournal. Øvrige budgivere kan få utlevert kopi av budjournalen i anonymisert form.
Hvitvaskingsreglene
I henhold til lov om hvitvasking og terrorfinansiering har megler plikt til å gjennomføre kontrolltiltak overfor kunder, herunder fullmektiger. Dette innebærer bl.a. å bekrefte kunders og reelle rettighetshaveres identitet på bakgrunn av fremvist gyldig legitimasjon eller på annen godkjent måte, samt å innhente opplysninger om kundeforholdets formål og tilsiktede art.
Dersom slike kundetiltak ikke kan gjennomføres, kan megler ikke etablere kundeforholdet eller utføre transaksjonen.
Hvis kjøper ikke bidrar til gjennomføring av kundekontrollen og dette fører til at transaksjonen blir forsinket eller ikke kan gjennomføres, vil dette ansees som mislighold av avtalen og gi selger rettigheter etter avhendingslova kapittel 5. I tilfeller der selger ikke bidrar til gjennomføring av løpende kundekontroll underveis i oppdraget, er det selger som misligholder sine forpliktelser etter avtalen og gi kjøper rettigheter etter avhendingslovens kapittel 4. Partene er selv ansvarlige for eventuelle kostnader og ansvar dette kan medføre. Eiendomsmegleren eller eiendomsmeglingsforetaket kan ikke holdes ansvarlig for de konsekvenser dette vil kunne få for partene eller andre som har interesser i eiendomshandelen.
Kjøper oppfordres til å innbetale kjøpesummen som ikke kommer fra låneinstitusjon i én samlet innbetaling fra egen konto i norsk bank. Megler har plikt til å melde fra til Økokrim om eiendomshandler som fremstår som mistenkelige. Melding sendes Økokrim uten at partene varsles.
Personopplysningsloven
I henhold til personopplysningsloven gjør vi oppmerksom på at interessenter kan bli registrert for videre oppfølging.
Lovanvendelse
Generelle bestemmelser
Salgsoppgaven er basert på de opplysningene selger har gitt til megler, den bygningssakyndiges tilstandsrapport, samt opplysninger innhentet fra kommunen, Kartverket og andre tilgjengelige kilder. Det er viktig at kjøper setter seg grundig inn i alle salgsdokumentene, herunder salgsoppgave, tilstandsrapport og selgers egenerklæring. Kjøper anses kjent med forhold som er tydelig beskrevet i salgsdokumentene, og slike forhold kan ikke påberopes som mangler. Dette gjelder uavhengig av om kjøper har lest dokumentene. Alle interessenter oppfordres til å undersøke eiendommen nøye, gjerne sammen med fagkyndig før bud inngis. Kjøper som velger å kjøpe usett kan ikke gjøre gjeldende som mangel noe han burde blitt kjent med ved undersøkelsen.
Dersom det er behov for avklaringer, anbefaler vi at interessenter rådfører seg med eiendomsmegler eller egne rådgivere før det legges inn bud.
En bolig som har blitt brukt i en viss tid, har vanligvis blitt utsatt for slitasje og skader kan ha oppstått. Slik bruksslitasje må kjøper regne med, og det kan avdekkes enkelte forhold etter overtakelse som nødvendiggjør utbedringer. Normal slitasje og skader som nødvendiggjør utbedring, er innenfor hva kjøper må forvente og vil ikke utgjøre en mangel.
Kjøper og selgers rettigheter og plikter reguleres av avtalen mellom partene, samt informasjonen som har vært tilgjengelig for kjøperen i forbindelse med handelen. Avtalen utfylles av avhendingsloven, og det gjelder ulike avtalevilkår avhengig av om kjøper er forbrukerkjøper eller ikke. Dette er nærmere beskrevet nedenfor.
På grunn av ulike avtalevilkår kan selger vurdere bud fra en som ikke er forbruker, ulikt fra en forbrukers bud. Dersom kjøper ikke er forbruker, er selger sitt mulige mangelsansvar begrenset fordi eiendommen selges "som den er". Selger kan ikke ta «som den er»- forbehold overfor en forbrukerkjøper. Selv et lavere bud fra en som ikke er forbruker kan foretrekkes fordi begrensningen i mulig mangelsansvar kan ha egenverdi for selger. Selger står fritt til å forkaste eller akseptere ethvert bud, og er for eksempel ikke forpliktet til å akseptere høyeste bud.
Budgiver skal i budskjema avgi egenerklæring om budgiver er forbruker eller næringsdrivende/ person som hovedsakelig handler som ledd i næringsvirksomhet. Budgivere får informasjon dersom andre bud er inngitt av en som ikke er forbruker.
Forbrukerkjøp - definisjon
Med forbrukerkjøp menes kjøp av eiendom når kjøperen er en fysisk person som ikke hovedsakelig handler som ledd i næringsvirksomhet.
Forbruker – avtalevilkår
Eiendommen har en mangel dersom den ikke er i samsvar med kravene som følger av avtalen, eller det foreligger brudd på bestemmelsene i avhendingsloven §§ 3-2 til 3-8. Hvis eiendommen ikke er i samsvar med det kjøperen må kunne forvente ut ifra alder, type og synlig tilstand, kan det være grunnlag for mangelskrav. Det samme gjelder hvis det er holdt tilbake eller gitt uriktige opplysninger om eiendommen. Dette gjelder likevel bare dersom man kan gå ut ifra at det virket inn på avtalen at opplysningen ikke ble gitt eller at mangelskravet ikke blir rettet i tide på en tydelig måte.
Boligen kan ha en mangel etter avhendingsloven § 3-3 andre ledd, dersom det er avvik mellom opplyst og faktisk innvendig areal, forutsatt at avviket er på 2% eller mer og minimum 1 kvm.
Ved beregning av et eventuelt prisavslag eller erstatning må kjøper selv dekke tap/kostnader opptil et beløp på kr 10 000 (egenandel).
Ikke-forbruker (næringsdrivende) – definisjon
Hvis kjøper er en juridisk person, eller en fysisk person som hovedsakelig handler som ledd i næringsvirksomhet, vil kjøpet ikke anses som et forbrukerkjøp.
Ikke-forbruker – avtalevilkår
Eiendommen har en mangel dersom den ikke er i samsvar med kravene som følger av avtalen.
Eiendommen selges «som den er», og selgers ansvar utover det konkret avtalte er da begrenset etter avhendingsloven § 3-9, første ledd andre setning.
Avhendingsloven § 3-3 andre ledd fravikes, og hvorvidt boligens arealsvikt utgjør en mangel vurderes etter avhendingsloven § 3-8.
Informasjon om kjøpers undersøkelsesplikt, herunder oppfordringen om å undersøke eiendommen nøye, gjelder også for kjøpere som ikke anses som forbrukere.
Det forutsettes at hjemmel overføres til kjøper. Hvis kjøper ikke ønsker hjemmelsoverføring av eiendommen, må det tas forbehold om dette i budet.
Meglers vederlag
Meglers vederlag betales av selger og er avtalt til:
Fastpris: 40 000,-
Vederlag:
2 visninger inkl. (ordiært kr 3.500 pr stk/ overtagelse) kr 0,00
Foto kr 4 500,00
Kunderabatt markedspakke kr -8 000,00
Markedsføringspakke kr 29 900,00
Oppgjør kr 8 900,00
Tilrettelegging kr 9 000,00
Utlegg:
Eierskiftegebyr forretningsfører kr 5 995,00
Innhenting av informasjon forretningsfører kr 4 500,00
Innhenting av offentlige opplysninger kr 3 500,00
Tinglysing sikring kr 545,00
Andre utgifter:
Boligselgerforsikring Gjensidige Andel/Aksje
Moss eiendomstaksering takstrapport kr 7 500,00
Vi er opptatt av verdiskapning, og har knyttet til oss samarbeidspartnere som skal sikre våre kunder de beste produkter og tjenester;
• I forbindelse med forberedelse av salget, innhenter vi informasjon om eiendommen hovedsakelig fra vår samarbeidspartner Ambita.
• Gjensidige leverer boligselgerforsikring og tilbyr bygningsforsikring
• Boligkjøperforsikring leveres av Hiscox og med Sedgwick som skadebehandler, og er formidlet gjennom Gjensidige.
• BN bank tilbyr finansieringsløsninger
• Vår avdeling Krogsveen Pluss tilbyr flyttetjenester som utvask, visningsvask, lager, tømming og transport av flyttelass, i tillegg til å formidle kontakt med Flip for overflateoppussing.
• I forbindelse med overtagelse av eiendommen tilbyr Overo avtale om strøm, alarm og bredbånd.
• Krogsveen er, sammen med øvrige bransjeaktører, medeier i den digitale annonseringsplattformen Hjem som eies av Bomega AS.
Opplysninger om oppdraget
Oppdragsnummer 30-0071/26
Eiendomsmegler Krogsveen AS, avd. Moss
Kongens gate 23, 1530, MOSS
950 007 613
Oppdragets KR-kode KR30.2671
Dato
Sist oppdatert: 07. mai 2026 kl. 15:10
Dokumenter
Dokumenter
PDF – 913 KB
PDF – 3 MB
PDF – 10 MB
PDF – 312 KB
PDF – 29 KB
PDF – 127 KB
PDF – 392 KB
Område
Legg til steder som er viktige for deg
Visning
Det er ingen planlagte visninger. Meld deg på for å avtale en tid som passer.
Lurer du på noe?
Unngå doble boligrenter
Vi tilbyr gunstig forsikring.
Vurderer du utleie?
Få et tilbud fra Utleie KrogsveenHva koster lånet?
Sjekk estimert lånekostnadVil du varsles om lignende boliger?
Ved å lagre ditt boligsøk hos oss får du beskjed når vi har en bolig som ligner denne, før den legges ut på markedet!


















