Østre Norderhovskogen 1C
2 000 000 kr
44 m²
1 soverom
Komplett salgsoppgave
Løten
Lettstelt og tiltalende 2-roms eierleilighet fra 2017. Gode lysforhold, balkong og moderne fargevalg.
Prisantydning
2 000 000 krOmkostninger
61 040 krTotalpris
2 061 040 kr
Pris
Bruksareal
50 m²BRA-I (internt bruksareal)
44 m²BRA-E (eksternt bruksareal)
6 m²TBA (terrasse-balkongareal)
10 m²
Areal
Etasje
2Byggeår
2017Soverom
1 soveromBad
1 badType
EierleilighetEierform
EierseksjonFasiliteter
Balkong/TerrasseFellesutgifter
810 krEnergimerke
Lysegrønn C
Nøkkelinfo
Unngå doble boligrenter
Vi tilbyr gunstig forsikring.
Vurderer du utleie?
Få et tilbud fra Utleie KrogsveenHva koster lånet?
Sjekk estimert lånekostnadBeskrivelse
Kort om eiendommen
Østre Norderhovskogen 1C er en flott og tiltalende eierleilighet fra 2017! Gjennomgående moderne farge- og materialvalg, solrik balkong og gangavstand til skole og barnehage, samt Joker Brenneriroa som er søndagsåpen. En god planløsning hvor bad og soverom er i egen sone, og kjøkken og stue er i åpen løsning med utgang til balkong med gode solforhold. Leiligheten inneholder gang, stue/kjøkken, baderom, soverom og rom (som blir benyttet som kontor). Her bor man i et rolig og hyggelig boligområde med kort kjøretid til både Hamar, Løten og Elverum, samt gangavstand til bussforbindelse.
Med følger én sportsbod til leiligheten. Parkeringsplass på fellesparkering.
Velkommen til en hyggelig visning!
Innhold og byggemåte
Innhold og byggemåte
Eiendommen
Østre Norderhovskogen 1C, 2340 LØTEN
Kommunenummer 3412, gårdsnummer 17, bruksnummer 149, seksjonsnummer 3, ideell andel 1/1
Innhold
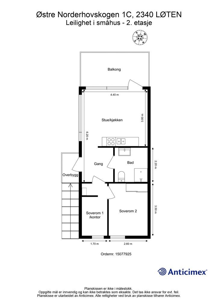
Totalt bruksareal BRA: 50 kvm
BRA-i:
2. etasje 44 kvm: Entré/Gang, bad, to soverom og kjøkken/stue.
BRA-e:
1. etasje 6 kvm: Utebod.
Åpent areal:
2. etasje 10 kvm: Balkong.
Boligen disponerer én bod med adkomst fra frittstående bygg på fellesareal. Boden er tinglyst som en tilleggsdel til seksjonen.
Vedlagte plantegninger er ikke målbare. De oppgitte arealer er hentet fra rapport med befaringsdato 05.01.2026 utført av Anticimex v/Pål Granseth Aasbakken.
Byggemåte
Selger har fått utarbeidet en tilstandsrapport, dvs. en teknisk gjennomgang av boligen hvor eventuelle avvik, risiko for kjøper og prisoverslag for hva som bør gjøres av oppgradering, er skissert. Se særskilt TGIU (tilstandsgrad ikke undersøkt), samt TG2 og TG3 som viser hva som er boligens normale slitasje, alder og type, hva som er avvik fra dette og hva som bør/må utbedres. Rapporten og selgers egenerklæring er en del av salgsoppgaven og må leses nøye før bud inngis. Kjøper overtar ansvaret for de opplysninger som fremkommer av salgsdokumentasjonen, og kan ikke gjøre gjeldende som mangel noe som burde vært kjent eller som ikke kan anses å ha betydning for avtalen.
Bygningen er iht. tilstandsrapporten:
Leilighetsbygg oppført i 2017. Grunnmur og bærende konstruksjoner i hovedsak av betong. Fundamentert på ukjent byggegrunn. Bygget er oppført med støpt gulv mot grunn. Yttervegger av trekonstruksjoner. Utvendige fasader av murpuss, gavler kledd med liggende trekledning. Etasjeskillere av trekonstruksjoner. Saltak i trekonstruksjoner (ikke besiktiget). Yttertak er utvendig tekket med takstein. Entrédør med glassfelter. Vinduer og balkongdør med karmer av tre, og tre-lags glass. Elektrisk oppvarming. Mekanisk balansert ventilasjon
Det gjøres spesielt oppmerksom på at følgende bygningsdeler er gitt tilstandsgrad 2 (TG2):
- Våtrom - Bad: Overflater vegger, Fallforhold (gulv), Ventilasjon, Sanitærutstyr/innredning
- Kjøkken: Vannrør, Varmtvannsbereder, Ventilasjon og avtrekk
- Øvrige rom: Overflater gulv, Ventilasjon
- Loft - uinnredet/råloft: Helhetsvurdering
- Tekniske anlegg, VVS anlegg: Avløpsrør, Ventilasjon
- Yttervegger inkl. fasader og konstruksjon: Fasader ink. kledning
- Drenering: Fuktsikring av grunnmur, Bortledning av takvann
Se supplerende tekst i tilstandsrapporten. Kjøper overtar ansvar og risiko for dette.
Selger opplyser at det er bestilt reparatør til ventilasjonsanlegget.
Standard
Kjøkken:
Åpen kjøkkenløsning med innredningen er fra byggeår. Innredning med glatte fronter, benkeplate av laminat og nedfelt oppvaskkum. Gulvflater belagt med parkett, vegg og himlingsflater i malte flater og metallplate mellom platetopp og overskap. Varmtvannsbereder er plassert under kjøkkenbenk. Integrert stekeovn, platetopp og oppvaskmaskin. Frittstående kjøleskap med fryser. Vegghengt ventilator. Det er kun de hvitevarene som er listet opp som følger med. Disse hvitevarene følger med: platetopp, komfyr, kjøleskap med fryser og oppvaskmaskin.
Bad:
Baderom fra byggeår med flislagt gulv med gulvvarme, flislagte vegger og malte flater i himling. Vegghengt servantinnredning, ovenpåliggende servant, speil med sidelys, dusjhjørne med dører og vegghengt toalett. Opplegg for vaskemaskin og tørketrommel.
Øvrige rom:
Gulvflater belagt med parkett og vegg- og himlingsflater i malte flater. Glatte innerdører.
Selger opplyser om følgende:
- Lys rundt speilet på badet fungerer ikke.
- Ene varmeovnen fungerer ikke.
Løsøre og tilbehør
Vi viser til liste fra Norges Eiendomsmeglerforbund som gjelder fra 01.01.2020 angående løsøre og tilbehør.
Oppvarming
Boligen varmes opp via elektrisk oppvarming.
Dersom beboelsesrom ikke har vegg- eller fastmonterte varmekilder ved visning, følger dette heller ikke med.
Ferdigattest/brukstillatelse
Det foreligger ferdigattest på firemannsbolig, datert 09.04.2021. Denne kan fås ved henvendelse til megler.
Det er mottatt godkjente bygningstegninger fra kommunen, disse er i samsvar med dagens bruk. Rom som i dag blir benyttet som kontor er byggemeldt som bod/garderobe.
Tinglyste heftelser og rettigheter
Sameiet har legalpant for krav mot sameieren som følger av sameieforholdet iht. eierseksjonsloven § 31. Pantet er begrenset oppad til 2G, (G = folketrygdens grunnbeløp).
Det er ingen tinglyste servitutter på eiendommen.
Eiendommen er seksjonert.
Eventuell adgang til utleie
Leiligheten kan leies ut såfremt leiligheten har forsvarlige radonverdier. Leietaker må følge sameiets vedtekter og ordensregler på lik linje som eier.
Det er løpende leiekontrakt på leiligheten nå, og denne kan om ønskelig overtas av ny eier.
Diverse
I følge Elvia ble siste kontroll av det elektriske anlegget utført: 14.02.2024. Foreligger det pålegg om utbedring av feil på det elektriske anlegget: Nei.
Beliggenhet og tomteforhold
Beliggenhet og tomteforhold
Beliggenhet
Beliggende i et etablert boligområde bestående hovedsakelig av småhusbebyggelse. Gangavstand til Joker Brenneriroa (søndagsåpent), treningssenter og bussholdeplass. Kun ca. 3 km til Løten sentrum og ca. 13 km til Hamar sentrum. Her har man et godt utvalg av butikker, spisesteder, kultur og tjenestetilbud. Ca. 15 minutters kjøretid til Budor som byr på meget gode langrennsmuligheter samt flott turterreng gjennom hele året. Se ellers vedlagt nabolagsprofil for nærhet til diverse fasiliteter.
Adkomst
Se kart for adkomst.
Det vil bli skiltet med Krogsveen visningsskilt ved fellesvisninger.
Beskrivelse av tomt
Eiet tomt på 4 368 kvm som tilhører sameiet. Tomten er fellesareal og er opparbeidet med gruslagte veier, diverse beplantninger, plenareal og biloppstillingsplasser.
Parkering
Parkering på fellesparkering. Det er muligheter for å få satt opp sin eget ladepunkt for el-bil på stolpe, må bekostes av eier.
Vei, vann og avløp
Eiendommen har adkomst via kommunal vei. Felles vedlikeholdsansvar for sameiets interne veier.
Eiendommen er tilknyttet kommunalt ledningsnett via private stikkledninger. Sameiet er ansvarlig for private stikkledninger til bygningen.
Regulerings-og arealplaner
Eiendommen er regulert til frittliggende småhusbebyggelse i henhold til reguleringsplan for Norderhovskogen, eldre reguleringsplan, datert 02.05.2007 med tilhørende reguleringsbestemmelser.
Eiendommen omfattes også av Kommuneplanens arealdel 2015-2026, datert 06.04.2016, hvor eiendommen er regulert til boligbebyggelse.
Utsnitt av plan med tilhørende bestemmelser kan fås ved henvendelse til megler.
Økonomi
Økonomi
Boligens kostnader
Fellesutgiftene er kr 810,- pr. mnd. og inkluderer: renovasjon, gressklipping (robotklipper), bygningsforsikring og vedlikehold av fellesarealer.
Fellesutgiftene justeres normalt en til to ganger årlig i forhold til sameiets faktiske utgifter.
Kjøper må selv tegne innboforsikring.
Se i tillegg info under "Info kommunale avgifter".
Kommunale utgifter
Kommunale avgifter er kr. 6 460 for inneværende år. I dette inngår gebyr for vann og avløp.
Nåværende eier har ikke opplyst om årlig strømforbruk eller årlig forsikringspremie.
Boligen er tilknyttet Telenor som leverandør av kabel-tv og internett. Nåværende eier benytter seg av Telia som leverandør. Tv-tuner/dekoder medfølger ikke.
Utgiftene er basert på nåværende eiers forbruk og avtaler.
Formuesverdi
Formuesverdi for 2024 var kr. 444 702,- ifølge selgers skattemelding. Beløpet forutsetter at eier bor fast i boligen (primærbolig).
Ved eventuell øvrig bruk av eiendommen (f.eks. fritidsbolig, pendlerbolig, utleieobjekt) var formuesverdien for 2024 kr. 1 778 808.
Formuesverdien justeres normalt årlig. Se skatteetaten.no for mer informasjon om fastsettelse av formuesverdien.
Eiendomsskatt
Eiendomsskatten utgjør kr. 2 635 pr år.
Omkostninger
2 000 000,00 Prisantydning
Omkostninger
50 000,00 Dokumentavgift til staten (2,5% av kjøpesum)
9 950,00 Gjensidige Boligkjøperpakke (valgfri)
545,00 Tinglysing panterettsdokument
545,00 Tinglysing skjøte
--------------------------------------------------------
61 040,00 Omkostninger totalt
--------------------------------------------------------
2 061 040,00 Totalpris inkl. omkostninger
--------------------------------------------------------
Dersom sameiet har fellesgjeld, vil leilighetens andel av fellesgjelden komme i tillegg til kjøpesummen. Denne gjelden skal ikke innbetales i oppgjøret, men følger leiligheten.
Totalpris inkl. omkostninger forutsetter kjøp til prisantydning.
Det tas forbehold om endringer i avgifter og gebyrer.
Betalingsbetingelser
Kjøpesum inkludert omkostninger, samt pantedokument tilknyttet eventuelt lån, skal være disponibelt hos megler 2 virkedager før overtagelsen.
Annen viktig informasjon
Annen viktig informasjon
Eier
Anette Dølen
Informasjon om sameiet
Eiendommen er seksjonert, og leiligheten er tilknyttet Sameiet Østre Norderhovskogen 1, med sameiebrøk 46/864.
Sameiet består av 16 leiligheter.
Forretningsfører er Sameiet Østre Norderhovskogen 1 v/Line Teppdalen.
Dugnad må påregnes.
Dyrehold er tillatt.
Sameiet opplyser om planlagte påkostninger:
Denne leiligheten samt bod må beises i løpet av 2026, sameiet står for beis og lift. Arbeidet må utføres av ny seksjonseier.
Det skal utføres reparasjonsarbeid på grunnmuren til denne 4-mannsboligen, dette utføres i regi av sameiet.
Dokumenter for sameiet og kopi av seksjonsbegjæringen kan fås ved henvendelse til megler.
Vi gjør videre oppmerksom på at det iht. eierseksjonsloven ikke er anledning å erverve mer enn 2 seksjoner i sameiet, her teller også eierskap via. firma, nærstående og familie. Kjøper har risikoen for at overskjøting på denne bakgrunn kan nektes av Statens Kartverk. I så fall vil kjøper uansett være forpliktet til å gjennomføre handelen, og oppgjør til selger vil finne sted tross manglende overskjøting. Konferer med megler for mer informasjon.
Overtakelse
Etter nærmere avtale. Vennligst oppgi ønsket overtagelse i budskjema.
Boligselgerforsikring
Selger har i forbindelse med salget tegnet boligselgerforsikring levert av Gjensidige.
Boligselgerforsikringen dekker selgers ansvar etter avhendingsloven begrenset oppad til kr 14 millioner. Dersom kjøper oppdager forhold ved eiendommen som hen mener utgjør en mangel ved eiendommen, vil Gjensidige behandle reklamasjonen på vegne av selger. Forsikringsvilkår kan fås ved henvendelse til megler.
Vedlagt salgsoppgaven følger selgers egenerklæringsskjema og tilstandsrapport. Interessenter må sette seg inn i dokumentene før bud inngis.
Boligkjøperforsikring
Innen kontraktsmøtet må kjøper ta stilling til om det ønskes å bestille Boligkjøperpakken gjennom Gjensidige. I denne gunstige pakken er boligen ferdig forsikret og inkluderer rettshjelpsforsikring, også kalt Boligkjøperforsikring. Rettshjelpsforsikring gir trygghet og tilgang på profesjonell juridisk hjelp dersom det oppdages uventede feil eller mangler det første året etter overtagelse. Forsikringsselskapet behandler i så fall ethvert mangelskrav kjøper måtte ha overfor selger.
Boligkjøperpakken inkluderer bygningsforsikring for hus og hytte, innboforsikring, flytteforsikring og dobbel rentedekning - i situasjoner hvor kjøper ikke får solgt nåværende primærbolig.
Kjøper mottar ingen særskilt faktura for Boligkjøperpakken da kostnaden det første året legges til kjøpesummen for boligen. Det gjøres oppmerksom på Krogsveen mottar et honorar for denne formidlingen.
Produktark for Boligkjøperpakken ligger vedlagt i salgsoppgaven.
Dersom ikke boligkjøperpakke ønskes kan kun rettshjelpsforsikring, også kalt boligkjøperforsikring, tegnes særskilt via megler. Rettshjelpsforsikringen varer i 5 år fra overtagelse og leveres gjennom Gjensidige. Ta kontakt med megler for ytterligere informasjon.
Selskap og privatpersoner som driver med kjøp/salg/utvikling som ledd i egen næringsvirksomhet kan ikke tegne boligkjøperpakke eller rettshjelpsforsikring.
Budgivning
Forbrukerinformasjon om budgivning er vedlagt denne salgsoppgaven og er også på vår hjemmeside Krogsveen.no. Alle bud og budforhøyelser må inngis skriftlig. I tillegg må legitimasjon være fremlagt sammen med signatur fra budgiver.
Vi oppfordrer til å gi bud elektronisk via GI BUD-knappen på eiendommens hjemmeside på Krogsveen.no. Da vil samtlige vilkår bli oppfylt.
Eventuelle forhøyelser eller endringer av budet kan bekreftes pr SMS eller på e-post. Vi oppfordrer alltid til å kontakte megler pr. telefon i tillegg da forsinkelser i SMS og e-post kan forekomme.
For at budene skal kunne bli behandlet og videreformidlet skriftlig til alle involverte parter, må alle bud ha en tilstrekkelig lang akseptfrist, jf. eiendomsmeglingsforskriften § 6-3.
Selger må også skriftlig akseptere budet før aksept kan formidles til budgiver. Akseptfrist bør derfor være på minimum 30 minutter, og budforhøyelser må derfor skje i god tid før fristens utløp.
Bud i forbrukerforhold kan uansett ikke settes med kortere frist enn kl. 12.00 første virkedag etter siste annonserte visning. I tillegg kan ikke budet ha forbehold om at det skal holdes hemmelig ovenfor øvrige interessenter. Megler har iht lov om eiendomsmegling ikke anledning til å videreformidle disse budene, og de vil dermed heller ikke bli journalført.
Etter at eiendommen er solgt vil kjøper og selger få tilsendt budjournal. Øvrige budgivere kan få utlevert kopi av budjournalen i anonymisert form.
Hvitvaskingsreglene
I henhold til lov om hvitvasking og terrorfinansiering har megler plikt til å gjennomføre kontrolltiltak overfor kunder, herunder fullmektiger. Dette innebærer bl.a. å bekrefte kunders og reelle rettighetshaveres identitet på bakgrunn av fremvist gyldig legitimasjon eller på annen godkjent måte, samt å innhente opplysninger om kundeforholdets formål og tilsiktede art.
Dersom slike kundetiltak ikke kan gjennomføres, kan megler ikke etablere kundeforholdet eller utføre transaksjonen.
Hvis kjøper ikke bidrar til gjennomføring av kundekontrollen og dette fører til at transaksjonen blir forsinket eller ikke kan gjennomføres, vil dette ansees som mislighold av avtalen og gi selger rettigheter etter avhendingslova kapittel 5. I tilfeller der selger ikke bidrar til gjennomføring av løpende kundekontroll underveis i oppdraget, er det selger som misligholder sine forpliktelser etter avtalen og gi kjøper rettigheter etter avhendingslovens kapittel 4. Partene er selv ansvarlige for eventuelle kostnader og ansvar dette kan medføre. Eiendomsmegleren eller eiendomsmeglingsforetaket kan ikke holdes ansvarlig for de konsekvenser dette vil kunne få for partene eller andre som har interesser i eiendomshandelen.
Kjøper oppfordres til å innbetale kjøpesummen som ikke kommer fra låneinstitusjon i én samlet innbetaling fra egen konto i norsk bank. Megler har plikt til å melde fra til Økokrim om eiendomshandler som fremstår som mistenkelige. Melding sendes Økokrim uten at partene varsles.
Personopplysningsloven
I henhold til personopplysningsloven gjør vi oppmerksom på at interessenter kan bli registrert for videre oppfølging.
Lovanvendelse
Generelle bestemmelser
Salgsoppgaven er basert på de opplysningene selger har gitt til megler, den bygningssakyndiges tilstandsrapport, samt opplysninger innhentet fra kommunen, Kartverket og andre tilgjengelige kilder. Det er viktig at kjøper setter seg grundig inn i alle salgsdokumentene, herunder salgsoppgave, tilstandsrapport og selgers egenerklæring. Kjøper anses kjent med forhold som er tydelig beskrevet i salgsdokumentene, og slike forhold kan ikke påberopes som mangler. Dette gjelder uavhengig av om kjøper har lest dokumentene. Alle interessenter oppfordres til å undersøke eiendommen nøye, gjerne sammen med fagkyndig før bud inngis. Kjøper som velger å kjøpe usett kan ikke gjøre gjeldende som mangel noe han burde blitt kjent med ved undersøkelsen.
Dersom det er behov for avklaringer, anbefaler vi at interessenter rådfører seg med eiendomsmegler eller egne rådgivere før det legges inn bud.
En bolig som har blitt brukt i en viss tid, har vanligvis blitt utsatt for slitasje og skader kan ha oppstått. Slik bruksslitasje må kjøper regne med, og det kan avdekkes enkelte forhold etter overtakelse som nødvendiggjør utbedringer. Normal slitasje og skader som nødvendiggjør utbedring, er innenfor hva kjøper må forvente og vil ikke utgjøre en mangel.
Kjøper og selgers rettigheter og plikter reguleres av avtalen mellom partene, samt informasjonen som har vært tilgjengelig for kjøperen i forbindelse med handelen. Avtalen utfylles av avhendingsloven, og det gjelder ulike avtalevilkår avhengig av om kjøper er forbrukerkjøper eller ikke. Dette er nærmere beskrevet nedenfor.
På grunn av ulike avtalevilkår kan selger vurdere bud fra en som ikke er forbruker, ulikt fra en forbrukers bud. Dersom kjøper ikke er forbruker, er selger sitt mulige mangelsansvar begrenset fordi eiendommen selges "som den er". Selger kan ikke ta «som den er»- forbehold overfor en forbrukerkjøper. Selv et lavere bud fra en som ikke er forbruker kan foretrekkes fordi begrensningen i mulig mangelsansvar kan ha egenverdi for selger. Selger står fritt til å forkaste eller akseptere ethvert bud, og er for eksempel ikke forpliktet til å akseptere høyeste bud.
Budgiver skal i budskjema avgi egenerklæring om budgiver er forbruker eller næringsdrivende/ person som hovedsakelig handler som ledd i næringsvirksomhet. Budgivere får informasjon dersom andre bud er inngitt av en som ikke er forbruker.
Forbrukerkjøp - definisjon
Med forbrukerkjøp menes kjøp av eiendom når kjøperen er en fysisk person som ikke hovedsakelig handler som ledd i næringsvirksomhet.
Forbruker – avtalevilkår
Eiendommen har en mangel dersom den ikke er i samsvar med kravene som følger av avtalen, eller det foreligger brudd på bestemmelsene i avhendingsloven §§ 3-2 til 3-8. Hvis eiendommen ikke er i samsvar med det kjøperen må kunne forvente ut ifra alder, type og synlig tilstand, kan det være grunnlag for mangelskrav. Det samme gjelder hvis det er holdt tilbake eller gitt uriktige opplysninger om eiendommen. Dette gjelder likevel bare dersom man kan gå ut ifra at det virket inn på avtalen at opplysningen ikke ble gitt eller at mangelskravet ikke blir rettet i tide på en tydelig måte.
Boligen kan ha en mangel etter avhendingsloven § 3-3 andre ledd, dersom det er avvik mellom opplyst og faktisk innvendig areal, forutsatt at avviket er på 2% eller mer og minimum 1 kvm.
Ved beregning av et eventuelt prisavslag eller erstatning må kjøper selv dekke tap/kostnader opptil et beløp på kr 10 000 (egenandel).
Ikke-forbruker (næringsdrivende) – definisjon
Hvis kjøper er en juridisk person, eller en fysisk person som hovedsakelig handler som ledd i næringsvirksomhet, vil kjøpet ikke anses som et forbrukerkjøp.
Ikke-forbruker – avtalevilkår
Eiendommen har en mangel dersom den ikke er i samsvar med kravene som følger av avtalen.
Eiendommen selges «som den er», og selgers ansvar utover det konkret avtalte er da begrenset etter avhendingsloven § 3-9, første ledd andre setning.
Avhendingsloven § 3-3 andre ledd fravikes, og hvorvidt boligens arealsvikt utgjør en mangel vurderes etter avhendingsloven § 3-8.
Informasjon om kjøpers undersøkelsesplikt, herunder oppfordringen om å undersøke eiendommen nøye, gjelder også for kjøpere som ikke anses som forbrukere.
Det forutsettes at hjemmel overføres til kjøper. Hvis kjøper ikke ønsker hjemmelsoverføring av eiendommen, må det tas forbehold om dette i budet.
Meglers vederlag
Meglers vederlag betales av selger og er avtalt til:
Vederlag: 2,20 % av salgssummen inkl. eventuell fellesgjeld
Vederlag:
Kontroll av hjemmel og heftelser kr 2 900,00
Markedsføringspakke kr 29 900,00
Oppgjør kr 7 500,00
Tilrettelegging kr 17 000,00
Visninger kr 4 000,00
Utlegg:
Innhenting av offentlig opplysninger Løten kommune inkl tegning kr 5 067,00
Tinglysing sikring kr 545,00
Andre utgifter:
AX tilstandsrapport leilighet kr 10 750,00
Boligselgerforsikring Gjensidige Snr - regnes av prisantydning kr 9 160,00
Foto - 20 bilder - 1 mast kr 4 143,00
Vi er opptatt av verdiskapning, og har knyttet til oss samarbeidspartnere som skal sikre våre kunder de beste produkter og tjenester;
• I forbindelse med forberedelse av salget, innhenter vi informasjon om eiendommen hovedsakelig fra vår samarbeidspartner Amibita.
• Gjensidige leverer boligselgerforsikring og tilbyr bygningsforsikring
• Boligkjøperforsikring leveres av Hiscox og med Sedgwick som skadebehandler, og er formidlet gjennom Gjensidige.
• BN bank tilbyr finansieringsløsninger
• Vår avdeling Krogsveen Pluss tilbyr flyttetjenester som utvask, visningsvask, lager, tømming og transport av flyttelass, i tillegg til å formidle kontakt med Flip for overflateoppussing.
• I forbindelse med overtagelse av eiendommen tilbyr Overo avtale om strøm, alarm og bredbånd.
• Krogsveen er, sammen med øvrige bransjeaktører, medeier i Bomega AS som tilbyr den digitale annonseringsplattformen Hjem.
Opplysninger om oppdraget
Oppdragsnummer 65-0319/25
Eiendomsmegler Krogsveen AS, avd. Hamar
Strandgata 31, 2308, HAMAR
950 007 613
Oppdragets KR-kode KR65.25319
Dato
Sist oppdatert: 25. februar 2026 kl. 20:05
Dokumenter
Dokumenter
PDF – 942 KB
PDF – 135 KB
PDF – 312 KB
PDF – 29 KB
PDF – 127 KB
PDF – 392 KB
Område
Legg til steder som er viktige for deg
Visning
For å delta på visning, ber vi om at du melder deg på. Da sikrer vi at du får nødvendig informasjon og at det er satt av tilstrekkelig med tid. Kontakt megler dersom annet tidspunkt ønskes. Husk å lese salgsoppgaven før visningen, så du stiller forberedt. Ønsker du kun å bli holdt orientert, kan du fra eiendommens hjemmeside få varsel om solgtpris, eller kontakte megler.
Lurer du på noe?
Unngå doble boligrenter
Vi tilbyr gunstig forsikring.
Vurderer du utleie?
Få et tilbud fra Utleie KrogsveenHva koster lånet?
Sjekk estimert lånekostnadVil du varsles om lignende boliger?
Ved å lagre ditt boligsøk hos oss får du beskjed når vi har en bolig som ligner denne, før den legges ut på markedet!




