Jakobslivegen 63
3 590 000 kr
56 m²
2 soverom
Solgt

Pen leilighet fra 2017 med god nybyggstandard. Sørvendt balkong mot sameiets hage. Parkeringsplass i felles P-kjeller.
Prisantydning
3 590 000 krOmkostninger
100 790 krTotalpris
3 690 790 kr
Pris
Bruksareal
61 m²BRA-I (internt bruksareal)
56 m²BRA-E (eksternt bruksareal)
5 m²TBA (terrasse-balkongareal)
6 m²
Areal
Etasje
2Byggeår
2017Soverom
2 soveromBad
1 badType
EierleilighetEierform
EierseksjonFasiliteter
Garasje/P-plass, Heis og Balkong/TerrasseFellesutgifter
2 569 krEnergimerke
Oransje B
Nøkkelinfo
Unngå doble boligrenter
Vi tilbyr gunstig forsikring.
Vurderer du utleie?
Få et tilbud fra Utleie KrogsveenHva koster lånet?
Sjekk estimert lånekostnadBeskrivelse
Kort om eiendommen
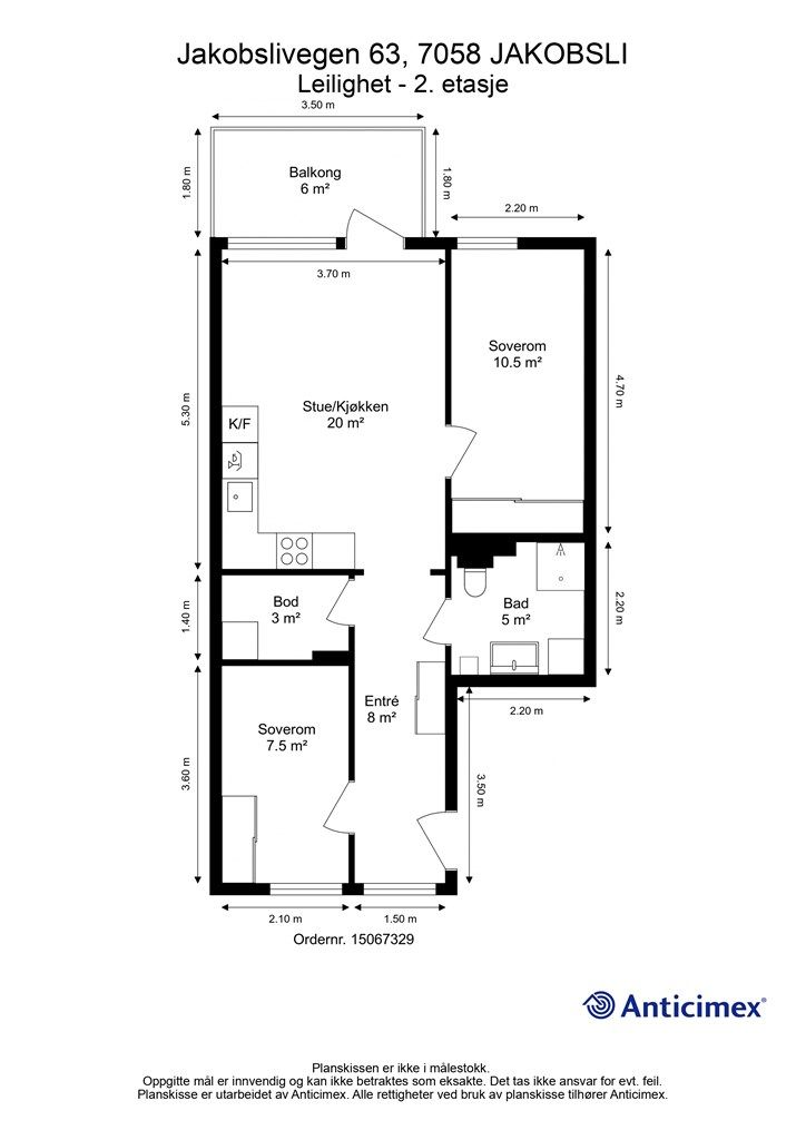
Leiligheten var ny i 2017 og holder meget god nybyggstandard. Den effektive planløsningen er gjennomlys – et grep som gjør arealet ekstra luftig, og begge soverom har god størrelse (10,5 og 7,5 kvm) med gode garderobeløsninger Den hyggelige balkongen vender mot sør, og har lune, gode solforhold med utsikt mot sameiets hage. Boligen har parkeringsplass i sameiets felles parkeringskjeller, og det går heis til alle bygningens etasjer.
Nabolaget er hyggelig, rolig og familievennlig, med stor variasjon i bygningstyper og aldersgrupper. Nærområdet grenser mot åkerlandskapet som strekker seg helt opp til Estenstadmarka. Fine turområder ligger derfor like utenfor døra, med kort vei både til fjorden og marka.
Nærmeste bussholdeplass ligger rett utenfor huset, og den andre ca. 100 meter unna.
Område
Legg til steder som er viktige for deg
På flyttefot? Tenk kjøp og salg samtidig.
Få din egen rådgiver gjennom hele kjøps- og salgsprosessen. Det starter med en verdivurdering.
Unngå doble boligrenter
Vi tilbyr gunstig forsikring.
Vurderer du utleie?
Få et tilbud fra Utleie KrogsveenHva koster lånet?
Sjekk estimert lånekostnadVil du varsles om lignende boliger?
Ved å lagre ditt boligsøk hos oss får du beskjed når vi har en bolig som ligner denne, før den legges ut på markedet!

