Søndre Dølibekken 6
1 990 000 kr
24 m²
Solgt

Nyere (2021) og moderne leilighet i 1. etasje | Sørvendt balkong på ca. 7 kvm | Sentrumsnært | Gangavstand til sentrum
Prisantydning
1 990 000 krOmkostninger
60 790 krTotalpris
2 050 790 kr
Pris
Bruksareal
27 m²BRA-I (internt bruksareal)
24 m²BRA-E (eksternt bruksareal)
3 m²TBA (terrasse-balkongareal)
7 m²
Areal
Etasje
1Byggeår
2021Bad
1 badType
EierleilighetEierform
EierseksjonFasiliteter
Balkong/TerrasseFellesutgifter
2 338 krEnergimerke
Lysegrønn C
Nøkkelinfo
Unngå doble boligrenter
Vi tilbyr gunstig forsikring.
Vurderer du utleie?
Få et tilbud fra Utleie KrogsveenHva koster lånet?
Sjekk estimert lånekostnadBeskrivelse
Kort om eiendommen
Velkommen til Søndre Dølibekken 6!
En moderne leilighet med sentral beliggenhet. Herfra har du gangavstand til det du måtte trenge i hverdagen.
Nyere 1-roms leilighet i byggets første etasje med god standard, leiligheten ble ferdigstilt i 2021 - perfekt for førstegangskjøpere!
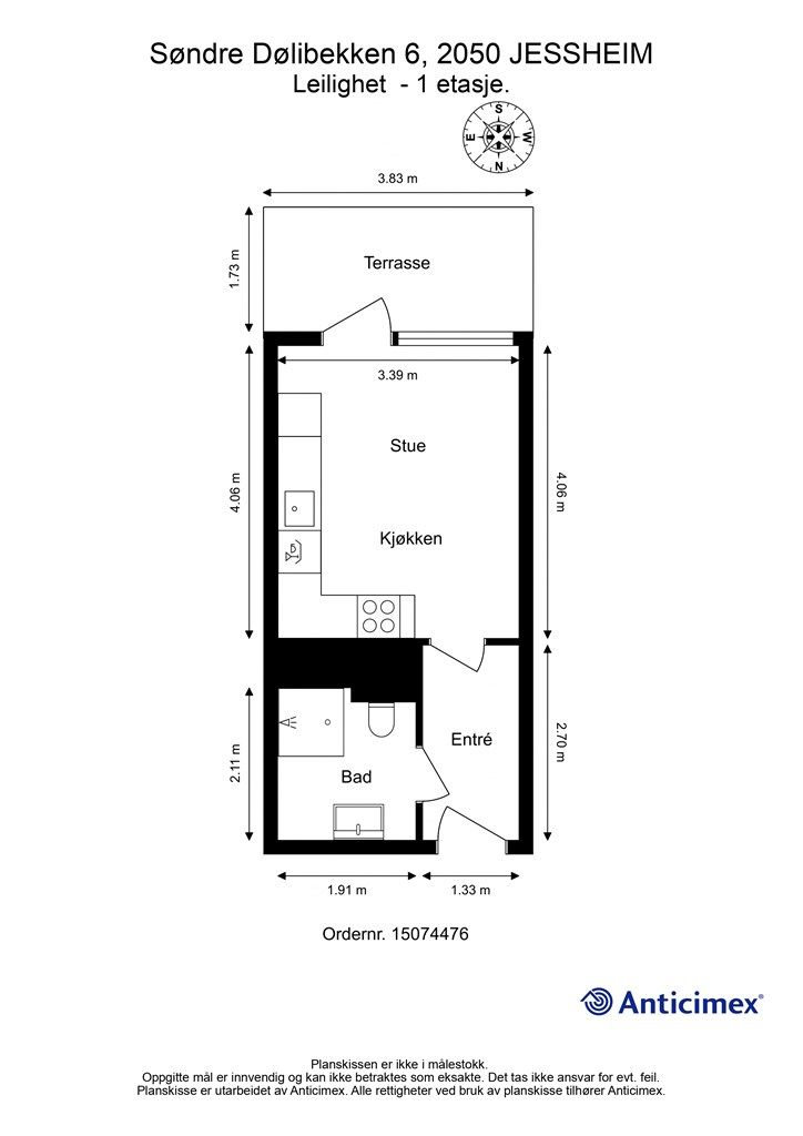
Moderne og arealeffektiv leilighet med åpen kjøkken/stue løsning som utnytter plassen svært godt. Leiligheten har gode vindusflater som slipper inn godt med lys og gir en god romfølelse. Fra stuen er det direkte utgang til en sørvendt balkong på ca. 7 kvm med plass til en mindre sittegruppe.
Leiligheten disponerer en bod på 3 kvm. 1. etasje i nabobygget.
Husk å meld deg på til visning - Vi sees!
Område
Legg til steder som er viktige for deg
På flyttefot? Tenk kjøp og salg samtidig.
Få din egen rådgiver gjennom hele kjøps- og salgsprosessen. Det starter med en verdivurdering.
Unngå doble boligrenter
Vi tilbyr gunstig forsikring.
Vurderer du utleie?
Få et tilbud fra Utleie KrogsveenHva koster lånet?
Sjekk estimert lånekostnadVil du varsles om lignende boliger?
Ved å lagre ditt boligsøk hos oss får du beskjed når vi har en bolig som ligner denne, før den legges ut på markedet!

