Porsmyrveien 22
4 890 000 kr
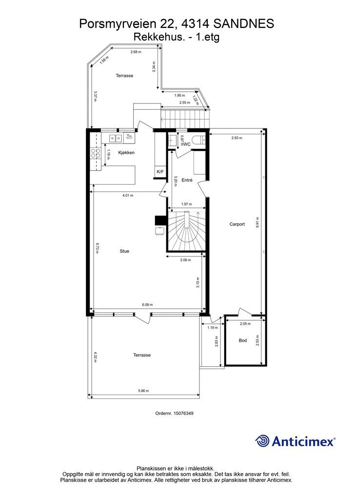
168 m²
3 soverom
Solgt

Lura
Flott rekkehus med ettertraktet og sentral beliggenhet | Innholdsrik planløsning m. 3 sov| 2 terrasser| Carport.
Prisantydning
4 890 000 krAndel fellesgjeld
297 232 krOmkostninger
19 253 krTotalpris
5 206 485 kr
Pris
Bruksareal
172 m²BRA-I (internt bruksareal)
168 m²BRA-E (eksternt bruksareal)
4 m²TBA (terrasse-balkongareal)
47 m²
Areal
Etasje
3Byggeår
1984Soverom
3 soveromType
RekkehusEierform
AndelFasiliteter
Garasje/P-plass og Balkong/TerrasseFellesutgifter
5 598 krEnergimerke
Oransje E
Nøkkelinfo
Unngå doble boligrenter
Vi tilbyr gunstig forsikring.
Vurderer du utleie?
Få et tilbud fra Utleie KrogsveenHva koster lånet?
Sjekk estimert lånekostnadBeskrivelse
Kort om eiendommen
Velkommen til Porsmyrveien 22 – et perfekt hjem for hele familien! Her får du en trygg og rolig beliggenhet i et populært og veletablert nabolag, samtidig som du har kort vei til alt du trenger i hverdagen. Boligen ligger ideelt til på feltet, med nærhet til både barnehager, skoler og flere dagligvarebutikker.
* Oppgradert kjøkken i 2021.
* 2 terrasser med gode solforhold.
* 3 soverom, med mulighet for 4.
* 2 bad.
* Parkering i carport tilhørende boligen m/bod.
* Nærliggende gjesteparkering for besøkende.
* God lagringsplass på loft, i utvendig bod og under tak på carporten.
* Egen inngang til kjeller
* Fine turområder og lekeplasser rett i nærheten.
* Kort vei til barnehager, skoler og dagligvarebutikker – alt du trenger i hverdagen.
Velkommen til visning!
Område
Legg til steder som er viktige for deg
På flyttefot? Tenk kjøp og salg samtidig.
Få din egen rådgiver gjennom hele kjøps- og salgsprosessen. Det starter med en verdivurdering.
Unngå doble boligrenter
Vi tilbyr gunstig forsikring.
Vurderer du utleie?
Få et tilbud fra Utleie KrogsveenHva koster lånet?
Sjekk estimert lånekostnadVil du varsles om lignende boliger?
Ved å lagre ditt boligsøk hos oss får du beskjed når vi har en bolig som ligner denne, før den legges ut på markedet!

