Øysteins gate 7B
3 600 000 kr
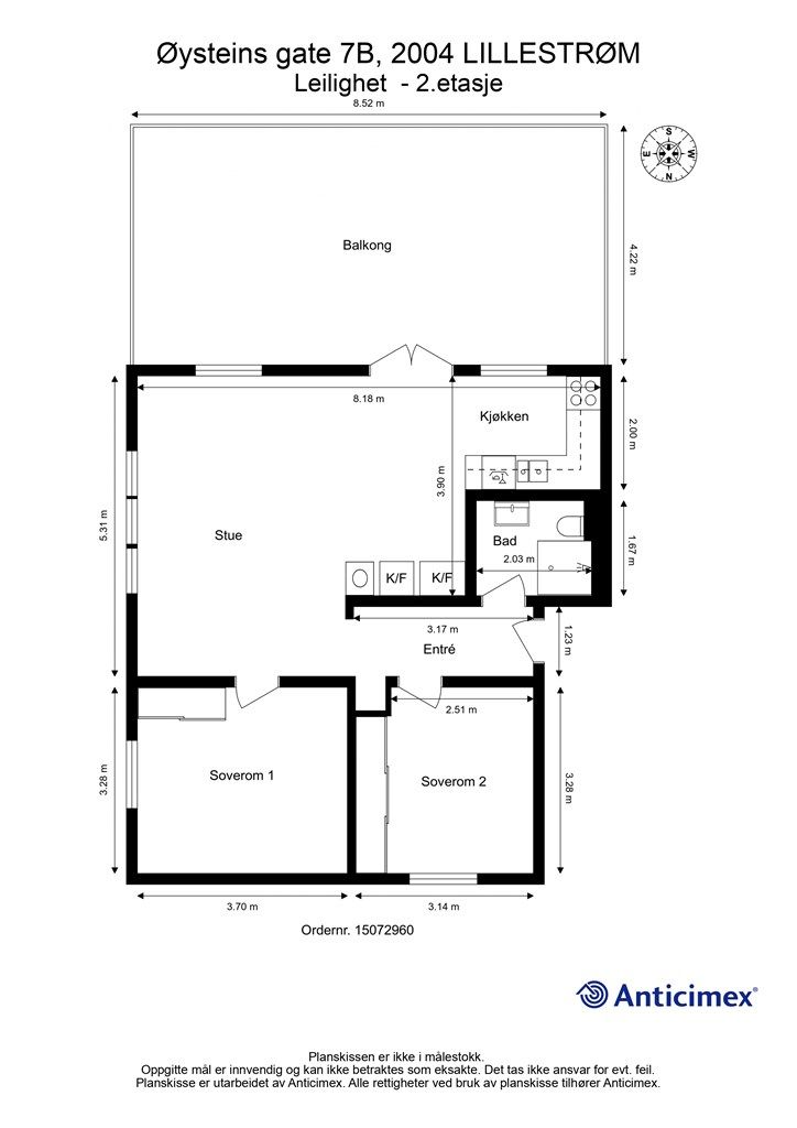
66 m²
2 soverom
Solgt

Vigernes
Innholdsrik leilighet med garasjeplass | Gangavstand til sentrum | Terrasse 36 kvm |
Prisantydning
3 600 000 krOmkostninger
101 040 krTotalpris
3 701 040 kr
Pris
Bruksareal
66 m²BRA-I (internt bruksareal)
66 m²TBA (terrasse-balkongareal)
36 m²
Areal
Etasje
2Byggeår
1955Soverom
2 soveromBad
1 badType
EierleilighetEierform
EierseksjonFasiliteter
Garasje/P-plass og Balkong/TerrasseEnergimerke
Oransje F
Nøkkelinfo
Unngå doble boligrenter
Vi tilbyr gunstig forsikring.
Vurderer du utleie?
Få et tilbud fra Utleie KrogsveenHva koster lånet?
Sjekk estimert lånekostnadBeskrivelse
Kort om eiendommen
Velkommen til trivelige Øysteins gate 7.
* Loftsetasjen som opprinnelig tilhørte denne seksjonen er under reseksjonering og vil bli solgt og overført til naboens seksjon. Loftet følger ikke med denne seksjonen ved salg
Leiligheten ligger i gangavstand fra Lillestrøm sentrum med et rikholdig service- og kulturtilbud.
Leiligheten er en del av en firemannsbolig og har romslig planløsning med gode soverom, og godt med plass for oppbevaring og lagring.
Stor og solrik terrasse på 36 kvm, samt felles hage
Høydepunkter:
• Garasjeplass
• Terrasse 36 kvm + felles hage
• Mulighet for vaskemaskin i felles kjeller
• Barnevennlig og attraktivt boligområde
• Turområder med gang- og sykkelveier rett i nærheten
• Nær butikk, buss og skole
Velkommen til visning :)
Område
Legg til steder som er viktige for deg
Megler

Idriss Eliassy
Eiendomsmegler
På flyttefot? Tenk kjøp og salg samtidig.
Få din egen rådgiver gjennom hele kjøps- og salgsprosessen. Det starter med en verdivurdering.
Unngå doble boligrenter
Vi tilbyr gunstig forsikring.
Vurderer du utleie?
Få et tilbud fra Utleie KrogsveenHva koster lånet?
Sjekk estimert lånekostnadVil du varsles om lignende boliger?
Ved å lagre ditt boligsøk hos oss får du beskjed når vi har en bolig som ligner denne, før den legges ut på markedet!
