Øvre Bjåskar 5
1 990 000 kr
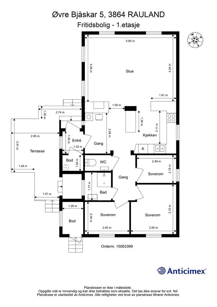
80 m²
3 soverom
Solgt

Rauland - Øvre Bjåskar
Ønsker du en stille og rolig hyttehverdag hele året med plass til alle i familien ? Sjekk ut denne!
Prisantydning
1 990 000 krOmkostninger
70 740 krTotalpris
2 060 740 kr
Pris
Bruksareal
101 m²BRA-I (internt bruksareal)
80 m²BRA-E (eksternt bruksareal)
21 m²TBA (terrasse-balkongareal)
17 m²
Areal
Byggeår
1993Soverom
3 soveromBad
1 badTomteareal
1 019 m² (eiet)Type
Fritidseiendom på fjelletEierform
EietÅrlig velavgift
10 800 krEnergimerke
Rød F
Nøkkelinfo
Vurderer du utleie?
Få et tilbud fra Utleie KrogsveenHva koster lånet?
Sjekk estimert lånekostnadBeskrivelse
Kort om eiendommen
Øvre Bjåskar er et lite hyttefelt med kun 10 hytter hvor det er god plass mellom tomtegrensene. Her kan du virkelig nyte stillhet og oppnå "hyttefølelsen" i rolige omgivelser uten at naboen står å ser på deg fra stuevinduet sitt.
Hytta er utsmykket med lekre detaljer både utvendig og innvendig, har solid stående kledning, torv på tak og en koselig uteplass. Innvendig er det gjennomgående skråtak i hele hytta som gir et godt og luftig preg på rommene. Totalt 10 sengeplasser inkl. annekset med dagens løsning.
Rauland er et eldorado med flotte turmuligheter hele året med preparerte skiløyper, alpinanlegg, toppturer, bærplukk, bading og alt man ønsker seg.
Hytta inneholder: Entré, bod, toalettrom, bad, tre soverom, kjøkken og stue.
Anneks: Gjesterom og bod.
Område
Legg til steder som er viktige for deg
På flyttefot? Tenk kjøp og salg samtidig.
Få din egen rådgiver gjennom hele kjøps- og salgsprosessen. Det starter med en verdivurdering.
Vurderer du utleie?
Få et tilbud fra Utleie KrogsveenHva koster lånet?
Sjekk estimert lånekostnadVil du varsles om lignende boliger?
Ved å lagre ditt boligsøk hos oss får du beskjed når vi har en bolig som ligner denne, før den legges ut på markedet!

