Lundsalleen 24
2 850 000 kr
28 m²
1 soverom
Komplett salgsoppgave

Lillestrøm
Arealeffektiv 1-roms toppleilighet sentralt i Lillestrøm. | Innglasset balkong m/utsikt. | V.vann inkl.
Prisantydning
2 850 000 krAndel fellesgjeld
30 350 krOmkostninger
35 677 krTotalpris
2 916 027 kr
Pris
Bruksareal
39 m²BRA-I (internt bruksareal)
28 m²BRA-E (eksternt bruksareal)
3 m²TBA (terrasse-balkongareal)
3 m²
Areal
Etasje
4Byggeår
1963Soverom
1 soveromBad
1 badType
AndelsleilighetEierform
AndelFasiliteter
Balkong/TerrasseFellesutgifter
4 592 krEnergimerke
Oransje E
Nøkkelinfo
Unngå doble boligrenter
Vi tilbyr gunstig forsikring.
Vurderer du utleie?
Få et tilbud fra Utleie KrogsveenHva koster lånet?
Sjekk estimert lånekostnadBeskrivelse
Kort om eiendommen
Innhold og byggemåte
Innhold og byggemåte
Eiendommen
Lundsalleen 24, 2004 LILLESTRØM
Kommunenummer 3205, gårdsnummer 81, bruksnummer 1643, ideell andel 1/1
Andelsnummer 28, Lundsalleen Borettslag, organisasjonsnummer 848066532
Innhold
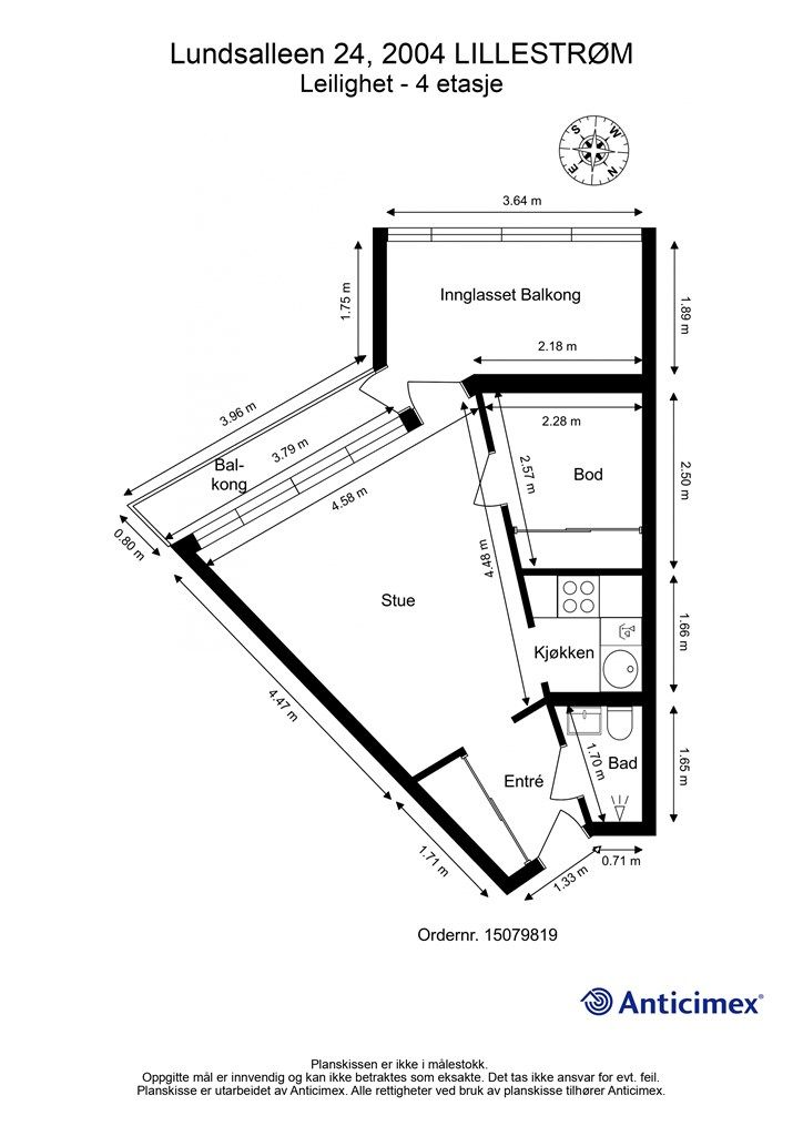
Totalt bruksareal BRA: 39 kvm
BRA-i:
4. etasje 28 kvm: Entré, bad, bod, stue, kjøkken.
BRA-e:
Loft 3 kvm: Loftbod.
Kjeller 1 kvm: Bod. Arealet er opplyst av selger og er ikke kontrollmålt av takstmann.
BRA-b:
4. etasje 8 kvm: Innglasset balkong.
Terrasse- og balkongareal (TBA):
4. etasje 3 kvm: Balkong.
Loftsetasjen har et totalt gulvareal (GUA) på 7 m², men grunnet skråtak/lav takhøyde er kun 3 m² av arealet måleverdig som bruksareal. De delene av arealene som har lav himlingshøyde (ALH) utgjør 4 m².
Det gjøres oppmerksom på at boligens eksterne boder tilhører borettslagets fellesareal, og at boden således ikke eies av den enkelte andelseier. Dette medfører at borettslaget i fellesskap beslutter bruken, og at man ikke selv har eierrett og rettsvern for boden. Borettslaget kan ved vedtak beslutte annet bruk av fellesarealet og disponering av bodarealet kan dermed opphøre.
Vedlagte plantegninger er ikke målbare. De oppgitte arealer er hentet fra rapport med befaringsdato 25.02.2026 utført av Anticimex AS v/Jan Olav Morell-Nielsen.
Byggemåte
Selger har fått utarbeidet en tilstandsrapport, dvs. en teknisk gjennomgang av boligen hvor eventuelle avvik, risiko for kjøper og prisoverslag for hva som bør gjøres av oppgradering, er skissert. Se særskilt TGIU (tilstandsgrad ikke undersøkt), samt TG2 og TG3 som viser hva som er boligens normale slitasje, alder og type, hva som er avvik fra dette og hva som bør/må utbedres. Rapporten og selgers egenerklæring er en del av salgsoppgaven og må leses nøye før bud inngis. Kjøper overtar ansvaret for de opplysninger som fremkommer av salgsdokumentasjonen, og kan ikke gjøre gjeldende som mangel noe som burde vært kjent eller som ikke kan anses å ha betydning for avtalen.
Bygningen er iht. tilstandsrapport oppført i 1963. Dette er et leilighetsbygg med kjeller. Bygget har grunnmur av betong og støpt gulv mot grunn. Yttervegger er i en kombinasjon av tre- og betongkonstruksjoner med utvendige fasader av murpuss og fasadeplater. Etasjeskillere er av betong. Taket er en flat takkonstruksjon. Boligen har vinduer med karmer av tre. Entrédøren har brannklasse B30 og lydklasse 35dB, med sikkerhetslås og dørkikkert. Det er en balkongdør fra stue til innglasset balkong med karm/ramme av tre fra 1992, og en balkongdør fra innglasset balkong til balkong med karm/ramme av plast/metall fra ukjent årstall. Innvendig er det profilerte innerdører.
Følgende bygningsdeler er gitt Tilstandsgrad 2 (TG2) — Avvik som kan kreve tiltak:
Våtrom
- Vanntett sjikt / membran i gulv og vegger: Vanntett sjikt er vurdert til å ha en alder som tilsier at fremtidig funksjon er usikker.
- Tettesjiktets tilslutning til sluk: Overgang mellom sluk og vanntett sjikt er uoversiktlig.
- Vannrør: Vannrør av kobber (og tilhørende komponenter) har en alder som tilsier at fremtidig funksjon er usikker.
Kjøkken
- Ventilator: Ventilatoren er tilkoblet en felles avtrekkskanal eller sjakt som deles med flere boenheter. Ved bruk av kjøkkenventilatoren, begrenses avtrekk på bad. Tilkobling av mekaniske vifter i slike kanaler er normalt ikke tillatt, da dette kan gi risiko for luktspredning og redusert funksjon når flere enheter bruker systemet samtidig.
Vinduer og ytterdører
- Vinduer og omramming: Enkelte vinduer viser begynnende tegn til slitasje på overflatebehandling.
Følgende bygningsdeler er ikke undersøkt (TGIU):
Balkonger
- Membraner og vanntett sjikt: Bygningsdelen er ikke undersøkt.
Se vedlagt tilstandsrapport for supplerende informasjon vedrørende boligens tilstand.
Standard
Velkommen til denne lyse og velutnyttede leiligheten i 4. etasje, pen andelsleilighet som byr på en luftig utsikt over Lillestrøm.
Her får du en praktisk planløsning med gode lagringsmuligheter og en stue med utgang til to balkonger.
Du ønskes velkommen inn i en praktisk entré med skyvedørsgarderobe, og plass til å henge fra seg yttertøy.
Baderommet er flislagt og utstyrt med gulvvarme.
Her finner du en vegghengt servantinnredning med ovenpåliggende servant og armatur, samt et speil med overlys og stikkontakt.
Et vegghengt baderomsmøbel gir ekstra oppbevaring.
Dusjhjørnet har forheng og vegghengt dusjarmatur, og rommet har et gulvstående toalett.
Kjøkkenet har profilerte fronter og en laminert benkeplate. Mellom benk og overskap er det fliser.
Kjøkkenet er utstyrt med nedfelt kjøkkenvask med armatur, benkeskapsbelysning og stikkontakter over benk.
Integrerte hvitevarer som stekeovn, platetopp, oppvaskmaskin og mikrobølgeovn gjør matlagingen enkel.
En ventilator er plassert i overskap, og en automatisk vannstopper med fuktsensor er installert for ekstra trygghet.
Alle hvitevarer er inkludert i salget. Kjøper må forvente slitasje som følge alder og normal bruk.
Stuen gir plass til både koselig spisehjørne og sofakrok.
Store vinduer slipper inn rikelig med naturlig lys og gir en luftig utsikt.
Fra stuen er det adkomst til den innglassede balkongen på 8 m².
Her er det skyvbare glassfelter som gir fleksibilitet.
Gulvet er belagt med fliser og teppe. Videre er det utgang til en åpen balkong.
Den åpne balkongen på 3 m² har gulv belagt med trefliser. Balkongen er sør-sørvestvendt.
I stuen er det etablert bod ved å sette opp lettvegg. Selger benytter boden som sovealkove. Det er satt inn skyvedørsgarderobe i boden for ekstra oppbevaring.
Boden er ikke omsøkt eller godkjent til soverom/rom for varig opphold.
I tillegg disponerer leiligheten en loftsbod på 3 m² og en bod i kjelleretasjen på ca. 1 m².
Oppvarming
Boligen varmes opp i hovedsak via radiatorer/vannbåren varme tilkoblet varmesentral. Det er gulvvarme på baderom.
Dersom beboelsesrom ikke har vegg- eller fastmonterte varmekilder ved visning, følger dette heller ikke med.
Ferdigattest/brukstillatelse
Det er utstedt midlertidig innflytningstillatelse for hybelblokk datert 28.08.1963. Det foreligger ikke ferdigattest for bygget. I tillatelsen er det anmerket gjenstående arbeider som måtte utføres innen to år:
- Noe malingsarbeid og endel elektriske installasjoner i kjeller.
- Håndlist på gelender i hovedtrapp er ikke montert.
- Balkongbrystningene er ikke målt.
- Sluseventiler med friskluftinntak for tilfluktsrom må monteres.
Denne kan fås ved henvendelse til megler.
Det gjøres oppmerksom på at det ikke lenger utstedes ferdigattest på tiltak det er søkt om før 1998 jf. plan- og bygningsloven § 21-10. Kommunen vil ikke kreve ferdigattest for disse tiltakene og vil avvise eventuelle søknader. Bestemmelsen innebærer ikke at tiltak med manglende søknad blir lovlige, men at man ikke trenger å avslutte gamle byggesaker. Normalt sett kreves ferdigattest for alle søknadspliktige tiltak som gjøres etter plan- og bygningsloven.
Det er gitt byggetillatelse for innglassing av balkonger og installasjon av ventilasjonsanlegg datert 02.10.1995, samt igangsettelses-tillatelse datert 09.11.1995.
Det foreligger ikke ferdigattest for tiltaket.
Tillatelsen ble gitt på følgende vilkår:
- Det må dokumenteres fasadetiltak som tilfredsstiller krav til maksimalt innendørs støynivå for alle oppholdsrom.
- Innkledd balkong skal utføres iht. byggeforskriftenes kap. 43:23 (vindu) og kap. 43:31 (rekkverk).
- Ventilasjonsanlegget må monteres etter byggeforskriftenes krav, kanaler må ha nødvendig brannmotstand, og kanalgjennomføringer må tettes med brannklassifisert masse.
- Eventuelle krav fra Nedre Romerike Brann- og redningsvesen må etterkommes.
Disse kan fås ved henvendelse til megler.
Det foreligger godkjente byggetegninger fra 1961 og tegninger for balkongendringer fra 1995/1996. Disse kan fås ved henvendelse til megler.
Det er registrert et mindre avvik mellom byggetegningene og dagens bruk. Dette gjelder en tettet vegg mellom det som nå er en bod og stuen. Rommet er ikke omsøkt eller godkjent til varig opphold.
Kjøper overtar alt ansvar, kostnad og risiko for dette videre.
Tinglyste heftelser og rettigheter
Utover andel fellesgjeld overdras leiligheten fri for pengeheftelser.
Borettslaget har legalpant for forfalte felleskostnader og andre krav som følger av borettslagsforholdet iht. burettslagsloven § 5-20. Pantet er begrenset oppad til 2G (G = folketrygdens grunnbeløp).
Det er tinglyst følgende servitutter på borettslagets eiendom:
Det er tinglyst 2 servitutter på borettslagets eiendom. Disse omhandler blant annet bestemmelse om garasje/parkering, adkomstrett, redskapsbod og vedlikehold og avtale om oppføring og vedlikehold av støyskjerm.
Servituttene vil følge eiendommen. Kjøpers bank vil få prioritet etter ovennevnte heftelser og servitutter.
Eventuell adgang til utleie
Andelseier kan ikke uten samtykke fra styret i borettslaget overlate bruken av boligen til andre. Med samtykke kan andelseier overlate boligen til andre i inntil tre år hvis andelseier har bodd i boligen i minst ett av de to siste år. Utleie i andre tilfeller kan godtas ved særlige grunner, jf. burettslagslova § 5-6. Utleie forutsetter at leiligheten har forsvarlige radonverdier. Se også borettslagets vedtekter og konferer megler ved spørsmål.
Ved framleie av leilighet opphører retten til å leie parkeringsplass automatisk.
Beliggenhet og tomteforhold
Beliggenhet og tomteforhold
Beliggenhet
Leiligheten har en attraktiv og sentral beliggenhet på Vigernes, et rolig og etablert boligområde i Lillestrøm. Her bor du tilbaketrukket fra bykjernen, men har samtidig alt du trenger i hverdagen innen kort gangavstand. Fra leiligheten er det lett å komme seg rundt, enten du skal gjøre daglige innkjøp, følge barna til skolen eller pendle til jobb.
Hverdagslogistikken er enkel med flere dagligvarebutikker, som Meny Åråsen, kun en kort spasertur unna. For barnefamilier er det trygt og praktisk med gangavstand til Vigernes skole, samt flere barnehager i nabolaget. Området byr også på gode fritidstilbud, med Lillestrøm Idrettspark og ballplasser i nærheten, som gir fine muligheter for sport og aktivitet for både store og små.
For et bredere utvalg av butikker og servicetilbud ligger Lillestrøm Torv en spasertur unna, og det er en kort kjøretur til Strømmen Storsenter. Kollektivtilbudet er utmerket, med bussholdeplass i nærheten og gangavstand til Lillestrøm stasjon. Herfra er det hyppige avganger med tog, og reisen til Oslo S tar under et kvarter – ideelt for pendlere. Med bil tar det i underkant av en halvtime til Oslo Lufthavn Gardermoen.
Barnehager, skoler og fritid
B A R N E H A G E R
- Lillestrøm barnehage
- Måsan barnehage
- Sølepytten barnehage
S K O L E R
- Vigernes skole
- Volla skole
- Sophie Radich skole
- Stav skole
- Bråtejordet skole
- Lillestrøm videregående skole
- Skedsmo videregående skole
Informasjon om tilhørende skolekretser er hentet fra Prognosesenteret som dataleverandør, og tilhørigheten kan årlig endres av kommunen. Dersom skole- og barnehagetilbud er av betydning for kjøpet, ber vi om at det rettes en særskilt henvendelse til kommunen for oppdatert informasjon.
Beskrivelse av tomt
Eiertomt på 2474 kvm som tilhører borettslaget. Tomten er opparbeidet med asfalterte veier, plenarealer og diverse beplantning.
Parkering
Leiligheten disponerer ingen egen fast parkeringsplass. Borettslaget har 20 parkeringsplasser (10 med og 10 uten motorvarmer) som tildeles etter ansiennitet via venteliste. Det er kun tillatt med én plass per andelseier, og framleie er ikke tillatt. Gjesteparkering er tilgjengelig for gjester og beboere uten fast plass. Det er ingen mulighet for elbillading.
Vei, vann og avløp
Eiendommen har adkomst via kommunal vei.
Parkeringsplassen er på privat område med felles vedlikeholdsansvar.
Eiendommen er tilknyttet kommunalt ledningsnett via private stikkledninger. Borettslaget er ansvarlig for private stikkledninger til bygningen.
Regulerings-og arealplaner
Eiendommen er uregulert.
Eiendommen berøres av reguleringsplan 267/94 «Reguleringsplan for Gardermobanen, parsell Nitelva - Åråsen», vedtatt 18.10.1994, med tilhørende reguleringsbestemmelser. Planens bestemmelser og reguleringskart for boligformål er opphevet. Det er kun areal regulert til offentlig trafikkområde (jernbane) som fortsatt er gjeldende.
Eiendommen omfattes av kommuneplanen, hvor arealbruken er avsatt til boligbebyggelse.
Utsnitt av plan med tilhørende bestemmelser kan fås ved henvendelse til megler.
Økonomi
Økonomi
Boligens kostnader
Totale felleskostnader er kr 4 592,- per måned. Dette inkluderer renter og avdrag på fellesgjeld, parkering, ordinær GET-pakke (TV), kommunale avgifter og eiendomsskatt.
Felleskostnadene justeres normalt en til to ganger årlig i forhold til borettslagets faktiske utgifter.
Felleskostnadene er fordelt slik:
- Felleskostnader: kr 4 389,-
- Renter: kr 156,-
- Avdrag: kr 47,-
Internett (bredbånd) og GET-boks må ordnes og bekostes av beboer selv. Siden borettslagets lån har flytende rente, kan felleskostnadene endres i takt med renteendringer.
Nåværende eier har et strømforbruk som tilsvarer ca. kr 6 000,- pr. år. / 3 000 kwh. pr. år.
Parkering følger ikke fast, dette er en søknad og koster u/mv: kr 199,- i mnd.
Boligen er tilknyttet Telia som leverandør av kabel-tv/internett. Tv-tuner/dekoder medfølger ikke.
Utgiftene er basert på nåværende eiers forbruk. Kjøper må selv tegne innboforsikring.
Kommunale utgifter
Kommunale avgifter og eiendomsskatt faktureres borettslaget og er dekket gjennom de månedlige felleskostnadene.
Formuesverdi
Ved hjelp av skatteetatens boligkalkulator er boligens formuesverdi beregnet til kr 565 914,- for fjoråret når boligen benyttes som primærbolig.
Formuesverdien er en gitt prosent av den beregnede markedsverdien. Beregnet markedsverdi er basert på Statistisk sentralbyrå (SSB) sine opplysninger om omsatte boliger. I beregningen tas det hensyn til boligens beliggenhet, areal, byggeår og boligtype.
Det er eier av boligen som fastsetter formuesverdien, jf. skatteforvaltningsloven § 9-1 første ledd, men skattemyndighetene kan kontrollere at verdien er satt riktig.
Fra 2026 har Stortinget vedtatt en oppdatert modell for beregning av formuesverdi for primærbolig, så avvik kan forekomme.
For mer informasjon se skatteetaten.no
Opplysninger om fellesgjeld
Andel formue er kr 38 192,- pr. 2025.
Andel fellesgjeld er kr 30 350,- pr. 28.02.2026.
Total fellesgjeld for borettslaget er kr 959 562,- pr. 28.02.2026 og lånevilkårene er:
Bank: BOLIGBANKEN ASA
Type: Annuitetslån, 1 terminer per år
Restsaldo pr. 28.02.26: kr 959 562,-
Andel av saldo: kr 30 350,-
Innfrielsesdato: 31.07.2049
Type Rente: Flytende
Rente: 5,55%
Det er ikke mulighet for individuell nedbetaling (IN-ordning) på borettslagets lån.
Omkostninger
2 850 000,00 Prisantydning
30 350,00 Andel av fellesgjeld
--------------------------------------------------------
2 880 350,00 Pris inkl. fellesgjeld
Omkostninger
8 212,00 Forkjøpsrett - forhåndsutlyst (kjøper)
8 212,00 Forkjøpsrett- benyttet OBOS (kjøper)
8 213,00 Gebyr forhåndsavklaring forkjøpsrett
9 950,00 Gjensidige Boligkjøperpakke (valgfri)
545,00 Tinglysing hjemmel
545,00 Tinglysing panterettsdokument
--------------------------------------------------------
35 677,00 Omkostninger totalt
--------------------------------------------------------
2 916 027,00 Totalpris inkl. omkostninger
--------------------------------------------------------
Dersom kjøper ikke er medlem av boligbyggelaget, må det påregnes en innmeldingsavgift og årlig medlemsgebyr pr. ny andelseier. Dette faktureres direkte fra boligbyggelaget.
Dersom borettslaget har fellesgjeld, vil leilighetens andel av fellesgjelden komme i tillegg til kjøpesummen. Denne gjelden skal ikke innbetales i oppgjøret, men følger leiligheten.
Det tas forbehold om endringer i avgifter og gebyrer.
Tilbud om lånefinansiering
Megler formidler gjerne kontakt med rådgiver hos Trøgstad Sparebank. De har konkurransedyktige betingelser samt rask og løsningsorientert behandling av din lånesøknad.
Betalingsbetingelser
Kjøpesum inkludert omkostninger, samt pantedokument tilknyttet eventuelt lån, skal være disponibelt hos megler 2 virkedager før overtagelsen.
Annen viktig informasjon
Annen viktig informasjon
Eier
Ottar Halvor Graasvoll og Isabelle Kerspern Graasvoll
Informasjon om borettslaget
Leiligheten er tilknyttet Lundsalléen Borettslag.
- Borettslaget består av 32 boenheter.
- Forretningsfører er BORI BBL.
- Borettslaget er forsikret i Fremtind Forsikring AS med polisenummer 20824701.
Dyrehold er i utgangspunktet forbudt, men det kan søkes styret om godkjennelse. Søknaden kan innvilges dersom gode grunner taler for det og dyreholdet ikke er til ulempe for andre beboere.
Det er fellesvaskeri i borettslaget. Sykler kan parkeres i sykkelstativ ute eller i bomberommet i kjelleren.
Det er ikke mulig å lade elbil på borettslagets anlegg.
Fra ordinær generalforsamling 30. april 2025:
- Årsregnskapet for 2024 ble godkjent og resultatet overført til egenkapital.
- Styrehonorar for foregående periode ble satt til kr 90 000.
- Nytt styre ble valgt for perioden 2025-2026, inkludert en ekstern styreleder.
Styret har jobbet med dugnad, og det må påregnes deltakelse.
I henhold til borettslagets vedtekter må kjøper godkjennes av styret som ny andelseier. Det er kjøpers ansvar at styregodkjenning blir gitt, men styret kan ikke nekte godkjenning uten saklig grunn. Iht. burettslagslova kan man bare eie en andel i borettslaget. Kun fysiske personer kan være andelseiere.
Andelseierne i borettslaget og dernest medlemmer i BORI BBL har forkjøpsrett. Boligen er forhåndsutlyst med meldefrist 17.03.2026 kl. 14:00. Dersom boligen tas på forkjøpsrett, løses kjøper fra avtalen.
Borettslaget er tilknyttet Skadeforsikringsselskapet Borettslagenes Sikringsordning AS, som dekker tap ved manglende innbetaling av felleskostnader.
Dokumenter for borettslaget kan fås ved henvendelse til megler.
Overtakelse
Etter nærmere avtale. Overtakelse kan tidligst skje etter at forkjøpsretten for øvrige andelseiere i borettslaget og eventuelt medlemmer av boligbyggelaget er avklart, samt at styrets godkjennelse er avklart.
Boligselgerforsikring
Selger har i forbindelse med salget tegnet boligselgerforsikring levert av Gjensidige.
Boligselgerforsikringen dekker selgers ansvar etter avhendingsloven begrenset oppad til kr 14 millioner. Dersom kjøper oppdager forhold ved eiendommen som hen mener utgjør en mangel ved eiendommen, vil Gjensidige behandle reklamasjonen på vegne av selger. Forsikringsvilkår kan fås ved henvendelse til megler.
Vedlagt salgsoppgaven følger selgers egenerklæringsskjema og tilstandsrapport. Interessenter må sette seg inn i dokumentene før bud inngis.
Boligkjøperforsikring
Innen kontraktsmøtet må kjøper ta stilling til om det ønskes å bestille Boligkjøperpakken gjennom Gjensidige. I denne gunstige pakken er boligen ferdig forsikret og inkluderer rettshjelpsforsikring, også kalt Boligkjøperforsikring. Rettshjelpsforsikring gir trygghet og tilgang på profesjonell juridisk hjelp dersom det oppdages uventede feil eller mangler det første året etter overtagelse. Forsikringsselskapet behandler i så fall ethvert mangelskrav kjøper måtte ha overfor selger.
Boligkjøperpakken inkluderer bygningsforsikring for hus og hytte, innboforsikring, flytteforsikring og dobbel rentedekning - i situasjoner hvor kjøper ikke får solgt nåværende primærbolig.
Kjøper mottar ingen særskilt faktura for Boligkjøperpakken da kostnaden det første året legges til kjøpesummen for boligen. Det gjøres oppmerksom på Krogsveen mottar et honorar for denne formidlingen.
Produktark for Boligkjøperpakken ligger vedlagt i salgsoppgaven.
Dersom ikke boligkjøperpakke ønskes kan kun rettshjelpsforsikring, også kalt boligkjøperforsikring, tegnes særskilt via megler. Rettshjelpsforsikringen varer i 5 år fra overtagelse og leveres gjennom Gjensidige. Ta kontakt med megler for ytterligere informasjon.
Selskap og privatpersoner som driver med kjøp/salg/utvikling som ledd i egen næringsvirksomhet kan ikke tegne boligkjøperpakke eller rettshjelpsforsikring.
Budgivning
Forbrukerinformasjon om budgivning er vedlagt denne salgsoppgaven og er også på vår hjemmeside Krogsveen.no. Alle bud og budforhøyelser må inngis skriftlig. I tillegg må legitimasjon være fremlagt sammen med signatur fra budgiver.
Vi oppfordrer til å gi bud elektronisk via GI BUD-knappen på eiendommens hjemmeside på Krogsveen.no. Da vil samtlige vilkår bli oppfylt.
Eventuelle forhøyelser eller endringer av budet kan bekreftes pr SMS eller på e-post. Vi oppfordrer alltid til å kontakte megler pr. telefon i tillegg da forsinkelser i SMS og e-post kan forekomme.
For at budene skal kunne bli behandlet og videreformidlet skriftlig til alle involverte parter, må alle bud ha en tilstrekkelig lang akseptfrist, jf. eiendomsmeglingsforskriften § 6-3.
Selger må også skriftlig akseptere budet før aksept kan formidles til budgiver. Akseptfrist bør derfor være på minimum 30 minutter, og budforhøyelser må derfor skje i god tid før fristens utløp.
Bud i forbrukerforhold kan uansett ikke settes med kortere frist enn kl. 12.00 første virkedag etter siste annonserte visning. I tillegg kan ikke budet ha forbehold om at det skal holdes hemmelig ovenfor øvrige interessenter. Megler har iht lov om eiendomsmegling ikke anledning til å videreformidle disse budene, og de vil dermed heller ikke bli journalført.
Etter at eiendommen er solgt vil kjøper og selger få tilsendt budjournal. Øvrige budgivere kan få utlevert kopi av budjournalen i anonymisert form.
Hvitvaskingsreglene
I henhold til lov om hvitvasking og terrorfinansiering har megler plikt til å gjennomføre kontrolltiltak overfor kunder, herunder fullmektiger. Dette innebærer bl.a. å bekrefte kunders og reelle rettighetshaveres identitet på bakgrunn av fremvist gyldig legitimasjon eller på annen godkjent måte, samt å innhente opplysninger om kundeforholdets formål og tilsiktede art.
Dersom slike kundetiltak ikke kan gjennomføres, kan megler ikke etablere kundeforholdet eller utføre transaksjonen.
Hvis kjøper ikke bidrar til gjennomføring av kundekontrollen og dette fører til at transaksjonen blir forsinket eller ikke kan gjennomføres, vil dette ansees som mislighold av avtalen og gi selger rettigheter etter avhendingslova kapittel 5. I tilfeller der selger ikke bidrar til gjennomføring av løpende kundekontroll underveis i oppdraget, er det selger som misligholder sine forpliktelser etter avtalen og gi kjøper rettigheter etter avhendingslovens kapittel 4. Partene er selv ansvarlige for eventuelle kostnader og ansvar dette kan medføre. Eiendomsmegleren eller eiendomsmeglingsforetaket kan ikke holdes ansvarlig for de konsekvenser dette vil kunne få for partene eller andre som har interesser i eiendomshandelen.
Kjøper oppfordres til å innbetale kjøpesummen som ikke kommer fra låneinstitusjon i én samlet innbetaling fra egen konto i norsk bank. Megler har plikt til å melde fra til Økokrim om eiendomshandler som fremstår som mistenkelige. Melding sendes Økokrim uten at partene varsles.
Personopplysningsloven
I henhold til personopplysningsloven gjør vi oppmerksom på at interessenter kan bli registrert for videre oppfølging.
Lovanvendelse
Generelle bestemmelser
Salgsoppgaven er basert på de opplysningene selger har gitt til megler, den bygningssakyndiges tilstandsrapport, samt opplysninger innhentet fra kommunen, Kartverket og andre tilgjengelige kilder. Det er viktig at kjøper setter seg grundig inn i alle salgsdokumentene, herunder salgsoppgave, tilstandsrapport og selgers egenerklæring. Kjøper anses kjent med forhold som er tydelig beskrevet i salgsdokumentene, og slike forhold kan ikke påberopes som mangler. Dette gjelder uavhengig av om kjøper har lest dokumentene. Alle interessenter oppfordres til å undersøke eiendommen nøye, gjerne sammen med fagkyndig før bud inngis. Kjøper som velger å kjøpe usett kan ikke gjøre gjeldende som mangel noe han burde blitt kjent med ved undersøkelsen.
Dersom det er behov for avklaringer, anbefaler vi at interessenter rådfører seg med eiendomsmegler eller egne rådgivere før det legges inn bud.
En bolig som har blitt brukt i en viss tid, har vanligvis blitt utsatt for slitasje og skader kan ha oppstått. Slik bruksslitasje må kjøper regne med, og det kan avdekkes enkelte forhold etter overtakelse som nødvendiggjør utbedringer. Normal slitasje og skader som nødvendiggjør utbedring, er innenfor hva kjøper må forvente og vil ikke utgjøre en mangel.
Kjøper og selgers rettigheter og plikter reguleres av avtalen mellom partene, samt informasjonen som har vært tilgjengelig for kjøperen i forbindelse med handelen. Avtalen utfylles av avhendingsloven, og det gjelder ulike avtalevilkår avhengig av om kjøper er forbrukerkjøper eller ikke. Dette er nærmere beskrevet nedenfor.
På grunn av ulike avtalevilkår kan selger vurdere bud fra en som ikke er forbruker, ulikt fra en forbrukers bud. Dersom kjøper ikke er forbruker, er selger sitt mulige mangelsansvar begrenset fordi eiendommen selges "som den er". Selger kan ikke ta «som den er»- forbehold overfor en forbrukerkjøper. Selv et lavere bud fra en som ikke er forbruker kan foretrekkes fordi begrensningen i mulig mangelsansvar kan ha egenverdi for selger. Selger står fritt til å forkaste eller akseptere ethvert bud, og er for eksempel ikke forpliktet til å akseptere høyeste bud.
Budgiver skal i budskjema avgi egenerklæring om budgiver er forbruker eller næringsdrivende/ person som hovedsakelig handler som ledd i næringsvirksomhet. Budgivere får informasjon dersom andre bud er inngitt av en som ikke er forbruker.
Forbrukerkjøp - definisjon
Med forbrukerkjøp menes kjøp av eiendom når kjøperen er en fysisk person som ikke hovedsakelig handler som ledd i næringsvirksomhet.
Forbruker – avtalevilkår
Eiendommen har en mangel dersom den ikke er i samsvar med kravene som følger av avtalen, eller det foreligger brudd på bestemmelsene i avhendingsloven §§ 3-2 til 3-8. Hvis eiendommen ikke er i samsvar med det kjøperen må kunne forvente ut ifra alder, type og synlig tilstand, kan det være grunnlag for mangelskrav. Det samme gjelder hvis det er holdt tilbake eller gitt uriktige opplysninger om eiendommen. Dette gjelder likevel bare dersom man kan gå ut ifra at det virket inn på avtalen at opplysningen ikke ble gitt eller at mangelskravet ikke blir rettet i tide på en tydelig måte.
Boligen kan ha en mangel etter avhendingsloven § 3-3 andre ledd, dersom det er avvik mellom opplyst og faktisk innvendig areal, forutsatt at avviket er på 2% eller mer og minimum 1 kvm.
Ved beregning av et eventuelt prisavslag eller erstatning må kjøper selv dekke tap/kostnader opptil et beløp på kr 10 000 (egenandel).
Ikke-forbruker (næringsdrivende) – definisjon
Hvis kjøper er en juridisk person, eller en fysisk person som hovedsakelig handler som ledd i næringsvirksomhet, vil kjøpet ikke anses som et forbrukerkjøp.
Ikke-forbruker – avtalevilkår
Eiendommen har en mangel dersom den ikke er i samsvar med kravene som følger av avtalen.
Eiendommen selges «som den er», og selgers ansvar utover det konkret avtalte er da begrenset etter avhendingsloven § 3-9, første ledd andre setning.
Avhendingsloven § 3-3 andre ledd fravikes, og hvorvidt boligens arealsvikt utgjør en mangel vurderes etter avhendingsloven § 3-8.
Informasjon om kjøpers undersøkelsesplikt, herunder oppfordringen om å undersøke eiendommen nøye, gjelder også for kjøpere som ikke anses som forbrukere.
Det forutsettes at hjemmel overføres til kjøper. Hvis kjøper ikke ønsker hjemmelsoverføring av eiendommen, må det tas forbehold om dette i budet.
Meglers vederlag
Meglers vederlag betales av selger og er avtalt til:
Fastpris: 30 000,-
Vederlag:
Overtagelse / Visninger - Første visning gratis, deretter kr 2 500,- pr stk
Kontroll av hjemmel og heftelser kr 4 500,-
Markedsføringspakke kr 24 900,-
Oppgjør kr 8 900,-
Tilrettelegging kr 14 900,-
Utlegg:
Forkjøpsrett - forhåndsutlyst forretningsfører kr 8 255,-
Innhenting av informasjon forretningsfører kr 5 250,-
Tinglysing sikring kr 545,-
Andre utgifter:
AX tilstandsrapport leilighet kr 7 950,-
Foto kr 4 300,-
Vi er opptatt av verdiskapning, og har knyttet til oss samarbeidspartnere som skal sikre våre kunder de beste produkter og tjenester;
• I forbindelse med forberedelse av salget, innhenter vi informasjon om eiendommen hovedsakelig fra vår samarbeidspartner Amibita.
• Gjensidige leverer boligselgerforsikring og tilbyr bygningsforsikring
• Boligkjøperforsikring leveres av Hiscox og med Sedgwick som skadebehandler, og er formidlet gjennom Gjensidige.
• BN bank tilbyr finansieringsløsninger
• Vår avdeling Krogsveen Pluss tilbyr flyttetjenester som utvask, visningsvask, lager, tømming og transport av flyttelass, i tillegg til å formidle kontakt med Flip for overflateoppussing.
• I forbindelse med overtagelse av eiendommen tilbyr Overo avtale om strøm, alarm og bredbånd.
• Krogsveen er, sammen med øvrige bransjeaktører, medeier i Bomega AS som tilbyr den digitale annonseringsplattformen Hjem.
Opplysninger om oppdraget
Oppdragsnummer 60-0118/26
Eiendomsmegler Krogsveen AS, avd. Lillestrøm
Adolph Tidemands gate 38, 2000, LILLESTRØM
950 007 613
Oppdragets KR-kode KR60.26118
Dato
Sist oppdatert: 06. mars 2026 kl. 16:00
Dokumenter
Dokumenter
PDF – 965 KB
PDF – 56 KB
PDF – 123 KB
PDF – 168 KB
PDF – 3 MB
PDF – 312 KB
PDF – 29 KB
PDF – 127 KB
PDF – 392 KB
Område
Legg til steder som er viktige for deg
Visning
Unngå doble boligrenter
Vi tilbyr gunstig forsikring.
Vurderer du utleie?
Få et tilbud fra Utleie KrogsveenHva koster lånet?
Sjekk estimert lånekostnadVil du varsles om lignende boliger?
Ved å lagre ditt boligsøk hos oss får du beskjed når vi har en bolig som ligner denne, før den legges ut på markedet!

