Nordre Nesjavegen 83
6 400 000 kr
191 m²
3 soverom
Solgt

Hordvik
Flott enebolig med nydelig sjøutsikt | Stor solrik tomt med fin hage | Dobbelgarasje med el-bil lader | Båtfesterett
Prisantydning
6 400 000 krOmkostninger
180 990 krTotalpris
6 580 990 kr
Pris
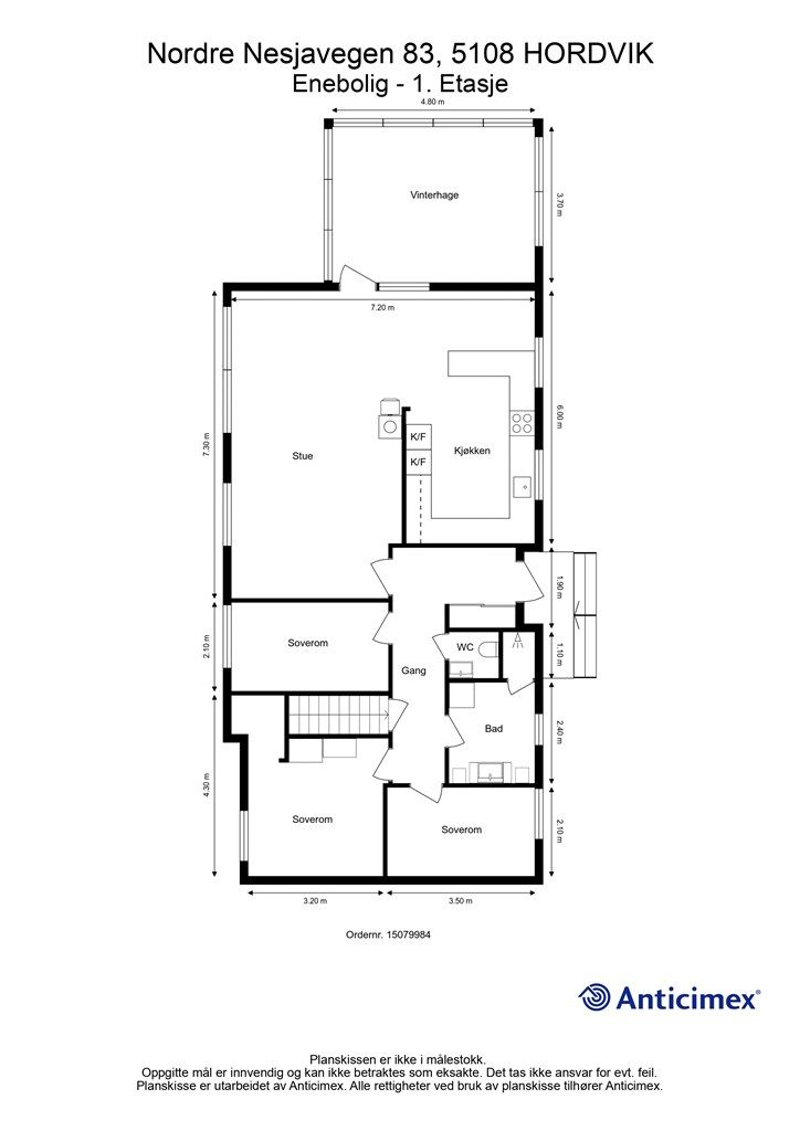
Bruksareal
259 m²BRA-I (internt bruksareal)
191 m²BRA-E (eksternt bruksareal)
49 m²TBA (terrasse-balkongareal)
51 m²
Areal
Etasje
2Byggeår
1979Soverom
3 soveromBad
2 badTomteareal
1 863 m² (eiet)Type
Enebolig - FrittliggendeEierform
EietFasiliteter
Garasje/P-plass og Balkong/TerrasseÅrlig velavgift
3 000 krEnergimerke
Gul D
Nøkkelinfo
Unngå doble boligrenter
Vi tilbyr gunstig forsikring.
Vurderer du utleie?
Få et tilbud fra Utleie KrogsveenHva koster lånet?
Sjekk estimert lånekostnadBeskrivelse
Kort om eiendommen
Boligen ligger i i et barnevennlig og populært boligområde i Hordvik. Fra eiendommen er det nydelig utsikt mot Osterfjorden og Osterøy. Stor tomt med pent opparbeidet hage med god boltreplass for store og små. Kun 5 minutters gang ned til sjøen hvor eiendommen har båtfesterett. Boligen ligger i en privat vei uten gjennomgangstrafikk. Det er gangavstand både til barnehage og til Hordvik barneskole.
Kort fortalt:
- Dobbel garasje med elbillader
- God biloppstillingsplass
- Taket ble impregnert og malt i 2023
- Båtfesterett
- Nytt kjøkken i 2020
- Nytt bad i 2021
- Meget gode solforhold sommerstid
- Stor tomt på 1 863 kvm
- Gangavstand til barnehage og barneskole
- 10 minutter kjøreavstand til Åsane og Knarvik
Område
Legg til steder som er viktige for deg
På flyttefot? Tenk kjøp og salg samtidig.
Få din egen rådgiver gjennom hele kjøps- og salgsprosessen. Det starter med en verdivurdering.
Unngå doble boligrenter
Vi tilbyr gunstig forsikring.
Vurderer du utleie?
Få et tilbud fra Utleie KrogsveenHva koster lånet?
Sjekk estimert lånekostnadVil du varsles om lignende boliger?
Ved å lagre ditt boligsøk hos oss får du beskjed når vi har en bolig som ligner denne, før den legges ut på markedet!

