Guldbækåsen 3
2 000 000 kr
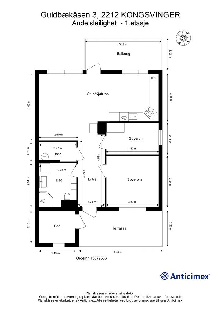
69 m²
2 soverom
Komplett salgsoppgave

Leilighet med nydelig utsikt og sentral beliggenhet!
Prisantydning
2 000 000 krAndel fellesgjeld
942 951 krOmkostninger
11 040 krTotalpris
2 953 991 kr
Pris
Bruksareal
91 m²BRA-I (internt bruksareal)
69 m²BRA-E (eksternt bruksareal)
22 m²TBA (terrasse-balkongareal)
23 m²
Areal
Etasje
1Byggeår
2008Soverom
2 soveromBad
1 badType
AndelsleilighetEierform
AndelFasiliteter
Garasje/P-plass og Balkong/TerrasseFellesutgifter
10 980 krEnergimerke
Rød C
Nøkkelinfo
Unngå doble boligrenter
Vi tilbyr gunstig forsikring.
Vurderer du utleie?
Få et tilbud fra Utleie KrogsveenHva koster lånet?
Sjekk estimert lånekostnadBeskrivelse
Kort om eiendommen
Velkommen til Guldbækåsen 3! Her får du en attraktiv kombinasjon av sentral beliggenhet og flott utsikt. Boligen fremstår som lys, innbydende og velholdt med minimal bruksslitasje. Åpen løsning mellom stue og kjøkken, samt store sørvestvendte vindusflater, gir rikelig med naturlig lys. I umiddelbar nærhet finnes flotte turmuligheter året rundt, samt gode kollektivforbindelser til sentrum av Kongsvinger med alle fasiliteter. Planløsningen er svært tiltalende med inngang på bakkeplan og alt på én flate, helt uten innsyn. Boligen har to soverom, åpen stue-/kjøkkenløsning og en solrik balkong med elektrisk markise.
HØYDEPUNTKER:
- Flott utsikt kombinert med nærhet til sentrum
- Lys og åpen planløsning
- Garasje med elbillader
- Umiddelbar nærhet til turmuligheter
Innhold og byggemåte
Innhold og byggemåte
Eiendommen
Guldbækåsen 3, 2212 KONGSVINGER
Kommunenummer 3401, gårdsnummer 49, bruksnummer 200
Andelsnummer 7, Guldbæklia Borettslag, organisasjonsnummer 992107871
Byggemåte
Selger har fått utarbeidet en tilstandsrapport, dvs. en teknisk gjennomgang av boligen hvor eventuelle avvik, risiko for kjøper og prisoverslag for hva som bør gjøres av oppgradering, er skissert. Se særskilt TGIU (tilstandsgrad ikke undersøkt), samt TG2 og TG3 som viser hva som er boligens normale slitasje, alder og type, hva som er avvik fra dette og hva som bør/må utbedres. Rapporten og selgers egenerklæring er en del av salgsoppgaven og må leses nøye før bud inngis. Kjøper overtar ansvaret for de opplysninger som fremkommer av salgsdokumentasjonen, og kan ikke gjøre gjeldende som mangel noe som burde vært kjent eller som ikke kan anses å ha betydning for avtalen.
Bygningen er iht. tilstandsrapporten oppført i tre. Les for øvrig mer om byggemåte og den tekniske tilstanden i rapporten.
Følgende bygningsdeler har fått TG2 (vesentlig avvik) i tilstandsrapporten:
Våtrom - Bad med adkomst fra entré. :
- Helhetsvurdering: Det er valgt å vurdere våtrommet (og tilhørende bygningsdeler) med en samlet helhetsvurdering. Følgende hovedmomenter er lagt til grunn for vurderingen:
- Helhetsvurdering: Basert på våtrommets samlede tilstandsbilde og hovedmomentene nevnt ovenfor, må det påregnes fornyelse i nær fremtid. Fornyelse av våtrom innebærer som oftest totalrenovering, og erfaring viser at igangsetting av utbedrings- og fornyelsesarbeider ofte avdekker ytterligere forhold som krever tiltak, noe det må tas høyde for.
Kjøkken:
- Vannrør: Vannrørene er ikke plugget mot varerør. Konsekvens er at eventuelt lekkasjevann fra rør-i-rør kan forårsake følgeskader. Foreslått tiltak er lokal utbedring.
VVS-teknisk rom:
- Fallforhold rundt sluk: Lokalfallet i sluksonen er mindre enn anbefalt. Konsekvens er at fallforholdet vurderes å ikke gi tilfredsstillende bortledning av bruksvann ved normal bruk. Foreslått tiltak er lokale tilpasninger eller utbedring dersom fremtidig bruk viser at det er nødvendig.
- Lekkasjesikkerhet: Fallforhold utenfor sluksonen vurderes ikke til å være tilstrekkelig for å lede eventuelt lekkasjevann til sluk, og det er ikke påvist at vanntett sjikt har tilstrekkelig oppkant ved dørterskel for å kompensere for dette. Konsekvens er at forholdet gir risiko for at vann kan renne ut i tilstøtende rom ved en lekkasje. Foreslått tiltak er lokal utbedring.
- Vanntett sjikt / membran: Vanntett sjikt har en alder som tilsier at fremtidig funksjon er usikker. Konsekvensen er at bygningsdelen erfaringsmessig har risiko for nedsatt funksjon, utettheter eller andre aldersrelaterte problemer. Bygningsdelen er skjult, så den faktiske tilstanden og dagens tettefunksjon er ukjent. Foreslått tiltak er videre overvåking, slik at komplett utskiftning kan iverksettes når dette viser seg å være nødvendig.
- Ventilasjon: Våtrommet har svært begrenset ventilasjon. Konsekvensen er at dette kan medføre økt fuktbelastning og redusert luftkvalitet over tid. Det må påregnes å etablere en permanent ventilasjonsløsning som sikrer tilstrekkelig luftutskifting. Foreslått strakstiltak er at det gjennomføres ytterligere undersøkelser for å kartlegge omfang, og eksakt hvilke tiltak som er nødvendig. Følgende sjablongmessig prisanslag gjelder for _.
Tekniske anlegg:
- Innvendig stakeluke: Innvendig stakeluke er ikke påvist, og det er derfor ukjent om dette er etablert. Konsekvens er at det kan være vanskelig å utføre nødvendig vedlikehold eller rensing ved eventuell tilstopping. Stakeluke anses generelt sett som et forskriftskrav, med enkelte unntak. Tilstandsgrad settes i henhold til NS 3600. Foreslått tiltak er ettermontering eller lignende.
- Varmtvannsbereder: På bakgrunn av berederens alder vurderes det at fremtidig funksjon er usikker. Konsekvensen er at bygningsdelen erfaringsmessig har risiko for nedsatt funksjon, funksjonssvikt eller andre aldersrelaterte problemer. Foreslått tiltak er videre overvåking av tilstanden, slik at reparasjon eller utskiftning kan iverksettes når dette blir nødvendig.
Loft - uinnredet / kaldt loft:
- Helhetsvurdering: Det er valgt å vurdere boligens uinnredede loft (og tilhørende bygningsdeler) med en samlet helhetsvurdering. Følgende hovedmomenter er lagt til grunn for vurderingen: Kaldtloft lot seg ikke undersøke grunnet manglende tilkomstmulighet. Konsekvens er at tilstanden i loftet ikke er kartlagt. Foreslått tiltak er videre undersøkelser og kartlegging av dagens tilstand hvis tilkomstmuligheten etableres.
- Helhetsvurdering: Det var ikke tilkomstmulighet til boligens uinnredede loft på befaringsdagen. [Forklar grunnen, manglende stige, låst luke, o.l.] Konsekvensen er at bygningsdelen ikke er undersøkt, og tilstanden ikke kartlagt. Det gjøres oppmerksom på at uinnredede loft er bygningsdeler som krever jevnlig ettersyn, siden skader, feil og mangler som kun er synlige fra loftet er ikke uvanlig. TG2 er valgt for å belyse risikoen dette innebærer for forhold som ikke er avdekket. Foreslått tiltak er at det legges til rette for at det kan gjennomføres videre undersøkelser og kartlegging av dagens tilstand slik at hele risikobildet kartlegges.
Yttertak:
- Helhetsvurdering: Det er valgt å vurdere yttertaket med en samlet helhetsvurdering. Følgende hovedmomenter er lagt til grunn for vurderingen: Taket er ikke fysisk inspisert grunnet is og snø (sikkerhetsmessige forhold). Konsekvens er at taket kan være utsatt for slitasje, skader eller feil utførelse som ikke lar seg registrere på grunn av forholdene på befaringsdagen. Taktekkingen (med tilhørende beslag) viser begynnende tegn til slitasje og elde. Det er derimot ikke registrert synlige skader av vesentlig betydning, men taktekkingen har nådd en alder og tilstand der fremtidig funksjon vurderes som usikker. Konsekvens er at usikker fremtidig funksjon betyr at bygningsdelen erfaringsmessig har risiko for nedsatt funksjon, funksjonssvikt eller andre aldersrelaterte problemer. På bakgrunn av at ventilasjonen av takkonstruksjonen ikke kan kartlegges og undersøkes fra innsiden, foreligger det usikkerhet om hvordan denne funksjonen er ivaretatt. Forholdet kan ikke kartlegges fra utsiden alene. Taket er ikke fysisk inspisert grunnet is og snø (sikkerhetsmessige forhold). Konsekvens er at taket kan være utsatt for slitasje, skader eller feil utførelse som ikke lar seg registrere på grunn av forholdene på befaringsdagen. På bakgrunn av begrensningene i inspeksjonsmuligheten av taket, lot ikke skorsteinen seg undersøke. Tilstand og utførelse er derfor ukjent, og forholdet bør derfor undersøkes nærmere.
- Helhetsvurdering: Basert på bygningsdelens samlede tilstandsbilde og hovedmomentene som nevnes over bør det påregnes tiltak som forebyggende vedlikehold og/eller lokale utbedringer der dette viser seg å være et behov. Erfaring viser at igangsetting av slike arbeider i mange tilfeller avdekker ytterligere forhold som krever tiltak, noe som det bør tas høyde for.
Følgende bygningsdeler har fått TG3 (store eller alvorlige avvik) i tilstandsrapporten:
Tekniske anlegg:
- Mekaniske ventilasjonsanlegg (utover det som nevnes under andre sjekkpunkter): Det mekaniske ventilasjonsanlegget virker ikke. Eksakt årsak til hvorfor anlegget har sluttet å virke er ikke kjent. Anlegget er blant annet er kritisk for å sørge for god ventilasjon som er avgjørende for innemiljøet. Konsekvensen ved manglende ventilasjon kan eksempelvis være økt risiko for fuktskader i boligen. Foreslått strakstiltak er at det gjennomføres ytterligere undersøkelser for å kartlegge omfang, og hvilke tiltak som er nødvendige. Følgende sjablongmessig prisanslag gjelder for bytte av avtrekksvifte.
Se supplerende tekst i tilstandsrapporten. Kjøper overtar ansvar og risiko for dette.
Selger informerer iht. egenerklæringsskjema:
- Byttet dusjvegger, skiftet armatur. Utført 2025 av Vinger Flis og Bad.
- Montering av div elektrisk på kjøkken. Utført i 2024 av Lindstad og Co.
- Hva slags skadedyr og hva var omfanget? Skjeggkre. Ble satt opp feller i alle leiligheter sommer 2025, men ingen skjeggkre hos oss.
Moderniseringer og påkostninger
- Ny duk på elektrisk markise på balkong.
- Varmepumpe.
- Utvidelse av velkomstterrasse.
- Nye dusjvegger og armatur på bad.
- Elektrisk solskjerming på stuevinduer. Zipscreen.
- Byttet til induksjonstopp.
- Montert elbillader i garasje.
- Ny varmtvannsbereder (ca. 198 liter) april 2026.
Standard
For den utfyllende tekniske standard for øvrig, henvises det til vedlagte tilstandsrapport.
Løsøre og tilbehør
Vi viser til liste fra Norges Eiendomsmeglerforbund som gjelder fra 01.01.2020 angående løsøre og tilbehør.
Det er kun de hvitevarene som er listet opp som følger med. Disse hvitevarene følger med:
- Kjøleskap
- Stekeovn (nytt varmeelement i stekeovn)
- Platetopp (fra 2024)
- Oppvaskmaskin.
Kodelås på ytterdør følger handelen.
Det gjøres oppmerksom på at hvitevarene er kjøpt for noen år tilbake, og kjøper må forvente slitasje som følge alder og normal bruk.
Oppvarming
Eiendommen oppvarmes av elektrisitet. Følgende rom har varmekabler i gulv: bad, vindfang og bod.
Det er mulig å etablere ildsted i stuen.
Dersom beboelsesrom ikke har vegg- eller fastmonterte varmekilder ved visning, følger dette heller ikke med.
Ferdigattest/brukstillatelse
Det foreligger ferdigattest på 4-mannsbolig, datert 31.12.2008. Denne kan fås ved henvendelse til megler.
Det foreligger tegninger for leilighetsbygget datert 26.07.2006 som samsvarer med dagens bruk.
Tinglyste heftelser og rettigheter
Utover andel fellesgjeld overdras leiligheten fri for pengeheftelser.
Dagboknr 1019486, tinglyst 18.12.2008, type heftelse: Pliktig medlemskap i velforening/huseierforening.
Borettslaget har legalpant for forfalte felleskostnader og andre krav som følger av borettslagsforholdet iht. burettslagsloven § 5-20. Pantet er begrenset oppad til 2G (G = folketrygdens grunnbeløp).
Servituttene vil følge eiendommen. Kjøpers bank vil få prioritet etter ovennevnte heftelser og servitutter.
Eventuell adgang til utleie
Andelseier kan ikke uten samtykke fra styret i borettslaget overlate bruken av boligen til andre. Med samtykke kan andelseier overlate boligen til andre i inntil tre år hvis andelseier har bodd i boligen i minst ett av de to siste år. Utleie i andre tilfeller kan godtas ved særlige grunner, jf. burettslagslova § 5-6. Utleie forutsetter at leiligheten har forsvarlige radonverdier. Se også borettslagets vedtekter og konferer megler ved spørsmål.
Beliggenhet og tomteforhold
Beliggenhet og tomteforhold
Beliggenhet
Bogeråsen er et fredelig boligområde som ligger i utkanten av Kongsvinger sentrum. Her finner man en blanding av leiligheter og eneboliger, perfekt for familier og alle som ønsker ro og nærhet til naturen. Området er kjent for sine lange og vakre turstier, som ligger rett utenfor døren. Om vinteren tilbys milevis med preparerte skiløyper, ideelt for både tur- og langrennsglade. Om sommeren er Bogerfløyta en populær badeplass, kun cirka 15 minutters gange fra boligen, hvor både barn og voksne kan nyte sol og vann.
I tillegg er det kort vei til Langeland handelsområde, med et variert utvalg av butikker.
Kongsvinger sentrum tilbyr det meste av fasiliteter, inkludert butikker, kino, restauranter, sykehus og skoler. Byen har også gode togforbindelser til blant annet Oslo. Avstander fra Kongsvinger er praktiske: ca. 10 mil til Oslo, ca. 7 mil til Gardermoen og ca. 4 mil til Sverige (Charlottenberg), som byr på et stort kjøpesenter og spennende shoppingmuligheter.
Nærmeste stoppested for bybussen er i Bukkene Bruses veg ca 50 m fra boligen. Kongsvinger stasjon med togforbindelser til Oslo ligger ca 4,2 km fra boligen.
Adkomst
Det vil bli skiltet med Krogsveen visningsskilt ved fellesvisninger. Velkommen!
Barnehager, skoler og fritid
Informasjon om tilhørende skolekretser er hentet fra Prognosesenteret som dataleverandør, og tilhørigheten kan årlig endres av kommunen. Dersom skole- og barnehagetilbud er av betydning for kjøpet, ber vi om at det rettes en særskilt henvendelse til kommunen/bydelsadministrasjonen for oppdatert informasjon.
Kongsvinger kommune har flere barnehager som er kommunale og private. Den som er nærmest beliggende til denne eiendommen er Vangen barnehage som ligger 0,9 km unna.
I sentrum av Kongsvinger finner du det meste av aktivitetstilbud for barn og unge. Her er det flere idrettshaller, tennisanlegg ute og inne, svømmehall, ishockeyhall mm. I tillegg har byen et populært dansestudio. Byen har også et godt teatertilbud for både liten og stor med oppsetninger hvert år. I sentrum finner du også Kongsvinger bibliotek hvor det ofte er arrangementer for alle aldre.
Eiendommen sokner til Langeland barneskole og til storskolen Kongsvinger ungdomsskole som ligger i sentrum av Kongsvinger. Her finner du også videregående skoler som Sentrum VGS, Øvrebyen VGS samt NTG og NTGU.
Parkering
Garasjeplass i felles parkeringsanlegg markert med nr. 5. Parkeringsplassen ligger i nærhet av leiligheten. Øvrig parkering etter områdets bestemmelser.
Vei, vann og avløp
Eiendommen er tilknyttet offentlig vann og avløp via private stikkledninger. Borettslaget er ansvarlig for private stikkledninger til eiendommen.
Regulerings-og arealplaner
Eiendommen er regulert til blokkbebyggelse i henhold til reguleringsplan Vangen 2 Felt R og O datert 23.06.2005 med tilhørende kommuneplan datert 26.09.2019.
Utsnitt av plan med tilhørende bestemmelser kan fås ved henvendelse til megler.
Økonomi
Økonomi
Boligens kostnader
Felleskostnadene er kr 10.980,- pr. mnd. og inkluderer: nedbetaling av renter og avdrag av andel fellesgjeld, forretningsførsel, felles vedlikehold, tv og internett, forsikring, kommunale avgifter, eiendomsskatt, renovasjon m.m.
Felleskostnadene justeres normalt en til to ganger årlig i forhold til borettslagets faktiske utgifter.
Felleskostnadene fordeles slik:
Renteutgifter kr 4.080
Avdrag kr 3.135
Driftsutgifter kr 3.765
Nåværende eier har et strømforbruk som tilsvarer ca. kr 9716,- pr. år. / 9857 kwh. pr. år.
Det er tegnet Norgespris, denne er gyldig til og med 31.12.26 (informasjon fra selger)
Boligen er tilknyttet kabel-tv og internett, dette er inkludert i felleskostnadene. Tv-tuner/dekoder medfølger ikke.
Boligen er tilknyttet Verisure alarmselskap. Kjøper må tegne nytt abonnement.
Utgiftene er basert på nåværende eiers forbruk. Kjøper må selv tegne innboforsikring.
Formuesverdi
Formuesverdi for 2024 var kr 608 759,- ifølge Skatteetaten. Beløpet forutsetter at eier bor fast i boligen (primærbolig).
Ved eventuell øvrig bruk av eiendommen (f.eks. fritidsbolig, pendlerbolig, utleieobjekt) var formuesverdien for 2023 kr 2 435 035,-
Fra 2026 har Stortinget vedtatt en oppdatert modell for beregning av formuesverdi for primærbolig, så avvik kan forekomme.
For mer informasjon se skatteetaten.no
Opplysninger om fellesgjeld
Andel formue er kr 24.410,- pr. 31.12.2025
Andel fellesgjeld er kr 942.951,- pr. 31.12.2025
Lånenummer: 12127466031, DnB Bank ASA (IN lån)
Annuitetslån, 4 terminer per år.
Rentesats per 16.02.2026: 5.2% pa.
Antall terminer til innfrielse: 52
Saldo per 16.02.2026: 1 306 780
Andel av saldo: 439 722
Første termin: 31.03.2009Første avdrag: 31.03.2014 ( siste termin 31.12.2038 )
Annuitet 30 år.
Lånenummer: 12121851952, DnB Bank ASA (IN lån)
Annuitetslån, 4 terminer per år.
Rentesats per 16.02.2026: 5.2% pa.
Antall terminer til innfrielse: 63
Saldo per 16.02.2026: 1 268 688
Andel av saldo: 0
Første termin: 30.12.2011Første avdrag: 30.12.2016 ( siste termin 30.09.2041 )
30 år annuitet.
Lånenummer: 12125395730, DnB Bank ASA
Annuitetslån, 4 terminer per år.
Rentesats per 16.02.2026: 5.2% pa.
Antall terminer til innfrielse: 68
Saldo per 16.02.2026: 1 380 077
Andel av saldo: 172 510
Første termin/første avdrag: 30.06.2013 ( siste termin 31.12.2042 )
Lånenummer: 12128847810, DnB Bank ASA (IN lån)
Annuitetslån, 4 terminer per år.
Rentesats per 16.02.2026: 5.2% pa.
Antall terminer til innfrielse: 75
Saldo per 16.02.2026: 143 677
Andel av saldo: 0
Første termin: 30.12.2014Første avdrag: 30.12.2019 ( siste termin 30.09.2044 )
Annuitet 30 år, herav 5 års avdragsfrihet
Lånenummer: 12130166499, DnB Bank ASA
Annuitetslån, 4 terminer per år.
Rentesats per 16.02.2026: 5.2% pa.
Antall terminer til innfrielse: 72
Saldo per 16.02.2026: 188 101
Andel av saldo: 0
Første termin/første avdrag: 30.03.2015 ( siste termin 30.12.2043 )
Annuitet 30 år
Lånenummer: 16364137870, DnB Bank ASA
Annuitetslån, 4 terminer per år.
Rentesats per 16.02.2026: 5.2% pa.
Antall terminer til innfrielse: 59
Saldo per 16.02.2026: 165 481
Andel av saldo: 3 053
Første termin/første avdrag: 30.09.2021 ( siste termin 30.09.2040 )
annuitet over 20 år
Lånenummer: 16367119350, DnB Bank ASA
Annuitetslån, 4 terminer per år.
Rentesats per 16.02.2026: 5.2% pa.
Antall terminer til innfrielse: 9
Saldo per 16.02.2026: 152 048
Andel av saldo: 2 805
Første termin/første avdrag: 30.09.2023 ( siste termin 31.03.2028 )
Annuitet 5 år.
Lånenummer: 16368396102, DnB Bank ASA
Annuitetslån, 4 terminer per år.
Rentesats per 16.02.2026: 5.2% pa.
Antall terminer til innfrielse: 73
Saldo per 16.02.2026: 1 139 419
Andel av saldo: 36 962
Første termin/første avdrag: 30.06.2024 ( siste termin 31.03.2044 )
annuitet over 20 år
Lånenummer: 1636 89, DnB Bank ASA (IN lån)
Annuitetslån, 4 terminer per år.
Rentesats per 16.02.2026: 5.2% pa.
Antall terminer til innfrielse: 115
Saldo per 16.02.2026: 8 195 554
Andel av saldo: 287 900
Første termin/første avdrag: 30.12.2024 ( siste termin 30.09.2054 )
annuitet over 30 år
Dette borettslaget har tilrettelagt for individuell nedbetaling av andel fellesgjeld (IN-ordning). Det vil si at hver enkelt andelseier helt eller delvis kan velge å nedbetale sin andel av borettslagets fellesgjeld til boligbyggelaget. Dette vil i så fall medføre en reduksjon av de månedlige felleskostnadene (andel av renter og avdrag på fellesgjelden). Nedbetalt andel av fellesgjeld knyttes til andelen og følger andelen ved et eventuelt salg.
Omkostninger
2 000 000,00 Prisantydning
942 951,00 Andel av fellesgjeld
--------------------------------------------------------
2 942 951,00 Pris inkl. fellesgjeld
Omkostninger
9 950,00 Gjensidige Boligkjøperpakke (valgfri)
545,00 Tinglysing hjemmel
545,00 Tinglysing panterettsdokument
--------------------------------------------------------
11 040,00 Omkostninger totalt
--------------------------------------------------------
2 953 991,00 Totalpris inkl. omkostninger
--------------------------------------------------------
Tilbud om lånefinansiering
Megler formidler gjerne kontakt med rådgiver hos vår samarbeidspartner BN Bank. De har konkurransedyktige betingelser samt rask og løsningsorientert behandling av din lånesøknad. Krogsveen mottar et honorar dersom lån opprettes.
Betalingsbetingelser
Kjøpesum inkludert omkostninger, samt pantedokument tilknyttet eventuelt lån, skal være disponibelt hos megler 2 virkedager før overtagelsen.
Annen viktig informasjon
Annen viktig informasjon
Eier
Irene Rogstad Heggen og Arne Tronbøl
Informasjon om borettslaget
Leiligheten er tilknyttet Guldbæklia Borettslag.
Forretningsfører er Kongsvinger og Omegns Boligbyggelag A/L
Dugnad samt trappevask må påregnes.
Dyrehold er tillatt så langt det ikke er til sjenanse for andre beboere.
Foretatt påkostninger de senere år:
- Terrasser.
- Utvendig maling av alle bygg.
- El- og vannsjekk.
- Skiftet alle brannslukningsapparater.
- Sprøytet for skjeggkre.
- Fått på plass alt av dokumentasjon til gass-anlegget i de byggene det gjelder.
- Krise- og beredskapsplaner.
- HMS og vedlikeholdsplan er ajour.
- Rens av ventilasjonsanlegget.
Planlagte påkostninger:
- De neste 3 årene vil det kun være små ting, så det planlegges ikke noe ytterligere husleieøkninger.
Kjøper skal godkjennes av styret i borettslaget. Kjøper bærer selv risikoen for godkjenning. Samtykke kan kun nektes dersom det foreligger saklig grunn.
Medlemmer av borettslaget/boligbyggelaget har forkjøpsrett. Avklaring av forkjøpsrett og godkjenning fra borettslagets styre skjer i etterkant av salget. Forkjøpsrett utlyses på https://www.kobbl.no.
Det gjøres oppmerksom på at det må tegnes medlemskap i Kongsvinger og omegns boligbyggelag. Skal det være flere eiere må hver enkelt ha sitt medlemskap. Medlemskapet koster kr 500,- + kr 300,- i årskontingent ved innmelding.
Borettslaget er sikret i Stiftelsen Borettslagenes Sikringsfond, som ble opprettet av NBBL i 1994. Borettslaget er sikret mot tap som følge av at en andelseier unnlater å betale sine felleskostnader. Avtalen om sikring er gyldig til avtalen sies opp av en av partene. Oppsigelsesfrist er 01. desember med gyldighet fra kommende årsskifte. Borettslagenes Sikringsfond har pr. 2019 en totalkapital på 149,9 MNOK
Borettslaget har legalpant med hjemmel i lov om burettslag §5-20 hvor det gis panterett for felleskostnader begrenset oppad til 2 ganger folketrygdens grunnbeløp (2G)
Overtakelse
Etter nærmere avtale. Overtakelse kan tidligst skje etter at forkjøpsretten for øvrige andelseiere i borettslaget og eventuelt medlemmer av boligbyggelaget er avklart, samt at styrets godkjennelse er avklart.
Boligselgerforsikring
Selger har i forbindelse med salget tegnet boligselgerforsikring levert av Gjensidige.
Boligselgerforsikringen dekker selgers ansvar etter avhendingsloven begrenset oppad til kr 14 millioner. Dersom kjøper oppdager forhold ved eiendommen som hen mener utgjør en mangel ved eiendommen, vil Gjensidige behandle reklamasjonen på vegne av selger. Forsikringsvilkår kan fås ved henvendelse til megler.
Vedlagt salgsoppgaven følger selgers egenerklæringsskjema og tilstandsrapport. Interessenter må sette seg inn i dokumentene før bud inngis.
Boligkjøperforsikring
Innen kontraktsmøtet må kjøper ta stilling til om det ønskes å bestille Boligkjøperpakken gjennom Gjensidige. I denne gunstige pakken er boligen ferdig forsikret og inkluderer rettshjelpsforsikring, også kalt Boligkjøperforsikring. Rettshjelpsforsikring gir trygghet og tilgang på profesjonell juridisk hjelp dersom det oppdages uventede feil eller mangler det første året etter overtagelse. Forsikringsselskapet behandler i så fall ethvert mangelskrav kjøper måtte ha overfor selger.
Boligkjøperpakken inkluderer bygningsforsikring for hus og hytte, innboforsikring, flytteforsikring og dobbel rentedekning - i situasjoner hvor kjøper ikke får solgt nåværende primærbolig.
Kjøper mottar ingen særskilt faktura for Boligkjøperpakken da kostnaden det første året legges til kjøpesummen for boligen. Det gjøres oppmerksom på Krogsveen mottar et honorar for denne formidlingen.
Produktark for Boligkjøperpakken ligger vedlagt i salgsoppgaven.
Dersom ikke boligkjøperpakke ønskes kan kun rettshjelpsforsikring, også kalt boligkjøperforsikring, tegnes særskilt via megler. Rettshjelpsforsikringen varer i 5 år fra overtagelse og leveres gjennom Gjensidige. Ta kontakt med megler for ytterligere informasjon.
Selskap og privatpersoner som driver med kjøp/salg/utvikling som ledd i egen næringsvirksomhet kan ikke tegne boligkjøperpakke eller rettshjelpsforsikring.
Budgivning
Forbrukerinformasjon om budgivning er vedlagt denne salgsoppgaven og er også på vår hjemmeside Krogsveen.no. Alle bud og budforhøyelser må inngis skriftlig. I tillegg må legitimasjon være fremlagt sammen med signatur fra budgiver.
Vi oppfordrer til å gi bud elektronisk via GI BUD-knappen på eiendommens hjemmeside på Krogsveen.no. Da vil samtlige vilkår bli oppfylt.
Eventuelle forhøyelser eller endringer av budet kan bekreftes pr SMS eller på e-post. Vi oppfordrer alltid til å kontakte megler pr. telefon i tillegg da forsinkelser i SMS og e-post kan forekomme.
For at budene skal kunne bli behandlet og videreformidlet skriftlig til alle involverte parter, må alle bud ha en tilstrekkelig lang akseptfrist, jf. eiendomsmeglingsforskriften § 6-3.
Selger må også skriftlig akseptere budet før aksept kan formidles til budgiver. Akseptfrist bør derfor være på minimum 30 minutter, og budforhøyelser må derfor skje i god tid før fristens utløp.
Bud i forbrukerforhold kan uansett ikke settes med kortere frist enn kl. 12.00 første virkedag etter siste annonserte visning. I tillegg kan ikke budet ha forbehold om at det skal holdes hemmelig ovenfor øvrige interessenter. Megler har iht lov om eiendomsmegling ikke anledning til å videreformidle disse budene, og de vil dermed heller ikke bli journalført.
Etter at eiendommen er solgt vil kjøper og selger få tilsendt budjournal. Øvrige budgivere kan få utlevert kopi av budjournalen i anonymisert form.
Hvitvaskingsreglene
I henhold til lov om hvitvasking og terrorfinansiering har megler plikt til å gjennomføre kontrolltiltak overfor kunder, herunder fullmektiger. Dette innebærer bl.a. å bekrefte kunders og reelle rettighetshaveres identitet på bakgrunn av fremvist gyldig legitimasjon eller på annen godkjent måte, samt å innhente opplysninger om kundeforholdets formål og tilsiktede art.
Dersom slike kundetiltak ikke kan gjennomføres, kan megler ikke etablere kundeforholdet eller utføre transaksjonen.
Hvis kjøper ikke bidrar til gjennomføring av kundekontrollen og dette fører til at transaksjonen blir forsinket eller ikke kan gjennomføres, vil dette ansees som mislighold av avtalen og gi selger rettigheter etter avhendingslova kapittel 5. I tilfeller der selger ikke bidrar til gjennomføring av løpende kundekontroll underveis i oppdraget, er det selger som misligholder sine forpliktelser etter avtalen og gi kjøper rettigheter etter avhendingslovens kapittel 4. Partene er selv ansvarlige for eventuelle kostnader og ansvar dette kan medføre. Eiendomsmegleren eller eiendomsmeglingsforetaket kan ikke holdes ansvarlig for de konsekvenser dette vil kunne få for partene eller andre som har interesser i eiendomshandelen.
Kjøper oppfordres til å innbetale kjøpesummen som ikke kommer fra låneinstitusjon i én samlet innbetaling fra egen konto i norsk bank. Megler har plikt til å melde fra til Økokrim om eiendomshandler som fremstår som mistenkelige. Melding sendes Økokrim uten at partene varsles.
Personopplysningsloven
I henhold til personopplysningsloven gjør vi oppmerksom på at interessenter kan bli registrert for videre oppfølging.
Lovanvendelse
Generelle bestemmelser
Salgsoppgaven er basert på de opplysningene selger har gitt til megler, den bygningssakyndiges tilstandsrapport, samt opplysninger innhentet fra kommunen, Kartverket og andre tilgjengelige kilder. Det er viktig at kjøper setter seg grundig inn i alle salgsdokumentene, herunder salgsoppgave, tilstandsrapport og selgers egenerklæring. Kjøper anses kjent med forhold som er tydelig beskrevet i salgsdokumentene, og slike forhold kan ikke påberopes som mangler. Dette gjelder uavhengig av om kjøper har lest dokumentene. Alle interessenter oppfordres til å undersøke eiendommen nøye, gjerne sammen med fagkyndig før bud inngis. Kjøper som velger å kjøpe usett kan ikke gjøre gjeldende som mangel noe han burde blitt kjent med ved undersøkelsen.
Dersom det er behov for avklaringer, anbefaler vi at interessenter rådfører seg med eiendomsmegler eller egne rådgivere før det legges inn bud.
En bolig som har blitt brukt i en viss tid, har vanligvis blitt utsatt for slitasje og skader kan ha oppstått. Slik bruksslitasje må kjøper regne med, og det kan avdekkes enkelte forhold etter overtakelse som nødvendiggjør utbedringer. Normal slitasje og skader som nødvendiggjør utbedring, er innenfor hva kjøper må forvente og vil ikke utgjøre en mangel.
Kjøper og selgers rettigheter og plikter reguleres av avtalen mellom partene, samt informasjonen som har vært tilgjengelig for kjøperen i forbindelse med handelen. Avtalen utfylles av avhendingsloven, og det gjelder ulike avtalevilkår avhengig av om kjøper er forbrukerkjøper eller ikke. Dette er nærmere beskrevet nedenfor.
På grunn av ulike avtalevilkår kan selger vurdere bud fra en som ikke er forbruker, ulikt fra en forbrukers bud. Dersom kjøper ikke er forbruker, er selger sitt mulige mangelsansvar begrenset fordi eiendommen selges "som den er". Selger kan ikke ta «som den er»- forbehold overfor en forbrukerkjøper. Selv et lavere bud fra en som ikke er forbruker kan foretrekkes fordi begrensningen i mulig mangelsansvar kan ha egenverdi for selger. Selger står fritt til å forkaste eller akseptere ethvert bud, og er for eksempel ikke forpliktet til å akseptere høyeste bud.
Budgiver skal i budskjema avgi egenerklæring om budgiver er forbruker eller næringsdrivende/ person som hovedsakelig handler som ledd i næringsvirksomhet. Budgivere får informasjon dersom andre bud er inngitt av en som ikke er forbruker.
Forbrukerkjøp - definisjon
Med forbrukerkjøp menes kjøp av eiendom når kjøperen er en fysisk person som ikke hovedsakelig handler som ledd i næringsvirksomhet.
Forbruker – avtalevilkår
Eiendommen har en mangel dersom den ikke er i samsvar med kravene som følger av avtalen, eller det foreligger brudd på bestemmelsene i avhendingsloven §§ 3-2 til 3-8. Hvis eiendommen ikke er i samsvar med det kjøperen må kunne forvente ut ifra alder, type og synlig tilstand, kan det være grunnlag for mangelskrav. Det samme gjelder hvis det er holdt tilbake eller gitt uriktige opplysninger om eiendommen. Dette gjelder likevel bare dersom man kan gå ut ifra at det virket inn på avtalen at opplysningen ikke ble gitt eller at mangelskravet ikke blir rettet i tide på en tydelig måte.
Boligen kan ha en mangel etter avhendingsloven § 3-3 andre ledd, dersom det er avvik mellom opplyst og faktisk innvendig areal, forutsatt at avviket er på 2% eller mer og minimum 1 kvm.
Ved beregning av et eventuelt prisavslag eller erstatning må kjøper selv dekke tap/kostnader opptil et beløp på kr 10 000 (egenandel).
Ikke-forbruker (næringsdrivende) – definisjon
Hvis kjøper er en juridisk person, eller en fysisk person som hovedsakelig handler som ledd i næringsvirksomhet, vil kjøpet ikke anses som et forbrukerkjøp.
Ikke-forbruker – avtalevilkår
Eiendommen har en mangel dersom den ikke er i samsvar med kravene som følger av avtalen.
Eiendommen selges «som den er», og selgers ansvar utover det konkret avtalte er da begrenset etter avhendingsloven § 3-9, første ledd andre setning.
Avhendingsloven § 3-3 andre ledd fravikes, og hvorvidt boligens arealsvikt utgjør en mangel vurderes etter avhendingsloven § 3-8.
Informasjon om kjøpers undersøkelsesplikt, herunder oppfordringen om å undersøke eiendommen nøye, gjelder også for kjøpere som ikke anses som forbrukere.
Det forutsettes at hjemmel overføres til kjøper. Hvis kjøper ikke ønsker hjemmelsoverføring av eiendommen, må det tas forbehold om dette i budet.
Meglers vederlag
Meglers vederlag betales av selger og er avtalt til:
Vederlag: 2,00 % av salgssummen inkl. eventuell fellesgjeld.
Vederlag:
Kontroll av hjemmel og heftelser kr 3 900,00
Markedsføringspakke kr 27 000,00
Oppgjør kr 8 900,00
Tilrettelegging kr 19 000,00
Visninger pr stk / Overtagelse kr 4 000,00
Utlegg:
Eierskiftegebyr - KOBBL kr 5 884,00
Innhenting av informasjon forretningsfører KOBBL kr 4 723,00
Innhenting av offentlig opplysninger - Kongsvinger kommune kr 2 851,00
Tinglysing sikring kr 545,00
Andre utgifter:
AX tilstandsrapport leilighet kr 9 950,00
Boligselgerforsikring Gjensidige Andel regnes av prisant. kr 5 380,00
Foto kr 3 500,00
Vi er opptatt av verdiskapning, og har knyttet til oss samarbeidspartnere som skal sikre våre kunder de beste produkter og tjenester;
• I forbindelse med forberedelse av salget, innhenter vi informasjon om eiendommen hovedsakelig fra vår samarbeidspartner Amibita.
• Gjensidige leverer boligselgerforsikring og tilbyr bygningsforsikring
• Boligkjøperforsikring leveres av Hiscox og med Sedgwick som skadebehandler, og er formidlet gjennom Gjensidige.
• BN bank tilbyr finansieringsløsninger
• Vår avdeling Krogsveen Pluss tilbyr flyttetjenester som utvask, visningsvask, lager, tømming og transport av flyttelass, i tillegg til å formidle kontakt med Flip for overflateoppussing.
• I forbindelse med overtagelse av eiendommen tilbyr Overo avtale om strøm, alarm og bredbånd.
• Krogsveen er, sammen med øvrige bransjeaktører, medeier i Bomega AS som tilbyr den digitale annonseringsplattformen Hjem.
Opplysninger om oppdraget
Oppdragsnummer 24-0017/26
Eiendomsmegler Krogsveen AS, avd. Årnes
Rådhusgata 26, 2150, ÅRNES
950 007 613
Oppdragets KR-kode KR24.2617
Dato
Sist oppdatert: 20. mai 2026 kl. 21:16
Dokumenter
Dokumenter
PDF – 1004 KB
PDF – 240 KB
PDF – 312 KB
PDF – 29 KB
PDF – 127 KB
PDF – 392 KB
Område
Legg til steder som er viktige for deg
Visning
For å delta på visning, ber vi om at du melder deg på. Da sikrer vi at du får nødvendig informasjon og at det er satt av tilstrekkelig med tid. Kontakt megler dersom annet tidspunkt ønskes. Husk å lese salgsoppgaven før visningen, så du stiller forberedt.
Ønsker du kun å bli holdt orientert, kan du fra eiendommens hjemmeside få varsel om solgtpris, eller kontakte megler.
Lurer du på noe?
Unngå doble boligrenter
Vi tilbyr gunstig forsikring.
Vurderer du utleie?
Få et tilbud fra Utleie KrogsveenHva koster lånet?
Sjekk estimert lånekostnadVil du varsles om lignende boliger?
Ved å lagre ditt boligsøk hos oss får du beskjed når vi har en bolig som ligner denne, før den legges ut på markedet!



























