Fjellsetveien 51
5 450 000 kr
125 m²
3 soverom
Solgt
Brånåsen
Enebolig med attraktiv, familievennlig beliggenhet I 3 etasjer, 3/4 soverom I Bad, wc og vaskerom I Carport og utebod
Prisantydning
5 450 000 krOmkostninger
157 240 krTotalpris
5 607 240 kr
Pris
Bruksareal
130 m²BRA-I (internt bruksareal)
125 m²BRA-E (eksternt bruksareal)
5 m²TBA (terrasse-balkongareal)
61 m²
Areal
Etasje
3Byggeår
1998Soverom
3 soveromBad
1 badTomteareal
433 m² (eiet)Type
Enebolig - FrittliggendeEierform
EietÅrlig velavgift
1 000 krEnergimerke
Oransje D
Nøkkelinfo
Unngå doble boligrenter
Vi tilbyr gunstig forsikring.
Vurderer du utleie?
Få et tilbud fra Utleie KrogsveenHva koster lånet?
Sjekk estimert lånekostnadBeskrivelse
Kort om eiendommen
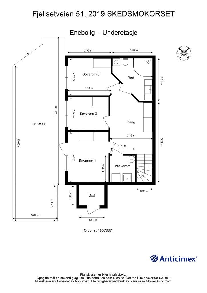
Fjellsetveien 51 er en velholdt enebolig med attraktiv og barnevennlig beliggenhet på Brånåsen. Boligen går over 3 plan og har i 1. etasje en romslig stue i åpen løsning mot kjøkkenet, gang og et separat toalettrom. I 2. etasje/loftetasjen er det en loftstue og en bod (klargjort for bad om man ønsker å etablere det). I underetasjen er det 3 soverom, bad og vaskerom. Huset er fra 1998 og har noe moderniseringsbehov.
Høydepunkter:
-3 soverom i underetasjen
- Loftetasje med mulighet for å etablere bad og soverom. Se punkt om ferdigattest for mer info.
- Åpen stue/kjøkkenløsning
- Wc-rom, vaskerom og bad
- Terrasser på totalt 61 kvm
- Parkering i carport og på egen gårdsplass
- Utebod med hems
- Barnehage, barneskole, matbutikk og buss innenfor kort gangavstand (under 1km)
Område
Legg til steder som er viktige for deg
På flyttefot? Tenk kjøp og salg samtidig.
Få din egen rådgiver gjennom hele kjøps- og salgsprosessen. Det starter med en verdivurdering.
Unngå doble boligrenter
Vi tilbyr gunstig forsikring.
Vurderer du utleie?
Få et tilbud fra Utleie KrogsveenHva koster lånet?
Sjekk estimert lånekostnadVil du varsles om lignende boliger?
Ved å lagre ditt boligsøk hos oss får du beskjed når vi har en bolig som ligner denne, før den legges ut på markedet!




