Myrvangvegen 74
2 890 000 kr
81 m²
3 soverom
Solgt
Stange
Godt og moderne enderekkehus med 3 soverom, varmepumpe og stor terrasse - Sentral og barnevennlig beliggenhet på Stange
Prisantydning
2 890 000 krOmkostninger
93 240 krTotalpris
2 983 240 kr
Pris
Bruksareal
85 m²BRA-I (internt bruksareal)
81 m²BRA-E (eksternt bruksareal)
4 m²TBA (terrasse-balkongareal)
31 m²
Areal
Byggeår
2015Soverom
3 soveromBad
1 badType
RekkehusEierform
EierseksjonFellesutgifter
2 009 krEnergimerke
Rød B
Nøkkelinfo
Unngå doble boligrenter
Vi tilbyr gunstig forsikring.
Vurderer du utleie?
Få et tilbud fra Utleie KrogsveenHva koster lånet?
Sjekk estimert lånekostnadBeskrivelse
Kort om eiendommen
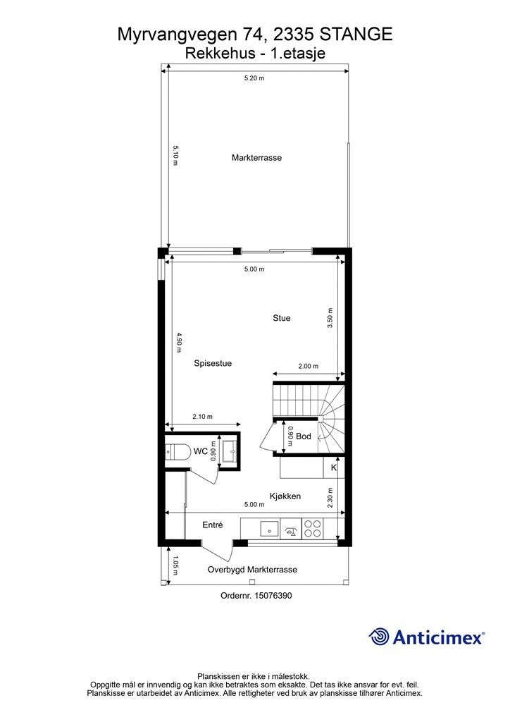
Myrvangvegen 74 er et lettstelt og moderne enderekkehus over 2 plan fra 2015. Her bor man i etablert boligområde med nærhet til lekeplass og ca. 2 km til sentrumskjernen i Stange. 1. etasje inneholder entré med fliser på gulv, kjøkken i egen sone, stue/spisestue, toalettrom og praktisk bod. 2. etasje inneholder gang, 3 soverom, baderom og bod. Fra stue er det utgang til en stor terrasse med gode solforhold og plass til flere møbleringssoner - en fin forlengelse av stuen i sommerhalvåret. Samt man har overbygd terrasse ved boligens inngangsparti med plass til mindre møbleringssone. Det er gjennomgående lyse og tiltalende overflater i hele boligen, varmepumpe og utvendige persienner på vinduer sør/vest i 2. etasje. Utendørs biloppstillingsplass og sportsbod i felles uthus rett ved boligen.
Område
Legg til steder som er viktige for deg
På flyttefot? Tenk kjøp og salg samtidig.
Få din egen rådgiver gjennom hele kjøps- og salgsprosessen. Det starter med en verdivurdering.
Unngå doble boligrenter
Vi tilbyr gunstig forsikring.
Vurderer du utleie?
Få et tilbud fra Utleie KrogsveenHva koster lånet?
Sjekk estimert lånekostnadVil du varsles om lignende boliger?
Ved å lagre ditt boligsøk hos oss får du beskjed når vi har en bolig som ligner denne, før den legges ut på markedet!




