Rødkløverstien 5 A og B
3 790 000 kr
152 m²
4 soverom
Solgt

Samsmoen
Pen kjedet enebolig i barnevennlig område – skjermede uteplasser og 11 000 kr/mnd i leieinntekt
Prisantydning
3 790 000 krOmkostninger
115 740 krTotalpris
3 905 740 kr
Pris
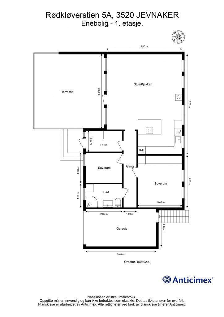
Bruksareal
181 m²BRA-I (internt bruksareal)
152 m²BRA-E (eksternt bruksareal)
29 m²TBA (terrasse-balkongareal)
67 m²
Areal
Etasje
2Byggeår
1981Soverom
4 soveromBad
2 badTomteareal
444 m² (eiet)Type
Enebolig i kjedeEierform
EietEnergimerke
Gul F
Nøkkelinfo
Unngå doble boligrenter
Vi tilbyr gunstig forsikring.
Vurderer du utleie?
Få et tilbud fra Utleie KrogsveenHva koster lånet?
Sjekk estimert lånekostnadBeskrivelse
Kort om eiendommen
Velholdt kjedet enebolig med godkjent utleiedel i rolig og barnevennlig område. Stor, pent opparbeidet tomt med solrike uteplasser på begge sider. Boligen er oppgradert i 2019 og fremstår moderne og innflyttingsklar. Hoveddelen har åpen stue-/kjøkkenløsning, helfliset bad og to soverom. Utleiedelen i underetasjen har egen inngang, kjøkken, stue, bad og to soverom. Leieinntekt på 11 000 kr/mnd gir gode muligheter for å redusere boutgifter betydelig – en bolig som kombinerer god standard, fleksibilitet og solide økonomiske fordeler
Område
Legg til steder som er viktige for deg
På flyttefot? Tenk kjøp og salg samtidig.
Få din egen rådgiver gjennom hele kjøps- og salgsprosessen. Det starter med en verdivurdering.
Unngå doble boligrenter
Vi tilbyr gunstig forsikring.
Vurderer du utleie?
Få et tilbud fra Utleie KrogsveenHva koster lånet?
Sjekk estimert lånekostnadVil du varsles om lignende boliger?
Ved å lagre ditt boligsøk hos oss får du beskjed når vi har en bolig som ligner denne, før den legges ut på markedet!

