Kollevågtjørna 10G
3 000 000 kr
69 m²
2 soverom
Solgt

Tveit/Tveitevåg
Flott 3-roms eierleilighet med 2 uteplasser. Svært gode solforhold. Parkering med elbil-lader ved inngangsparti.
Prisantydning
3 000 000 krOmkostninger
86 040 krTotalpris
3 086 040 kr
Pris
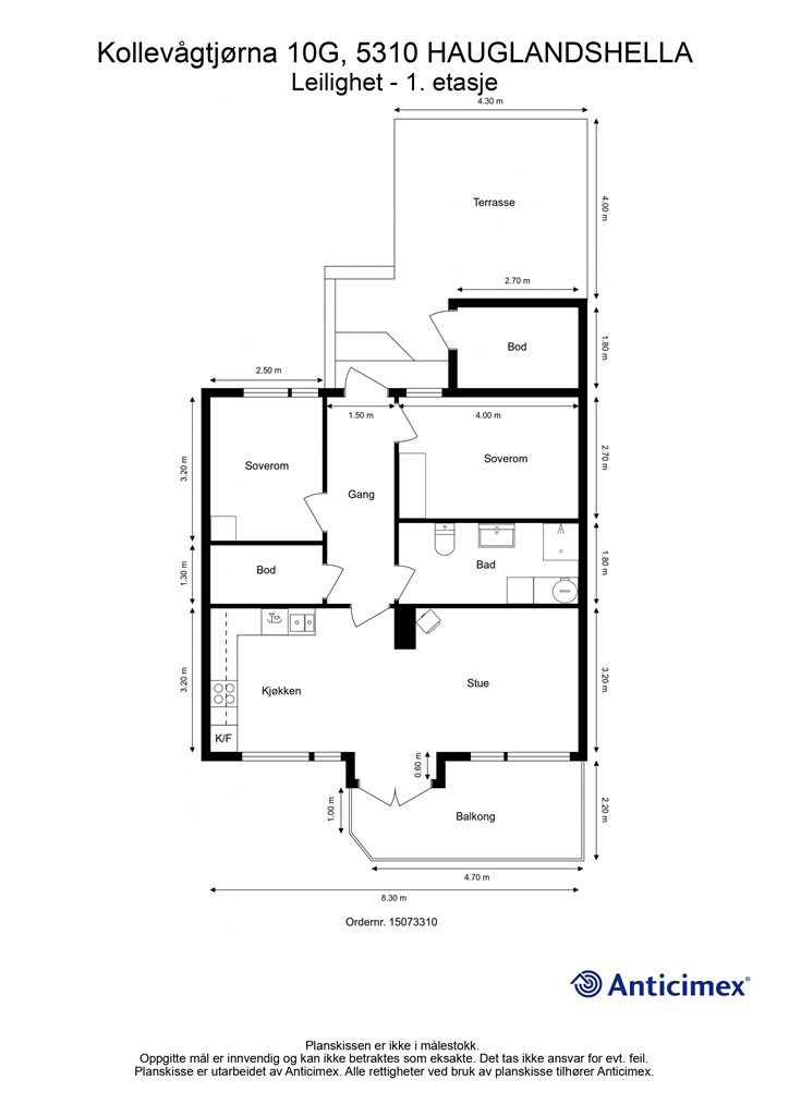
Bruksareal
74 m²BRA-I (internt bruksareal)
69 m²BRA-E (eksternt bruksareal)
5 m²TBA (terrasse-balkongareal)
29 m²
Areal
Etasje
1Byggeår
2006Soverom
2 soveromBad
1 badType
EierleilighetEierform
EierseksjonFasiliteter
Balkong/TerrasseÅrlig velavgift
3 100 krEnergimerke
Oransje D
Nøkkelinfo
Unngå doble boligrenter
Vi tilbyr gunstig forsikring.
Vurderer du utleie?
Få et tilbud fra Utleie KrogsveenHva koster lånet?
Sjekk estimert lånekostnadDette liker selger best ved boligen
For meg er det aller beste med leiligheten den rolige beliggenheten og de fantastiske solforholdene. Den ligger helt innerst i en blindgate, så det er stille, trygt og barnevennlig – noe jeg har satt stor pris på. Det er godt med lys hele dagen, og jeg har uteplasser på begge sider: en stor terrasse med ettermiddags- og kveldssol, og en deilig balkong med morgensol. Jeg har også likt godt å fyre i peisen på kjølige kvelder, og det er kort vei til både turstier og skole. Det føles nesten som å bo i rekkehus, med mye privat uteplass og hyggelige naboer – samtidig som alt er lettstelt og praktisk. Parkering rett utenfor inngangsdøren, er også stor gjesteparkering hvor du kan stå gratis enten fast med egen bil, eller gjester som skal på besøk.
Beskrivelse
Kort om eiendommen
Leiligheten har meget god beliggenhet i et nyere og attraktivt boligfelt på Tveit. Bygningen ligger i enden av en blindgate i rolige og barnevennlige omgivelser med lite støy og trafikk. Enkel, trappefri adkomst fra egen parkeringsplass ved inngangsparti mot vest. Høy 1. etasje mot øst uten direkte innsyn. 2 fine uteplasser med en balkong på 11 kvm. med adkomst fra stuen og en terrasse på 18 kvm. ved inngangsparti. Balkongen har sol fra morgen til tidlig ettermiddag, mens terrassen har sol fra rundt kl. 14 til rundt kl. 23 midtsommers. Gangavstand til barneskole (med bilfri snarvei), barnehager og busstopp. Fint turterreng.
Fasiliteter:
- Elektrisk gulvvarme i alle gulv
- Solskjerming i vinduer
- Rentbrennende peisovn i stuen
- Elbil-lader ved inngangsparti
- Ny oppvaskmaskin fra 2024
Område
Legg til steder som er viktige for deg
På flyttefot? Tenk kjøp og salg samtidig.
Få din egen rådgiver gjennom hele kjøps- og salgsprosessen. Det starter med en verdivurdering.
Unngå doble boligrenter
Vi tilbyr gunstig forsikring.
Vurderer du utleie?
Få et tilbud fra Utleie KrogsveenHva koster lånet?
Sjekk estimert lånekostnadVil du varsles om lignende boliger?
Ved å lagre ditt boligsøk hos oss får du beskjed når vi har en bolig som ligner denne, før den legges ut på markedet!

