Håkon Magnussons gate 36
1 250 000 kr
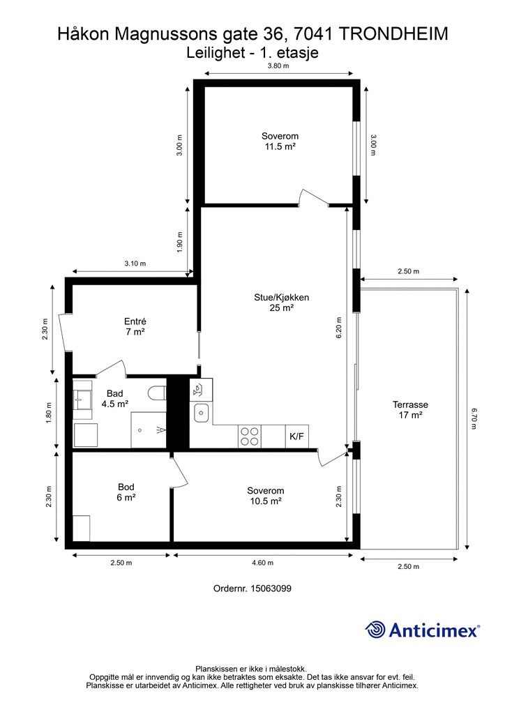
68 m²
2 soverom
Solgt
Lade
Flott 3-roms andelsleilighet i sentralt område på Lade | Sørøstvendt balkong | Fjernvarme | Bod og heis | Moderne
Prisantydning
1 250 000 krAndel fellesgjeld
2 730 000 krOmkostninger
19 021 krTotalpris
3 999 021 kr
Pris
Bruksareal
73 m²BRA-I (internt bruksareal)
68 m²BRA-E (eksternt bruksareal)
5 m²TBA (terrasse-balkongareal)
17 m²
Areal
Etasje
1Byggeår
2023Soverom
2 soveromBad
1 badType
AndelsleilighetEierform
AndelFasiliteter
Heis og Balkong/TerrasseFellesutgifter
17 173 krEnergimerke
Lysegrønn B
Nøkkelinfo
Unngå doble boligrenter
Vi tilbyr gunstig forsikring.
Vurderer du utleie?
Få et tilbud fra Utleie KrogsveenHva koster lånet?
Sjekk estimert lånekostnadBeskrivelse
Kort om eiendommen
Velkommen til Håkon Magnussons gate 36 - og denne stilrene 3-roms andelsleiligheten beliggende flott til byggets 1.etasje! I nærområdet har man tilgang til alt man trenger, samt gode kollektivtilbud.
Verdt å nevne:
- Pent kjøkken med integrerte hvitevarer.
- To romslige soverom med garderobeplass.
- Sørøstvendt terrasse.
- God takhøyde og store vindusflater som gir godt med dagslys.
- TG1 på alle punktene i takstrapporten til takstmann.
- Fjernvarme og balansert ventilasjonsanlegg.
- Bussforbindelser til hele byen.
-Pent opparbeidet uteområde og kort vei til flere av Trondheims anerkjente studiesteder, dagligvare, treningssenter mm.
Område
Legg til steder som er viktige for deg
På flyttefot? Tenk kjøp og salg samtidig.
Få din egen rådgiver gjennom hele kjøps- og salgsprosessen. Det starter med en verdivurdering.
Unngå doble boligrenter
Vi tilbyr gunstig forsikring.
Vurderer du utleie?
Få et tilbud fra Utleie KrogsveenHva koster lånet?
Sjekk estimert lånekostnadVil du varsles om lignende boliger?
Ved å lagre ditt boligsøk hos oss får du beskjed når vi har en bolig som ligner denne, før den legges ut på markedet!
