Skogbrynet 8
10 300 000 kr
241 m²
4 soverom
Komplett salgsoppgave
Hamar
Arkitekttegnet enebolig med særpreg, skreddersydde løsninger og attraktiv beliggenhet ved Furuberget - Fantastisk utsikt!
Prisantydning
10 300 000 krOmkostninger
278 490 krTotalpris
10 578 490 kr
Pris
Bruksareal
249 m²BRA-I (internt bruksareal)
241 m²BRA-E (eksternt bruksareal)
8 m²TBA (terrasse-balkongareal)
52 m²
Areal
Etasje
3Byggeår
1991Soverom
4 soveromBad
2 badTomteareal
682 m² (eiet)Type
Enebolig - FrittliggendeEierform
EietFasiliteter
Garasje/P-plass og Balkong/TerrasseEnergimerke
Gul D
Nøkkelinfo
Unngå doble boligrenter
Vi tilbyr gunstig forsikring.
Vurderer du utleie?
Få et tilbud fra Utleie KrogsveenHva koster lånet?
Sjekk estimert lånekostnadBeskrivelse
Kort om eiendommen
Velkommen til Skogbrynet 8!
Enebolig utenom det vanlige! En bolig som kombinerer særpreg og sjel med gjennomført stil og moderne standard.
Boligen er tegnet av arkitekt Kjell Johansen fra Hamar. Her får man skreddersydde løsninger, vakre opparbeidede uteområder og en utsikt du garantert vil forelske deg i.
Mye av interiør og innredning er designet av interiørarkitekt og bygget av møbelsnekker, blant annet spesiallaget ytterdør som matcher gulvfliser.
Eiendommen har en særdeles attraktiv beliggenhet i Furuberget. Høyt og fritt beliggende med svært gode sol og lysforhold.
Her bor du i en rolig blindvei med kort og bilfri vei til barneskole, samt kort vei til barnehage, Furuberget og Mjøsa. Perfekt for både familieliv og deg som ønsker det lille ekstra.
Velkommen til en hyggelig visning!
Innhold og byggemåte
Innhold og byggemåte
Eiendommen
Skogbrynet 8, 2316 HAMAR
Kommunenummer 3403, gårdsnummer 1, bruksnummer 5859, ideell andel 1/1
Kommunenummer 3403, gårdsnummer 1, bruksnummer 5864, ideell andel 1/18
Kommunenummer 3403, gårdsnummer 1, bruksnummer 5865, ideell andel 1/18
Innhold
Totalt bruksareal BRA: 249 kvm
BRA-i:
Enebolig:
Kjeller: 80 kvm: Gang, bad, soverom og seks oppbevaringsrom.
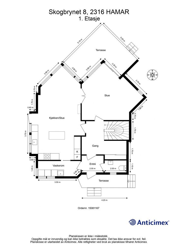
1. etasje 85 kvm: Entré, gang, toalettrom, vaskerom, kjøkken/stue og stue.
2. etasje 76 kvm: Gang, bad, loftstue og tre soverom.
BRA-e:
Uthus :
1. etasje 8 kvm: To uteboder.
Åpent areal:
Enebolig:
1. etasje 20 kvm: Terrasse
2. etasje 8 kvm: Balkong
Uthus :
1. etasje 24 kvm: Pergola.
Loftsetasjen har et totalt gulvareal (GUA) på 79 kvm, men grunnet skråtak/lav takhøyde er kun 76 kvm av arealet måleverdig som bruksareal. De delene av arealene som har lav himlingshøyde (ALH) utgjør 3 kvm.
Vedlagte plantegninger er ikke målbare. De oppgitte arealer er hentet fra rapport med befaringsdato 14.04.2025 utført av Anticimex v/Karl Even H. Brukvangen. Arealene er beregnet og rom er definert etter dagens faktiske bruk, uavhengig av hva som er godkjent av bygningsmyndighetene.
Byggemåte
Selger har innhentet en tilstandsrapport av boligen/eiendommen. Av rapporten fremgår det at flere bygningsdeler har fått tilstandsgrad ikke undersøkt/ikke tilgjengelig for undersøkelse (TG IU), 2 (TG2) og/eller 3 (TG3). Rapporten beskriver også avvik på undersøkte bygningsdeler uten tilstandsgrad. Kjøper overtar ansvaret for de opplysninger som fremkommer av salgsdokumentasjonen, og kan ikke gjøre gjeldende som mangel noe som burde vært kjent eller som ikke kan anses å ha betydning for avtalen.
Bygningen er iht. tilstandsrapporten:
Bolig oppført i 1991. Grunnmur av betong. Bygget er oppført med kjeller. Yttervegger av trekonstruksjoner. Utvendige fasader er kledd med lignende trekledning og felter med fasadeplater. Etasjeskillere av trekonstruksjoner. Saltak i trekonstruksjoner. Yttertak er belagt med takstein. Entrédør med sikkerhetslås og glassfelter. Døren har i tillegg elektronisk dørlås/kodelås. Vinduer med karmer av tre. Balkongdør og terrassedør med karmer av tre. Boligen ventileres hovedsakelig gjennom et mekanisk balansert ventilasjonssystem.
Det gjøres oppmerksom på at følgende bygningsdeler har fått TG3 (Store eller alvorlige avvik):
Bad 2. etasje:
• Det observeres stedvis tegn til riss i enkelte veggfliser.
• Det observeres tegn til riss og sprekker i flisfuger inne i dusjsonen.
• Det observeres omfattende tegn på riss og sprekker i flisfuger i dusjsonen.
• Det er registrert bom (hulrom med påfølgende riss/sprekker i flisfuger) i enkelte gulvfliser
• Lokalfallet i sluksonen er mindre enn anbefalt.
• Fallforhold utenfor sluksonen vurderes ikke til å være tilstrekkelig for å lede eventuelt lekkasjevann til sluk, og det er ikke påvist at vanntett sjikt har tilstrekkelig oppkant ved dørterskel for å kompensere for dette.
• Vanntett sjikt har en alder som erfaringsmessig tilsier at fremtidig funksjon er svært usikker.
• Vannrør av kobber (og tilhørende komponenter) har en alder som tilsier at fremtidig funksjon er usikker.
Bad kjeller:
• Det registreres uttetheter/åpninger i tettesjiktets tilslutning til sluk.
Kjeller:
• Kontroll i lukkede konstruksjoner: Lukt som kan indikere pågående fuktskade registreres inne i konstruksjonen. Grunnmuren er vurdert til å være oppført som multimurlignende konstruksjon, noe som erfaringsmessig er en type grunnmurskonstruksjon med høy risiko for skjulte fuktskader grunnet konstruksjonens oppbygning.
Etasjeskiller og gulv på grunn:
• I stuen er det på tilfeldige punkter målt lokale høydeforskjeller opptil 32 mm.
Det gjøres oppmerksom på at følgende bygningsdeler har fått TG2 (Vesentlige avvik):
Vaskerom 1. etasje:
• Overflater gulv: Det observeres stedvis tegn til riss i enkelte gulvfliser.
• Lekkasjesikkerhet: Fallforhold utenfor sluksonen vurderes ikke til å være tilstrekkelig for å lede eventuelt lekkasjevann til sluk, og det er ikke påvist at vanntett sjikt har tilstrekkelig oppkant ved dørterskel for å kompensere for dette. Det registreres motfall på deler av gulvet.
• Vanntett sjikt / membran i gulv og vegger: Det er uklart om det er benyttet vanntett sjikt på våtrommets veggflater. Vanntett sjikt på gulv har en alder som tilsier at fremtidig funksjon er usikker.
• Tettesjiktets tilslutning til sluk: Overgang mellom sluk og vanntett sjikt er uoversiktlig.
Bad kjeller:
• Overflater gulv: Det observeres tegn på riss og sprekker i flisfuger i dusjsonen.
• Fallforhold rundt sluk: Lokalfallet i sluksonen er mindre enn anbefalt.
• Lekkasjesikkerhet: Det registreres motfall på deler av gulvflater utenfor sluksonen.
• Vanntett sjikt / membran i gulv og vegger: Vanntett sjikt har en alder som tilsier at fremtidig funksjon er usikker.
• Vannrør: Vannrør av kobber (og tilhørende komponenter) har en alder som tilsier at fremtidig funksjon er usikker.
• Ventilasjon: Tilluftsspalte eller lignende er ikke etablert.
• Sanitærutstyr og innredning: Drenering fra innebygget toalettsisterne er ikke registrert.
Etasjeskiller og gulv på grunn:
• På loftstue er det på tilfeldige punkter målt lokale høydeforskjeller opptil 25 mm.
Vinduer:
• Enkelte vinduer viser begynnende tegn til slitasje på overflatebehandling, og har en alder der fremtidig funksjon vurderes som usikker.
Yttertak:
• Vurderingene av yttertaket er kun gjort fra feierstigen med den begrensningen dette innebærer.
• Taktekkingen (med tilhørende beslag) viser begynnende tegn til slitasje og elde. Taktekkingen har nådd en alder og tilstand der fremtidig funksjon vurderes som usikker.
Balkong 2. etasje:
• Terrassebordene viser tegn til slitasje.
Grunnmur og fundament:
• Det registreres enkelte moderate tegn til riss i overflaten til grunnmuren.
Drenering:
• Drenering har en alder som tilsier at fremtidig funksjon er usikker.
• Terrenget rundt boligen har stedvis lite fall, og det registreres enkelte områder med fall inn mot grunnmuren.
• Deler av grunnmurens utvendige fuktsperre har sunket ned og er ikke avsluttet med beslag/topplist.
• Vann fra yttertaket er stedvis ikke ledet vekk fra bygningen/grunnmuren i tilstrekkelig grad.
Stikkledninger og tanker:
• Utvendige avløpsrør har en alder som tilsier at fremtidig funksjon er usikker.
Utebod:
• Veggkonstruksjon og fasadematerialer: Kort avstand fra underkant av kledningen til terrenget. Det er ukjent om det er musesperre bak kledningen.
• Yttertak og takkonstruksjon: Det er registrert mye mose på taket.
Se supplerende tekst i tilstandsrapporten. Kjøper overtar ansvar og risiko for dette.
Tilstandsrapporten er inntatt i salgsoppgaven. Rapporten inneholder informasjon om avvikene og konsekvensen av disse. For avvik som er gitt TG3 har den bygningssakkyndige i tillegg gitt et anslag på hva det vil koste å utbedre disse avvikene. Ettersom kjøper regnes å være kjent med forhold som tydelig fremgår av tilstandsrapporten, oppfordres du til å sette deg grundig inn i rapporten i sin helhet.
Standard
Velkommen til en enebolig utenom det vanlige, en bolig som kombinerer særpreg og sjel med gjennomført stil og moderne standard. Boligen, tegnet av arkitekt Kjell Johansen fra Hamar, ligger attraktivt til i populære Furuberget, med vakre, opparbeidede uteområder og en utsikt du garantert vil forelske deg i. Her bor du i en rolig blindvei med kort og bilfri vei til barneskole, samt kort vei til barnehage, Furuberget og Mjøsa. Perfekt for både familieliv og deg som ønsker det lille ekstra.
Hagen er pent opparbeidet med belegningsstein, plenarealer, beplantninger og en hyggelig pergola med overbygd uteplass. I tillegg finnes en praktisk utebod og robotgressklipper som gjør vedlikeholdet enkelt. Carporten har el-billader fra 2017 og utearealene er gjennomtenkt med veranda og platting, samt en delvis overbygd veranda med markise som har sol- og vindautomatikk.
Boligen byr på en romslig og innholdsrik planløsning med blant annet to stuer, kjøkken med stort allrom, fire soverom og to komplette bad, i tillegg til et praktisk vaskerom og separat gjestetoalett. Dette er en bolig som virkelig legger til rette for en komfortabel hverdag og hyggelige selskapeligheter! De store vindusflatene sørger for at både lys og utsikt slipper vakkert inn, og adkomsten til terrasse og balkong fra stue og loftstue gir en herlig forlengelse av oppholdsrommene på varme dager.
Innvendig er boligen renovert med høy kvalitet i 2013, der alt fra trapp, vegger, gulv, kjøkken, elektrisk anlegg, rør-i-rør system og vannsikring er fornyet. Veggene består av malt panel eller sponplater med gips for solid spikerfeste, enkelte steder med tapeter fra Elitis. Gulvene er en kombinasjon av en-stavs eikeparkett fra Parkettpartner, keramiske fliser og sementfliser fra Marrakech Design i blant annet gang, vaskerom og gjestetoalett.
Kjøkkenet, som er designet av VOO design og håndbygget av møbelsnekker Kjetil Nygaard, imponerer med slette fronter, slitesterk laminatbenkeplate, herdet glassplate over benk og integrerte løsninger, inkludert en lekker kjøkkenøy med vinskap. Her finner du også en ventilator fra Rørosmetall, samt et Quooker-system som gir kokende vann rett fra kranen. Mellom kjøkkenet og spisestuen er det også en flott innbygget peisinnsats fra Rais som gir både varme og lun atmosfære i rommet.
Badene er moderne og delikate, begge med gulvvarme, stilrene fliser, og flotte detaljer som spesialdesignet sminkesone på loftsbadet.
Gjestetoalettet har spesiallaget vask i corian med innebygd lys og vakre marokkanske fliser på veggen.
Tekniske løsninger er gjennomtenkte: her finner du balansert ventilasjon fra Flexit, sentralstøvsuger, seriekoblede røykvarslere, Sensio-styringssystem for lys og varme, og nytt sikringsskap. Elektrisk varme i alle gulv bortsett fra kjellerboder sikrer jevn og behagelig temperatur. I tillegg er det investert i eksklusive detaljer som spotter fra Flos, og belysning fra Artemide og Foscarini, samt dimbare glassomrammede lysbrytere.
Inngangsdøren og kjøkkendøren er spesialbestilt i massiv, oljet eik fra Bovalls dørbyggeri i Sverige (designet av Vilde Schumann, VOO design), mens innerdørene ellers er heltre eik fra Kloppen. Trappen i huset er et blikkfang i lakkert eik og glass fra Escalia.
Videre er flere vindusløsninger oppgradert, blant annet takvindu med fjernstyrt åpningsfunksjon og automatisk lukking ved regn, bytte av glass i terrassedør og glass i stue, samt innvendig solskjerming med plisségardiner. Over kjøkkendøren er det montert en elegant glassbaldakin.
Denne boligen bør oppleves! Her får du en sjelden kombinasjon av arkitektonisk karakter, gode planløsninger og en utsikt det er umulig å mislike.
Velkommen til en hyggelig visning!
Løsøre og tilbehør
Vi viser til liste fra Norges Eiendomsmeglerforbund som gjelder fra 01.01.2020 angående løsøre og tilbehør.
Herakleum lysekrone fra Mooi i stuen følger ikke med ved salg.
Videre opplyser selger om at følgende vil følge med ved salg:
2. etasje:
Hovedsoverom: Montana nattbord og Artemide vegglamper.
Soverom 3: Plassbygd skrivebord i eik og Montana reol.
Soverom 4 / Loftstue: Bokhyller og TV-benk.
1. etasje:
Gang: Montana garderobeløsning.
Stue: Bokhyller.
Kjøkken: Lamper (ekskludert Floslamper over spisebord) og kjøleskap med frysedel og isbitmaskin (SMEG).
Vaskerom: Montana reol.
Kjelleretasje: Oppbevaringshyller (ekskludert bokhyller i boden med bøker).
Utendørs: Robotgressklipper med ladestasjon og dobbel stålstige.
Følgende innbo kan følge med mot pristillegg:
- Spisebord i eik med forlengelsesplater.
- Floslamper over spisebord.
- Gardiner.
- Bolia sofa på loftstue
- Utegruppe under pergola
Det gjøres oppmerksom på at det aller meste som følger med av innbo er eksklusivt og designet/spesialtilpasset boligen. Her får man mye med på kjøpet!
Oppvarming
Boligen varmes opp via elektrisk gulvvarme i nesten alle rom, samt vedfyring.
Ferdigattest/brukstillatelse
Det foreligger ikke ferdigattest på eiendommen, men midlertidig brukstillatelse ble gitt 04.09.1991. Tillatelsen er gitt på følgende vilkår:
- Det monteres plate av ubrennbart materiale på vegg ved siden av feieluke i kjeller.
- Det monteres slukkeutstyr for brann i boligen.
- Utgang fra stue til terreng holdes avlåst inntil trapp e.l. er montert mot terreng.
- Pipe ferdigstilles over tak.
- Kjellervinduer innpusses utvendig og grunnmursplater påføres klemlist.
- Det monteres husnummerskilt.
Det foreligger ferdigattest for bruksendring av bod til bad i kjelleretasjen, datert 24.06.2024.
Tinglyste heftelser og rettigheter
Eiendommen overdras fri for pengeheftelser.
Det er ingen tinglyste servitutter på eiendommen.
Eventuell adgang til utleie
Eiendommen har ikke separat utleieenhet. Det vil normalt være anledning til utleie av hele eiendommen eller enkeltrom, såfremt utleiearealet er bygningsmessig godkjent for varig opphold og har forsvarlige radonnivåer.
Beliggenhet og tomteforhold
Beliggenhet og tomteforhold
Beliggenhet
Eiendommen har en særdeles attraktiv beliggenhet i Furuberget. Høyt og fritt beliggende med særdeles gode sol og lysforhold samt en nydelig utsikt over Mjøsa, Hamar og de omkringliggende områder. Gangavstand til dagligvareforretning, skoler, barnehager og idrettsanlegg mm. Furuberget rett ved med gode tur og rekreasjonsmuligheter. Holdeplass for bybuss i umiddelbar nærhet med flere daglige avganger tur/retur Hamar sentrum og nærområdet. Ca. 3,5 km til Hamar bysentrum med samtlige fasiliteter og sentrumsfunksjoner.
Adkomst
Fra Hamar sentrum: Ta storhamargata vestover ut av bykjernen og videre inn på Aslak Bolts gate. Kjør rett frem i de to neste rundkjøringene og ta deretter til høyre inn på Vognvegen i den tredje rundkjøringen. Kjør rett frem i første rundkjøring og ta til venstre i andre rundkjøring etter ca. 300 meter inn på Furubergvegen. Følg veien i ca. 800 meter og ta til venstre i Y-krysset videre på Furubergvegen. Etter ca. 700 meter ta til høyre inn på Skogbrynet. Etter 100 meter får du boligen på venstre side.
Det vil bli skiltet med Krogsveen visningsskilt ved fellesvisninger.
Barnehager, skoler og fritid
Furuberget barnehage (1-2 år) - 0.4 km
Blåveisen barnehage (1-5 år) - 0.7 km
Prestrud skole (1.-7. kl.) - 1 km
Ajer ungdomsskole (8.-10. kl.) - 1.9 km
Hamar katedralskole (Vgs.) - 1.7 km
Informasjon om tilhørende skolekretser er hentet fra Prognosesenteret som dataleverandør, og tilhørigheten kan årlig endres av kommunen. Dersom skole- og barnehagetilbud er av betydning for kjøpet, ber vi om at det rettes en særskilt henvendelse til kommunen for oppdatert informasjon.
Beskrivelse av tomt
Eiertomt på 682 kvm. Meget pent opparbeidet uteområde med belegningsstein, terrasse på terreng, grillplass (pergola), biloppstillingsplass, plenarealer og diverse beplantninger. Tomten er pent innrammet av en skigard.
Parkering
Parkering i integrert carport, samt muligheter for mer biloppstilling på gårdsplass.
Vei, vann og avløp
Eiendommen har adkomst via kommunal vei.
Eiendommen er tilknyttet kommunalt ledningsnett via private stikkledninger. Eier er selv ansvarlig for private stikkledninger til boligen.
Regulerings-og arealplaner
Eiendommen er regulert til boliger i henhold til reguleringsplan for del av Furuberget gård nord for Furubergvegen datert 09.05.1990 med tilhørende reguleringsbestemmelser.
Eiendommen er underlagt kommuneplanens arealdel 2018-2030 med arealbruk bestemt til boligbebyggelse. Denne er datert 30.05.2018. I planen ligger deler av eiendommen innenfor hensynssone for radon, støy og krav vedrørende infrastruktur.
Eiendommen er også underlagt kommunedelplan for kulturminner og kulturmiljøer innenfor byvekstgrensen, men er ikke berørt av bestemmelsene i denne. Planen er datert 31.08.2011.
Utsnitt av plan med tilhørende bestemmelser kan fås ved henvendelse til megler.
Økonomi
Økonomi
Kommunale utgifter
Kommunale avgifter var kr 26 575,- for 2024. I dette inngår gebyr for vann, avløp, renovasjon og feiing/tilsyn.
Eiendomsskatten er kr 18 683,- for inneværende år.
Nåværende eier har et strømforbruk som tilsvarer ca. kr 41 600,- pr. år. / 36 553 kwh. pr. år.
Boligen har en årlig forsikringspremie på kr 9 414,-.
Boligen er tilknyttet Telenor bredbånd som leverandør av kabel-tv og Internett med avgift på kr 1 049,- pr. mnd. Tv-tuner/dekoder medfølger.
Utgiftene er basert på nåværende eiers forbruk og avtaler.
Formuesverdi
Formuesverdi for 2023 var kr 1 761 237,- ifølge skatteetaten. Beløpet forutsetter at eier bor fast i boligen (primærbolig).
Ved eventuell øvrig bruk av eiendommen (f.eks. fritidsbolig, pendlerbolig, utleieobjekt) var formuesverdien for 2023 kr 7 044 947,-.
Formuesverdien justeres normalt årlig. Se skatteetaten.no for mer informasjon om fastsettelse av formuesverdien.
Omkostninger
10 300 000,00 Prisantydning
Omkostninger
257 500,00 Dokumentavgift til staten (2,5% av kjøpesum)
19 900,00 Gjensidige Boligkjøperpakke (valgfri)* (valgfritt)
545,00 Tinglysing panterettsdokument
545,00 Tinglysing skjøte
--------------------------------------------------------
258 590,00 (Omkostninger totalt (uten Gjensidige Boligkjøperpakke (valgfri)))
278 490,00 Omkostninger totalt (med Gjensidige Boligkjøperpakke (valgfri)))
--------------------------------------------------------
10 558 590,00 Totalpris inkl. omkostninger
10 578 490,00 Totalpris inkl. omkostninger (med Gjensidige Boligkjøperpakke (valgfri))
--------------------------------------------------------
Tilbud om lånefinansiering
Megler formidler gjerne kontakt med rådgiver hos vår samarbeidspartner BN Bank. De har konkurransedyktige betingelser samt rask og løsningsorientert behandling av din lånesøknad. Krogsveen mottar et honorar for denne formidlingen.
Betalingsbetingelser
Kjøpesum inkludert omkostninger, samt pantedokument tilknyttet eventuelt lån, skal være disponibelt hos megler 2 virkedager før overtagelsen.
Annen viktig informasjon
Annen viktig informasjon
Eier
Heidi Hurlen Solbakken og Fred Morten Solbakken
Overtakelse
Etter nærmere avtale.
Boligselgerforsikring
Selger har i forbindelse med salget tegnet boligselgerforsikring hos Anticimex. Vedlagt salgsoppgaven følger selgers egenerklæringsskjema og tilstandsrapport. Interessenter må sette seg inn i dokumentene før bud inngis.
Boligselgerforsikringen dekker selgers ansvar etter avhendingsloven. Dersom kjøper oppdager forhold ved eiendommen som man mener utgjør en mangel ved eiendommen, vil Claims Handling AS behandle reklamasjonen på vegne av selger. Forsikringsvilkår kan fås ved henvendelse til megler.
Boligkjøperforsikring
Innen kontraktsmøtet må kjøper ta stilling til om det ønskes å bestille Boligkjøperpakken gjennom Tryg. I denne gunstige pakken er boligen ferdig forsikret og inkluderer rettshjelpsforsikring, også kalt Boligkjøperforsikring. Rettshjelpsforsikring gir trygghet og tilgang på profesjonell juridisk hjelp dersom det oppdages uventede feil eller mangler det første året etter overtagelse. Forsikringsselskapet behandler isåfall ethvert mangelskrav kjøper måtte ha overfor selger.
For alle boligtyper, unntatt tomter, inneholder Boligkjøperpakken innboforsikring, renteforsikring (unntatt fritidsbolig) - i situasjoner hvor kjøper ikke får solgt nåværende primærbolig – og flytteforsikring. I tillegg inneholder den husforsikring for alle hus og hytter forutsatt at eiendommen ikke har seksjonsnummer/andel (tilhører et sameie/borettslag).
Kjøper mottar ingen særskilt faktura for Boligkjøperpakken da kostnaden det første året legges til kjøpesummen for boligen. Les mer om forsikringen i informasjonsarket fra Tryg. Krogsveen mottar et honorar for denne formidlingen.
Dersom ikke boligkjøperpakke ønskes kan kun rettshjelpsforsikring, også kalt boligkjøperforsikring, tegnes særskilt via megler. Rettshjelpsforsikringen varer i 5 år fra overtagelse og leveres av Tryg.
Selskap og privatpersoner som driver med kjøp/salg/utvikling som ledd i egen næringsvirksomhet kan de ikke tegne boligkjøperforsikring.
Budgivning
Forbrukerinformasjon om budgivning er vedlagt denne salgsoppgaven og er også på vår hjemmeside www.krogsveen.no. Alle bud og budforhøyelser må inngis skriftlig. I tillegg må legitimasjon være fremlagt sammen med signatur fra budgiver.
Vi oppfordrer til å gi bud elektronisk via GI BUD-knappen på eiendommens hjemmeside på Krogsveen.no. Da vil samtlige vilkår bli oppfylt.
Eventuelle forhøyelser eller endringer av budet kan bekreftes pr SMS eller på e-post. Vi oppfordrer alltid til å kontakte megler pr. telefon i tillegg da forsinkelser i SMS og e-post kan forekomme.
For at budene skal kunne bli behandlet og videreformidlet skriftlig til alle involverte parter, må alle bud ha en tilstrekkelig lang akseptfrist, jf. eiendomsmeglingsforskriften § 6-3.
Selger må også skriftlig akseptere budet før aksept kan formidles til budgiver. Akseptfrist bør derfor være på minimum 30 minutter, og budforhøyelser må derfor skje i god tid før fristens utløp.
Bud i forbrukerforhold kan uansett ikke settes med kortere frist enn kl. 12.00 første virkedag etter siste annonserte visning.
Etter at eiendommen er solgt vil kjøper og selger få tilsendt budjournal. Øvrige budgivere kan få utlevert kopi av budjournalen i anonymisert form.
Hvitvaskingsreglene
I henhold til lov om hvitvasking og terrorfinansiering har megler plikt til å gjennomføre kontrolltiltak overfor kunder, herunder fullmektiger. Dette innebærer bl.a. å bekrefte kunders og reelle rettighetshaveres identitet på bakgrunn av fremvist gyldig legitimasjon eller på annen godkjent måte, samt å innhente opplysninger om kundeforholdets formål og tilsiktede art.
Dersom slike kundetiltak ikke kan gjennomføres, kan megler ikke etablere kundeforholdet eller utføre transaksjonen.
Hvis kjøper ikke bidrar til gjennomføring av kundekontrollen og dette fører til at transaksjonen blir forsinket eller ikke kan gjennomføres, vil dette ansees som mislighold av avtalen og gi selger rettigheter etter avhendingslova kapittel 5. I tilfeller der selger ikke bidrar til gjennomføring av løpende kundekontroll underveis i oppdraget, er det selger som misligholder sine forpliktelser etter avtalen og gi kjøper rettigheter etter avhendingslovens kapittel 4. Partene er selv ansvarlige for eventuelle kostnader og ansvar dette kan medføre. Eiendomsmegleren eller eiendomsmeglingsforetaket kan ikke holdes ansvarlig for de konsekvenser dette vil kunne få for partene eller andre som har interesser i eiendomshandelen.
Kjøper oppfordres til å innbetale kjøpesummen som ikke kommer fra låneinstitusjon i én samlet innbetaling fra egen konto i norsk bank. Megler har plikt til å melde fra til Økokrim om eiendomshandler som fremstår som mistenkelige. Melding sendes Økokrim uten at partene varsles.
Personopplysningsloven
I henhold til personopplysningsloven gjør vi oppmerksom på at interessenter kan bli registrert for videre oppfølging.
Lovanvendelse
Generelle bestemmelser
Salgsoppgaven er basert på de opplysningene selger har gitt til megler, den bygningssakyndiges tilstandsrapport, samt opplysninger innhentet fra kommunen, Kartverket og andre tilgjengelige kilder. Det er viktig at kjøper setter seg grundig inn i alle salgsdokumentene, herunder salgsoppgave, tilstandsrapport og selgers egenerklæring. Kjøper anses kjent med forhold som er tydelig beskrevet i salgsdokumentene, og slike forhold kan ikke påberopes som mangler. Dette gjelder uavhengig av om kjøper har lest dokumentene. Alle interessenter oppfordres til å undersøke eiendommen nøye, gjerne sammen med fagkyndig før bud inngis. Kjøper som velger å kjøpe usett kan ikke gjøre gjeldende som mangel noe han burde blitt kjent med ved undersøkelsen.
Dersom det er behov for avklaringer, anbefaler vi at interessenter rådfører seg med eiendomsmegler eller egne rådgivere før det legges inn bud.
En bolig som har blitt brukt i en viss tid, har vanligvis blitt utsatt for slitasje og skader kan ha oppstått. Slik bruksslitasje må kjøper regne med, og det kan avdekkes enkelte forhold etter overtakelse som nødvendiggjør utbedringer. Normal slitasje og skader som nødvendiggjør utbedring, er innenfor hva kjøper må forvente og vil ikke utgjøre en mangel.
Kjøper og selgers rettigheter og plikter reguleres av avtalen mellom partene, samt informasjonen som har vært tilgjengelig for kjøperen i forbindelse med handelen. Avtalen utfylles av avhendingsloven, og det gjelder ulike avtalevilkår avhengig av om kjøper er forbrukerkjøper eller ikke. Dette er nærmere beskrevet nedenfor.
På grunn av ulike avtalevilkår kan selger vurdere bud fra en som ikke er forbruker, ulikt fra en forbrukers bud. Dersom kjøper ikke er forbruker, er selger sitt mulige mangelsansvar begrenset fordi eiendommen selges "som den er". Selger kan ikke ta «som den er»- forbehold overfor en forbrukerkjøper. Selv et lavere bud fra en som ikke er forbruker kan foretrekkes fordi begrensningen i mulig mangelsansvar kan ha egenverdi for selger. Selger står fritt til å forkaste eller akseptere ethvert bud, og er for eksempel ikke forpliktet til å akseptere høyeste bud.
Budgiver skal i budskjema avgi egenerklæring om budgiver er forbruker eller næringsdrivende/ person som hovedsakelig handler som ledd i næringsvirksomhet. Budgivere får informasjon dersom andre bud er inngitt av en som ikke er forbruker.
Forbrukerkjøp - definisjon
Med forbrukerkjøp menes kjøp av eiendom når kjøperen er en fysisk person som ikke hovedsakelig handler som ledd i næringsvirksomhet.
Forbruker – avtalevilkår
Eiendommen har en mangel dersom den ikke er i samsvar med kravene som følger av avtalen, eller det foreligger brudd på bestemmelsene i avhendingsloven §§ 3-2 til 3-8. Hvis eiendommen ikke er i samsvar med det kjøperen må kunne forvente ut ifra alder, type og synlig tilstand, kan det være grunnlag for mangelskrav. Det samme gjelder hvis det er holdt tilbake eller gitt uriktige opplysninger om eiendommen. Dette gjelder likevel bare dersom man kan gå ut ifra at det virket inn på avtalen at opplysningen ikke ble gitt eller at mangelskravet ikke blir rettet i tide på en tydelig måte.
Boligen kan ha en mangel etter avhendingsloven § 3-3 andre ledd, dersom det er avvik mellom opplyst og faktisk innvendig areal, forutsatt at avviket er på 2% eller mer og minimum 1 kvm.
Ved beregning av et eventuelt prisavslag eller erstatning må kjøper selv dekke tap/kostnader opptil et beløp på kr 10 000 (egenandel).
Ikke-forbruker (næringsdrivende) – definisjon
Hvis kjøper er en juridisk person, eller en fysisk person som hovedsakelig handler som ledd i næringsvirksomhet, vil kjøpet ikke anses som et forbrukerkjøp.
Ikke-forbruker – avtalevilkår
Eiendommen har en mangel dersom den ikke er i samsvar med kravene som følger av avtalen.
Eiendommen selges «som den er», og selgers ansvar utover det konkret avtalte er da begrenset etter avhendingsloven § 3-9, første ledd andre setning.
Avhendingsloven § 3-3 andre ledd fravikes, og hvorvidt boligens arealsvikt utgjør en mangel vurderes etter avhendingsloven § 3-8.
Informasjon om kjøpers undersøkelsesplikt, herunder oppfordringen om å undersøke eiendommen nøye, gjelder også for kjøpere som ikke anses som forbrukere.
Det forutsettes at hjemmel overføres til kjøper. Hvis kjøper ikke ønsker hjemmelsoverføring av eiendommen, må det tas forbehold om dette i budet.
Meglers vederlag
Meglers vederlag betales av selger og er avtalt til:
Vederlag: 1% av salgssum
Tilrettelegging kr 17.000,-
Oppgjør: kr 7.500,-
Markedspakke: kr 28.000,-
Visninger: kr 4.000,-
Oppslag eiendomsregister: kr 2.900,-
Megler har i tillegg krav på dekning av følgende utlegg:
Innhenting av offentlig opplysninger Hamar, inkl tegninger kr 4 663,-
Tinglysing sikring kr 545,-
Boligselgerforsikring kr 45 860,-
Foto kr 7 126,-
Tilstandsrapport kr 21 285,-
Vi er opptatt av verdiskapning, og har knyttet til oss samarbeidspartnere som skal sikre våre kunder de beste produkter og tjenester;
• I forbindelse med forberedelse av salget, innhenter vi informasjon om eiendommen hovedsakelig fra vår samarbeidspartner Ambita.
• Gjensidige leverer boligselgerforsikring og tilbyr bygningsforsikring
• Boligkjøperforsikring leveres av Hiscox og med Sedgwick som skadebehandler, og er formidlet gjennom Gjensidige.
• BN bank tilbyr finansieringsløsninger
• Vår avdeling Krogsveen Pluss tilbyr flyttetjenester som utvask, visningsvask, lager, tømming og transport av flyttelass, i tillegg til å formidle kontakt med Flip for overflateoppussing.
• I forbindelse med overtagelse av eiendommen tilbyr Overo avtale om strøm, alarm og bredbånd.
• Krogsveen er, sammen med øvrige bransjeaktører, medeier i den digitale annonseringsplattformen Hjem som eies av Bomega AS.
Opplysninger om oppdraget
Oppdragsnummer 65-0119/24
Eiendomsmegler Krogsveen AS, avd. Hamar
Strandgata 31, 2308, HAMAR
950 007 613
Oppdragets KR-kode KR65.24119
Dato
Sist oppdatert: 19. april 2026 kl. 18:24
Dokumenter
Dokumenter
PDF – 291 KB
PDF – 3 MB
PDF – 175 KB
PDF – 312 KB
PDF – 29 KB
PDF – 127 KB
PDF – 392 KB
Område
Legg til steder som er viktige for deg
Visning
For å delta på visning, ber vi om at du melder deg på. Da sikrer vi at du får nødvendig informasjon og at det er satt av tilstrekkelig med tid. Husk å lese salgsoppgaven før visningen, så du stiller forberedt.
Ønsker du kun å bli holdt orientert, kan du fra eiendommens hjemmeside få varsel om solgtpris, eller kontakte megler.
Lurer du på noe?
Unngå doble boligrenter
Vi tilbyr gunstig forsikring.
Vurderer du utleie?
Få et tilbud fra Utleie KrogsveenHva koster lånet?
Sjekk estimert lånekostnadVil du varsles om lignende boliger?
Ved å lagre ditt boligsøk hos oss får du beskjed når vi har en bolig som ligner denne, før den legges ut på markedet!




