Vognvegen 19
5 850 000 kr
173 m²
4 soverom
Solgt

Tiltalende enebolig med utsyn mot Glomma| Alt på ett plan med 4 sov & 2 bad |22 solceller og garasje!
Prisantydning
5 850 000 krOmkostninger
167 240 krTotalpris
6 017 240 kr
Pris
Bruksareal
210 m²BRA-I (internt bruksareal)
173 m²BRA-E (eksternt bruksareal)
37 m²TBA (terrasse-balkongareal)
74 m²
Areal
Etasje
1Byggeår
2021Soverom
4 soveromBad
2 badTomteareal
868 m² (eiet)Type
Enebolig - FrittliggendeEierform
EietFasiliteter
Garasje/P-plass og Balkong/TerrasseÅrlig velavgift
2 200 krEnergimerke
Oransje B
Nøkkelinfo
Unngå doble boligrenter
Vi tilbyr gunstig forsikring.
Vurderer du utleie?
Få et tilbud fra Utleie KrogsveenHva koster lånet?
Sjekk estimert lånekostnadBeskrivelse
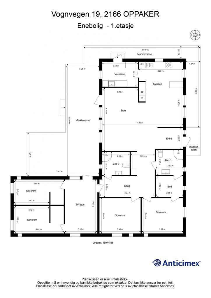
Kort om eiendommen
Velkommen til Vognvegen 19! En romslig og lettstelt enebolig på ett plan fra 2021. Boligen har en gjennomtenkt og spennende planløsning med fire lyse og romslige soverom, to stueavdelinger, et stort og funksjonelt kjøkken, samt to bad med gulvvarme og et separat vaskerom. Utendørs finner du en isolert dobbelgarasje og asfaltert gårdsplass med gode parkeringsmuligheter. Eiendommen ligger rolig og idyllisk til i et nyere boligområde på Oppaker i Nes kommune, ca. 11 minutters kjøretur fra Årnes. Nærheten til Glomma og flotte turområder gir deg gode muligheter for rekreasjon og naturopplevelser like utenfor døren.
Høydepunkter:
- 4 soverom og 2 bad.
- 2 stueavdelinger.
- Isolert dobbelgarasje med el-lader.
- 4 varmepumper, samt 22 solcellepanel.
- Älvsbyhus sin modell "Regina".
Område
Legg til steder som er viktige for deg
På flyttefot? Tenk kjøp og salg samtidig.
Få din egen rådgiver gjennom hele kjøps- og salgsprosessen. Det starter med en verdivurdering.
Unngå doble boligrenter
Vi tilbyr gunstig forsikring.
Vurderer du utleie?
Få et tilbud fra Utleie KrogsveenHva koster lånet?
Sjekk estimert lånekostnadVil du varsles om lignende boliger?
Ved å lagre ditt boligsøk hos oss får du beskjed når vi har en bolig som ligner denne, før den legges ut på markedet!

