Ospedalsbakken 22A
3 950 000 kr
92 m²
2 soverom
Solgt

Blindheim
BUD MOTTATT Tiltalende halvpart av tomannsbolig oppgradert de senere år | barnevennlig område i endegate | Utsikt
Prisantydning
3 950 000 krOmkostninger
119 740 krTotalpris
4 069 740 kr
Pris
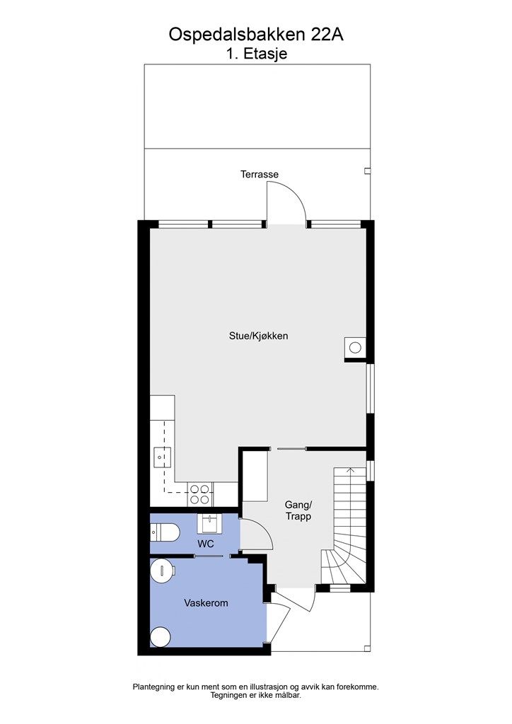
Bruksareal
95 m²BRA-I (internt bruksareal)
92 m²BRA-E (eksternt bruksareal)
3 m²TBA (terrasse-balkongareal)
34 m²
Areal
Etasje
2Byggeår
2005Soverom
2 soveromBad
1 badTomteareal
476 m² (eiet)Type
Halvpart vertikaldelt boligEierform
EietFasiliteter
Balkong/TerrasseEnergimerke
Oransje D
Nøkkelinfo
Unngå doble boligrenter
Vi tilbyr gunstig forsikring.
Vurderer du utleie?
Få et tilbud fra Utleie KrogsveenHva koster lånet?
Sjekk estimert lånekostnadBeskrivelse
Kort om eiendommen
Krogsveen Sunnmøre v/Eiendomsmegler/Daglig leder Preben Willmann har gleden av å presentere en tiltalende halvpart av vertikaldelt tomannsbolig oppført over 2 plan. Stor markterrasse på 26 kvm i 1. etasje og balkong i 2. etasje på 8 kvm. Skjermet og pent opparbeidet hage med lekehytte.
Eiendommen ligger fint til i terrenget med god tilkomst og gode solforhold. Gangavstand til Blindheim Butikksenter hvor man blant annet finner dagligvarebutikk, apotek, legekontor, og tannlege. I nærområdet ellers finner man Rema 1000, Pizzabakeren, restaurant, treningssenter, barnehager, barneskole og ungdomsskole Moa ligger ca. 7 minutter unna med bil. Her finner man Moa Amfi kjøpesenter med alle sine fasiliteter.
Område
Legg til steder som er viktige for deg
På flyttefot? Tenk kjøp og salg samtidig.
Få din egen rådgiver gjennom hele kjøps- og salgsprosessen. Det starter med en verdivurdering.
Unngå doble boligrenter
Vi tilbyr gunstig forsikring.
Vurderer du utleie?
Få et tilbud fra Utleie KrogsveenHva koster lånet?
Sjekk estimert lånekostnadVil du varsles om lignende boliger?
Ved å lagre ditt boligsøk hos oss får du beskjed når vi har en bolig som ligner denne, før den legges ut på markedet!

