Kompani Linges vei 15
6 500 000 kr
274 m²
4 soverom
Solgt

Klassisk enebolig med bra beliggenhet |"Madame Nielsens hus" Kiellands skriveloft | 1 mål tomt m. 2 frittstående bygninger.
Prisantydning
6 500 000 krOmkostninger
183 490 krTotalpris
6 683 490 kr
Pris
Bruksareal
485 m²BRA-I (internt bruksareal)
274 m²BRA-E (eksternt bruksareal)
200 m²TBA (terrasse-balkongareal)
37 m²
Areal
Byggeår
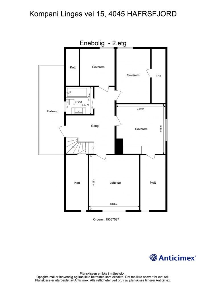
1845Soverom
4 soveromBad
3 badTomteareal
1 060 m² (eiet)Type
Enebolig - FrittliggendeEierform
EietEnergimerke
Oransje G
Nøkkelinfo
Unngå doble boligrenter
Vi tilbyr gunstig forsikring.
Vurderer du utleie?
Få et tilbud fra Utleie KrogsveenHva koster lånet?
Sjekk estimert lånekostnadBeskrivelse
Kort om eiendommen
Velkommen til Kompani Linges vei 15, en historisk og sjarmerende enebolig med en sentralt og barnevennlig beliggenhet på Madla. Fint uteområde og stor tomt med kort avstand til det meste.
Det kan blant annet nevnes:
- Ærverdig bolig med sjarm og historie.
- Stor eiendom 1 mål tomt og 2 frittstående bygninger – perfekt for ekstra lagring eller hobbybruk.
- Attraktiv og populær beliggenhet i et rolig, men sentralt område på Madla
- Hele eiendommen er vernet hensynsone forminne.
- Kjeller er innredet med leilighet (ikke bruksendret/godkjent)
- Nær flotte turområder – perfekte rekreasjonsmuligheter rett utenfor døren.
- Rolig og barnevennlig område med lite biltrafikk.
Denne eiendommen har en helt spesiell sjel og byr på mange muligheter for den rette kjøper. Velkommen til visning
Område
Legg til steder som er viktige for deg
På flyttefot? Tenk kjøp og salg samtidig.
Få din egen rådgiver gjennom hele kjøps- og salgsprosessen. Det starter med en verdivurdering.
Unngå doble boligrenter
Vi tilbyr gunstig forsikring.
Vurderer du utleie?
Få et tilbud fra Utleie KrogsveenHva koster lånet?
Sjekk estimert lånekostnadVil du varsles om lignende boliger?
Ved å lagre ditt boligsøk hos oss får du beskjed når vi har en bolig som ligner denne, før den legges ut på markedet!

