Kongens gate 18
2 190 000 kr
38 m²
1 soverom
Solgt

Ålesund sentrum
Perfekt eierleilighet midt i beste bysentrum | Heis i bygget | smart planløsning
Prisantydning
2 190 000 krAndel fellesgjeld
1 927 krOmkostninger
65 810 krTotalpris
2 257 737 kr
Pris
Bruksareal
44 m²BRA-I (internt bruksareal)
38 m²BRA-E (eksternt bruksareal)
6 m²
Areal
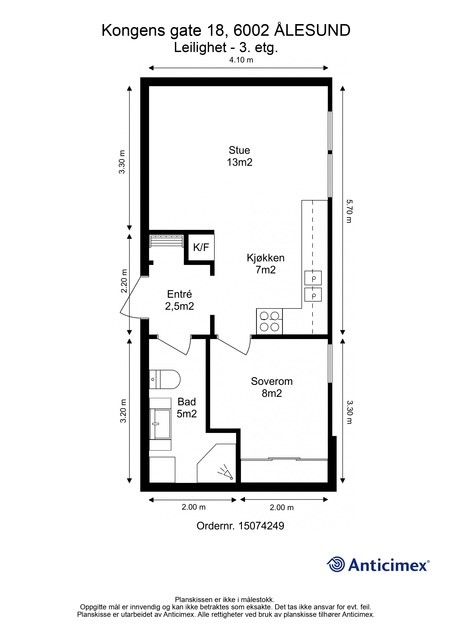
Etasje
3Byggeår
1974Soverom
1 soveromBad
1 badType
EierleilighetEierform
EierseksjonFasiliteter
HeisFellesutgifter
3 073 krEnergimerke
Rød E
Nøkkelinfo
Unngå doble boligrenter
Vi tilbyr gunstig forsikring.
Vurderer du utleie?
Få et tilbud fra Utleie KrogsveenHva koster lånet?
Sjekk estimert lånekostnadBeskrivelse
Kort om eiendommen
Arealeffektiv eierleilighet beliggende i gågata midt i beste bysentrum. Leiligheten er beliggende i 3. etasje og har en rolig beliggenhet inn mot bakgården.
Leiligheten har følgende innhold: Entre, stue/kjøkken, bad og soverom. Kjøkken fra HTH fra 2016 med integrerte hvitevarer fra Bosch. Flislagt bad med opplegg for både vaskemaskin og tørketrommel.
Gangavstand til Bybadet og Byparken som ligger en liten spasertur fra eiendommen. Byparken er et flott turmål i seg selv, i tillegg kan en fortsette opp trappene til Fjellstua og benytte flere kilometer med gruslagte stier. Til byens to kjøpesentre, er det hhv 250 meter til Ålesund Storsenter, til Kremmergården er det 450 meter. Bunnpris Skansen, som er søndagsåpen butikk, ligger 130 m unna leiligheten.
Område
Legg til steder som er viktige for deg
På flyttefot? Tenk kjøp og salg samtidig.
Få din egen rådgiver gjennom hele kjøps- og salgsprosessen. Det starter med en verdivurdering.
Unngå doble boligrenter
Vi tilbyr gunstig forsikring.
Vurderer du utleie?
Få et tilbud fra Utleie KrogsveenHva koster lånet?
Sjekk estimert lånekostnadVil du varsles om lignende boliger?
Ved å lagre ditt boligsøk hos oss får du beskjed når vi har en bolig som ligner denne, før den legges ut på markedet!

