Øvre Holmegate 24A
3 850 000 kr
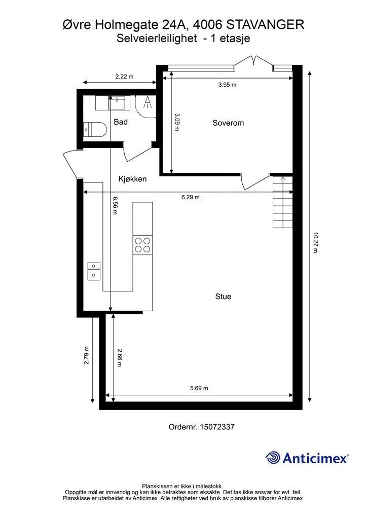
60 m²
1 soverom
Solgt

STAVANGER SENTRUM
Sentrumsnær, urban og unik 2-roms selveierleil. midt i hjerte av Fargegata med takterrasse. Uvanlig stille, må oppleves!
Prisantydning
3 850 000 krOmkostninger
107 290 krTotalpris
3 957 290 kr
Pris
Bruksareal
60 m²BRA-I (internt bruksareal)
60 m²TBA (terrasse-balkongareal)
33 m²
Areal
Etasje
2Byggeår
1861Soverom
1 soveromBad
1 badType
EierleilighetEierform
EierseksjonFasiliteter
Balkong/TerrasseFellesutgifter
1 765 krEnergimerke
Oransje F
Nøkkelinfo
Unngå doble boligrenter
Vi tilbyr gunstig forsikring.
Vurderer du utleie?
Få et tilbud fra Utleie KrogsveenHva koster lånet?
Sjekk estimert lånekostnadBeskrivelse
Kort om eiendommen
*Unik, usjenert, romslig, fargerik og stilig selveierleil. m/god planløsning, takvinduer og takterrasse
*Her får du følelsen av en kul loftsleilighet i en storby. Må oppleves!
*Eier bodd her i 20 år
*Sentralt i sentrum, midt i Fargegata, med alt av fasiliteter rett utenfor døren
*Tilbaketrukket med 2 andre leiligheter i front, ligger man stille til
*Sosial stue/kjøkkenløsning med plass til stor salong og spisebord
*Kjøkken i lys innredning, bra med skapplass og arbeidsflater
*Soverom med garderobeløsning og god oppbevaringsplass. Balkong
*Helfliset bad med varme i gulv
*Varmepumpe
*Bod på 22 m2 i kjeller m/ god lagring
*Meget god kollektive muligheter
*Sameiet består av 5 boligseksjoner og 1 næringsseksjon
*Lave felleskost. på kr 1502 kr pr mnd
*Lyse fiber er inkl i felleskostnadene
Område
Legg til steder som er viktige for deg
På flyttefot? Tenk kjøp og salg samtidig.
Få din egen rådgiver gjennom hele kjøps- og salgsprosessen. Det starter med en verdivurdering.
Unngå doble boligrenter
Vi tilbyr gunstig forsikring.
Vurderer du utleie?
Få et tilbud fra Utleie KrogsveenHva koster lånet?
Sjekk estimert lånekostnadVil du varsles om lignende boliger?
Ved å lagre ditt boligsøk hos oss får du beskjed når vi har en bolig som ligner denne, før den legges ut på markedet!

