Bakkerudveien 5C
13 200 000 kr
134 m²
3 soverom
Komplett salgsoppgave
Nordstrand
Nyere lekker familiebolig (2022) |To balkonger, hage og stor terrasse |Garasje m/ elbil-lader |Skjermet og barnevennlig
Prisantydning
13 200 000 krOmkostninger
350 990 krTotalpris
13 550 990 kr
Pris
Bruksareal
164 m²BRA-I (internt bruksareal)
134 m²BRA-E (eksternt bruksareal)
30 m²TBA (terrasse-balkongareal)
51 m²
Areal
Byggeår
2022Soverom
3 soveromBad
1 badType
RekkehusEierform
EierseksjonFasiliteter
Garasje/P-plass og Balkong/TerrasseEnergimerke
Oransje B
Nøkkelinfo
Unngå doble boligrenter
Vi tilbyr gunstig forsikring.
Vurderer du utleie?
Få et tilbud fra Utleie KrogsveenHva koster lånet?
Sjekk estimert lånekostnadBeskrivelse
Kort om eiendommen
Velkommen til Bakkerudveien 5C! Et moderne og innholdsrikt rekkehus fra 2022, beliggende i et stille og familievennlig småhusområde på Nordstrand. Boligen går over tre plan med en gjennomtenkt planløsning og høy standard. Her bor du med kort vei til skoler, barnehager og offentlig kommunikasjon, samt et rikt utvalg av servicetilbud på Sæter Torg og Lambertseter.
Andre etasje er boligens sosiale hjerte med en åpen stue- og kjøkkenløsning på 53 kvm og utgang til en takoverbygget balkong på 13 kvm. Tredje etasje byr på en koselig loftstue med takvindu, tre soverom og et delikat bad. Fra første etasje er det utgang til en stor terrasse på 34 kvm. Boligen har gulvvarme i store deler av arealene, balansert ventilasjon og en integrert garasje med elbil-lader.
Velkommen til visning!
Innhold og byggemåte
Innhold og byggemåte
Eiendommen
Bakkerudveien 5C, 1163 OSLO
Kommunenummer 301, gårdsnummer 158, bruksnummer 711, seksjonsnummer 2, ideell andel 1/1
Innhold
Totalt bruksareal BRA: 164 kvm
BRA-i:
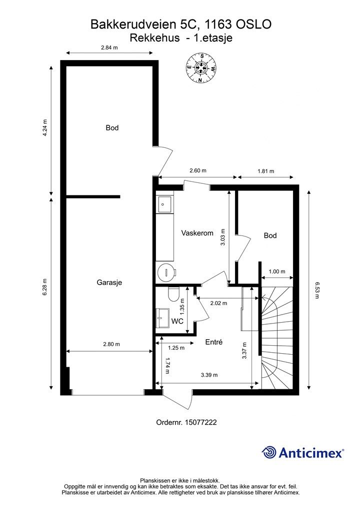
1. etasje 30 kvm: Entré, vaskerom, toalettrom og bod.
2. etasje 53 kvm: Åpen stue/kjøkkenløsning.
3. etasje/loft 51 kvm: Bad, stue og tre soverom.
BRA-e:
1. etasje 30 kvm: Tilliggende, isolert garasje/bod.
Terrasse- og balkongareal (TBA):
1. etasje 34 kvm: Frittliggende terrasseplatting.
2. etasje 13 kvm: Delvis overbygget balkong.
3. etasje/loft 4 kvm: Overbygget balkong.
3. etasje/loft har et totalt gulvareal (GUA) på 60 kvm, men grunnet skråtak/lav takhøyde er kun 51 kvm av arealet måleverdig som bruksareal.
Vedlagte plantegninger er ikke målbare. De oppgitte arealer er hentet fra rapport med befaringsdato 17.11.2025 utført av Anticimex AS v/Christian Ulrich Johansen.
Byggemåte
Selger har fått utarbeidet en tilstandsrapport, dvs. en teknisk gjennomgang av boligen hvor eventuelle avvik, risiko for kjøper og prisoverslag for hva som bør gjøres av oppgradering, er skissert. Se særskilt TGIU (tilstandsgrad ikke undersøkt), samt TG2 og TG3 som viser hva som er boligens normale slitasje, alder og type, eller som bør/må utbedres. Rapporten og selgers egenerklæring er en del av salgsoppgaven og må leses nøye før bud inngis. Kjøper overtar ansvaret for de opplysninger som fremkommer av salgsdokumentasjonen, og kan ikke gjøre gjeldende som mangel noe som burde vært kjent eller som ikke kan anses å ha betydning for avtalen.
Rekkehus fra 2022. Bygningen er iht. tilstandsrapport oppført over tre etasjer med støpt såle mot grunn og grunnmur av termomur, med bærende vegger og etasjeskillere i trekonstruksjoner. Ytterveggene er av trekonstruksjoner, utvendig kledd med liggende kledning. Takkonstruksjonen er en saltaksform bygget av stål- og trekonstruksjoner, tekket med takstein og takpapp. Boligen har vinduer og balkongdører fra byggeåret med karmer og rammer av tre og tre-lags glass. Takvinduer har karmer og rammer av tre og metall, også med tre-lags glass. Entrédør og garasjedør er fra byggeåret og har vindusfelter, mens innvendige dører er slette. Les forøvrig mer om byggemåte og den tekniske tilstanden i rapporten.
Ovennevnte er kun et utdrag fra rapporten, se supplerende tekst i tilstandsrapporten for mer informasjon. Kjøper overtar ansvar og risiko for dette.
Standard
Bakkerudveien 5C har en tilbaketrukket og skjermet beliggenhet, i andre husrekke fra veien. Et meget barnevennlig villaområde med nærhet til Nordseter skole, fritidstilbud, kollektivtransport og servicetilbud.
Huset er oppført i samsvar med TEK17 og dens krav til byggeteknikk, isolasjon, innemiljø osv.
Boligen er tegnet av arkitekt Nils-Henrik Henningstad og fasadens arkitektoniske utrykk fremstår som moderne og tidløs.
En innholdsrik bolig med en god og gjennomtenkt planløsning som åpner for flere bruksmuligheter og appellerer til familier med behov for fleksible løsninger der ulike generasjoner kan få spillerom.
Boligen er oppført i 2022 og oppleves som tilnærmet ny. En lys og meget pen bolig i delikate farger og med et nøye planlagt interiørkonsept og løsninger.
1. etasje:
Entré/hall i 1. etasje:
Entreen er lekker og innbydende med åpen løsning og stor trappehall. Det er lagt 60*60 fliser på gulv. Varmekabler i gulv. Rommet har downlights innfelt i himling. Glatte vegger malt i varm gråfarge. Praktisk og lekker garderobe.
Vaskerom:
Fra entré/hall eller gjennom egen inngang finnes det praktiske vaskerommet, noe som forenkler en hektisk hverdag for barnefamilier. Våte og skitne barnehagedresser finner fort veien til sin rette plass. På gulvet er det lagt 60*60 fliser tilsvarende de som er lagt i entré/hall. Varmekabler i gulv. Malte vegger og malt himling. Rommet har skapinnredning med slette fronter, laminat benkeplate og en nedfelt utslagsvask i rustfritt stål med ett-greps armatur og spylefunksjon. Det er opplegg for vaskemaskin, mekanisk avtrekksventil og en 281-liters varmtvannsbereder. Lekkasjestopper er installert. Fra vaskerommet er det utgang til den solrike hagen.
Bod:
Praktisk bod med god lagringsplass. Her er lagt enstavs parkett. Rommet har takpunkt i himling. En annen nabo har etablert vindu i boden da dette er på bakkeplan, så her er bruksmulighetene flere.
WC:
Praktisk WC hvor det er lagt 60*60 fliser tilsvarende de som er lagt i entré/hall og vaskerom. Varmekabler i gulv. Rommet er utstyrt med vegghengt servantskap med ovenpåliggende servant og ett-greps armatur, speil og vegghengt toalett. En lekkasjesensor tilkoblet lekkasjestopper og mekanisk avtrekksventil er installert.
Trappen som tar deg opp til boligens andre etasje har lukkede trinn i hvitpigmentert heltre eik.
Stue/spisestue/kjøkken i 2. etasje:
Stuen er et lyst og lekkert rom i åpen løsning med kjøkken. Gulvvarme i hele etasjen. Peisen og kjøkkenøya deler det store rommet opp i naturlige soner. Fra den delen som er innredet som et spisestueområde er det terrassedør direkte ut til den usjenerte balkongen. Spisestuen innbyr til trivelige lag med venner og familie. I den delen som er innredet som et loungeområde finnes den moderne peisovnen - perfekt for kalde høst- og vinterkvelder.
Høye vinduer gir godt med dagslys og utsyn til hagen. Kjøkkenet har downlights innfelt i himling. Glatte vegger malt i moderne fargepalett.
Kjøkkenet er levert av Sigdal. Tidløs og stilren innredning med mørke, glatte fronter i kombinasjon med varmt treverk. Kjøkkenøy med skap og skuffer. Barløsning - et perfekt sted å innta frokosten.
Laminat benkeplater og en nedfelt oppvaskkum i kompositt med ett-greps armatur. Integrerte hvitevarer inkluderer kjøleskap, oppvaskmaskin og induksjonstopp med integrert ventilator tilkoblet avtrekk ut av bygget. Kjøkkenet er utstyrt med lekkasjesensor tilkoblet lekkasjestopper og komfyrvakt.
Kort oppsummert - et tidløst kjøkken av høy kvalitet på innredning og hvitevarer, sosial sone med øy og barløsning.
3. etasje:
Trappen som tar deg opp til boligens tredje etasje har trinn i hvitpigmentert heltre eik.
Bad i 3. etasje:
Lekkert og tidløst baderom med flislagte gulv og vegger. Varmekabler i gulv. Innredningen er levert av Vikingbad og inkluderer en vegghengt servantinnredning med ovenpåliggende servant og ett-greps armatur, speil med belysning, badekar med badekararmatur og hånddusj, samt et vegghengt toalett. Dusjsonen er utstyrt med dusjvegg og innfellbar dør av glass og metall, og har dusjarmatur med både hånddusj og regndusj. Rommet har mekanisk avtrekksventil. Downlights innfelt i himling. Et flott rom å starte dagen.
Stue:
Stuen har god størrelse og har mange bruksmuligheter. Herfra er det utgang til sydvendt balkong med trivelig utsyn mot hagen og nærområdet. Høye vinduer i kombinasjon med takvinduer gir godt med dagslys og utsyn til omgivelsene.
På gulvet er det lagt parkett. Takpunkt i himling. Glatte vegger malt i varm gråtone.
Boligen har tre romslige soverom, samtlige ligger i tredje etasje.
De to barnerommene har god størrelse og det er lagt enstavs parkett på gulvene. Rommene har takpunkt montert i glatt himling. Glatte vegger malt i moderne fargepalett. Begge rommene har plass til garderobeløsninger.
Hovedsoverom med "walk in closet".
Stort hovedsoverom med enstavs parkett. Utgang balkong og store vinduer gir mye naturlig lys. Egen ”walk in” garderobe med lekker garderobe.
Se tilstandsrapport for nærmere informasjon om eiendommens standard.
Det er kun de integrerte hvitevarene på kjøkkenet som medfølger.
Løsøre og tilbehør
Vi viser til liste fra Norges Eiendomsmeglerforbund som gjelder fra 01.01.2020 angående løsøre og tilbehør.
Lamper over kjøkkenøy og i trappeoppgang medfølger ikke.
Vaskemaskin/tørketrommel og kjøleskap og fryser i boden medfølger ikke.
Oppvarming
Boligen har elektrisk oppvarming med gulvvarme i entré, toalettrom og vaskerom i 1. etasje, i hele 2. etasje, samt på bad i 3. etasje. I tillegg er det peisovn i stuen for vedfyring.
Dersom beboelsesrom ikke har vegg- eller fastmonterte varmekilder ved visning følger dette heller ikke med.
Ferdigattest/brukstillatelse
Det foreligger ferdigattest på eiendommen, datert 23.09.2022. Denne kan fås ved henvendelse til megler.
Tinglyste heftelser og rettigheter
Eiendommen overdras fri for pengeheftelser.
Sameiet har legalpant for krav mot sameieren som følger av sameieforholdet iht. eierseksjonsloven § 31. Pantet er begrenset oppad til 2G, (G = folketrygdens grunnbeløp).
Det er tinglyst følgende servitutter på sameiets eiendom.
Dagboknr. 13902, tinglyst 21.09.1968:
Servitutten omhandler tidligere hus på eiendommen, og er ikke relevant i dag.
Dagboknr. 14721, tinglyst 03.10.1968:
Melding skal sendes før det påbegynnes arbeid ved vann -og kloakkanlegget på eiendommen. Kommunen har rett til å inspisere eiendommens ledningsanlegg. Dersom kommunen krever det, skal eiendommen sløyfe det godkjente private renseanlegget for eiendommens spillvann, føre avløpet direkte til offentlig kloakk og betale den fastsatte avgift. Kommunen har ikke noe ansvar for private ledninger og eier er ansvarlig for skader på offentlig ledningsnett som følge av at avløpet inneholder skadelige væsker eller stoffer. Eier er ansvarlig for at taknedløp o.l. ikke tildekkes. Eier er ansvarlig for å holde eiendommens ledningsnett i forskriftsmessig stand.
Dagboknr. 15810, tinglyst 21.10.1968:
Eiendommen er forpliktet til å forbinde eiendommens overvannsavløp til offentlig overvannskloakk når den blir lagt av kommunen.
Dagboknr. 656738, tinglyst 03.06.2021:
Bakkerudveien godkjennes inntil videre i sin nåværende bredde. Dersom kommunen forlanger det, plikter eier av eiendommen å vederlagsfritt opparbeide vei opp til regulert bredde samt avstå nødvendig veigrunn.
Servituttene vil følge eiendommen. Kjøpers bank vil få prioritet etter ovennevnte heftelser og servitutter.
Eventuell adgang til utleie
Eiendommen har ikke separat utleieenhet. Det vil normalt være anledning til utleie av hele eiendommen eller enkeltrom, såfremt utleiearealet er bygningsmessig godkjent for varig opphold og har forsvarlige radonnivåer. Leietaker må følge sameiets vedtekter og ordensregler på lik linje som eier.
Beliggenhet og tomteforhold
Beliggenhet og tomteforhold
Beliggenhet
Eiendommen ligger solrikt og attraktivt til i et veletablert og svært barnevennlig villaområde på Nordstrand. Området er rolig med lite gjennomgangstrafikk, og Bakkerudveien 5C ligger skjermet og tilbaketrukket i andre rekke fra veien.
Nabolaget byr på et godt bomiljø med mange barnefamilier, og kort vei til barnehager, skoler, offentlig kommunikasjon og servicetilbud på Sæter, Holtet og Lambertseter. Lambertseter Senter har et bredt utvalg av butikker og spisesteder, samt Vinmonopol, bibliotek og Symra Kino. På Holtet finner man blant annet den populære delikatessebutikken Jacobs, og på Sæter Torg ligger både Meny og Rema, flere spisesteder som Samson Bakeri med steinovnspizza, Norlaks og Egon, kaffebarer som Kaffebrenneriet og Joe & The Juice, i tillegg til kles- og interiørbutikker, frisør, bokhandel, apotek og blomsterbutikk.
Det er kort vei til buss i Oberst Rodes vei, samt til T-bane fra Lambertseter og trikk fra Kastellet (se ruter.no for rutetider).
Området har et rikt idretts- og aktivitetstilbud. Nordstrand IF holder til på «Niffen» med håndballhall og kunstgressbaner, og tilbyr blant annet fotball, håndball, triatlon og allsport for funksjonshemmede. I Nordstrand Arena finnes treningssenter, kurs- og konferanselokaler og servering. Nordstrand Turnforening tilbyr turn og gymnastikk i Leirskallen Turnhall, mens Nordstrand Tennisklubb har både uteanlegg og innendørshall.
Videre finnes Bekkelaget Sportsklubb med et bredt tilbud innen flere idretter, anlegg på Sportsplassen og i Ekeberghallen, samt KFUM-hallen og Bækkelagshøgda Tennisklubb. Lambertseter Svømmeklubb holder til i Lambertseter Bad og er blant landets ledende svømmeklubber. Lambertseter Idrettsforening har flotte friidretts- og fotballfasiliteter og tilbyr en rekke aktiviteter.
I tillegg er det kort vei til Sloreåsen slalåmbakke, Ormsund Roklubb på Malmøya, Oppegård båtforening ved Hvervenbukta, flere treningssentre som Sats, Best Helse, Evo og treningssenteret i Nordstrand Arena, ishockeymiljøet hos Manglerud Star, samt Oslo Klatresenter på Skullerud og Hauktjern utendørs klatrefelt.
Bydelen har også et bredt kultur- og foreningstilbud innen dans, kor, musikk, speider og andre fritidsaktiviteter.
Adkomst
Bakkerudveien er en lite trafikkert villavei som strekker seg fra Nordseter Terrasse, krysser Oberst Rodes vei, og ender på toppen i Hellinga. Bakkerudveien 5C ligger i andre husrekke med adkomst fra Bakkerudveien, mellom Lindbäckveien og Munkerudveien.
Barnehager, skoler og fritid
Flere barnehager i nærmiljøet.
Eiendommen sogner til Nordseter barne- og ungdomsskole.
Dersom skole- og barnehagetilbud er av betydning for kjøpet, ber vi om at det rettes en særskilt henvendelse til kommunen/bydelsadministrasjonen for oppdatert informasjon.
Beskrivelse av tomt
Eiertomt på 842 kvm. Seksjonene har vedtektsfestet bruksrett til sine respektive deler av utearealet. 5C ligger i midten med en fin og barnevennlig hage, tilbaketrukket fra vei. Frittliggende terrasseplatting med levegger som har god plass for møblement. Seksjonen har adkomstrett over søndre del av hagen til 5D for nødvendig adkomst (frakt av utstyr etc.).
Parkering
Garasje integrert i boligens 1. etasje, med elbillader.
Vei, vann og avløp
Eiendommen har adkomst via kommunal vei. Sameiet er ansvarlig for fellesareal.
Eiendommen er tilknyttet kommunalt ledningsnett via private stikkledninger. Eier er selv ansvarlig for private stikkledninger til boligen.
Regulerings-og arealplaner
Eiendommen er regulert til boligformål i henhold til reguleringsplan S-4220 datert 15.03.2006 med tilhørende reguleringsbestemmelser. Bystyret har vedtatt en ny småhusplan, men den er ikke rettskraftig enda grunnet innsigelser fra Norges Vassdrags- og energidirektorat (NVE). Eiendommer omfattet av småhusplanen har derfor et gjeldende midlertidig forbud mot tiltak (MFT), med visse unntak. Søknader som er omfattet av unntakene i MFT tas fortsatt til behandling. Konferer megler for ytterligere informasjon.
Byggesaker i området:
Bernt Knudsens vei 55 E - Tilbygg med ny entré og utvidelse av eksisterende takutstikk over terrasse.
Bakkerudveien 1 C - Oppføring av svømmebasseng.
Lindbäckveien 14 B - Tilbygg og bruksendring av kjeller til bolig.
Utsnitt av plan med tilhørende bestemmelser kan fås ved henvendelse til megler.
Økonomi
Økonomi
Kommunale utgifter
Kommunale avgifter er kr 20 094,- for 2026. I dette inngår gebyr for vann, avløp, renovasjon og feiing/tilsyn.
Eiendomsskatten er kr. 6 507,- for 2026.
Nåværende eier har et strømforbruk som tilsvarer ca. 20 000 kwh. pr. år.
Sameiet betaler en felles faktura for bygningsforsikringen, på ca. 163,- pr. mnd. for hver seksjon.
Boligen er tilknyttet Telia som leverandør av kabel-tv/internett, og har en avgift på ca. kr 1.000,- pr. mnd. Tv-tuner/dekoder medfølger ikke.
Utgiftene er basert på nåværende eiers forbruk og avtaler.
Selger har avtalt Norgespris på strøm på eiendommen for perioden ut 2026, og denne er pt på kr 50 øre inkl mva. Nettleie, avgifter og påslag fra kraftleverandøren kommer i tillegg. Er det fjernvarme vil det også komme kostnader i tillegg.
Denne avtalen vil følge eiendommen i den avtalte perioden.
Les mer om Norgespris her: https://www.regjeringen.no/no/aktuelt/legg-fram-lov-om-norgespris-pa-straum-og-fjernvarme/id3102642/
Formuesverdi
Formuesverdi for 2023 var kr 2 969 116,- ifølge skatteetaten. Beløpet forutsetter at eier bor fast i boligen (primærbolig).
Ved eventuell øvrig bruk av eiendommen (f.eks. fritidsbolig, pendlerbolig, utleieobjekt) var formuesverdien for 2023 kr 10 670 166,-
Formuesverdien justeres normalt årlig. Se skatteetaten.no for mer informasjon om fastsettelse av formuesverdien.
Omkostninger
13 200 000,00 Prisantydning
Omkostninger
330 000,00 Dokumentavgift til staten (2,5% av kjøpesum)
19 900,00 Gjensidige Boligkjøperpakke (valgfri)
545,00 Tinglysing panterettsdokument
545,00 Tinglysing skjøte
--------------------------------------------------------
350 990,00 Omkostninger totalt
--------------------------------------------------------
13 550 990,00 Totalpris inkl. omkostninger
--------------------------------------------------------
Betalingsbetingelser
Kjøpesum inkludert omkostninger, samt pantedokument tilknyttet eventuelt lån, skal være disponibelt hos megler 2 virkedager før overtagelsen.
Annen viktig informasjon
Annen viktig informasjon
Eier
Tea Grøndahl Linge og Christian Quaynor
Informasjon om sameiet
Eiendommen er seksjonert og er tilknyttet et sameie bestående av 3 seksjoner, med sameiebrøk 100/300.
Sameiet har ikke forretningsfører, og det føres ikke regnskap eller budsjett. Dersom det mottas felles regninger til sameiet vil kostnader bli fordelt etter nærmere regler angitt av sameiet, vanligvis etter sameiebrøk eller vedtekter.
Vi gjør videre oppmerksom på at det iht. eierseksjonsloven ikke er anledning å erverve mer enn 2 seksjoner i sameiet, her teller også eierskap via. firma, nærstående og familie. Kjøper har risikoen for at overskjøting på denne bakgrunn kan nektes av Statens Kartverk. I så fall vil kjøper uansett være forpliktet til å gjennomføre handelen, og oppgjør til selger vil finne sted tross manglende overskjøting. Konferer med megler for mer informasjon.
Kopi av seksjonsbegjæringen kan fås ved henvendelse til megler.
Overtakelse
Etter nærmere avtale.
Boligselgerforsikring
Selger har i forbindelse med salget tegnet boligselgerforsikring levert av Gjensidige.
Boligselgerforsikringen dekker selgers ansvar etter avhendingsloven begrenset oppad til kr 14 millioner. Dersom kjøper oppdager forhold ved eiendommen som hen mener utgjør en mangel ved eiendommen, vil Gjensidige behandle reklamasjonen på vegne av selger. Forsikringsvilkår kan fås ved henvendelse til megler.
Vedlagt salgsoppgaven følger selgers egenerklæringsskjema og tilstandsrapport. Interessenter må sette seg inn i dokumentene før bud inngis.
Boligkjøperforsikring
Innen kontraktsmøtet må kjøper ta stilling til om det ønskes å bestille Boligkjøperpakken gjennom Gjensidige. I denne gunstige pakken er boligen ferdig forsikret og inkluderer rettshjelpsforsikring, også kalt Boligkjøperforsikring. Rettshjelpsforsikring gir trygghet og tilgang på profesjonell juridisk hjelp dersom det oppdages uventede feil eller mangler det første året etter overtagelse. Forsikringsselskapet behandler i så fall ethvert mangelskrav kjøper måtte ha overfor selger.
Boligkjøperpakken inkluderer bygningsforsikring for hus og hytte, innboforsikring, flytteforsikring og dobbel rentedekning - i situasjoner hvor kjøper ikke får solgt nåværende primærbolig.
Kjøper mottar ingen særskilt faktura for Boligkjøperpakken da kostnaden det første året legges til kjøpesummen for boligen. Det gjøres oppmerksom på Krogsveen mottar et honorar for denne formidlingen.
Produktark for Boligkjøperpakken ligger vedlagt i salgsoppgaven.
Dersom ikke boligkjøperpakke ønskes kan kun rettshjelpsforsikring, også kalt boligkjøperforsikring, tegnes særskilt via megler. Rettshjelpsforsikringen varer i 5 år fra overtagelse og leveres gjennom Gjensidige. Ta kontakt med megler for ytterligere informasjon.
Selskap og privatpersoner som driver med kjøp/salg/utvikling som ledd i egen næringsvirksomhet kan ikke tegne boligkjøperpakke eller rettshjelpsforsikring.
Budgivning
Forbrukerinformasjon om budgivning er vedlagt denne salgsoppgaven og er også på vår hjemmeside Krogsveen.no. Alle bud og budforhøyelser må inngis skriftlig. I tillegg må legitimasjon være fremlagt sammen med signatur fra budgiver.
Vi oppfordrer til å gi bud elektronisk via GI BUD-knappen på eiendommens hjemmeside på Krogsveen.no. Da vil samtlige vilkår bli oppfylt.
Eventuelle forhøyelser eller endringer av budet kan bekreftes pr SMS eller på e-post. Vi oppfordrer alltid til å kontakte megler pr. telefon i tillegg da forsinkelser i SMS og e-post kan forekomme.
For at budene skal kunne bli behandlet og videreformidlet skriftlig til alle involverte parter, må alle bud ha en tilstrekkelig lang akseptfrist, jf. eiendomsmeglingsforskriften § 6-3.
Selger må også skriftlig akseptere budet før aksept kan formidles til budgiver. Akseptfrist bør derfor være på minimum 30 minutter, og budforhøyelser må derfor skje i god tid før fristens utløp.
Bud i forbrukerforhold kan uansett ikke settes med kortere frist enn kl. 12.00 første virkedag etter siste annonserte visning. I tillegg kan ikke budet ha forbehold om at det skal holdes hemmelig ovenfor øvrige interessenter. Megler har iht lov om eiendomsmegling ikke anledning til å videreformidle disse budene, og de vil dermed heller ikke bli journalført.
Etter at eiendommen er solgt vil kjøper og selger få tilsendt budjournal. Øvrige budgivere kan få utlevert kopi av budjournalen i anonymisert form.
Hvitvaskingsreglene
I henhold til lov om hvitvasking og terrorfinansiering har megler plikt til å gjennomføre kontrolltiltak overfor kunder, herunder fullmektiger. Dette innebærer bl.a. å bekrefte kunders og reelle rettighetshaveres identitet på bakgrunn av fremvist gyldig legitimasjon eller på annen godkjent måte, samt å innhente opplysninger om kundeforholdets formål og tilsiktede art.
Dersom slike kundetiltak ikke kan gjennomføres, kan megler ikke etablere kundeforholdet eller utføre transaksjonen.
Hvis kjøper ikke bidrar til gjennomføring av kundekontrollen og dette fører til at transaksjonen blir forsinket eller ikke kan gjennomføres, vil dette ansees som mislighold av avtalen og gi selger rettigheter etter avhendingslova kapittel 5. I tilfeller der selger ikke bidrar til gjennomføring av løpende kundekontroll underveis i oppdraget, er det selger som misligholder sine forpliktelser etter avtalen og gi kjøper rettigheter etter avhendingslovens kapittel 4. Partene er selv ansvarlige for eventuelle kostnader og ansvar dette kan medføre. Eiendomsmegleren eller eiendomsmeglingsforetaket kan ikke holdes ansvarlig for de konsekvenser dette vil kunne få for partene eller andre som har interesser i eiendomshandelen.
Kjøper oppfordres til å innbetale kjøpesummen som ikke kommer fra låneinstitusjon i én samlet innbetaling fra egen konto i norsk bank. Megler har plikt til å melde fra til Økokrim om eiendomshandler som fremstår som mistenkelige. Melding sendes Økokrim uten at partene varsles.
Personopplysningsloven
I henhold til personopplysningsloven gjør vi oppmerksom på at interessenter kan bli registrert for videre oppfølging.
Lovanvendelse
Generelle bestemmelser
Salgsoppgaven er basert på de opplysningene selger har gitt til megler, den bygningssakyndiges tilstandsrapport, samt opplysninger innhentet fra kommunen, Kartverket og andre tilgjengelige kilder. Det er viktig at kjøper setter seg grundig inn i alle salgsdokumentene, herunder salgsoppgave, tilstandsrapport og selgers egenerklæring. Kjøper anses kjent med forhold som er tydelig beskrevet i salgsdokumentene, og slike forhold kan ikke påberopes som mangler. Dette gjelder uavhengig av om kjøper har lest dokumentene. Alle interessenter oppfordres til å undersøke eiendommen nøye, gjerne sammen med fagkyndig før bud inngis. Kjøper som velger å kjøpe usett kan ikke gjøre gjeldende som mangel noe han burde blitt kjent med ved undersøkelsen.
Dersom det er behov for avklaringer, anbefaler vi at interessenter rådfører seg med eiendomsmegler eller egne rådgivere før det legges inn bud.
En bolig som har blitt brukt i en viss tid, har vanligvis blitt utsatt for slitasje og skader kan ha oppstått. Slik bruksslitasje må kjøper regne med, og det kan avdekkes enkelte forhold etter overtakelse som nødvendiggjør utbedringer. Normal slitasje og skader som nødvendiggjør utbedring, er innenfor hva kjøper må forvente og vil ikke utgjøre en mangel.
Kjøper og selgers rettigheter og plikter reguleres av avtalen mellom partene, samt informasjonen som har vært tilgjengelig for kjøperen i forbindelse med handelen. Avtalen utfylles av avhendingsloven, og det gjelder ulike avtalevilkår avhengig av om kjøper er forbrukerkjøper eller ikke. Dette er nærmere beskrevet nedenfor.
På grunn av ulike avtalevilkår kan selger vurdere bud fra en som ikke er forbruker, ulikt fra en forbrukers bud. Dersom kjøper ikke er forbruker, er selger sitt mulige mangelsansvar begrenset fordi eiendommen selges "som den er". Selger kan ikke ta «som den er»- forbehold overfor en forbrukerkjøper. Selv et lavere bud fra en som ikke er forbruker kan foretrekkes fordi begrensningen i mulig mangelsansvar kan ha egenverdi for selger. Selger står fritt til å forkaste eller akseptere ethvert bud, og er for eksempel ikke forpliktet til å akseptere høyeste bud.
Budgiver skal i budskjema avgi egenerklæring om budgiver er forbruker eller næringsdrivende/ person som hovedsakelig handler som ledd i næringsvirksomhet. Budgivere får informasjon dersom andre bud er inngitt av en som ikke er forbruker.
Forbrukerkjøp - definisjon
Med forbrukerkjøp menes kjøp av eiendom når kjøperen er en fysisk person som ikke hovedsakelig handler som ledd i næringsvirksomhet.
Forbruker – avtalevilkår
Eiendommen har en mangel dersom den ikke er i samsvar med kravene som følger av avtalen, eller det foreligger brudd på bestemmelsene i avhendingsloven §§ 3-2 til 3-8. Hvis eiendommen ikke er i samsvar med det kjøperen må kunne forvente ut ifra alder, type og synlig tilstand, kan det være grunnlag for mangelskrav. Det samme gjelder hvis det er holdt tilbake eller gitt uriktige opplysninger om eiendommen. Dette gjelder likevel bare dersom man kan gå ut ifra at det virket inn på avtalen at opplysningen ikke ble gitt eller at mangelskravet ikke blir rettet i tide på en tydelig måte.
Boligen kan ha en mangel etter avhendingsloven § 3-3 andre ledd, dersom det er avvik mellom opplyst og faktisk innvendig areal, forutsatt at avviket er på 2% eller mer og minimum 1 kvm.
Ved beregning av et eventuelt prisavslag eller erstatning må kjøper selv dekke tap/kostnader opptil et beløp på kr 10 000 (egenandel).
Ikke-forbruker (næringsdrivende) – definisjon
Hvis kjøper er en juridisk person, eller en fysisk person som hovedsakelig handler som ledd i næringsvirksomhet, vil kjøpet ikke anses som et forbrukerkjøp.
Ikke-forbruker – avtalevilkår
Eiendommen har en mangel dersom den ikke er i samsvar med kravene som følger av avtalen.
Eiendommen selges «som den er», og selgers ansvar utover det konkret avtalte er da begrenset etter avhendingsloven § 3-9, første ledd andre setning.
Avhendingsloven § 3-3 andre ledd fravikes, og hvorvidt boligens arealsvikt utgjør en mangel vurderes etter avhendingsloven § 3-8.
Informasjon om kjøpers undersøkelsesplikt, herunder oppfordringen om å undersøke eiendommen nøye, gjelder også for kjøpere som ikke anses som forbrukere.
Det forutsettes at hjemmel overføres til kjøper. Hvis kjøper ikke ønsker hjemmelsoverføring av eiendommen, må det tas forbehold om dette i budet.
Meglers vederlag
Meglers vederlag betales av selger og er avtalt til:
Vederlag: 0,70 % av salgssummen.
Vederlag:
Kontroll av hjemmel og heftelser kr 2 900,00
Kunderabatt SELGER kr -10 000,00
Markedsføringspakke Ekstra synlighet kr 29 900,00
Oppgjør kr 7 500,00
Tilrettelegging kr 17 000,00
Visninger inkl. alle kr 4 000,00
Utlegg:
Innhenting av offentlig opplysninger, reg.best Oslo-eneb/rekkeh kr 1 045,00
Tinglysing sikring kr 545,00
Andre utgifter:
AX tilstandsrapport rekkehus/tomannsbolig kr 17 500,00
Boligselgerforsikring Gjensidige - regnes av prisantydning kr 40 000,00
Foto - Dagfoto (John Løvås) kr 5 900,00
Vi er opptatt av verdiskapning, og har knyttet til oss samarbeidspartnere som skal sikre våre kunder de beste produkter og tjenester;
• I forbindelse med forberedelse av salget, innhenter vi informasjon om eiendommen hovedsakelig fra vår samarbeidspartner Amibita.
• Gjensidige leverer boligselgerforsikring og tilbyr bygningsforsikring
• Boligkjøperforsikring leveres av Hiscox og med Sedgwick som skadebehandler, og er formidlet gjennom Gjensidige.
• BN bank tilbyr finansieringsløsninger
• Vår avdeling Krogsveen Pluss tilbyr flyttetjenester som utvask, visningsvask, lager, tømming og transport av flyttelass, i tillegg til å formidle kontakt med Flip for overflateoppussing.
• I forbindelse med overtagelse av eiendommen tilbyr Overo avtale om strøm, alarm og bredbånd.
• Krogsveen er, sammen med øvrige bransjeaktører, medeier i Bomega AS som tilbyr den digitale annonseringsplattformen Hjem.
Opplysninger om oppdraget
Oppdragsnummer 44-0276/25
Eiendomsmegler Krogsveen AS, avd. Nordstrand
Ekebergveien 228 B, 1162, OSLO
950 007 613
Oppdragets KR-kode KR44.25276
Dato
Sist oppdatert: 12. februar 2026 kl. 11:25
Dokumenter
Dokumenter
PDF – 999 KB
PDF – 744 KB
PDF – 447 KB
PDF – 312 KB
PDF – 29 KB
PDF – 127 KB
PDF – 392 KB
Område
Legg til steder som er viktige for deg
Visning
For å delta på visning, ber vi om at du melder deg på. Da sikrer vi at du får nødvendig informasjon og at det er satt av tilstrekkelig med tid. Kontakt megler dersom annet tidspunkt ønskes. Husk å lese salgsoppgaven før visningen, så du stiller forberedt.
Ønsker du kun å bli holdt orientert, kan du fra eiendommens hjemmeside få varsel om solgtpris, eller kontakte megler.
Lurer du på noe?
Unngå doble boligrenter
Vi tilbyr gunstig forsikring.
Vurderer du utleie?
Få et tilbud fra Utleie KrogsveenHva koster lånet?
Sjekk estimert lånekostnadVil du varsles om lignende boliger?
Ved å lagre ditt boligsøk hos oss får du beskjed når vi har en bolig som ligner denne, før den legges ut på markedet!




