Våkleivåsen 216
3 700 000 kr
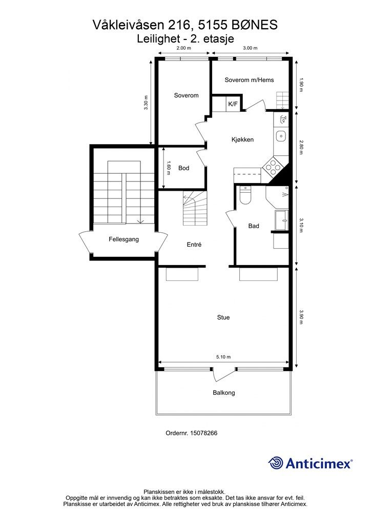
89 m²
2 soverom
Solgt

Presenteres av
Siren Helene Rundhovde Bønes
Pen 3-roms toppleilighet over to plan. Altan, gode solforhold & skjermet utsikt. Kort vei til buss, butikk & turområder!
Prisantydning
3 700 000 krAndel fellesgjeld
738 179 krOmkostninger
19 252 krTotalpris
4 457 431 kr
Pris
Bruksareal
100 m²BRA-I (internt bruksareal)
89 m²BRA-E (eksternt bruksareal)
11 m²TBA (terrasse-balkongareal)
9 m²
Areal
Etasje
3Byggeår
1983Soverom
2 soveromBad
1 badType
AndelsleilighetEierform
AndelFasiliteter
Balkong/TerrasseFellesutgifter
7 446 krEnergimerke
Oransje E
Nøkkelinfo
Unngå doble boligrenter
Vi tilbyr gunstig forsikring.
Vurderer du utleie?
Få et tilbud fra Utleie KrogsveenHva koster lånet?
Sjekk estimert lånekostnadBeskrivelse
Kort om eiendommen
Velkommen til denne flotte leiligheten i Våkleivåsen 216! En romslig toppleilighet over to plan med populær beliggenhet på Bønes - nært alt man trenger i hverdagen!
Høydepunkter:
Luftig leilighet med lyse og moderne overflater
Usjenert beliggenhet med svært lite innsyn
Borettslaget renoverte alle boligene utvendig i 2022 med nye vinduer, dører, kledning, etterisolering og tak
Balansert ventilasjon fra 2022
Tre soverom
Alle hvitevarer på kjøkkenet medfølger i handelen
Svært kort gangavstand til Fjellsdalen skole, idrettsplass, barnehage og treningssenter.
Naturskjønne omgivelser like foran blokken som gir en fin utsikt fra balkong
Lekeplass like ved boligen
Kort vei til butikk og buss
Område
Legg til steder som er viktige for deg
På flyttefot? Tenk kjøp og salg samtidig.
Få din egen rådgiver gjennom hele kjøps- og salgsprosessen. Det starter med en verdivurdering.
Unngå doble boligrenter
Vi tilbyr gunstig forsikring.
Vurderer du utleie?
Få et tilbud fra Utleie KrogsveenHva koster lånet?
Sjekk estimert lånekostnadVil du varsles om lignende boliger?
Ved å lagre ditt boligsøk hos oss får du beskjed når vi har en bolig som ligner denne, før den legges ut på markedet!
På flyttefot? Slik gjør vi det enklere for deg
Skreddersydd flyttepakke
Vi fikser håndverkere, vask, pakking, lagring og transport, og legger ut for utgiftene underveis.
Hjelp med både kjøp og salg
Hos oss har du din egen rådgiver gjennom hele kjøps- og salgsprosessen.
Hjelp til finansiering
Vårt samarbeid med BN Bank sikrer deg rask og løsningsorientert hjelp, til konkurransedyktige betingelser.































