Schweigaards gate 91B
4 950 000 kr
64 m²
3 soverom
Solgt
Sjarmerende Gamlebyen
Klassisk og vakker 4-roms hjørneleilighet med stukkatur og rosett. Vv og internett inkl. IN-ordning. Flott felles hage
Prisantydning
4 950 000 krAndel fellesgjeld
510 529 krOmkostninger
19 252 krTotalpris
5 479 781 kr
Pris
Bruksareal
67 m²BRA-I (internt bruksareal)
64 m²BRA-E (eksternt bruksareal)
3 m²
Areal
Etasje
1Byggeår
1891Soverom
3 soveromBad
1 badType
AndelsleilighetEierform
AndelFellesutgifter
9 609 krEnergimerke
Rød G
Nøkkelinfo
Unngå doble boligrenter
Vi tilbyr gunstig forsikring.
Vurderer du utleie?
Få et tilbud fra Utleie KrogsveenHva koster lånet?
Sjekk estimert lånekostnadDette liker selger best ved boligen
Denne perlen av en leilighet har gitt meg alt jeg har ønsket meg og trengt - et godt og koselig hjem i et hyggelig nabolag, fine stunder i bakhagen, gode utleiemuligheter og kort vei til det aller meste.
Beskrivelse
Kort om eiendommen
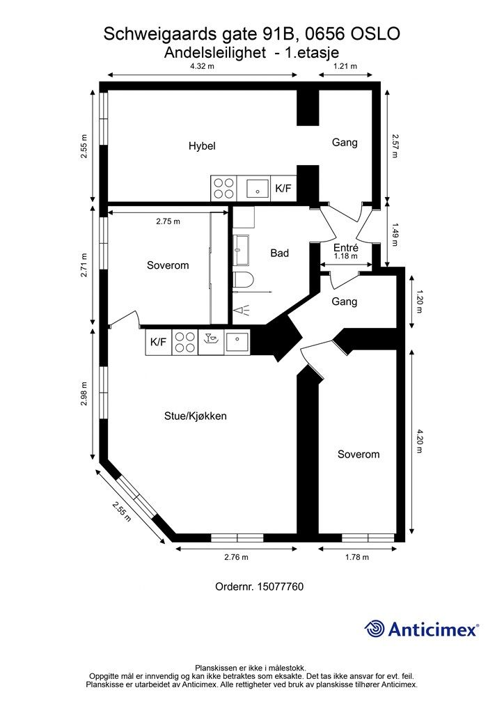
Velkommen til Schweigaards gate 91B!
Dette er en delikat 4-roms hjørneleilighet med sentral og attraktiv beliggenhet i Gamlebyen.
Leiligheten har en god planløsning og består av entré og bad, to soverom, kjøkken og stue, i tillegg til et stort soverom med kjøkkenkrok som er perfekt til å leie ut.
Vakre, klassiske detaljer som rosett, stukkatur og store vinduer.
Kort vei til butikker, kafeer, restauranter, offentlig kommunikasjon og hyggelige park-/turområder.
Høydepunkter:
Rosett og stukkatur
Sov/kjøkken ca 13 kvm, skattefrie leieinntekter om man bor i hoveddelen (ca kr 10 000,- pr mnd)
Internett og vv inkl
Herlig bakgård
IN-ordning: ved full innfrielse blir felleskostnader kr 5 091,-
Sjarmerende og lyst, i populært område
Velkommen til visning!
Område
Legg til steder som er viktige for deg
På flyttefot? Tenk kjøp og salg samtidig.
Få din egen rådgiver gjennom hele kjøps- og salgsprosessen. Det starter med en verdivurdering.
Unngå doble boligrenter
Vi tilbyr gunstig forsikring.
Vurderer du utleie?
Få et tilbud fra Utleie KrogsveenHva koster lånet?
Sjekk estimert lånekostnadVil du varsles om lignende boliger?
Ved å lagre ditt boligsøk hos oss får du beskjed når vi har en bolig som ligner denne, før den legges ut på markedet!
På flyttefot? Slik gjør vi det enklere for deg
Skreddersydd flyttepakke
Vi fikser håndverkere, vask, pakking, lagring og transport, og legger ut for utgiftene underveis.
Hjelp med både kjøp og salg
Hos oss har du din egen rådgiver gjennom hele kjøps- og salgsprosessen.
Hjelp til finansiering
Vårt samarbeid med BN Bank sikrer deg rask og løsningsorientert hjelp, til konkurransedyktige betingelser.















































