Borniteigen 20
2 700 000 kr
88 m²
3 soverom
Solgt

Vigra
Innholdsrikt enderekkehus fra 2010 med 3 soverom i rolig nabolag|Stor terrasse og balkong|Parkeringsplass med elbillader
Prisantydning
2 700 000 krOmkostninger
78 540 krTotalpris
2 778 540 kr
Pris
Bruksareal
95 m²BRA-I (internt bruksareal)
88 m²BRA-E (eksternt bruksareal)
7 m²TBA (terrasse-balkongareal)
44 m²
Areal
Etasje
2Byggeår
2010Soverom
3 soveromBad
1 badType
EierleilighetEierform
EierseksjonFasiliteter
Balkong/TerrasseEnergimerke
Lysegrønn C
Nøkkelinfo
Unngå doble boligrenter
Vi tilbyr gunstig forsikring.
Vurderer du utleie?
Få et tilbud fra Utleie KrogsveenHva koster lånet?
Sjekk estimert lånekostnadBeskrivelse
Kort om eiendommen
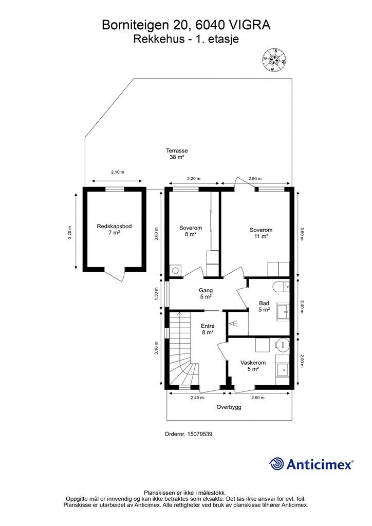
Velkommen til Borniteigen 20! Et moderne og innholdsrikt enderekkehus med store uteplasser og god planløsning.
Her bor du i et rolig og etablert nabolag på Vigra i naturskjønne omgivelser. Boligen har en praktisk planløsning over to plan, med en åpen og sosial stue- og kjøkkenløsning i andre etasje. Fra stuen er det utgang til en balkong, og fra første etasje kan du nyte en stor terrasse på hele 38 m². Med tre soverom og gode oppbevaringsmuligheter i en egen redskapsbod, er dette et hjem som dekker de fleste behov.
Høydepunkter:
*Tre soverom og god planløsning
* Stor terrasse (38 m²) og balkong (6 m²)
* Parkering på tomten med elbillader
* Varmepumpe installert i 2023 og balansert ventilasjon
* Peis i stue
* Vaskerom, baderom og toalett
Velkommen til visning!
Område
Legg til steder som er viktige for deg
På flyttefot? Tenk kjøp og salg samtidig.
Få din egen rådgiver gjennom hele kjøps- og salgsprosessen. Det starter med en verdivurdering.
Unngå doble boligrenter
Vi tilbyr gunstig forsikring.
Vurderer du utleie?
Få et tilbud fra Utleie KrogsveenHva koster lånet?
Sjekk estimert lånekostnadVil du varsles om lignende boliger?
Ved å lagre ditt boligsøk hos oss får du beskjed når vi har en bolig som ligner denne, før den legges ut på markedet!



























