Steingardsgrinda 6
8 490 000 kr
174 m²
4 soverom
Komplett salgsoppgave

Løkenåsen / Fetsund
Moderne enebolig av høy kvalitet | Flott beliggenhet og mektig utsikt | Dobbelgarasje | Byggeår 2023 | 4 sov + 2 bad
Prisantydning
8 490 000 krOmkostninger
233 240 krTotalpris
8 723 240 kr
Pris
Bruksareal
213 m²BRA-I (internt bruksareal)
174 m²BRA-E (eksternt bruksareal)
39 m²TBA (terrasse-balkongareal)
52 m²
Areal
Byggeår
2023Soverom
4 soveromBad
2 badTomteareal
688 m² (eiet)Type
Enebolig - FrittliggendeEierform
EietFasiliteter
Garasje/P-plass og Balkong/TerrasseÅrlig velavgift
1 000 krEnergimerke
Oransje B
Nøkkelinfo
Unngå doble boligrenter
Vi tilbyr gunstig forsikring.
Vurderer du utleie?
Få et tilbud fra Utleie KrogsveenHva koster lånet?
Sjekk estimert lånekostnadBeskrivelse
Kort om eiendommen
Velkommen til Steingardsgrinda 6 – en moderne og frittliggende enebolig fra 2023 med imponerende utsikt! Boligen byr på fire romslige soverom, to bad, separat vaskerom, to stuer (hvorav én i åpen løsning med lekkert kjøkken), samt to store boder. Her får du god plass, smarte løsninger og et hjem med minimalt vedlikeholdsbehov.
* Dobbelgarasje med elbillader
* Solrike uteplasser
* Balansert ventilasjon og varmepumpe/aircondition
* Et ideelt hjem for deg som ønsker moderne komfort i rolige omgivelser!
* Utbyggergaranti
Kontakt megler og bli med på en hyggelig visning!
Innhold og byggemåte
Innhold og byggemåte
Eiendommen
Steingardsgrinda 6, 1900 FETSUND
Kommunenummer 3205, gårdsnummer 439, bruksnummer 149, ideell andel 1/1
Kommunenummer 3205, gårdsnummer 439, bruksnummer 106, ideell andel 1/299
Kommunenummer 3205, gårdsnummer 439, bruksnummer 192, ideell andel 1/299
Innhold
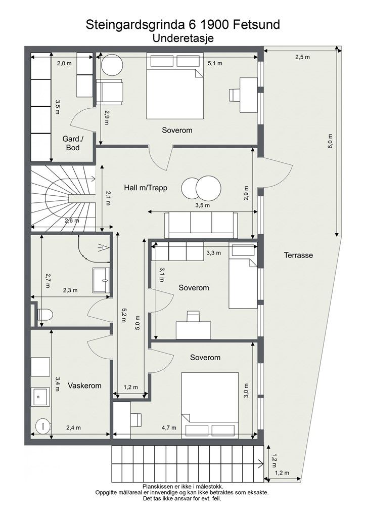
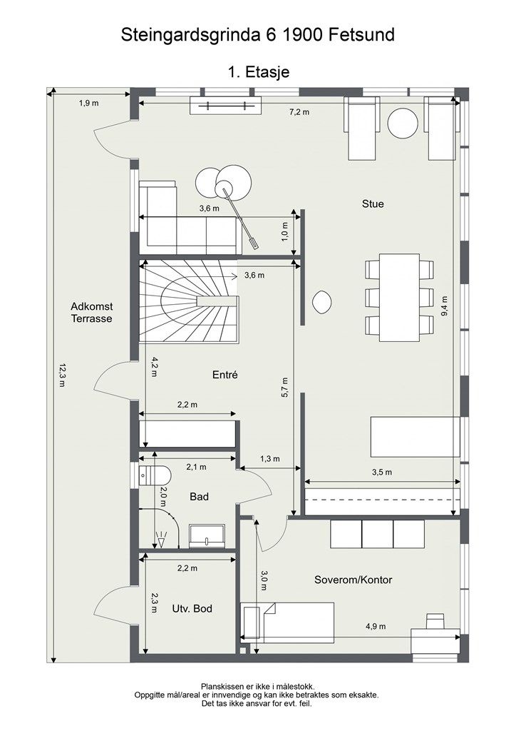
Totalt bruksareal BRA: 213 kvm
BRA-i:
-1. etasje 88 kvm: Bad, Vaskerom, Hall m/trapp, 3 Soverom, Garderobe
1. etasje 86 kvm: Bad, Kjøkken, Entré, Soverom/kontor
BRA-e:
1. etasje 5 kvm: Bod
Åpent areal:
-1. etasje 29 kvm: Terrasse
1. etasje 23 kvm: Terrasse
Garasje 34 kvm
Vedlagte plantegninger er ikke målbare. De oppgitte arealer er hentet fra rapport med befaringsdato 28.03.2025 utført av Stigen Boligtakst AS.
Byggemåte
Selger har fått utarbeidet en tilstandsrapport, dvs. en teknisk gjennomgang av boligen hvor eventuelle avvik, risiko for kjøper og prisoverslag for hva som bør gjøres av oppgradering, er skissert. Se særskilt TGIU (tilstandsgrad ikke undersøkt), samt TG2 og TG3 som viser hva som er boligens normale slitasje, alder og type, hva som er avvik fra dette og hva som bør/må utbedres. Rapporten og selgers egenerklæring er en del av salgsoppgaven og må leses nøye før bud inngis. Kjøper overtar ansvaret for de opplysninger som fremkommer av salgsdokumentasjonen, og kan ikke gjøre gjeldende som mangel noe som burde vært kjent eller som ikke kan anses å ha betydning for avtalen.
Bygningen er iht. tilstandsrapporten oppført i tre. Les for øvrig mer om byggemåte og den tekniske tilstanden i rapporten.
Det gjøres oppmerksom på at dører er gitt TG2 - dette er rettet av utbygger i etterkant.
Se for øvrig utfyllende tekst i rapporten. Kjøper overtar ansvar og risiko for dette.
Standard
Dette er en moderne enebolig av høy kvalitet! Dette flotte hjemmet på 174 kvadratmeter er et bevis på at funksjonalitet og stil kan gå hånd i hånd. Med fire romslige soverom, to stuer - den ene kombinert med et flott kjøkken, to baderom, vaskerom og to store boder, har du all plass du trenger for å trives og vokse i denne boligen.
Boligen har en elegant og stilren fasade og store vindusflater som slipper inn naturlig lys og sørger for luftige og lyse rom.
Inne i boligen vil du bli møtt av en smakfull fargepalett og nøye utvalgte interiørløsninger som gir en følelse av luksus og kvalitet.
Det er åpenbart at dette er en bolig som har blitt satt sammen med stor omtanke og nøye planlegging.
Eiendommen ligger høyt og fritt i terrenget og her får du en helt spesiell utsikt som må oppleves!
Fra morgen til kveld – og gjennom de lyse sommernettene – kan du følge solen i horisonten og nyte et nydelig, mykt lys som maler landskapet i varme toner.
Høsten byr på stemningsfulle morgener med dis som stiger fra Glomma og vannene i området – et nesten eventyrlig syn som gir en helt egen ro og atmosfære.
Planløsningen er svært god og gir deg muligheten til å leve komfortabelt og fleksibelt. Boligen har en sportsbod med egen inngang, og en stue i underetasjen som passer perfekt som tv-stue eller for husets ungdom.
Det kan nevnes en stor, åpen kjøkkenløsning fra Keo som sammen med stuen skaper et luftig og sosialt allrom.
Delikat kjøkken med store arbeidsflater og gode oppbevaringsmuligheter i skap og skuffer.
Fronter i sort glatt utførelse og håndtak i rustfritt stål.
Benkeplate med høytrykkslaminat som er en slitesterk følgesvenn på kjøkkenet. Motstandsdyktig mot vann og søl, helt vedlikeholdsfri og praktisk talt umulig å slite ned.
Nedfelt kjøkkenvask, backsplash plate i glass og kjøkkenbatteri i krom utførelse.
Kjøkkenøya skaper et naturlig skille mot stuen og fungerer som en praktisk arbeidsflate.
Her er det gode arbeidsforhold for hobbykokken som kan være sosial med gjester samtidig som det tilberedes mat.
Det er montert koketopp og innfelt ventilator i benk.
Integrerte hvitevarer som koketopp, stekeovn i høyskap, kombiskap kjøl/frys og oppvaskmaskin medfølger.
De delikate badene har flislagte baderomsvegger med trendy grå store på gulv og vegger.
Dusjvegger med klart herdet glass og dusjgarnityr med regnfallsdusj og hånddusj.
Baderomsinnredning med servantskap med ettgreps blandebatteri , samt veggspeil med integrert belysning
Vegghengt toalett med soft-close sete. Varmekabler i gulv.
Hvis du er på utkikk etter en ny og moderne enebolig som har alt du trenger for å leve et komfortabelt og praktisk liv, trenger du ikke å se lenger enn denne boligen.
Det gjøres oppmerksom på at sengegavl på hovedsoverom ikke medfølger.
Det er kun de integrerte hvitevarene på kjøkken som følger med. Kjøper må forvente slitasje som følge alder og normal bruk.
Oppvarming
Boligen blir varmet opp med elektrisitet og vedfyring.
Varme i gulv på badene, vaskerom, entre og hele underetasjen. Varmepumpe og peisovn i stuen.
Dersom beboelsesrom ikke har vegg- eller fastmonterte varmekilder ved visning, følger dette heller ikke med.
Ferdigattest/brukstillatelse
Det foreligger ferdigattest på enebolig og garasje datert 31.03.2023. Denne kan fås ved henvendelse til megler.
Tinglyste heftelser og rettigheter
Eiendommen overdras fri for pengeheftelser.
Det er tinglyst 16 servitutter på eiendommen.
Disse omhandler blant annet bestemmelser om veg, vannledning, stedsvarig rett til bygging, drift , vann-/kloakkledninger, vedlikehold og fornyelse, transport og ferdsel, byggeforbud og beplantning, bestemmelser om nettstasjon, pliktig deltakelse av samtlige fradelte parseller fra hovedbølet i realsameie. Avtale om rettigheter og plikter ved bygging, drift og vedlikehold av høyspenningsluftledninger.
Servituttene vil følge eiendommen. Kjøpers bank vil få prioritet etter ovennevnte heftelser og servitutter.
Eventuell adgang til utleie
Eiendommen har ikke separat utleieenhet. Det vil normalt være anledning til utleie av hele eiendommen eller enkeltrom, såfremt utleiearealet er bygningsmessig godkjent for varig opphold og har forsvarlige radonnivåer.
Diverse
Tilbud av produkter og tjenester fra våre samarbeidspartnere
Vi er opptatt av verdiskapning, og har knyttet til oss samarbeidspartnere som skal sikre våre kunder de beste produkter og tjenester;
• Gjensidige leverer boligselgerforsikring og tilbyr bygningsforsikring
• Boligkjøperforsikring leveres av Hiscox og med Sedgwick som skadebehandler, og er formidlet gjennom Gjensidige.
• BN bank tilbyr finansieringsløsninger
• Vår avdeling Krogsveen Pluss tilbyr flyttetjenester som utvask, visningsvask, lager, tømming og transport av flyttelass, i tillegg til å formidle kontakt med Flip for overflateoppussing.
• I forbindelse med overtagelse av eiendommen tilbyr Overo avtale om strøm, alarm og bredbånd.
• Krogsveen er, sammen med øvrige bransjeaktører, medeier i den digitale annonseringsplattformen Hjem.
Beliggenhet og tomteforhold
Beliggenhet og tomteforhold
Beliggenhet
Attraktivt beliggende enebolig på Løkenåsen i Fetsund.
Løkenåsen er et nytt boligfelt som har gått gjennom storstilt utbygging de senere årene.
Det anbefales å ta turen for å besiktige området - dette er flotte omgivelser både for store og små.
Det er opparbeidet flere mindre lekeplasser på feltet og det skal i tillegg opparbeides en større ball / lekeplass nederst på feltet. Granåsen grenser til marka og vil således by på svært gode rekreasjonsmuligheter sommer som vinter. Det er et meget barnevennlig område med nærhet til skoler, barnehager, offentlig kommunikasjon (tog/buss) samt flotte tur og treningsområder.
Området har et rikt kulturliv og en vakker natur som innbyr til friluftsliv. I nærheten ligger flotte tur- og friluftsområder med utallige skiløyper samt bademuligheter ved Hvaltjern, Heiavann og Gansvika. Lillestrøm kommune har et mangfoldig og variert tilbud innen kultur og idrett. Området kan tilby fotballbane, ball binge, lekeplass, idrettshall, skøytebane, svømmehall, badevann, skiløyper, golfbane, treningssenter m.m. Granåsen vil få nærhet til et godt utvalg av daglige servicetilbud. Dagligvarehandelen kan gjøres ved bl.a. Joker Løkenåsen, Spar Fetsund, Rema 1000 eller RIMI. Ønsker du ytterligere servicetilbud er det med bil ca 10 min til Lillestrøm sentrum som innehar et godt og variert utvalg av butikker, shoppingsenter, post, bank, apotek, vinmonopol, helsetilbud, cafeer, barer, restauranter, kino, kulturhus etc.
Barnehager, skoler og fritid
Riddersand skole (1-7 kl.)
Østersund ungdomsskole (8-10 kl.)
Sørumsand videregående skole
Lillestrøm videregående skole
Ramstadskogen barnehage (1-5 år)
Østersund idrettsbarnehage (0-5 år)
Fetsund barnehage (0-5 år)
Informasjon om tilhørende skolekretser er hentet fra Prognosesenteret som dataleverandør, og tilhørigheten kan årlig endres av kommunen. Dersom skole- og barnehagetilbud er av betydning for kjøpet, ber vi om at det rettes en særskilt henvendelse til kommunen for oppdatert informasjon.
Beskrivelse av tomt
Eiertomt på 688 kvm. Tomten er skrånende og noe opparbeidet med plen, hekk og shinglet gårdsplass.
Parkering
Dobbeltgarasje og parkering på egen eiendom. Det er montert EL-bil lader i garasjen.
Vei, vann og avløp
Eiendommen har adkomst via kommunal vei.
Eiendommen er tilknyttet kommunalt ledningsnett via private stikkledninger. Eier er selv ansvarlig for private stikkledninger til boligen.
Regulerings-og arealplaner
Eiendommen er regulert til frittliggende småhusbebyggelse i henhold til reguleringsplan 0203 R1401 Løkenåsen 2 - øvre del datert 19.06.2017 med tilhørende reguleringsbestemmelser.
Utsnitt av plan med tilhørende bestemmelser kan fås ved henvendelse til megler.
Økonomi
Økonomi
Kommunale utgifter
Kommunale avgifter er kr 26 058,- for inneværende år. I dette inngår gebyr for vann, avløp, renovasjon og feiing/tilsyn.
Det er installert vannmåler på eiendommen og kostnadene betales etter forbruk. Forbruk avleses etter henvendelse fra kommunen. Forbruk betales à konto basert på siste avlesning. Avregning foretas i forbindelse med neste forfall på kommunale avgifter.
Eiendomsskatten utgjør kr 3 513,- pr år.
Nåværende eier har ikke oppgitt sine kostnader til strømforbruk. Det er estimert et årlig forbruk på ca 20-25 000 kWh for tilsvarende boliger.
Velavgift er kr 1 000,- pr. år.
Boligen er tilknyttet Viken Fiber som leverandør av fiber. Tv-tuner/dekoder medfølger.
Utgiftene er basert på nåværende eiers forbruk og avtaler.
Formuesverdi
Formuesverdi for 2023 var kr 2 018 920,- ifølge skatteetaten. Beløpet forutsetter at eier bor fast i boligen (primærbolig).
Ved eventuell øvrig bruk av eiendommen (f.eks. fritidsbolig, pendlerbolig, utleieobjekt) var formuesverdien for 2023 kr 8 075 680,-.
Formuesverdien justeres normalt årlig. Se skatteetaten.no for mer informasjon om fastsettelse av formuesverdien.
Omkostninger
8 490 000,00 Prisantydning
Omkostninger
212 250,00 Dokumentavgift til staten (2,5% av kjøpesum)
19 900,00 Gjensidige Boligkjøperpakke (valgfri)
545,00 Tinglysing panterettsdokument
545,00 Tinglysing skjøte
--------------------------------------------------------
233 240,00 Omkostninger totalt
--------------------------------------------------------
8 723 240,00 Totalpris inkl. omkostninger
--------------------------------------------------------
Totalpris inkl. omkostninger forutsetter kjøp til prisantydning.
Det tas forbehold om endringer i avgifter og gebyrer.
Tilbud om lånefinansiering
Megler formidler gjerne kontakt med rådgiver hos Trøgstad Sparebank. De har konkurransedyktige betingelser samt rask og løsningsorientert behandling av din lånesøknad.
Betalingsbetingelser
Kjøpesum inkludert omkostninger, samt pantedokument tilknyttet eventuelt lån, skal være disponibelt hos megler 2 virkedager før overtagelsen.
Annen viktig informasjon
Annen viktig informasjon
Eier
Anastassia Sommer og Rune Sæland Darrud
Konsesjon
Realsameiet er ubebygd tomt. For at eiendommen skal kunne overskjøtes, må kjøper signere på egenerklæring om konsesjonsfrihet.
Erklæringen må godkjennes av kommunen før eiendommen kan overskjøtes til kjøper.
Overtakelse
Etter nærmere avtale.
Velforening
Boligen er tilknyttet Velforeningen Løkenåsen Felleseiendom.
Boligselgerforsikring
Selger har i forbindelse med salget tegnet boligselgerforsikring levert av Gjensidige.
Boligselgerforsikringen dekker selgers ansvar etter avhendingsloven begrenset oppad til kr 14 millioner. Dersom kjøper oppdager forhold ved eiendommen som hen mener utgjør en mangel ved eiendommen, vil Gjensidige behandle reklamasjonen på vegne av selger. Forsikringsvilkår kan fås ved henvendelse til megler.
Vedlagt salgsoppgaven følger selgers egenerklæringsskjema og tilstandsrapport. Interessenter må sette seg inn i dokumentene før bud inngis.
Boligkjøperforsikring
Innen kontraktsmøtet må kjøper ta stilling til om det ønskes å bestille Boligkjøperpakken gjennom Gjensidige. I denne gunstige pakken er boligen ferdig forsikret og inkluderer rettshjelpsforsikring, også kalt Boligkjøperforsikring. Rettshjelpsforsikring gir trygghet og tilgang på profesjonell juridisk hjelp dersom det oppdages uventede feil eller mangler det første året etter overtagelse. Forsikringsselskapet behandler i så fall ethvert mangelskrav kjøper måtte ha overfor selger.
Boligkjøperpakken inkluderer bygningsforsikring for hus og hytte, innboforsikring, flytteforsikring og dobbel rentedekning - i situasjoner hvor kjøper ikke får solgt nåværende primærbolig.
Kjøper mottar ingen særskilt faktura for Boligkjøperpakken da kostnaden det første året legges til kjøpesummen for boligen. Det gjøres oppmerksom på Krogsveen mottar et honorar for denne formidlingen.
Produktark for Boligkjøperpakken ligger vedlagt i salgsoppgaven.
Dersom ikke boligkjøperpakke ønskes kan kun rettshjelpsforsikring, også kalt boligkjøperforsikring, tegnes særskilt via megler. Rettshjelpsforsikringen varer i 5 år fra overtagelse og leveres gjennom Gjensidige. Ta kontakt med megler for ytterligere informasjon.
Selskap og privatpersoner som driver med kjøp/salg/utvikling som ledd i egen næringsvirksomhet kan ikke tegne boligkjøperpakke eller rettshjelpsforsikring.
Budgivning
Forbrukerinformasjon om budgivning er vedlagt denne salgsoppgaven og er også på vår hjemmeside Krogsveen.no. Alle bud og budforhøyelser må inngis skriftlig. I tillegg må legitimasjon være fremlagt sammen med signatur fra budgiver.
Vi oppfordrer til å gi bud elektronisk via GI BUD-knappen på eiendommens hjemmeside på Krogsveen.no. Da vil samtlige vilkår bli oppfylt.
Eventuelle forhøyelser eller endringer av budet kan bekreftes pr SMS eller på e-post. Vi oppfordrer alltid til å kontakte megler pr. telefon i tillegg da forsinkelser i SMS og e-post kan forekomme.
For at budene skal kunne bli behandlet og videreformidlet skriftlig til alle involverte parter, må alle bud ha en tilstrekkelig lang akseptfrist, jf. eiendomsmeglingsforskriften § 6-3.
Selger må også skriftlig akseptere budet før aksept kan formidles til budgiver. Akseptfrist bør derfor være på minimum 30 minutter, og budforhøyelser må derfor skje i god tid før fristens utløp.
Bud i forbrukerforhold kan uansett ikke settes med kortere frist enn kl. 12.00 første virkedag etter siste annonserte visning. I tillegg kan ikke budet ha forbehold om at det skal holdes hemmelig ovenfor øvrige interessenter. Megler har iht lov om eiendomsmegling ikke anledning til å videreformidle disse budene, og de vil dermed heller ikke bli journalført.
Etter at eiendommen er solgt vil kjøper og selger få tilsendt budjournal. Øvrige budgivere kan få utlevert kopi av budjournalen i anonymisert form.
Hvitvaskingsreglene
I henhold til lov om hvitvasking og terrorfinansiering har megler plikt til å gjennomføre kontrolltiltak overfor kunder, herunder fullmektiger. Dette innebærer bl.a. å bekrefte kunders og reelle rettighetshaveres identitet på bakgrunn av fremvist gyldig legitimasjon eller på annen godkjent måte, samt å innhente opplysninger om kundeforholdets formål og tilsiktede art.
Dersom slike kundetiltak ikke kan gjennomføres, kan megler ikke etablere kundeforholdet eller utføre transaksjonen.
Hvis kjøper ikke bidrar til gjennomføring av kundekontrollen og dette fører til at transaksjonen blir forsinket eller ikke kan gjennomføres, vil dette ansees som mislighold av avtalen og gi selger rettigheter etter avhendingslova kapittel 5. I tilfeller der selger ikke bidrar til gjennomføring av løpende kundekontroll underveis i oppdraget, er det selger som misligholder sine forpliktelser etter avtalen og gi kjøper rettigheter etter avhendingslovens kapittel 4. Partene er selv ansvarlige for eventuelle kostnader og ansvar dette kan medføre. Eiendomsmegleren eller eiendomsmeglingsforetaket kan ikke holdes ansvarlig for de konsekvenser dette vil kunne få for partene eller andre som har interesser i eiendomshandelen.
Kjøper oppfordres til å innbetale kjøpesummen som ikke kommer fra låneinstitusjon i én samlet innbetaling fra egen konto i norsk bank. Megler har plikt til å melde fra til Økokrim om eiendomshandler som fremstår som mistenkelige. Melding sendes Økokrim uten at partene varsles.
Personopplysningsloven
I henhold til personopplysningsloven gjør vi oppmerksom på at interessenter kan bli registrert for videre oppfølging.
Lovanvendelse
Generelle bestemmelser
Salgsoppgaven er basert på de opplysningene selger har gitt til megler, den bygningssakyndiges tilstandsrapport, samt opplysninger innhentet fra kommunen, Kartverket og andre tilgjengelige kilder. Det er viktig at kjøper setter seg grundig inn i alle salgsdokumentene, herunder salgsoppgave, tilstandsrapport og selgers egenerklæring. Kjøper anses kjent med forhold som er tydelig beskrevet i salgsdokumentene, og slike forhold kan ikke påberopes som mangler. Dette gjelder uavhengig av om kjøper har lest dokumentene. Alle interessenter oppfordres til å undersøke eiendommen nøye, gjerne sammen med fagkyndig før bud inngis. Kjøper som velger å kjøpe usett kan ikke gjøre gjeldende som mangel noe han burde blitt kjent med ved undersøkelsen.
Dersom det er behov for avklaringer, anbefaler vi at interessenter rådfører seg med eiendomsmegler eller egne rådgivere før det legges inn bud.
En bolig som har blitt brukt i en viss tid, har vanligvis blitt utsatt for slitasje og skader kan ha oppstått. Slik bruksslitasje må kjøper regne med, og det kan avdekkes enkelte forhold etter overtakelse som nødvendiggjør utbedringer. Normal slitasje og skader som nødvendiggjør utbedring, er innenfor hva kjøper må forvente og vil ikke utgjøre en mangel.
Kjøper og selgers rettigheter og plikter reguleres av avtalen mellom partene, samt informasjonen som har vært tilgjengelig for kjøperen i forbindelse med handelen. Avtalen utfylles av avhendingsloven, og det gjelder ulike avtalevilkår avhengig av om kjøper er forbrukerkjøper eller ikke. Dette er nærmere beskrevet nedenfor.
På grunn av ulike avtalevilkår kan selger vurdere bud fra en som ikke er forbruker, ulikt fra en forbrukers bud. Dersom kjøper ikke er forbruker, er selger sitt mulige mangelsansvar begrenset fordi eiendommen selges "som den er". Selger kan ikke ta «som den er»- forbehold overfor en forbrukerkjøper. Selv et lavere bud fra en som ikke er forbruker kan foretrekkes fordi begrensningen i mulig mangelsansvar kan ha egenverdi for selger. Selger står fritt til å forkaste eller akseptere ethvert bud, og er for eksempel ikke forpliktet til å akseptere høyeste bud.
Budgiver skal i budskjema avgi egenerklæring om budgiver er forbruker eller næringsdrivende/ person som hovedsakelig handler som ledd i næringsvirksomhet. Budgivere får informasjon dersom andre bud er inngitt av en som ikke er forbruker.
Forbrukerkjøp - definisjon
Med forbrukerkjøp menes kjøp av eiendom når kjøperen er en fysisk person som ikke hovedsakelig handler som ledd i næringsvirksomhet.
Forbruker – avtalevilkår
Eiendommen har en mangel dersom den ikke er i samsvar med kravene som følger av avtalen, eller det foreligger brudd på bestemmelsene i avhendingsloven §§ 3-2 til 3-8. Hvis eiendommen ikke er i samsvar med det kjøperen må kunne forvente ut ifra alder, type og synlig tilstand, kan det være grunnlag for mangelskrav. Det samme gjelder hvis det er holdt tilbake eller gitt uriktige opplysninger om eiendommen. Dette gjelder likevel bare dersom man kan gå ut ifra at det virket inn på avtalen at opplysningen ikke ble gitt eller at mangelskravet ikke blir rettet i tide på en tydelig måte.
Boligen kan ha en mangel etter avhendingsloven § 3-3 andre ledd, dersom det er avvik mellom opplyst og faktisk innvendig areal, forutsatt at avviket er på 2% eller mer og minimum 1 kvm.
Ved beregning av et eventuelt prisavslag eller erstatning må kjøper selv dekke tap/kostnader opptil et beløp på kr 10 000 (egenandel).
Ikke-forbruker (næringsdrivende) – definisjon
Hvis kjøper er en juridisk person, eller en fysisk person som hovedsakelig handler som ledd i næringsvirksomhet, vil kjøpet ikke anses som et forbrukerkjøp.
Ikke-forbruker – avtalevilkår
Eiendommen har en mangel dersom den ikke er i samsvar med kravene som følger av avtalen.
Eiendommen selges «som den er», og selgers ansvar utover det konkret avtalte er da begrenset etter avhendingsloven § 3-9, første ledd andre setning.
Avhendingsloven § 3-3 andre ledd fravikes, og hvorvidt boligens arealsvikt utgjør en mangel vurderes etter avhendingsloven § 3-8.
Informasjon om kjøpers undersøkelsesplikt, herunder oppfordringen om å undersøke eiendommen nøye, gjelder også for kjøpere som ikke anses som forbrukere.
Det forutsettes at hjemmel overføres til kjøper. Hvis kjøper ikke ønsker hjemmelsoverføring av eiendommen, må det tas forbehold om dette i budet.
Meglers vederlag
Meglers vederlag betales av selger og er avtalt til:
Vederlag: 0,75% av salgssummen
Minimumsvederlag: kr 60 000,-
Tilrettelegging: fra kr 17 000,-
Oppgjør: kr 7 500,-
Markedspakke: kr 27 400,-
Forsidekarusell og prospekt RB.no: 2 000,-
Visninger: kr 4 000,- pr. 3. visning
Oppslag eiendomsregister: kr 2 900,-
Megler har i tillegg krav på dekning av følgende utlegg:
lnnhenting av dokumenter/servitutter fra grunnboken kr 260,- pr stk
Tinglysing sikring kr 545,-
Boligens visittkort kr 600,-
Boligselgerforsikring Gjensidige 5,71 promille av salgssum:
Foto
Opplysninger om oppdraget
Oppdragsnummer 60-0279/25
Eiendomsmegler Krogsveen AS, avd. Lillestrøm
Adolph Tidemands gate 38, 2000, LILLESTRØM
950 007 613
Oppdragets KR-kode KR60.25279
Dato
Sist oppdatert: 14. januar 2026 kl. 10:23
Dokumenter
Dokumenter
PDF – 1003 KB
PDF – 803 KB
PDF – 876 KB
PDF – 911 KB
PDF – 312 KB
PDF – 29 KB
PDF – 127 KB
PDF – 392 KB
Område
Legg til steder som er viktige for deg
Visning
Det er ingen planlagte visninger. Meld deg på for å avtale en tid som passer.
Lurer du på noe?
Unngå doble boligrenter
Vi tilbyr gunstig forsikring.
Vurderer du utleie?
Få et tilbud fra Utleie KrogsveenHva koster lånet?
Sjekk estimert lånekostnadVil du varsles om lignende boliger?
Ved å lagre ditt boligsøk hos oss får du beskjed når vi har en bolig som ligner denne, før den legges ut på markedet!

