Morteruds gate 24
2 450 000 kr
59 m²
1 soverom
Solgt
Hamar sentrum
Romslig 2-roms leilighet i Hamar sentrum - 4. etasje med heis - Vestvendt balkong mot rolig bakgård
Prisantydning
2 450 000 krAndel fellesgjeld
536 000 krOmkostninger
11 040 krTotalpris
2 997 040 kr
Pris
Bruksareal
71 m²BRA-I (internt bruksareal)
59 m²BRA-E (eksternt bruksareal)
3 m²
Areal
Etasje
4Byggeår
1963Soverom
1 soveromBad
1 badType
AndelsleilighetEierform
AndelFasiliteter
Heis og Balkong/TerrasseFellesutgifter
7 375 krEnergimerke
Lysegrønn C
Nøkkelinfo
Unngå doble boligrenter
Vi tilbyr gunstig forsikring.
Vurderer du utleie?
Få et tilbud fra Utleie KrogsveenHva koster lånet?
Sjekk estimert lånekostnadBeskrivelse
Kort om eiendommen
Velkommen til Morteruds gate 24!
Pen og romslig 2-roms leilighet i 4. etasje med heis. Smart planløsning og god arealutnyttelse.
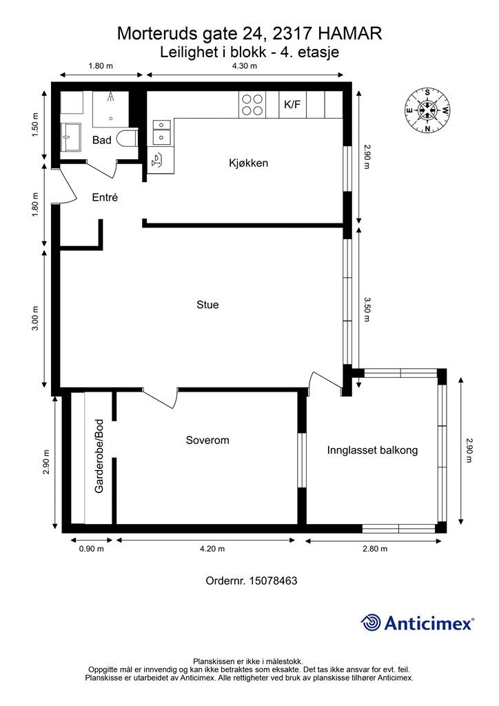
Leiligheten inneholder entré, bad, kjøkken, stue, soverom med eget garderoberom, samt disponering av bod i kjeller.
Badet ble oppgradert i 2024 og har flislagte overflater, gulvvarme, dusjhjørne, vegghengt toalett og opplegg for vaskemaskin.
Kjøkken med HTH-innredning, integrerte og frittstående hvitevarer og gode arbeidsflater.
Romslig stue med godt lysinnslipp og utgang til vestvendt balkong mot rolig bakgård.
Vannbåren varme via radiatorer gir jevn temperatur og forutsigbare bokostnader.
Meget sentral beliggenhet i Hamar sentrum med kort vei til butikker, kulturtilbud, kollektivtransport og Mjøsa.
Velkommen til en hyggelig visning!
Område
Legg til steder som er viktige for deg
På flyttefot? Tenk kjøp og salg samtidig.
Få din egen rådgiver gjennom hele kjøps- og salgsprosessen. Det starter med en verdivurdering.
Unngå doble boligrenter
Vi tilbyr gunstig forsikring.
Vurderer du utleie?
Få et tilbud fra Utleie KrogsveenHva koster lånet?
Sjekk estimert lånekostnadVil du varsles om lignende boliger?
Ved å lagre ditt boligsøk hos oss får du beskjed når vi har en bolig som ligner denne, før den legges ut på markedet!





























