Heggelia 28
7 290 000 kr
224 m²
6 soverom
Solgt

Fetsund / Garderåsen
Familiefavoritt m/ plass til alle! Enebolig med 6 soverom, garasje & flotte uteområder – idyllisk beliggenhet med utsyn.
Prisantydning
7 290 000 krOmkostninger
203 240 krTotalpris
7 493 240 kr
Pris
Bruksareal
224 m²BRA-I (internt bruksareal)
224 m²TBA (terrasse-balkongareal)
132 m²
Areal
Etasje
3Byggeår
1989Soverom
6 soveromBad
2 badTomteareal
936 m² (eiet)Type
Enebolig - FrittliggendeEierform
EietFasiliteter
Garasje/P-plass og Balkong/TerrasseEnergimerke
Oransje D
Nøkkelinfo
Unngå doble boligrenter
Vi tilbyr gunstig forsikring.
Vurderer du utleie?
Få et tilbud fra Utleie KrogsveenHva koster lånet?
Sjekk estimert lånekostnadBeskrivelse
Kort om eiendommen
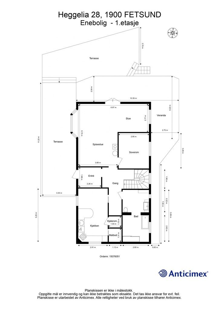
Velkommen til Heggelia 28, en innholdsrik enebolig med stor tomt og familievennlig beliggenhet. Drømmer du om god plass, praktiske løsninger og naturskjønn beliggenhet? Da bør du se nærmere på Heggelia 28, en enebolig på attraktive Garderåsen i Fetsund. Boligen byr på en svært funksjonell planløsning med seks soverom, to bad, eget vaskerom, romslig stue og kjøkken med både kjølerom og matbod, perfekt for storfamilien eller deg som ønsker fleksible romløsninger. Den store tomten gir rikelig med uteplass for både lek, hagebruk og sosiale sammenkomster.
- Garasje med to boder, som gir god lagringsplass.
- Rolig og skjermet, med skogen som nærmeste nabo og med kort vei til barnehager, skoler, bussforbindelser og servicetilbud i Fetsund sentrum.
- Store terrasser med sol og grønt utsyn.
Område
Legg til steder som er viktige for deg
På flyttefot? Tenk kjøp og salg samtidig.
Få din egen rådgiver gjennom hele kjøps- og salgsprosessen. Det starter med en verdivurdering.
Unngå doble boligrenter
Vi tilbyr gunstig forsikring.
Vurderer du utleie?
Få et tilbud fra Utleie KrogsveenHva koster lånet?
Sjekk estimert lånekostnadVil du varsles om lignende boliger?
Ved å lagre ditt boligsøk hos oss får du beskjed når vi har en bolig som ligner denne, før den legges ut på markedet!

