Langestrandveien 13D
2 975 000 kr
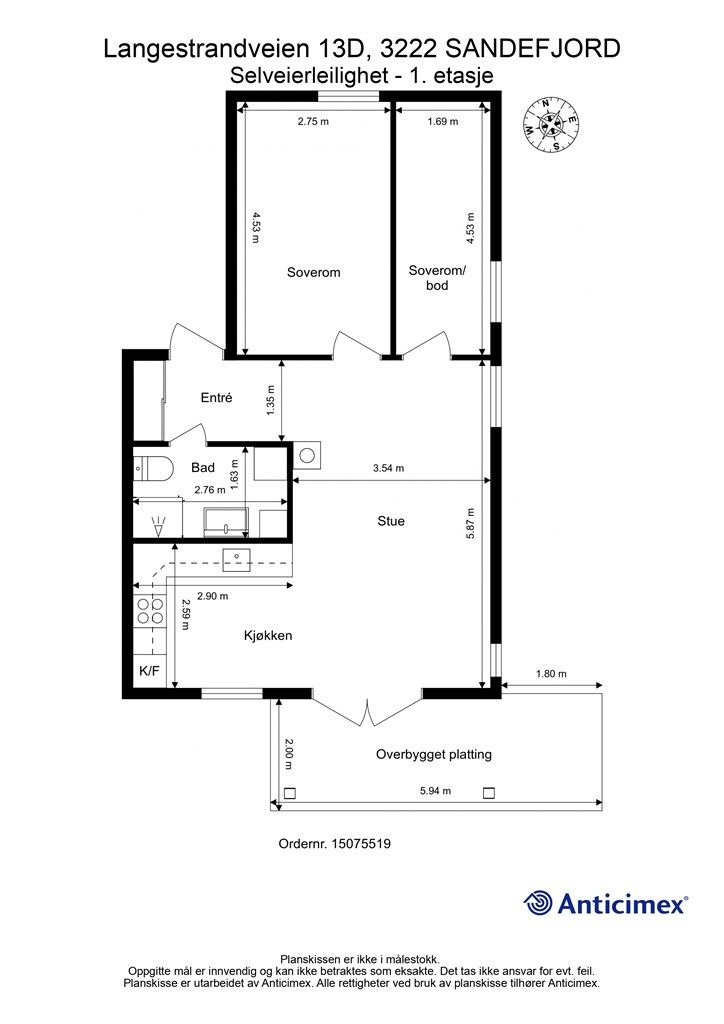
60 m²
2 soverom
Solgt

Langestrand/Vesterøya
Lettstelt og populært beliggende eierleilighet med alt på en flate - Overbygd uteplass med fin sjøutsikt - Carport
Prisantydning
2 975 000 krOmkostninger
85 410 krTotalpris
3 060 410 kr
Pris
Bruksareal
65 m²BRA-I (internt bruksareal)
60 m²BRA-E (eksternt bruksareal)
5 m²
Areal
Etasje
1Byggeår
2005Soverom
2 soveromType
EierleilighetEierform
EierseksjonFasiliteter
Garasje/P-plass og Balkong/TerrasseFellesutgifter
5 039 krEnergimerke
Rød D
Nøkkelinfo
Unngå doble boligrenter
Vi tilbyr gunstig forsikring.
Vurderer du utleie?
Få et tilbud fra Utleie KrogsveenHva koster lånet?
Sjekk estimert lånekostnadBeskrivelse
Kort om eiendommen
Velkommen til Langestrandparken!
Sentralt beliggende eierleilighet like ved Sandefjords havn. Her bor en særdeles koselig til i et trivelig sameiet med hyggelige naboer, samt flotte fellesarealer som benyttes flittig av beboerne.
Leiligheten er praktisk innredet med alt på en flate, og like utenfor stuen er det en usjenert terrasse med plass til flere sittegrupper. Fra terrasse er det fin utsikt ut over området, samt Sandefjord's fjord.
Langestrandveien 13 D er innredet med 2 soverom og har en åpen og romslig stue med plass til både spisestue og tv-stue.
Like ved utgangsdøren starter fine turområder, og det tar kun 5 minutter å spasere til nærmeste strand. Fra leiligheten tar det ca. 25 min. å spasere til sentrum.
Med leiligheten følger parkering i carport, samt utvendig bod.
Område
Legg til steder som er viktige for deg
På flyttefot? Tenk kjøp og salg samtidig.
Få din egen rådgiver gjennom hele kjøps- og salgsprosessen. Det starter med en verdivurdering.
Unngå doble boligrenter
Vi tilbyr gunstig forsikring.
Vurderer du utleie?
Få et tilbud fra Utleie KrogsveenHva koster lånet?
Sjekk estimert lånekostnadVil du varsles om lignende boliger?
Ved å lagre ditt boligsøk hos oss får du beskjed når vi har en bolig som ligner denne, før den legges ut på markedet!

