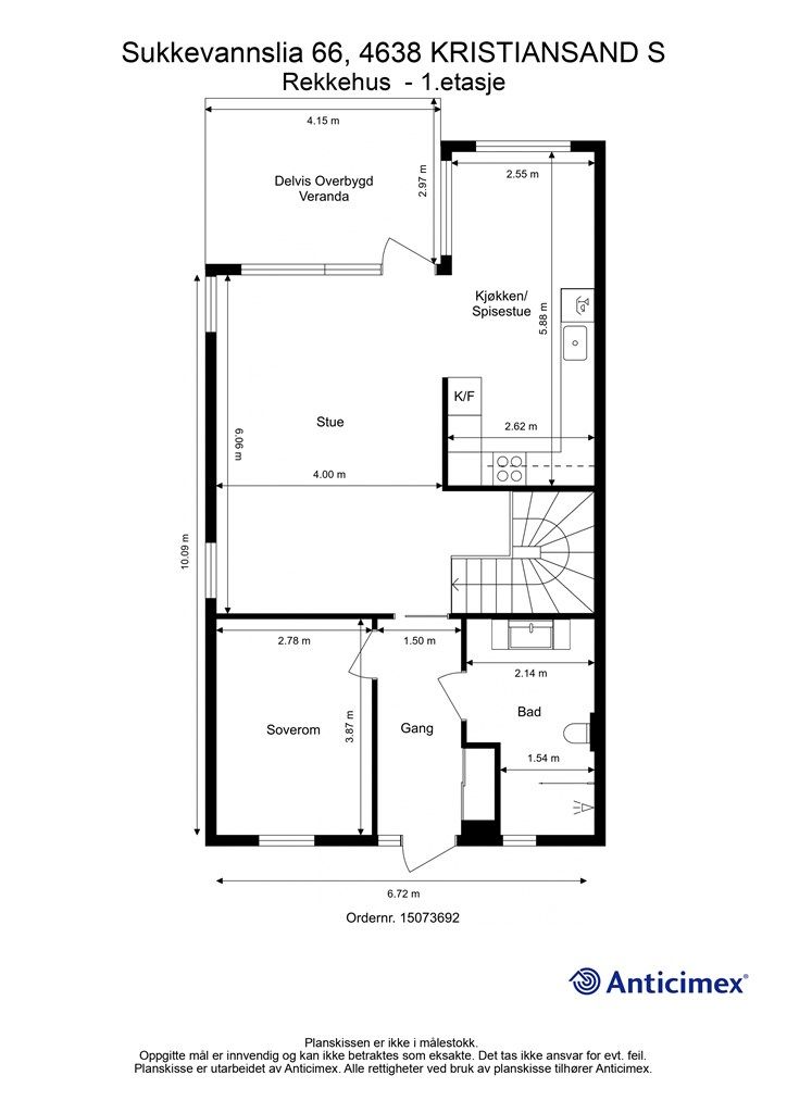
Sukkevannslia 66
5 890 000 kr
146 m²
4 soverom
Solgt

Drangsvann
Delikat enderekkehus fra 2022 - Vestvendt beliggenhet. Fri utsikt og gode solforhold. p-plass med elbillader
Prisantydning
5 890 000 krOmkostninger
168 785 krTotalpris
6 058 785 kr
Pris
Bruksareal
151 m²BRA-I (internt bruksareal)
146 m²BRA-E (eksternt bruksareal)
5 m²TBA (terrasse-balkongareal)
24 m²
Areal
Etasje
2Byggeår
2022Soverom
4 soveromBad
2 badType
RekkehusEierform
EierseksjonFasiliteter
Garasje/P-plass og Balkong/TerrasseÅrlig velavgift
1 000 krFellesutgifter
1 599 krEnergimerke
Rød B
Nøkkelinfo
Unngå doble boligrenter
Vi tilbyr gunstig forsikring.
Vurderer du utleie?
Få et tilbud fra Utleie KrogsveenHva koster lånet?
Sjekk estimert lånekostnadBeskrivelse
Kort om eiendommen
Velkommen til Sukkevannslia 66!
Dette er en nyere og delikat bolig i rekkehus med arealeffektiv og praktisk planløsning med en morderne og stilren utførelse. Her får du hele 4 soverom, to flotte bad, stort vaskerom, stue/spisestue, kjøkken og hyggelig kjellerstue i tillegg til solrik vestvendt balkong og flotte uteområder. Flott opparbeidet tomt med gressplen, belegningsstein, og praktisk utvendig bod. Elbillader installert ved biloppstillingsplass rett utenfor boligen.
Nabolaget er familievennlig med trygge omgivelser, flotte fasiliteter for barn og unge, kort vei til skoler og barnehager og god tilgang på gang-og sykkelsti. I tillegg er det kort vei til Meny på Rona senter med både apotek, frisør og treningssenter. Herfra er det også hyppige bussavganger til Sørlandssenteret
Velkommen
Område
Legg til steder som er viktige for deg
På flyttefot? Tenk kjøp og salg samtidig.
Få din egen rådgiver gjennom hele kjøps- og salgsprosessen. Det starter med en verdivurdering.
Unngå doble boligrenter
Vi tilbyr gunstig forsikring.
Vurderer du utleie?
Få et tilbud fra Utleie KrogsveenHva koster lånet?
Sjekk estimert lånekostnadVil du varsles om lignende boliger?
Ved å lagre ditt boligsøk hos oss får du beskjed når vi har en bolig som ligner denne, før den legges ut på markedet!

