Gartnervegen 27
1 890 000 kr
56 m²
1 soverom
Komplett salgsoppgave
Ottestad
Romslig 2-roms andelsleilighet med overbygd balkong, garasjeplass og gode solforhold. Rolig og etablert boligområde.
Prisantydning
1 890 000 krAndel fellesgjeld
726 421 krOmkostninger
11 040 krTotalpris
2 627 461 kr
Pris
Bruksareal
64 m²BRA-I (internt bruksareal)
56 m²BRA-E (eksternt bruksareal)
8 m²TBA (terrasse-balkongareal)
10 m²
Areal
Etasje
3Byggeår
1991Soverom
1 soveromBad
1 badType
AndelsleilighetEierform
AndelFasiliteter
Balkong/TerrasseFellesutgifter
7 754 krEnergimerke
Nøkkelinfo
Unngå doble boligrenter
Vi tilbyr gunstig forsikring.
Vurderer du utleie?
Få et tilbud fra Utleie KrogsveenHva koster lånet?
Sjekk estimert lånekostnadBeskrivelse
Kort om eiendommen
Gartnervegen 27 er en romslig og flott 2-roms andelsleilighet beliggende i 3. etasje. Leiligheten har en fin rominndeling og inneholder entré med plass til garderobeløsning, stue og kjøkken i åpen løsning og soverom. Fra stue er det utgang til overbygd balkong på 10 kvm med gode solforhold, fint utsyn mot grønne fellesarealer og med adkomst til liten bod. Det er foretatt flere oppgraderinger i borrettslaget som nytt balansert ventilasjonsanlegg, utskifting av alle vinduer og ny isolering. Leiligheten disponerer én garasjeplass samt en bod som er utenfor leiligheten.
Her bor man sentrumsnært i et stille og etablert boligområde med gangavstand til Vikasenteret, nærhet til populære Ottestadstien og kun ca. 2,5 km til Hamar sentrum.
Velkommen til en hyggelig visning!
Innhold og byggemåte
Innhold og byggemåte
Eiendommen
Gartnervegen 27, 2312 OTTESTAD
Kommunenummer 3413, gårdsnummer 210, bruksnummer 4, ideell andel 1/1
Andelsnummer 27232, Midthagan borettslag, organisasjonsnummer 848080322
Innhold
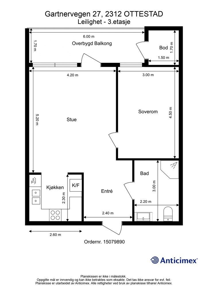
Totalt bruksareal BRA: 64 kvm
BRA-i:
3. etasje 56 kvm: Entré, bad, soverom og stue med åpen kjøkkenløsning.
BRA-e:
3. etasje 8 kvm: Bod på balkong og bod utenfor leilighet.
Åpent areal:
3. etasje 10 kvm: Overbygd balkong.
Det gjøres oppmerksom på at boligens eksterne bod og biloppstillingsplass i garasjerekke tilhører borettslagets fellesareal, og at disse således ikke eies av den enkelte andelseier. Dette medfører at borettslaget i fellesskap beslutter bruken, og at man ikke selv har eierrett og rettsvern for disse. Borettslaget kan ved vedtak beslutte annet bruk av fellesarealet og disponering av arealene kan dermed opphøre.
Vedlagte plantegninger er ikke målbare. De oppgitte arealer er hentet fra rapport med befaringsdato 19.03.2026 utført av Anticimex AS v/Alf Harald Guriby. Arealene er beregnet og rom er definert etter dagens faktiske bruk, uavhengig av hva som er godkjent av bygningsmyndighetene.
Byggemåte
Selger har innhentet en tilstandsrapport av boligen/eiendommen. Av rapporten fremgår det at flere bygningsdeler har fått tilstandsgrad ikke undersøkt/ikke tilgjengelig for undersøkelse (TG IU), 2 (TG2) og/eller 3 (TG3). Rapporten beskriver også avvik på undersøkte bygningsdeler uten tilstandsgrad. Kjøper overtar ansvaret for de opplysninger som fremkommer av salgsdokumentasjonen, og kan ikke gjøre gjeldende som mangel noe som burde vært kjent eller som ikke kan anses å ha betydning for avtalen.
Bygningen er iht. tilstandsrapporten:
Leilighetsbygg oppført i 1991. Grunnmur og bærende konstruksjoner i hovedsak av betong. Bygget er oppført med støpt gulv mot grunn. Yttervegger i en kombinasjon av tre- og betongkonstruksjoner. Utvendige fasader er kledd med fasadeplater og stående trekledning. Etasjeskillere av betong. Saltak i trekonstruksjoner. Yttertak er belagt med takstein. Leiligheten har entredør med brannklasse B30 lydklasse db35. Vinduer med karmer av tre. Balkongdør med karmer av tre. Boligen ventileres hovedsakelig gjennom et mekanisk balansert ventilasjonssystem.
Følgende bygningsdeler har fått TG2 (vesentlig avvik) i tilstandsrapporten:
Våtrom - Bad:
- Vannrør: Vannrør av kobber (og tilhørende komponenter) har en alder som tilsier at fremtidig funksjon er usikker. Konsekvensen er at bygningsdelen erfaringsmessig har risiko for nedsatt funksjon, funksjonssvikt eller andre aldersrelaterte problemer. Bygningsdelen er skjult, så den faktiske tilstanden er ukjent. Foreslått tiltak er videre overvåking, slik at lokale reparasjoner eller utskiftninger kan iverksettes når dette viser seg å være nødvendig.
- Avløp (inkl. sluk): Selv om våtrommet er oppgradert, er sluket ikke skiftet. Konsekvensen er at dette erfaringsmessig medfører risiko for utettheter i overgangen mellom sluk og vanntett sjikt. TG2 er valgt for å belyse risiko, selv om det ikke er registrert synlige skader ved befaring. Foreslått tiltak er videre overvåking, slik at utbedring eller utskiftning kan iverksettes hvis dette blir nødvendig.
Kjøkken:
- Overflate gulv: Synlige deler av gulvets overflatemateriale bærer preg av slitasje og enkelte skader. Skader i gulvet gjør blant annet at fuktighet som for eksempel fra rengjøring kan forårsake misfarging eller lignende konsekvenser. Fornying av overflater, lokale utbedringer eller utskiftning kan iverksettes ved behov.
- Vannrør: Vannrør av kobber (og tilhørende komponenter) har en alder som tilsier at fremtidig funksjon er usikker. Konsekvensen er at bygningsdelen erfaringsmessig har risiko for nedsatt funksjon, funksjonssvikt eller andre aldersrelaterte problemer. Bygningsdelen er skjult, så den faktiske tilstanden er ukjent. Foreslått tiltak er videre overvåking, slik at lokale reparasjoner eller utskiftninger kan iverksettes når dette viser seg å være nødvendig.
Tekniske anlegg:
- Vannrør (utover det som nevnes under andre sjekkpunkter): Boligens vannrør av kobber (og tilhørende komponenter) har en alder som tilsier at fremtidig funksjon er usikker. Konsekvensen er at bygningsdelen erfaringsmessig har risiko for nedsatt funksjon, funksjonssvikt eller andre aldersrelaterte problemer. Bygningsdelen er skjult, så den faktiske tilstanden er ukjent. Foreslått tiltak er videre overvåking, slik at lokale reparasjoner eller utskiftninger kan iverksettes når dette viser seg å være nødvendig.
Andre rom:
- Innerdører: Innerdører bærer preg av alder/slitasje. Forholdet vurderes i hovedsak til å være av estetisk betydning, uten nevneverdige konsekvenser utover dette. Lokal utbedring eller lignende tiltak kan iverksettes ved behov.
Etasjeskiller og gulv på grunn (skjevhetsmåling) - 3.etasje:
- Skjevhetsmåling: I entre/stue er det på tilfeldige punkter målt lokale høydeforskjeller opptil 12 mm. På stue er det på tilfeldige punkter målt lokale høydeforskjeller opptil 18 mm. Stikkprøvene som er utført har avdekket stedvise skjevheter. Eksakt årsak er ikke kjent, men det anses som lite sannsynlig at forholdet skyldes strukturelle skader i etasjeskilleren. Konsekvens vurderes blant annet å være fare for knirk eller lignende problemer med gulvmaterialet, eller behov for kompenserende tiltak ved møblering av rommene. Ved legging av nytt gulv bør det påregnes behov for avretting og andre tiltak som viser seg å være nødvendig når årsaken avklares.
Følgende bygningsdeler har fått TG3 (store eller alvorlige avvik) i tilstandsrapporten:
Våtrom - Bad:
- Vanntett sjikt / membran i gulv og vegger: Det er uklart om det er benyttet vanntett sjikt på våtrommets veggflater. Konsekvensen er at våtrom uten et fullverdig tettesjikt har høy risiko for skjulte fuktskader. Foreslått tiltak er videre undersøkelser for å kartlegge dagens tilstand og avdekke om det er behov for større inngrep og utskiftninger, eller om lokale utbedringer og lignende tiltak er tilstrekkelig samt å fortsette og bruke dusjkabinett. Vanntett sjikt har en alder som erfaringsmessig tilsier at fremtidig funksjon er svært usikker (gjelder for produkter/løsninger etablert før år 2000). Konsekvensen er at bygningsdelen erfaringsmessig har risiko for nedsatt funksjon, utettheter eller andre aldersrelaterte problemer. Fornying av tettesjikt krever i de fleste tilfeller tiltak som komplett utskiftning/renovering av våtrom. Bygningsdelen er skjult, så den faktiske tilstanden/dagens tettefunksjon er ukjent. TG3 er satt i henhold til NS 3600. Foreslått strakstiltak er videre undersøkelser for å kartlegge dagens tilstand og avdekke om det er behov for større inngrep og utskiftninger, eller om lokale utbedringer og lignende tiltak er tilstrekkelig.
Se supplerende tekst i tilstandsrapporten. Kjøper overtar ansvar og risiko for dette.
Tilstandsrapporten er inntatt i salgsoppgaven. Rapporten inneholder informasjon om avvikene og konsekvensen av disse. For avvik som er gitt TG3 har den bygningssakkyndige i tillegg gitt et anslag på hva det vil koste å utbedre disse avvikene. Ettersom kjøper regnes å være kjent med forhold som tydelig fremgår av tilstandsrapporten, oppfordres du til å sette deg grundig inn i rapporten i sin helhet.
Standard
Kjøkken:
Innredning fra byggeår med oppgraderinger utført i 2025, benkeplate med laminert overflate og kjøkkenvask. Gulvflater belagt med parkett, malte veggflater og malte flater i himling. Frittstående komfyr, oppvaskmaskin og kjøleskap med fryser, samt ventilator i overskap. Varmtvannsbereder plassert under kjøkkenbenk.
Det er kun de hvitevarene som er listet opp som følger med. Disse hvitevarene følger med: Vaskemaskin, oppvaskmaskin, kjøleskap og komfyr slik det fremstår på visning.
Bad:
Baderom fra byggeår med enkelte oppgraderinger utført i 2009. Det er flislagt gulv med gulvvarme, tapet på vegger og malte flater i himling. Vegghengt servantinnredning, vegghengt høyskap, dusjkabinett og gulvstående toalett, samt opplegg for vaskemaskin.
Øvrige rom:
Gulvflater belagt med parkett, malte veggflater og malte flater i himling. Det er glatte innerdører.
Løsøre og tilbehør
Vi viser til liste fra Norges Eiendomsmeglerforbund som gjelder fra 01.01.2020 angående løsøre og tilbehør.
Oppvarming
Oppvarming ved elektrisitet via panelovner og gulvvarme på bad.
Dersom beboelsesrom ikke har vegg- eller fastmonterte varmekilder ved visning, følger dette heller ikke med.
Ferdigattest/brukstillatelse
Det foreligger ferdigattest på boligblokk, datert 12.12.1991. Denne kan fås ved henvendelse til megler.
Det foreligger ferdigattest på garasjer, datert 11.12.1991
Det foreligger også ferdigattest på heis, datert 14.02.1992.
Selger opplyser at det ikke er foretatt ombygging eller bruksendring av rom i selgers eiertid.
Kjøper overtar eiendommen slik den fremstår på visning.
Tinglyste heftelser og rettigheter
Utover andel fellesgjeld overdras leiligheten fri for pengeheftelser.
Borettslaget har legalpant for forfalte felleskostnader og andre krav som følger av borettslagsforholdet iht. burettslagsloven § 5-20. Pantet er begrenset oppad til 2G (G = folketrygdens grunnbeløp).
Det er tinglyst følgende servitutter på borettslagets eiendom:
Dagboknr 102404, tinglyst 02.10.1947, type heftelse: Rettigheter iflg. skjøte. Bestemmelse om gjerde og veg.
Dagboknr 100136, tinglyst 17.01.1957, type heftelse: Rettigheter iflg skjøte. Bestemmelse om veg.
Dagboknr 16846, tinglyst 28.12.1992, type heftelse: Erklæring/avtale. Bestemmelse om trafostasjon/kiosk.
Ingen av disse antas å ha betydning for bruk av den aktuelle leiligheten.
Servituttene vil følge eiendommen. Kjøpers bank vil få pant etter ovennevnte heftelser og servitutter.
Eventuell adgang til utleie
Andelseier kan ikke uten samtykke fra styret i borettslaget overlate bruken av boligen til andre. Med samtykke kan andelseier overlate boligen til andre i inntil tre år hvis andelseier har bodd i boligen i minst ett av de to siste år. Utleie i andre tilfeller kan godtas ved særlige grunner, jf. burettslagslova § 5-6. Utleie forutsetter at leiligheten har forsvarlige radonverdier. Se også borettslagets vedtekter og konferer megler ved spørsmål.
Diverse
I følge Elvia ble det elektriske anlegget sist kontrollert i 2025. Foreligger det pålegg om utbedring av feil på det elektriske anlegget: Nei.
Beliggenhet og tomteforhold
Beliggenhet og tomteforhold
Beliggenhet
Attraktiv beliggenhet i hyggelig og veldrevet borettslag nederst i Bekkelaget. Stille og rolig område uten gjennomgangstrafikk. Eiendommen er orientert mot vest og har meget gode solforhold. Fine turområder langs Ottestadstien. Kort avstand til flere barnehager og Vikasenteret med blant annet dagligvarebutikk, post og frisør. Hamar sentrum ligger ca. 2,5 km unna. Kort avstand til bussforbindelser.
Adkomst
Fra Hamar over Stangebrua: Ta til venstre i 2. rundkjøring og følg Kjonrudvegen 400m. Ta til venstre inn på Gartnervegen. Følg veien i ca 300 meter og eiendommen er beliggende på høyre side.
Det vil bli skiltet med Krogsveen visningsskilter ved fellesvisninger.
Beskrivelse av tomt
Eiertomt på 12 314 kvm som tilhører borettslaget. Tomten er opparbeidet med blant annet asfalterte veier, steinheller, diverse støttemurer, sittegrupper, plenarealer og diverse
beplantninger.
Parkering
Boligen disponerer én biloppstillingsplass i felles garasjerekke.
Det gjøres oppmerksom på at dagens parkeringsløsning er etablert på borettslagets fellesareal, og at parkeringsplassene således ikke eies av den enkelte andelseier. Dette medfører at borettslaget i fellesskap beslutter bruken, og at man ikke selv har eierrett og rettsvern for parkeringsplassen. Borettslaget kan ved vedtak beslutte annet bruk av fellesarealet.
Vei, vann og avløp
Eiendommen har adkomst via kommunal vei.
Eiendommen er tilknyttet kommunalt ledningsnett via private stikkledninger. Borettslaget er ansvarlig for private stikkledninger til bygningen.
Regulerings-og arealplaner
Eiendommen er regulert til Boligbebyggelse-blokkbebyggelse i henhold til områderegulering for Åkersvika hageby datert 13.03.2024 med tilhørende reguleringsbestemmelser.
Eiendommen er også underlagt kommuneplanens arealdel 2023-2035 datert 18.10.2023, samt kommunedelplan for Ottestad datert 12.08.2011.
Utsnitt av plan med tilhørende bestemmelser kan fås ved henvendelse til megler.
Økonomi
Økonomi
Boligens kostnader
Felleskostnadene er kr. 7 754 pr. mnd. og inkluderer: Kommunale avgifter, bygningsforsikring, TV/bredbånd, vaktmestertjenester og andre driftskostnader.
Felleskostnadene justeres normalt en til to ganger årlig i forhold til borettslagets faktiske utgifter.
Oversikt over fordelingen av felleskostnadene foreligger ikke fra forretningsfører.
Borettslagets ene lån er foreløpig avdragsfritt. Frem til 01.09.2029 betales det dermed kun renter. Etter utløpet av avdragsfri periode for den ene delen av fellesgjelden, anslås at felleskostnadene vil øke med ca. kr. 2 250 pr. mnd. Dette forutsetter uendret rente, samt at øvrige utgiftsposter forblir på dagens nivå.
Nåværende eier har et strømforbruk som tilsvarer ca. kr. 10 000 pr. år. / 7 725 kwh. pr. år.
Boligen er tilknyttet Telenor som leverandør av kabel-tv og Internett med avgift inkludert i felleskostnader. Tv-tuner/dekoder medfølger.
Utgiftene er basert på nåværende eiers forbruk. Kjøper må selv tegne innboforsikring.
Formuesverdi
Formuesverdi for 2024 var kr. 546 880 ifølge selgers skattemelding/Skatteetaten. Beløpet forutsetter at eier bor fast i boligen (primærbolig).
Ved eventuell øvrig bruk av eiendommen (f.eks. fritidsbolig, pendlerbolig, utleieobjekt) var formuesverdien for 2024 kr. 2 187 519.
Fra 2026 har Stortinget vedtatt en oppdatert modell for beregning av formuesverdi for primærbolig, så avvik kan forekomme.
For mer informasjon se skatteetaten.no.
Opplysninger om fellesgjeld
Andel formue var kr. 18 574 pr. 31.12.2025
Andel fellesgjeld var kr. 726 421 pr. 25.02.2026
Total fellesgjeld for boligselskapet var kr. 41 087 527 pr. 31.12.2025 og lånevilkårene er:
Lån 1: Kr. 3 087 527
Rentebetingelser: 5,17% flytende rente
Lånets innfrielsesdato: 30.10.2029
Avdragsfrihet: Nei.
IN-avtale: Nei.
Lån 2: Kr. 38 000 000
Rentebetingelser: 5,17%
Lånets innfrielsesdato: 30.08.2054
Avdragsfrihet: Til og med 01.09.2029
IN-avtale: Nei.
Felleskostnader etter avdragsfri periode vil med oppgitt rentesats øke med ca. kr. 2 250 pr. mnd. Ta kontakt med forretningsfører for nærmere opplysninger.
Omkostninger
1 890 000,00 Prisantydning
726 421,00 Andel av fellesgjeld
--------------------------------------------------------
2 616 421,00 Pris inkl. fellesgjeld
Omkostninger
9 950,00 Gjensidige Boligkjøperpakke (valgfri)* (valgfritt)
545,00 Tinglysing hjemmel
545,00 Tinglysing panterettsdokument
--------------------------------------------------------
1 090,00 Omkostninger totalt (uten Gjensidige Boligkjøperpakke (valgfri))
11 040,00 Omkostninger totalt (med Gjensidige Boligkjøperpakke (valgfri))
--------------------------------------------------------
2 617 511,00 Totalpris inkl. omkostninger
2 627 461,00 Totalpris inkl. omkostninger (med Gjensidige Boligkjøperpakke (valgfri))
--------------------------------------------------------
Dersom kjøper ikke er medlem av boligbyggelaget, må det påregnes en innmeldingsavgift og årlig medlemsgebyr pr. ny andelseier. Dette faktureres direkte fra boligbyggelaget.
Dersom borettslaget har fellesgjeld, vil leilighetens andel av fellesgjelden komme i tillegg til kjøpesummen. Denne gjelden skal ikke innbetales i oppgjøret, men følger leiligheten.
Det tas forbehold om endringer i avgifter og gebyrer.
Betalingsbetingelser
Kjøpesum inkludert omkostninger, samt pantedokument tilknyttet eventuelt lån, skal være disponibelt hos megler 2 virkedager før overtagelsen.
Annen viktig informasjon
Annen viktig informasjon
Eier
Lill Therese Thorkildsen
Informasjon om borettslaget
Leiligheten er tilknyttet Midthagan borettslag.
Borettslaget består av 49 leiligheter.
Forretningsfører er OBOS.
Dyrehold må søkes til styret.
Foretatt påkostninger de senere år:
2021 - 2022: Tilrettelegging for elbillading i alle garasjeplasser. Bygget om hoved-strømtavle, med egen tavle og uttak av 3 kurser for El-bil-ladning. Lagt tilførselskabler til alle garasjer med tilkoblings boks for lader.
2020 - 2021: Oppussing av innendørs fellesarealer.
2019 - 2020: Utvidelse av felles parkeringsplass
2010: Montert radonavsug
2007: Maling av fasade og vinduer eks. garasje.
2025: Nytt ventilasjonssystem, rehabilitering av fasade, skifte av vinduer og balkonger.
I henhold til borettslagets vedtekter må kjøper godkjennes av styret som ny andelseier. Det er kjøpers ansvar at styregodkjenning blir gitt, men styret kan ikke nekte godkjenning uten saklig grunn. Iht. burettslagslova kan man bare eie en andel i borettslaget. Kun fysiske personer kan være andelseiere.
Øvrige andelseiere i borettslaget og eventuelt medlemmer av boligbyggelaget har forkjøpsrett. I henhold til burettslagslova tar dette 20 dager å avklare fra melding om salget er gitt borettslaget. Dersom boligen tas på forkjøpsrett løses kjøper fra avtalen.
For å dekke eventuell manglende innbetaling av fellesutgifter fra øvrige andelseiere, er borettslaget tilknyttet et sikringsfond gjennom OBOS. Dette innebærer at OBOS innbetaler samtlige felleskostnader til borettslaget hver måned og dermed overtar ansvar og risiko for eventuell inndrivelse av utestående fellesutgifter. Avtalen om sikringsfond gjennom OBOS er gyldig til den sies opp av en av partene. Oppsigelsesfrist er 12 måneder.
Dokumenter for borettslaget kan fås ved henvendelse til megler.
Overtakelse
Etter nærmere avtale. Overtakelse kan tidligst skje etter at forkjøpsretten for øvrige andelseiere i borettslaget og eventuelt medlemmer av boligbyggelaget er avklart, samt at styrets godkjennelse er avklart.
Boligselgerforsikring
Selger har i forbindelse med salget tegnet boligselgerforsikring levert av Gjensidige.
Boligselgerforsikringen dekker selgers ansvar etter avhendingsloven begrenset oppad til kr 14 millioner. Dersom kjøper oppdager forhold ved eiendommen som hen mener utgjør en mangel ved eiendommen, vil Gjensidige behandle reklamasjonen på vegne av selger. Forsikringsvilkår kan fås ved henvendelse til megler.
Vedlagt salgsoppgaven følger selgers egenerklæringsskjema og tilstandsrapport. Interessenter må sette seg inn i dokumentene før bud inngis.
Boligkjøperforsikring
Innen kontraktsmøtet må kjøper ta stilling til om det ønskes å bestille Boligkjøperpakken gjennom Gjensidige. I denne gunstige pakken er boligen ferdig forsikret og inkluderer rettshjelpsforsikring, også kalt Boligkjøperforsikring. Rettshjelpsforsikring gir trygghet og tilgang på profesjonell juridisk hjelp dersom det oppdages uventede feil eller mangler det første året etter overtagelse. Forsikringsselskapet behandler i så fall ethvert mangelskrav kjøper måtte ha overfor selger.
Boligkjøperpakken inkluderer bygningsforsikring for hus og hytte, innboforsikring, flytteforsikring og dobbel rentedekning - i situasjoner hvor kjøper ikke får solgt nåværende primærbolig.
Kjøper mottar ingen særskilt faktura for Boligkjøperpakken da kostnaden det første året legges til kjøpesummen for boligen. Det gjøres oppmerksom på Krogsveen mottar et honorar for denne formidlingen.
Produktark for Boligkjøperpakken ligger vedlagt i salgsoppgaven.
Dersom ikke boligkjøperpakke ønskes kan kun rettshjelpsforsikring, også kalt boligkjøperforsikring, tegnes særskilt via megler. Rettshjelpsforsikringen varer i 5 år fra overtagelse og leveres gjennom Gjensidige. Ta kontakt med megler for ytterligere informasjon.
Selskap og privatpersoner som driver med kjøp/salg/utvikling som ledd i egen næringsvirksomhet kan ikke tegne boligkjøperpakke eller rettshjelpsforsikring.
Budgivning
Forbrukerinformasjon om budgivning er vedlagt denne salgsoppgaven og er også på vår hjemmeside Krogsveen.no. Alle bud og budforhøyelser må inngis skriftlig. I tillegg må legitimasjon være fremlagt sammen med signatur fra budgiver.
Vi oppfordrer til å gi bud elektronisk via GI BUD-knappen på eiendommens hjemmeside på Krogsveen.no. Da vil samtlige vilkår bli oppfylt.
Eventuelle forhøyelser eller endringer av budet kan bekreftes pr SMS eller på e-post. Vi oppfordrer alltid til å kontakte megler pr. telefon i tillegg da forsinkelser i SMS og e-post kan forekomme.
For at budene skal kunne bli behandlet og videreformidlet skriftlig til alle involverte parter, må alle bud ha en tilstrekkelig lang akseptfrist, jf. eiendomsmeglingsforskriften § 6-3.
Selger må også skriftlig akseptere budet før aksept kan formidles til budgiver. Akseptfrist bør derfor være på minimum 30 minutter, og budforhøyelser må derfor skje i god tid før fristens utløp.
Bud i forbrukerforhold kan uansett ikke settes med kortere frist enn kl. 12.00 første virkedag etter siste annonserte visning. I tillegg kan ikke budet ha forbehold om at det skal holdes hemmelig ovenfor øvrige interessenter. Megler har iht lov om eiendomsmegling ikke anledning til å videreformidle disse budene, og de vil dermed heller ikke bli journalført.
Etter at eiendommen er solgt vil kjøper og selger få tilsendt budjournal. Øvrige budgivere kan få utlevert kopi av budjournalen i anonymisert form.
Hvitvaskingsreglene
I henhold til lov om hvitvasking og terrorfinansiering har megler plikt til å gjennomføre kontrolltiltak overfor kunder, herunder fullmektiger. Dette innebærer bl.a. å bekrefte kunders og reelle rettighetshaveres identitet på bakgrunn av fremvist gyldig legitimasjon eller på annen godkjent måte, samt å innhente opplysninger om kundeforholdets formål og tilsiktede art.
Dersom slike kundetiltak ikke kan gjennomføres, kan megler ikke etablere kundeforholdet eller utføre transaksjonen.
Hvis kjøper ikke bidrar til gjennomføring av kundekontrollen og dette fører til at transaksjonen blir forsinket eller ikke kan gjennomføres, vil dette ansees som mislighold av avtalen og gi selger rettigheter etter avhendingslova kapittel 5. I tilfeller der selger ikke bidrar til gjennomføring av løpende kundekontroll underveis i oppdraget, er det selger som misligholder sine forpliktelser etter avtalen og gi kjøper rettigheter etter avhendingslovens kapittel 4. Partene er selv ansvarlige for eventuelle kostnader og ansvar dette kan medføre. Eiendomsmegleren eller eiendomsmeglingsforetaket kan ikke holdes ansvarlig for de konsekvenser dette vil kunne få for partene eller andre som har interesser i eiendomshandelen.
Kjøper oppfordres til å innbetale kjøpesummen som ikke kommer fra låneinstitusjon i én samlet innbetaling fra egen konto i norsk bank. Megler har plikt til å melde fra til Økokrim om eiendomshandler som fremstår som mistenkelige. Melding sendes Økokrim uten at partene varsles.
Personopplysningsloven
I henhold til personopplysningsloven gjør vi oppmerksom på at interessenter kan bli registrert for videre oppfølging.
Lovanvendelse
Generelle bestemmelser
Salgsoppgaven er basert på de opplysningene selger har gitt til megler, den bygningssakyndiges tilstandsrapport, samt opplysninger innhentet fra kommunen, Kartverket og andre tilgjengelige kilder. Det er viktig at kjøper setter seg grundig inn i alle salgsdokumentene, herunder salgsoppgave, tilstandsrapport og selgers egenerklæring. Kjøper anses kjent med forhold som er tydelig beskrevet i salgsdokumentene, og slike forhold kan ikke påberopes som mangler. Dette gjelder uavhengig av om kjøper har lest dokumentene. Alle interessenter oppfordres til å undersøke eiendommen nøye, gjerne sammen med fagkyndig før bud inngis. Kjøper som velger å kjøpe usett kan ikke gjøre gjeldende som mangel noe han burde blitt kjent med ved undersøkelsen.
Dersom det er behov for avklaringer, anbefaler vi at interessenter rådfører seg med eiendomsmegler eller egne rådgivere før det legges inn bud.
En bolig som har blitt brukt i en viss tid, har vanligvis blitt utsatt for slitasje og skader kan ha oppstått. Slik bruksslitasje må kjøper regne med, og det kan avdekkes enkelte forhold etter overtakelse som nødvendiggjør utbedringer. Normal slitasje og skader som nødvendiggjør utbedring, er innenfor hva kjøper må forvente og vil ikke utgjøre en mangel.
Kjøper og selgers rettigheter og plikter reguleres av avtalen mellom partene, samt informasjonen som har vært tilgjengelig for kjøperen i forbindelse med handelen. Avtalen utfylles av avhendingsloven, og det gjelder ulike avtalevilkår avhengig av om kjøper er forbrukerkjøper eller ikke. Dette er nærmere beskrevet nedenfor.
På grunn av ulike avtalevilkår kan selger vurdere bud fra en som ikke er forbruker, ulikt fra en forbrukers bud. Dersom kjøper ikke er forbruker, er selger sitt mulige mangelsansvar begrenset fordi eiendommen selges "som den er". Selger kan ikke ta «som den er»- forbehold overfor en forbrukerkjøper. Selv et lavere bud fra en som ikke er forbruker kan foretrekkes fordi begrensningen i mulig mangelsansvar kan ha egenverdi for selger. Selger står fritt til å forkaste eller akseptere ethvert bud, og er for eksempel ikke forpliktet til å akseptere høyeste bud.
Budgiver skal i budskjema avgi egenerklæring om budgiver er forbruker eller næringsdrivende/ person som hovedsakelig handler som ledd i næringsvirksomhet. Budgivere får informasjon dersom andre bud er inngitt av en som ikke er forbruker.
Forbrukerkjøp - definisjon
Med forbrukerkjøp menes kjøp av eiendom når kjøperen er en fysisk person som ikke hovedsakelig handler som ledd i næringsvirksomhet.
Forbruker – avtalevilkår
Eiendommen har en mangel dersom den ikke er i samsvar med kravene som følger av avtalen, eller det foreligger brudd på bestemmelsene i avhendingsloven §§ 3-2 til 3-8. Hvis eiendommen ikke er i samsvar med det kjøperen må kunne forvente ut ifra alder, type og synlig tilstand, kan det være grunnlag for mangelskrav. Det samme gjelder hvis det er holdt tilbake eller gitt uriktige opplysninger om eiendommen. Dette gjelder likevel bare dersom man kan gå ut ifra at det virket inn på avtalen at opplysningen ikke ble gitt eller at mangelskravet ikke blir rettet i tide på en tydelig måte.
Boligen kan ha en mangel etter avhendingsloven § 3-3 andre ledd, dersom det er avvik mellom opplyst og faktisk innvendig areal, forutsatt at avviket er på 2% eller mer og minimum 1 kvm.
Ved beregning av et eventuelt prisavslag eller erstatning må kjøper selv dekke tap/kostnader opptil et beløp på kr 10 000 (egenandel).
Ikke-forbruker (næringsdrivende) – definisjon
Hvis kjøper er en juridisk person, eller en fysisk person som hovedsakelig handler som ledd i næringsvirksomhet, vil kjøpet ikke anses som et forbrukerkjøp.
Ikke-forbruker – avtalevilkår
Eiendommen har en mangel dersom den ikke er i samsvar med kravene som følger av avtalen.
Eiendommen selges «som den er», og selgers ansvar utover det konkret avtalte er da begrenset etter avhendingsloven § 3-9, første ledd andre setning.
Avhendingsloven § 3-3 andre ledd fravikes, og hvorvidt boligens arealsvikt utgjør en mangel vurderes etter avhendingsloven § 3-8.
Informasjon om kjøpers undersøkelsesplikt, herunder oppfordringen om å undersøke eiendommen nøye, gjelder også for kjøpere som ikke anses som forbrukere.
Det forutsettes at hjemmel overføres til kjøper. Hvis kjøper ikke ønsker hjemmelsoverføring av eiendommen, må det tas forbehold om dette i budet.
Meglers vederlag
Meglers vederlag betales av selger og er avtalt til:
Vederlag: 2,10 % av salgssummen.
Vederlag:
Kontroll av hjemmel og heftelser kr 3 900,00
Markedsføringspakke kr 29 900,00
Oppgjør kr 8 900,00
Tilrettelegging kr 19 900,00
Visninger kr 4 500,00
Utlegg:
Eierskiftegebyr forretningsfører - OBOS kr 6 725,00
Innhenting av informasjon forretningsfører OBOS kr 4 375,00
Innhenting av offentlig opplysninger - ligningsverdi kr 117,00
Innhenting av offentlig opplysninger, ferdigattest kr 515,00
Tinglysing sikring kr 545,00
Andre utgifter:
AX tilstandsrapport leilighet kr 10 750,00
Boligselgerforsikring Gjensidige Andel/Aksje regnes av prisant. kr 5 918,00
Foto - 20 bilder - 1 mast kr 4 209,00
Interiørveiledning kr 1 700,00
Vi er opptatt av verdiskapning, og har knyttet til oss samarbeidspartnere som skal sikre våre kunder de beste produkter og tjenester;
• I forbindelse med forberedelse av salget, innhenter vi informasjon om eiendommen hovedsakelig fra vår samarbeidspartner Amibita.
• Gjensidige leverer boligselgerforsikring og tilbyr bygningsforsikring
• Boligkjøperforsikring leveres av Hiscox og med Sedgwick som skadebehandler, og er formidlet gjennom Gjensidige.
• BN bank tilbyr finansieringsløsninger
• Vår avdeling Krogsveen Pluss tilbyr flyttetjenester som utvask, visningsvask, lager, tømming og transport av flyttelass, i tillegg til å formidle kontakt med Flip for overflateoppussing.
• I forbindelse med overtagelse av eiendommen tilbyr Overo avtale om strøm, alarm og bredbånd.
• Krogsveen er, sammen med øvrige bransjeaktører, medeier i Bomega AS som tilbyr den digitale annonseringsplattformen Hjem.
Opplysninger om oppdraget
Oppdragsnummer 65-0065/26
Eiendomsmegler Krogsveen AS, avd. Hamar
Strandgata 31, 2308, HAMAR
950 007 613
Oppdragets KR-kode KR65.2665
Dato
Sist oppdatert: 22. mai 2026 kl. 13:45
Dokumenter
Dokumenter
PDF – 925 KB
PDF – 172 KB
PDF – 165 KB
PDF – 312 KB
PDF – 29 KB
PDF – 127 KB
PDF – 392 KB
Område
Legg til steder som er viktige for deg
Visning
For å delta på visning, ber vi om at du melder deg på. Da sikrer vi at du får nødvendig informasjon og at det er satt av tilstrekkelig med tid. Kontakt megler dersom annet tidspunkt ønskes. Husk å lese salgsoppgaven før visningen, så du stiller forberedt. Dersom det ikke er påmeldte innen klokka 12.00 på visningsdagen, vil ikke annonsert visning bli avholdt. Ønsker du kun å bli holdt orientert, kan du fra eiendommens hjemmeside få varsel om solgtpris, eller kontakte megler.
Lurer du på noe?
Unngå doble boligrenter
Vi tilbyr gunstig forsikring.
Vurderer du utleie?
Få et tilbud fra Utleie KrogsveenHva koster lånet?
Sjekk estimert lånekostnadVil du varsles om lignende boliger?
Ved å lagre ditt boligsøk hos oss får du beskjed når vi har en bolig som ligner denne, før den legges ut på markedet!




