Marviksveien 40
3 390 000 kr
56 m²
1 soverom
Solgt

Lund
Innbydende 2-roms toppleilighet - Garasjeplass + utvendig p-plass m/el-bil lader - Solrik balkong - Varmepumpe - Må sees
Prisantydning
3 390 000 krAndel fellesgjeld
100 000 krOmkostninger
98 290 krTotalpris
3 588 290 kr
Pris
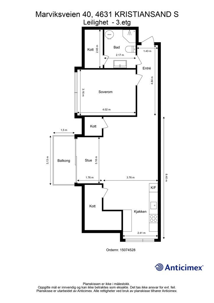
Bruksareal
65 m²BRA-I (internt bruksareal)
56 m²BRA-E (eksternt bruksareal)
9 m²TBA (terrasse-balkongareal)
5 m²
Areal
Etasje
3Byggeår
2002Soverom
1 soveromBad
1 badType
EierleilighetEierform
EierseksjonFasiliteter
Garasje/P-plass og Balkong/TerrasseFellesutgifter
4 534 krEnergimerke
Oransje D
Nøkkelinfo
Unngå doble boligrenter
Vi tilbyr gunstig forsikring.
Vurderer du utleie?
Få et tilbud fra Utleie KrogsveenHva koster lånet?
Sjekk estimert lånekostnadBeskrivelse
Kort om eiendommen
Velkommen til Marviksveien 40 - din neste bolig!
Dette er en lys og innbydende toppleilighet med sentral beliggenhet på Lund. Leiligheten kan by på bl.a. romslig kjøkken/stue, stort soverom, bad m/opplegg til vaskemaskin og tørketrommel, tre kott innvendig, én bod i kjeller samt to parkeringsplasser, hvor av den ene er i garasje og den andre rett utenfor inngangspartiet. Det er også el-bil lader. Leiligheten har god takhøyde, og godt med vinduer som gir rikelig med naturlig lys. I tillegg får du en luftig balkong med sol fra ca. 1400 til solnedgang
Beliggenheten er upåklagelig, og fra leiligheten er du i gangavstand til både byen, universitetet og sjøen. En kort spasertur unna finner du flere dagligvarebutikker, tur- og treningsmuligheter samt Bertes bukta med mulighet for bad.
Område
Legg til steder som er viktige for deg
På flyttefot? Tenk kjøp og salg samtidig.
Få din egen rådgiver gjennom hele kjøps- og salgsprosessen. Det starter med en verdivurdering.
Unngå doble boligrenter
Vi tilbyr gunstig forsikring.
Vurderer du utleie?
Få et tilbud fra Utleie KrogsveenHva koster lånet?
Sjekk estimert lånekostnadVil du varsles om lignende boliger?
Ved å lagre ditt boligsøk hos oss får du beskjed når vi har en bolig som ligner denne, før den legges ut på markedet!

