Vassteigen 71
6 690 000 kr
176 m²
3 soverom
Komplett salgsoppgave
Arkitekttegnet enderekkehus i barnevennlige Vassteigen med fantastisk utsikt! Stor terrasse, carport & romslige soverom
Prisantydning
6 690 000 krOmkostninger
188 240 krTotalpris
6 878 240 kr
Pris
Bruksareal
181 m²BRA-I (internt bruksareal)
176 m²BRA-E (eksternt bruksareal)
5 m²TBA (terrasse-balkongareal)
51 m²
Areal
Etasje
2Byggeår
1974Soverom
3 soveromBad
1 badTomteareal
456 m² (eiet)Type
RekkehusEierform
Eiet
Nøkkelinfo
Unngå doble boligrenter
Vi tilbyr gunstig forsikring.
Vurderer du utleie?
Få et tilbud fra Utleie KrogsveenHva koster lånet?
Sjekk estimert lånekostnadBeskrivelse
Kort om eiendommen
Innhold og byggemåte
Innhold og byggemåte
Eiendommen
Vassteigen 71, 5141 FYLLINGSDALEN
Kommunenummer 4601, gårdsnummer 28, bruksnummer 186, ideell andel 1/1
Kommunenummer 4601, gårdsnummer 28, bruksnummer 109, ideell andel 1/60
Innhold
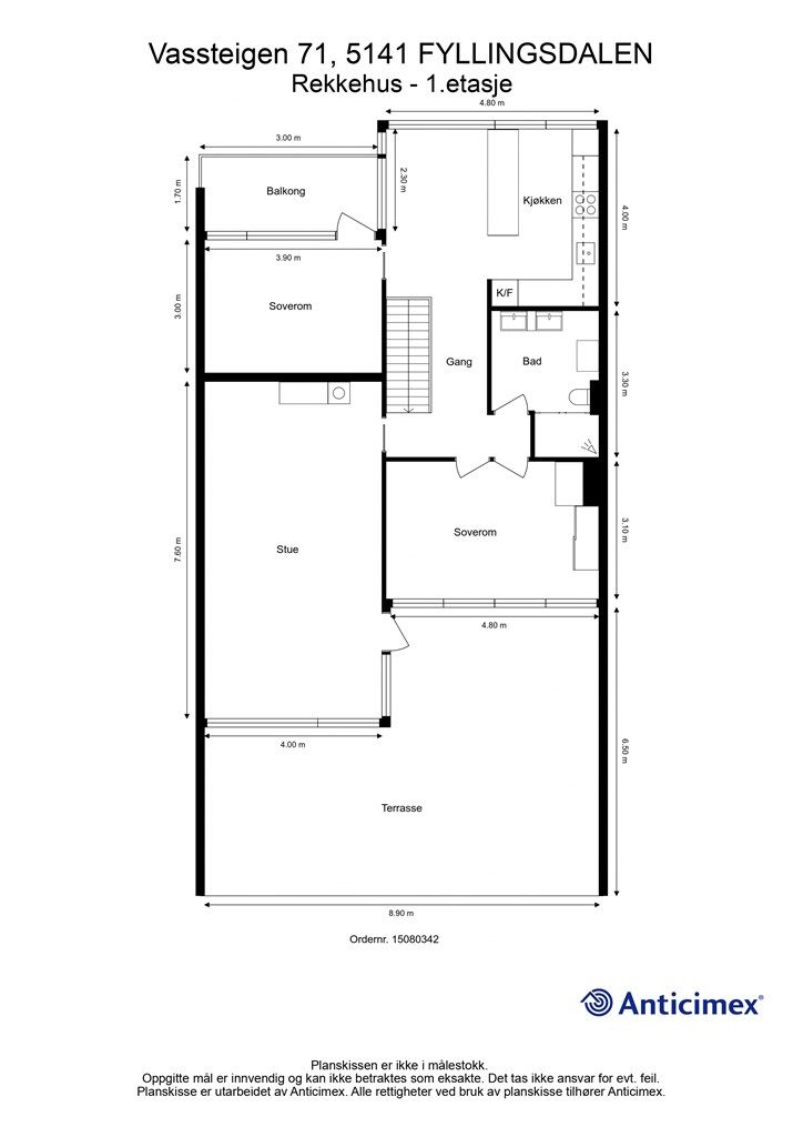
Totalt bruksareal BRA: 181 kvm
BRA-i:
Rekkehus:
1. etasje 79 kvm: Soverom, gang, entrè, WC, vaskerom, garasje og 4 boder
2. etasje 97 kvm: Stue, kjøkken, gang, 2 soverom og bad
BRA-e:
Rekkehus:
1. etasje 5 kvm: Utvendig bod
Åpent areal:
Rekkehus:
2. etasje 51 kvm: Terrasse og balkong
Vedlagte plantegninger er ikke målbare. De oppgitte arealer er hentet fra rapport med befaringsdato 16.03.2026 utført av Anticimex AS Bergen. Arealene er beregnet og rom er definert etter dagens faktiske bruk, uavhengig av hva som er godkjent av bygningsmyndighetene.
Byggemåte
Selger har innhentet en tilstandsrapport av boligen. Av rapporten fremgår det at flere bygningsdeler har fått tilstandsgrad ikke undersøkt/ikke tilgjengelig for undersøkelse (TG IU) og 2 (TG2)). Rapporten beskriver også avvik på undersøkte bygningsdeler uten tilstandsgrad. Kjøper overtar ansvaret for de opplysninger som fremkommer av salgsdokumentasjonen, og kan ikke gjøre gjeldende som mangel noe som burde vært kjent eller som ikke kan anses å ha betydning for avtalen.
Bygningen er iht. tilstandsrapporten oppført i 1974. Grunnmur og bærende konstruksjoner i hovedsak av betong. Bygget er oppført med støpt gulv mot grunn. Bygget er oppført med
støpt gulv mot grunn samt krypkjeller under deler av boligen. Yttervegger av trekonstruksjoner. Yttervegger i hovedsak av tegl-/murverk. Utvendige fasader
er kledd med liggende trekledning. Utvendige fasader av synlig murverk. Etasjeskillere av trekonstruksjoner. Flatt tak. Yttertak er belagt med asfaltpapp.
Vinduer med karmer av tre. Balkongdør med karmer av tre. Les for øvrig mer om byggemåte og den tekniske tilstanden i rapporten.
Det gjøres spesielt oppmerksom på følgende punkter som har fått TG2:
Våtrom - vaskerom:
-Helhetsvurdering: Lokalfall i sluksonen er mindre enn anbefalt. Vanntett sjikt har en alder som tilsier at fremtidig funksjon er usikker. Vannrør har en alder som tilsier at fremtidig funksjon er usikker. Rommet har kun naturlig ventilasjon. Ikke mulig å gjennomføre hulltaking da vegger er mur/betong.
Kjøkken:
-Overflate gulv: Synlige deler av gulvets overflatemateriale har stedvise åpninger/gliper i skjøter og overganger. Det er registrert knirk i deler av gulvet.
Toalettrom:
-Helhetsvurdering: Veggflater bærer preg av aldersrelatert slitasje. Vannrør har en alder som tilsier at fremtidig funksjon er usikker. Avløpsrør har en alder som tilsier at fremtidig funksjon er usikker. Ventilasjonen vurderes som utilstrekkelig.
Teknisk anlegg:
-Vannrør: Vannrør har en alder som tilsier at fremtidig funksjon er usikker.
-Avløpsrør: Avløpsrør har en alder som tilsier at fremtidig funksjon er usikker.
Andre rom:
-Overflate gulv: Synlige deler av gulvets overflatemateriale har stedvise åpninger/gliper i skjøter og overganger. Det er registrert knirk i deler av gulvet.
Rom under terreng:
-Helhetsvurdering: Himlingsplater fra byggeår er erfaringsmessig av asbestholdig materiale. Deler av gulvets overflatemateriale bærer stedvis preg av slitasje.
Ildsteder og skorsteiner inne i boligen:
-Skorsteiner inne i boligen: Skorsteinen har ikke fire frie sider.
Krypkjeller (innvendig inspeksjon):
-Helhetsvurdering: Det observeres tegn på tilsig av fukt på grunnen. Det ble registrert forhøyet fuktnivå. Det observeres plater som vurderes å være asbestholdige.
Yttervegger inkl. fasader:
-Fasader og konstruksjoner av mur, betong og lignende: Det registreres enkelte moderate tegn til riss i overflaten.
-Gnagersikring: Det er ikke montert tilstrekkelig gnagersikring bak ytterkledningen.
Vinduer og ytterdører:
-Vinduer og omramming: Enkelte vinduer viser tegn til slitasje, elde, stedvise råteskader og andre aldersrelaterte skader.
-Ytterdører og omramming: Døren viser tegn til utvendig slitasje. Det er derimot ikke registrert synlige skader av vesentlig
betydning.
Yttertak:
-Overløp på flate tak: Det er ikke registrert at det flate taket har overløp.
-Sluk, innvendige nedløp og fallforhold på flate tak: Fallet mot sluket på taket vurderes som utilstrekkelig. Det er registrert spor etter vesentlige
vannansamlinger.
Terrasse/platting:
-Tilstand på rekkverk og overflatematerialer: Terrassebordene viser tegn til slitasje.
Drenering:
-Helhetsvurdering: Drenering har en alder som tilsier at fremtidig funksjon er usikker.
Stikkledninger og tanker:
-Utvendig vannledninger: Utvendige vannledninger har en alder som tilsier at fremtidig funksjon er usikker.
-Utvendige avløpsledninger: Utvendige avløpsrør har en alder som tilsier at fremtidig funksjon er usikker.
Det gjøres spesielt oppmerksom på følgende punkter som har fått TGIU:
Yttervegger inkl. fasader:
-Lufting av ytterkledning: Det er ikke mulig å kontrollere om ytterkledningen har tilstrekkelig lufte- og drensspalte, ettersom det
aktuelle inspeksjonsområdet er skjult av andre bygningsdeler.
Terrasse/platting:
-Konstruksjon og fundamenter: Fundamentene var ikke tilgjengelig for undersøkelser.
Se supplerende tekst i tilstandsrapporten. Kjøper overtar ansvar og risiko for dette.
Selger opplyser at det ved kraftig regn kommer sporadisk dropping fra glassoverbygg ned på terrasse foran terrassedør.
Moderniseringer og påkostninger
Vinduer i front - 2007
Bad - 2008
Kjøkken og vaskerom - 2014
Varmepumpe - 2015
Peisinnsats - 2016
Utvendig bod - 2017
Vinduer soverom mot terrasse - 2020
Oppgradert avløpsrør i regi av realsameiet - ca 2020
BKK kontroll - 2023
Tak og pipebeslag - 2024
Screens utenfor vinduer i front - 2025
Løsøre og tilbehør
Vi viser til liste fra Norges Eiendomsmeglerforbund som gjelder fra 01.01.2020 angående løsøre og tilbehør.
Løsøre som medfølger handelen:
- Integrerte hvitevarer på kjøkkenet
Løsøre som ikke medfølger handelen:
-Lampe over spisestuebord følger ikke med
Oppvarming
Oppvarming av boligen skjer i hovedsak ved bruk av ildsted plassert i stue, gulvvarme/varmekabler i enkelte rom, og varmepumpe plassert i gang, montert i 2015.
Dersom beboelsesrom ikke har vegg- eller fastmonterte varmekilder ved visning, følger dette heller ikke med.
Ferdigattest/brukstillatelse
Det foreligger ikke ferdigattest på eiendommen, men midlertidig brukstillatelse ble gitt 09.11.1972.
Avvik fra originale byggetegninger:
Lettvegg mellom to av soverommene i andre etasje er fjernet. Dette er ikke søknadspliktig.
Soverom i 1. etasje er opprinnelig byggemeldt som hall/trapp.
Følgende er bygget på boligen:
Det er oppført et tilbygg på sør-østlige del av bolig i 2017. Tilbygget er søkt om og gitt tillatelse til, men krever ikke ferdigattest pga. størrelse.
Det er oppført glasstak over terrassen.
Kjøper overtar alt ansvar, kostnad og risiko for dette videre.
Det gjøres oppmerksom på at det ikke lenger utstedes ferdigattest på tiltak det er søkt om før 1998 jf. plan- og bygningsloven § 21-10. Kommunen vil ikke kreve ferdigattest for disse tiltakene og vil avvise eventuelle søknader. Bestemmelsen innebærer ikke at tiltak med manglende søknad blir lovlige, men at man ikke trenger å avslutte gamle byggesaker. Normalt sett kreves ferdigattest for alle søknadspliktige tiltak som gjøres etter plan- og bygningsloven.
Tinglyste heftelser og rettigheter
Eiendommen overdras fri for pengeheftelser.
På eiendommen er det tinglyst følgende heftelser og rettigheter som følger eiendommens matrikkel ved overskjøting til ny hjemmelshaver:
18.10.1971 - Dokumentnr 6616.
Sameieavtale.
Urådighet. Andel av felleseiendom kan ikke pantsettes.
Gjelder denne registerenheten med flere.
Kjøpers bank fil få pant etter ovennevnte heftelser og servitutter.
Eventuell adgang til utleie
Eiendommen har ikke separat utleieenhet. Det vil normalt være anledning til utleie av hele eiendommen eller enkeltrom, såfremt utleiearealet er bygningsmessig godkjent for varig opphold og har forsvarlige radonnivåer.
Beliggenhet og tomteforhold
Beliggenhet og tomteforhold
Beliggenhet
Velkommen til Vassteigen 71, i det som ofte omtales som Rekstenboligene. Her bor du i et attraktivt og veletablert boligområde, med en rolig og familievennlig atomsfære. Området byr på flotte omgivelser med nærhet til både Knappenfjellet og Sælevatnet, og gir gode muligheter for lek, naturopplevelser og rekreasjon rett utenfor døren. Her har man en fin kombinasjon av skjermede omgivelser og samtidig kort vei til det meste man trenger i hverdagen,
Området er godt tilrettelagt for barnefamilier, med flere skoler og barnehager i nærheten. Nabolaget oppleves trygt og oversiktlig, med gode oppvekstsvilkår og tilgang til både lekeplasser og idrettstilbud. Det er også en stor ballbane i nabolaget.
Ikke langt fra boligen finner man alt man trenger av hverdagens nødvendigheter, med dagligvare og et godt utvalg av andre servicetilbud. Av dagligvaretilbud i nærheten kan det nevnes Rema 1000 Kjerreidviken, Knudsenkvartalet og Myrholtet, Kiwi Spelhaugen, Oasen og Spektrum og Bunnpris Smiberget som også har søndagsåpent. For et større utvalg har Oasen i Fyllingsdalen over 70 butikker, serveringssteder og servicetilbud.
Med bil er det kort reisevei til flere nærliggende bydeler med ca 10. minutter kjøring til Flesland, Kokstad, Sandsli og Bergen Sentrum. Fra Sandeide bussterminal 5 minutters gange fra boligen går det hyppige avganger til både Bergen vest, Bergen Sør og Flesland, Fyllingsdalen og inn til Bergen sentrum.
For den turglade tar det ca. 4 minutter å gå opp til Knappentjernet for å ta seg et bad på en idyllisk badeplass. I området rundt vannet er det tilrettelagt flotte, grusede turveier som er perfekt for deg som vil ha med barnevogn eller bare er ute etter lettere turer i hverdagen. For en lengre tur i kupert terreng kan toppen av Knappenfjellet friste med fantastisk utsikt mot Bjorøy og innseilingen til Bergen. På veien møter du ruiner og bunkers av festningsanlegget som tyskerne bygde under 2. verdenskrig. For andre flotte turopplevelser anbefales det å sjekke ut Kanadaskogen med tilkomst fra Spelhaugen.
Adkomst
Fra Bergen sentrum kjører man til Fyllingsdalen over Puddefjordsbroen og holder til høre inn i Løvstakktunelen. Følg Fyllingsdalsveien videre forbi Oasen og Varden mot Knappetunnelen. Ta til høyre i rundkjøringen like etter Sandeide terminal og følg Bjørgeveien et kort stykke før en svinger til venstre opp Vassteigen.
Det vil bli skiltet med Krogsveen visningsskilt ved fellesvisninger.
Barnehager, skoler og fritid
Barnehager:
-Varden barnehage (1-5 år)
-Bjørgedalen barnehage (1-5 år)
-Brinken barnehage (0-5 år)
Skoler:
-Varden skole (1-7. klasse)
-Sandgotna skole (8-10. klasse)
-Laksevåg videregående skole
-Olsvikåsen videregående skole
Idrettsanlegg:
-Varden idrettspark
-Fyllingen idrettshall og Fyllingsdalen stadion
Informasjon om tilhørende skolekretser er hentet fra Prognosesenteret som dataleverandør, og tilhørigheten kan årlig endres av kommunen. Dersom skole- og barnehagetilbud er av betydning for kjøpet, ber vi om at det rettes en særskilt henvendelse til kommunen/bydelsadministrasjonen for oppdatert informasjon.
Beskrivelse av tomt
Eiertomt på 456 kvm. Tomten er opparbeidet med blant annet asfalterte veier, bil oppstillingsplass, plenarealer og andre forskjellige beplantninger.
Parkering
Parkering i egen carport, samt biloppstillingsplass utenfor boligen.
Ellers gateparkering etter områdets bestemmelser.
Vei, vann og avløp
Eiendommen har adkomst via privat vei med felles vedlikeholdsansvar.
Eiendommen er tilknyttet kommunalt ledningsnett via private stikkledninger. Eier er selv ansvarlig for private stikkledninger til boligen. Fra boligen til kommunalt påkobling er det solidarisk vedlikeholdsplikt for realsameie/velforening hvor boligen har en eierbrøk på 1/60.
Regulerings-og arealplaner
Eiendommen er regulert til småhus og rekkehus i henhold til reguleringsplan FYLLINGSDALEN. GNR 29 BNR 39, BJØRGE OG VASSTEIGEN datert 20.02.1964.
Reguleringsplaner under grunn:
PlanID: 16280000
Plannavn: YTREBYGDA/FYLLINGSDALEN/LAKSEVÅG. RINGVEG VEST
Ikrafttrådt: 23.02.2004
Formål: Annet trafikkområde (60,6%) og kjørevei (39,4%)
Hensynsone gul støy:
Dekningsgrad: 100%
Utsnitt av plan med tilhørende bestemmelser kan fås ved henvendelse til megler.
Økonomi
Økonomi
Kommunale utgifter
Kommunale avgifter er kr 21 289,- for inneværende år. I dette inngår gebyr for vann, avløp, eiendomsskatt og renovasjon. Det tas forbehold om at kommunen kan justere gebyrene i løpet av året.
Nåværende eier har et strømforbruk som tilsvarer ca. kr 35 000,- pr. år. / 24 500 kwh. pr. år.
I selgers husstand har det bodd 2 mennesker.
Boligen har en årlig forsikringspremie på kr 12 792,-.
Sameieavgiften er kr 7 000 pr. år og faktureres to ganger i året. Sameieavgiften dekker brøyting, klipping av plen og drift av felles bygg (tidligere barnehage).
Boligen er tilknyttet Altiboks som leverandør av TV og internett og har avgift på kr 519,- pr. mnd. Tv-tuner/dekoder medfølger. Boligen har avtalen via sameiet.
Det er obligatorisk med 6 timer dugnad hvert år. Det fordeles med 2 timer vårdugnad, 2 timer høstdugnad og 2 timer egendugnad iløpet av året. Timer som ikke blir registrert medfører avgift på kr 200,-. pr time.
Utgiftene er basert på nåværende eiers forbruk og avtaler.
Formuesverdi
Formuesverdi for 2024 var kr 1 216 551,- ifølge Skatteetaten. Beløpet forutsetter at eier bor fast i boligen (primærbolig).
Ved eventuell øvrig bruk av eiendommen (f.eks. fritidsbolig, pendlerbolig, utleieobjekt) var formuesverdien for 2024 kr 4 866 205,-.
Fra 2026 har Stortinget vedtatt en oppdatert modell for beregning av formuesverdi for primærbolig, så avvik kan forekomme.
For mer informasjon se skatteetaten.no
Eiendomsskatt
Eiendomsskatten er inkludert i kommunale avgifter.
Omkostninger
6 690 000,00 Prisantydning
Omkostninger
167 250,00 Dokumentavgift til staten (2,5% av kjøpesum)
19 900,00 Gjensidige Boligkjøperpakke* (valgfritt)
545,00 Tinglysing panterettsdokument
545,00 Tinglysing skjøte
--------------------------------------------------------
168 340,00 (Omkostninger totalt (uten Gjensidige Boligkjøperpakke))
188 240,00 Omkostninger totalt (med Gjensidige Boligkjøperpakke))
--------------------------------------------------------
6 858 340,00 Totalpris inkl. omkostninger
6 878 240,00 Totalpris inkl. omkostninger (med Gjensidige Boligkjøperpakke)
--------------------------------------------------------
Totalpris inkl. omkostninger forutsetter kjøp til prisantydning.
Det tas forbehold om endringer i avgifter og gebyrer.
Tilbud om lånefinansiering
Megler formidler gjerne kontakt med rådgiver hos vår samarbeidspartner BN Bank. De har konkurransedyktige betingelser samt rask og løsningsorientert behandling av din lånesøknad. Krogsveen mottar et honorar dersom lån opprettes.
Annen viktig informasjon
Annen viktig informasjon
Eier
Jan Sigve Randa og Inger Synnøve Holter
Overtakelse
Etter nærmere avtale.
Boligselgerforsikring
Selger har i forbindelse med salget tegnet boligselgerforsikring levert av Gjensidige.
Boligselgerforsikringen dekker selgers ansvar etter avhendingsloven begrenset oppad til kr 14 millioner. Dersom kjøper oppdager forhold ved eiendommen som hen mener utgjør en mangel ved eiendommen, vil Gjensidige behandle reklamasjonen på vegne av selger. Forsikringsvilkår kan fås ved henvendelse til megler.
Vedlagt salgsoppgaven følger selgers egenerklæringsskjema og tilstandsrapport. Interessenter må sette seg inn i dokumentene før bud inngis.
Boligkjøperforsikring
Innen kontraktsmøtet må kjøper ta stilling til om det ønskes å bestille Boligkjøperpakken gjennom Gjensidige. I denne gunstige pakken er boligen ferdig forsikret og inkluderer rettshjelpsforsikring, også kalt Boligkjøperforsikring. Rettshjelpsforsikring gir trygghet og tilgang på profesjonell juridisk hjelp dersom det oppdages uventede feil eller mangler det første året etter overtagelse. Forsikringsselskapet behandler i så fall ethvert mangelskrav kjøper måtte ha overfor selger.
Boligkjøperpakken inkluderer bygningsforsikring for hus og hytte, innboforsikring, flytteforsikring og dobbel rentedekning - i situasjoner hvor kjøper ikke får solgt nåværende primærbolig.
Kjøper mottar ingen særskilt faktura for Boligkjøperpakken da kostnaden det første året legges til kjøpesummen for boligen. Det gjøres oppmerksom på Krogsveen mottar et honorar for denne formidlingen.
Produktark for Boligkjøperpakken ligger vedlagt i salgsoppgaven.
Dersom ikke boligkjøperpakke ønskes kan kun rettshjelpsforsikring, også kalt boligkjøperforsikring, tegnes særskilt via megler. Rettshjelpsforsikringen varer i 5 år fra overtagelse og leveres gjennom Gjensidige. Ta kontakt med megler for ytterligere informasjon.
Selskap og privatpersoner som driver med kjøp/salg/utvikling som ledd i egen næringsvirksomhet kan ikke tegne boligkjøperpakke eller rettshjelpsforsikring.
Budgivning
Forbrukerinformasjon om budgivning er vedlagt denne salgsoppgaven og er også på vår hjemmeside Krogsveen.no. Alle bud og budforhøyelser må inngis skriftlig. I tillegg må legitimasjon være fremlagt sammen med signatur fra budgiver.
Vi oppfordrer til å gi bud elektronisk via GI BUD-knappen på eiendommens hjemmeside på Krogsveen.no. Da vil samtlige vilkår bli oppfylt.
Eventuelle forhøyelser eller endringer av budet kan bekreftes pr SMS eller på e-post. Vi oppfordrer alltid til å kontakte megler pr. telefon i tillegg da forsinkelser i SMS og e-post kan forekomme.
For at budene skal kunne bli behandlet og videreformidlet skriftlig til alle involverte parter, må alle bud ha en tilstrekkelig lang akseptfrist, jf. eiendomsmeglingsforskriften § 6-3.
Selger må også skriftlig akseptere budet før aksept kan formidles til budgiver. Akseptfrist bør derfor være på minimum 30 minutter, og budforhøyelser må derfor skje i god tid før fristens utløp.
Bud i forbrukerforhold kan uansett ikke settes med kortere frist enn kl. 12.00 første virkedag etter siste annonserte visning. I tillegg kan ikke budet ha forbehold om at det skal holdes hemmelig ovenfor øvrige interessenter. Megler har iht lov om eiendomsmegling ikke anledning til å videreformidle disse budene, og de vil dermed heller ikke bli journalført.
Etter at eiendommen er solgt vil kjøper og selger få tilsendt budjournal. Øvrige budgivere kan få utlevert kopi av budjournalen i anonymisert form.
Hvitvaskingsreglene
I henhold til lov om hvitvasking og terrorfinansiering har megler plikt til å gjennomføre kontrolltiltak overfor kunder, herunder fullmektiger. Dette innebærer bl.a. å bekrefte kunders og reelle rettighetshaveres identitet på bakgrunn av fremvist gyldig legitimasjon eller på annen godkjent måte, samt å innhente opplysninger om kundeforholdets formål og tilsiktede art.
Dersom slike kundetiltak ikke kan gjennomføres, kan megler ikke etablere kundeforholdet eller utføre transaksjonen.
Hvis kjøper ikke bidrar til gjennomføring av kundekontrollen og dette fører til at transaksjonen blir forsinket eller ikke kan gjennomføres, vil dette ansees som mislighold av avtalen og gi selger rettigheter etter avhendingslova kapittel 5. I tilfeller der selger ikke bidrar til gjennomføring av løpende kundekontroll underveis i oppdraget, er det selger som misligholder sine forpliktelser etter avtalen og gi kjøper rettigheter etter avhendingslovens kapittel 4. Partene er selv ansvarlige for eventuelle kostnader og ansvar dette kan medføre. Eiendomsmegleren eller eiendomsmeglingsforetaket kan ikke holdes ansvarlig for de konsekvenser dette vil kunne få for partene eller andre som har interesser i eiendomshandelen.
Kjøper oppfordres til å innbetale kjøpesummen som ikke kommer fra låneinstitusjon i én samlet innbetaling fra egen konto i norsk bank. Megler har plikt til å melde fra til Økokrim om eiendomshandler som fremstår som mistenkelige. Melding sendes Økokrim uten at partene varsles.
Personopplysningsloven
I henhold til personopplysningsloven gjør vi oppmerksom på at interessenter kan bli registrert for videre oppfølging.
Lovanvendelse
Generelle bestemmelser
Salgsoppgaven er basert på de opplysningene selger har gitt til megler, den bygningssakyndiges tilstandsrapport, samt opplysninger innhentet fra kommunen, Kartverket og andre tilgjengelige kilder. Det er viktig at kjøper setter seg grundig inn i alle salgsdokumentene, herunder salgsoppgave, tilstandsrapport og selgers egenerklæring. Kjøper anses kjent med forhold som er tydelig beskrevet i salgsdokumentene, og slike forhold kan ikke påberopes som mangler. Dette gjelder uavhengig av om kjøper har lest dokumentene. Alle interessenter oppfordres til å undersøke eiendommen nøye, gjerne sammen med fagkyndig før bud inngis. Kjøper som velger å kjøpe usett kan ikke gjøre gjeldende som mangel noe han burde blitt kjent med ved undersøkelsen.
Dersom det er behov for avklaringer, anbefaler vi at interessenter rådfører seg med eiendomsmegler eller egne rådgivere før det legges inn bud.
En bolig som har blitt brukt i en viss tid, har vanligvis blitt utsatt for slitasje og skader kan ha oppstått. Slik bruksslitasje må kjøper regne med, og det kan avdekkes enkelte forhold etter overtakelse som nødvendiggjør utbedringer. Normal slitasje og skader som nødvendiggjør utbedring, er innenfor hva kjøper må forvente og vil ikke utgjøre en mangel.
Kjøper og selgers rettigheter og plikter reguleres av avtalen mellom partene, samt informasjonen som har vært tilgjengelig for kjøperen i forbindelse med handelen. Avtalen utfylles av avhendingsloven, og det gjelder ulike avtalevilkår avhengig av om kjøper er forbrukerkjøper eller ikke. Dette er nærmere beskrevet nedenfor.
På grunn av ulike avtalevilkår kan selger vurdere bud fra en som ikke er forbruker, ulikt fra en forbrukers bud. Dersom kjøper ikke er forbruker, er selger sitt mulige mangelsansvar begrenset fordi eiendommen selges "som den er". Selger kan ikke ta «som den er»- forbehold overfor en forbrukerkjøper. Selv et lavere bud fra en som ikke er forbruker kan foretrekkes fordi begrensningen i mulig mangelsansvar kan ha egenverdi for selger. Selger står fritt til å forkaste eller akseptere ethvert bud, og er for eksempel ikke forpliktet til å akseptere høyeste bud.
Budgiver skal i budskjema avgi egenerklæring om budgiver er forbruker eller næringsdrivende/ person som hovedsakelig handler som ledd i næringsvirksomhet. Budgivere får informasjon dersom andre bud er inngitt av en som ikke er forbruker.
Forbrukerkjøp - definisjon
Med forbrukerkjøp menes kjøp av eiendom når kjøperen er en fysisk person som ikke hovedsakelig handler som ledd i næringsvirksomhet.
Forbruker – avtalevilkår
Eiendommen har en mangel dersom den ikke er i samsvar med kravene som følger av avtalen, eller det foreligger brudd på bestemmelsene i avhendingsloven §§ 3-2 til 3-8. Hvis eiendommen ikke er i samsvar med det kjøperen må kunne forvente ut ifra alder, type og synlig tilstand, kan det være grunnlag for mangelskrav. Det samme gjelder hvis det er holdt tilbake eller gitt uriktige opplysninger om eiendommen. Dette gjelder likevel bare dersom man kan gå ut ifra at det virket inn på avtalen at opplysningen ikke ble gitt eller at mangelskravet ikke blir rettet i tide på en tydelig måte.
Boligen kan ha en mangel etter avhendingsloven § 3-3 andre ledd, dersom det er avvik mellom opplyst og faktisk innvendig areal, forutsatt at avviket er på 2% eller mer og minimum 1 kvm.
Ved beregning av et eventuelt prisavslag eller erstatning må kjøper selv dekke tap/kostnader opptil et beløp på kr 10 000 (egenandel).
Ikke-forbruker (næringsdrivende) – definisjon
Hvis kjøper er en juridisk person, eller en fysisk person som hovedsakelig handler som ledd i næringsvirksomhet, vil kjøpet ikke anses som et forbrukerkjøp.
Ikke-forbruker – avtalevilkår
Eiendommen har en mangel dersom den ikke er i samsvar med kravene som følger av avtalen.
Eiendommen selges «som den er», og selgers ansvar utover det konkret avtalte er da begrenset etter avhendingsloven § 3-9, første ledd andre setning.
Avhendingsloven § 3-3 andre ledd fravikes, og hvorvidt boligens arealsvikt utgjør en mangel vurderes etter avhendingsloven § 3-8.
Informasjon om kjøpers undersøkelsesplikt, herunder oppfordringen om å undersøke eiendommen nøye, gjelder også for kjøpere som ikke anses som forbrukere.
Det forutsettes at hjemmel overføres til kjøper. Hvis kjøper ikke ønsker hjemmelsoverføring av eiendommen, må det tas forbehold om dette i budet.
Meglers vederlag
Vi er opptatt av verdiskapning, og har knyttet til oss samarbeidspartnere som skal sikre våre kunder de beste produkter og tjenester;
• I forbindelse med forberedelse av salget, innhenter vi informasjon om eiendommen hovedsakelig fra vår samarbeidspartner Ambita.
• Gjensidige leverer boligselgerforsikring og tilbyr bygningsforsikring
• Boligkjøperforsikring leveres av Hiscox og med Sedgwick som skadebehandler, og er formidlet gjennom Gjensidige.
• BN bank tilbyr finansieringsløsninger
• Vår avdeling Krogsveen Pluss tilbyr flyttetjenester som utvask, visningsvask, lager, tømming og transport av flyttelass, i tillegg til å formidle kontakt med Flip for overflateoppussing.
• I forbindelse med overtagelse av eiendommen tilbyr Overo avtale om strøm, alarm og bredbånd.
• Krogsveen er, sammen med øvrige bransjeaktører, medeier i Bomega AS som tilbyr den digitale annonseringsplattformen Hjem.
Opplysninger om oppdraget
Oppdragsnummer 70-0019/26
Eiendomsmegler Krogsveen AS, avd. Fyllingsdalen
Folke Bernadottesvei 44-46, 5147, FYLLINGSDALEN
950 007 613
Oppdragets KR-kode KR70.2619
Dato
Sist oppdatert: 16. april 2026 kl. 19:38
Dokumenter
Dokumenter
PDF – 974 KB
PDF – 168 KB
PDF – 982 KB
PDF – 312 KB
PDF – 29 KB
PDF – 127 KB
PDF – 392 KB
Område
Legg til steder som er viktige for deg
Visning
For å delta på visning, ber vi om at du melder deg på. Da sikrer vi at du får nødvendig informasjon og at det er satt av tilstrekkelig med tid. Kontakt megler dersom annet tidspunkt ønskes. Husk å lese salgsoppgaven før visningen, så du stiller forberedt.
Ønsker du kun å bli holdt orientert, kan du fra eiendommens hjemmeside få varsel om solgtpris, eller kontakte megler.
Lurer du på noe?
Unngå doble boligrenter
Vi tilbyr gunstig forsikring.
Vurderer du utleie?
Få et tilbud fra Utleie KrogsveenHva koster lånet?
Sjekk estimert lånekostnadVil du varsles om lignende boliger?
Ved å lagre ditt boligsøk hos oss får du beskjed når vi har en bolig som ligner denne, før den legges ut på markedet!













































