Cappelens vei 9B
3 300 000 kr
94 m²
2 soverom
Solgt

Tønsberg/Bryggerijordet
Moderne og innflyttingsklart rekkehus med solrik terrasse, garasje m/lader- nær alt
Prisantydning
3 300 000 krAndel fellesgjeld
396 928 krOmkostninger
19 252 krTotalpris
3 716 180 kr
Pris
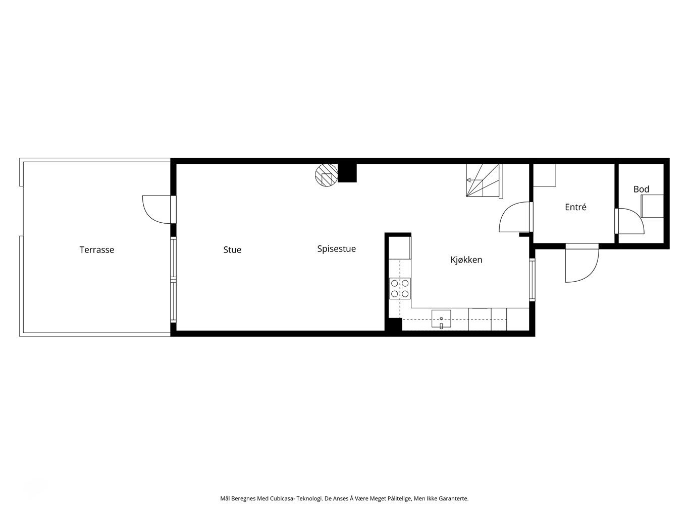
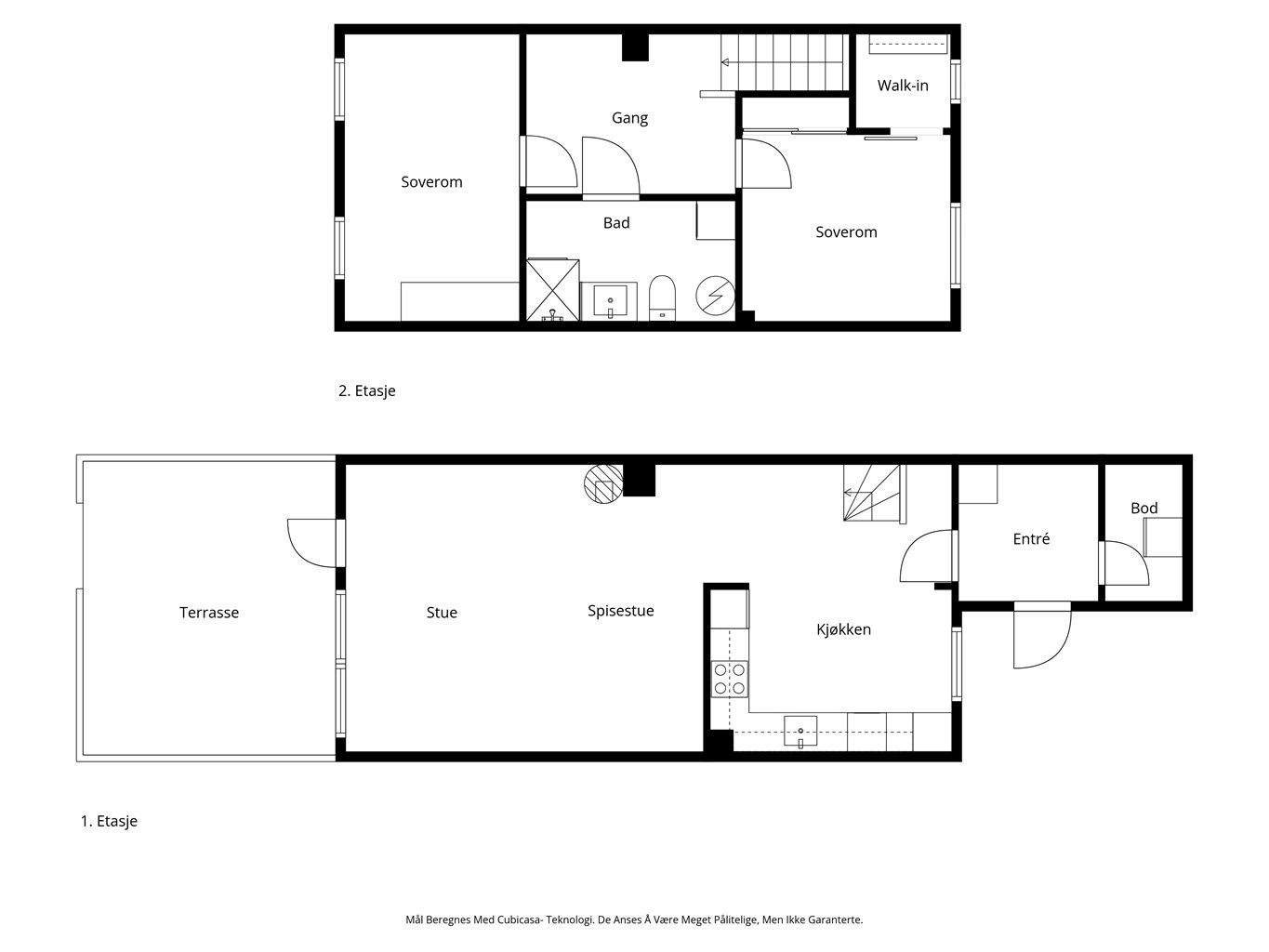
Bruksareal
111 m²BRA-I (internt bruksareal)
94 m²BRA-E (eksternt bruksareal)
17 m²TBA (terrasse-balkongareal)
19 m²
Areal
Byggeår
1969Soverom
2 soveromBad
1 badType
RekkehusEierform
AndelFasiliteter
Garasje/P-plass og Balkong/TerrasseFellesutgifter
6 750 krEnergimerke
Gul E
Nøkkelinfo
Unngå doble boligrenter
Vi tilbyr gunstig forsikring.
Vurderer du utleie?
Få et tilbud fra Utleie KrogsveenHva koster lånet?
Sjekk estimert lånekostnadBeskrivelse
Kort om eiendommen
Oppgradert og innflyttingsklart rekkehus med lyse, moderne løsninger. Boligen er jevnlig oppgradert og fremstår som svært innbydende. Flott bad med dusjnisje, servantskap, speil med lys, toalett og opplegg for vaskemaskin. Flislagt gulv med varmekabler og downlights. Moderne kjøkken med glatte fronter, laminert benkeplate, kompositt oppvaskkum og integrerte hvitevarer. Funksjonell planløsning med oppholdsrom og kjøkken i 1. etasje, og soverom, garderobe og bad i 2. etasje. Utvendig bod gir god lagringsplass. Oppvarming via peisovn og luft-til-luft varmepumpe. Solrik veranda på ca. 19 kvm og garasjeplass med elbillader. En praktisk og moderne bolig i et attraktivt område.
Område
Legg til steder som er viktige for deg
På flyttefot? Tenk kjøp og salg samtidig.
Få din egen rådgiver gjennom hele kjøps- og salgsprosessen. Det starter med en verdivurdering.
Unngå doble boligrenter
Vi tilbyr gunstig forsikring.
Vurderer du utleie?
Få et tilbud fra Utleie KrogsveenHva koster lånet?
Sjekk estimert lånekostnadVil du varsles om lignende boliger?
Ved å lagre ditt boligsøk hos oss får du beskjed når vi har en bolig som ligner denne, før den legges ut på markedet!

