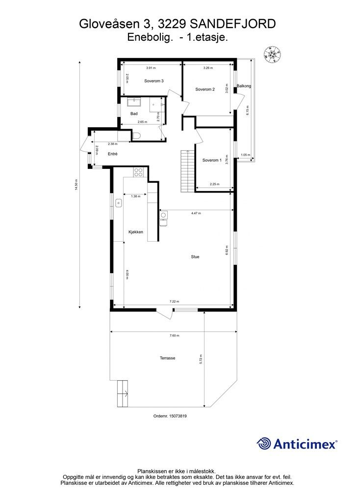
Gloveåsen 3
6 450 000 kr
206 m²
4 soverom
Solgt

Innholdsrik enebolig med stor tomt - Utleiedel - Sjøgløtt - Barnevennlig og solrikt i blindvei
Prisantydning
6 450 000 krOmkostninger
182 240 krTotalpris
6 632 240 kr
Pris
Bruksareal
252 m²BRA-I (internt bruksareal)
206 m²BRA-E (eksternt bruksareal)
46 m²TBA (terrasse-balkongareal)
88 m²
Areal
Etasje
2Byggeår
1970Soverom
4 soveromBad
2 badTomteareal
1 198 m² (eiet)Type
Enebolig - FrittliggendeEierform
EietFasiliteter
Garasje/P-plass og Balkong/TerrasseEnergimerke
Oransje E
Nøkkelinfo
Unngå doble boligrenter
Vi tilbyr gunstig forsikring.
Vurderer du utleie?
Få et tilbud fra Utleie KrogsveenHva koster lånet?
Sjekk estimert lånekostnadBeskrivelse
Kort om eiendommen
Velkommen til en attraktiv enebolig i et etablert og barnevennlig boligområde – usjenert beliggende i en blindvei med flott, solrik plassering og glimt av sjøen i det fjerne.
Boligen ligger høyt i terrenget og har en lys og moderne stil med gjennomgående god standard. Praktisk planløsning hvor hoveddelen har en romslig stue, tre soverom, separat vaskerom og oppgraderte kjøkken og bad. I tillegg byr underetasjen på en romslig hybel med egen inngang, kjøkken, bad og soverom. Denne gir gode inntektsmuligheter– perfekt for utleie eller gjester. Dette er en bolig med mange kvaliteter, både ute og inne.
Vi ønsker velkommen til en hyggelig visning !
Område
Legg til steder som er viktige for deg
På flyttefot? Tenk kjøp og salg samtidig.
Få din egen rådgiver gjennom hele kjøps- og salgsprosessen. Det starter med en verdivurdering.
Unngå doble boligrenter
Vi tilbyr gunstig forsikring.
Vurderer du utleie?
Få et tilbud fra Utleie KrogsveenHva koster lånet?
Sjekk estimert lånekostnadVil du varsles om lignende boliger?
Ved å lagre ditt boligsøk hos oss får du beskjed når vi har en bolig som ligner denne, før den legges ut på markedet!

