Bjørnemyr terrasse 26A
3 540 000 kr
57 m²
1 soverom
Solgt
Bjørnemyr
Vestvendt med flott fjordutsikt, alt på ett plan, solrik balkong og garasjeplass. Moderniseringsbehov, Lave kjøpsomk.
Prisantydning
3 540 000 krAndel fellesgjeld
439 342 krOmkostninger
11 040 krTotalpris
3 990 382 kr
Pris
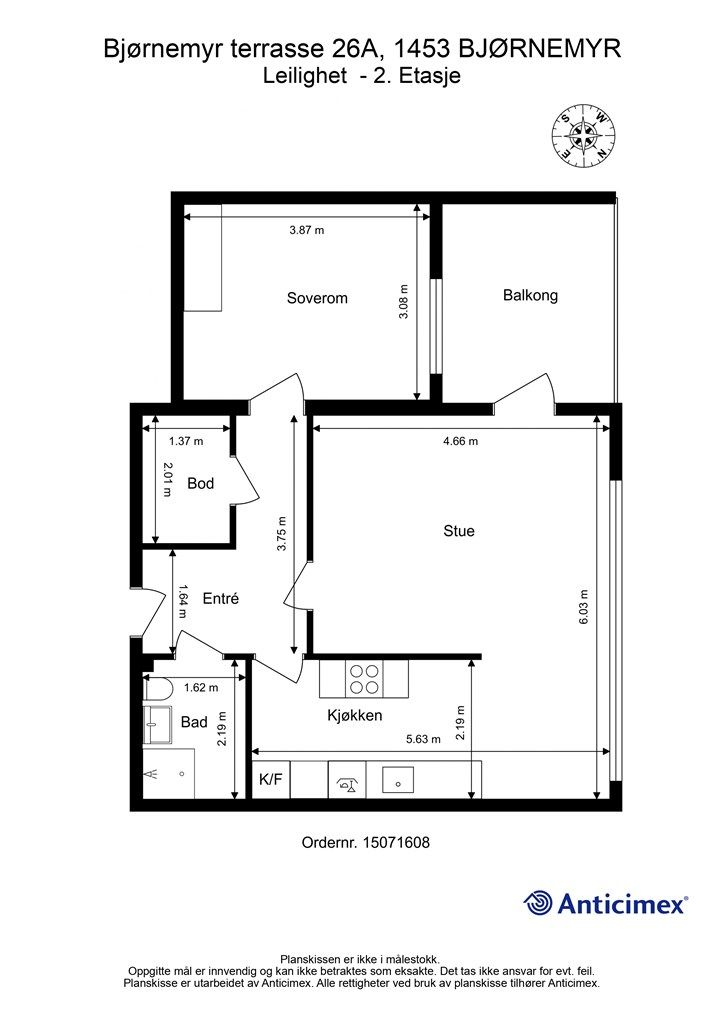
Bruksareal
61 m²BRA-I (internt bruksareal)
57 m²BRA-E (eksternt bruksareal)
4 m²TBA (terrasse-balkongareal)
8 m²
Areal
Etasje
2Byggeår
1973Soverom
1 soveromBad
1 badType
AndelsleilighetEierform
AndelFasiliteter
Garasje/P-plass og Balkong/TerrasseFellesutgifter
5 995 krEnergimerke
Rød E
Nøkkelinfo
Unngå doble boligrenter
Vi tilbyr gunstig forsikring.
Vurderer du utleie?
Få et tilbud fra Utleie KrogsveenHva koster lånet?
Sjekk estimert lånekostnadDette liker selger best ved boligen
Panorama utsikt, solrik beliggenhet, nærhet til butikk, barnehage, skole, offentlig kommunikasjon og ikke minst marka. Rolige omgivelser.
Beskrivelse
Kort om eiendommen
Vestvendt 2-roms leilighet beliggende i 2. etasje med fin ettermiddags- og kveldssol og sjøutsikt. Stue med utgang til en godt skjermet balkong mot vest og vinduer med fin utsikt til Oslofjorden og over til Askerlandet. Leiligheten har moderniseringsbehov og potensiale.
Med leiligheten følger også en ekstern bod i 1. etasje og garasjeplass.
Bygningen ligger i blindvei rett ved skogkanten med rikelige turmuligheter sommer som vinter. Stille og fredelig beliggenhet uten trafikkstøy.
Kort spaservei til dagligvarebutikker og buss (Coop Prix 2 minutter, buss 3 minutter, Rema 1000 7 minutter). Gangavstand til fin badestrand på Alværn.
Område
Legg til steder som er viktige for deg
På flyttefot? Tenk kjøp og salg samtidig.
Få din egen rådgiver gjennom hele kjøps- og salgsprosessen. Det starter med en verdivurdering.
Unngå doble boligrenter
Vi tilbyr gunstig forsikring.
Vurderer du utleie?
Få et tilbud fra Utleie KrogsveenHva koster lånet?
Sjekk estimert lånekostnadVil du varsles om lignende boliger?
Ved å lagre ditt boligsøk hos oss får du beskjed når vi har en bolig som ligner denne, før den legges ut på markedet!




